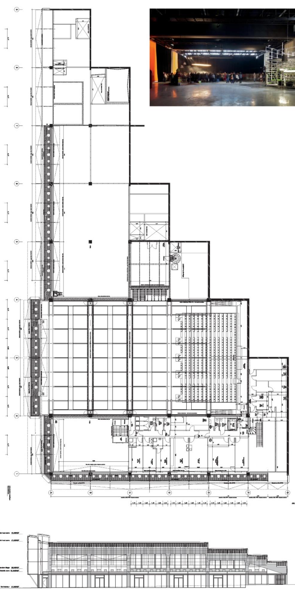
多元剧场大南部,里尔 Polyvalent Theater ‘Le Grand Sud’, Lille | 拉卡东与瓦萨尔建筑师事务所|Lacaton & Vassal 拉卡东与瓦萨尔建筑师事务所|Lacaton & Vassal • 2025-11-12 下午12:50 • 公共建筑设计, 建筑师设计, 建筑设计, 文化建筑设计 多元剧场大南部是法国里尔Arras Europe区域重建项目的重要组成部分。这座文化建筑巧妙融入起伏的公共花园屋顶之下,设有2500平方米多功能空间。设计采用灵活隔音系统,可容纳400至1800人不同活动配置,展现了拉卡东与瓦萨尔建筑师事务所在公共建筑领域的创新理念。 设计: 拉卡东与瓦萨尔建筑师事务所|Lacaton & Vassal 类型: 文化建筑设计 功能: 文化中心 风格: 当代建筑 材料: 玻璃 金属板 混合材料 尺度: 微型建筑与装置 地点:法国 时间: 2013年 项目简介 多元剧场大南部位于法国里尔Arras Europe区域,是一座多功能文化建筑,建筑面积2500平方米,设计团队为拉卡东与瓦萨尔建筑师事务所。 设计理念 项目以”消失的建筑”为核心理念,将建筑体量巧妙隐藏在起伏的公共花园之下,创造建筑与景观的完美融合。设计强调空间的灵活性与多功能性,通过创新的技术解决方案实现环境控制与能源效率。 空间与功能 中央区域设有无结构柱的观众厅,配备模块化移动看台和舞台区。周边布置各类公共功能空间,通过大型窗帘和移动隔音隔断系统,空间可灵活配置为400座剧场、1800人节庆场地、展览空间或宴会厅等多种模式。 材料与技术 建筑采用ETFE双层围护结构形成冬季花园,配备自动通风、遮阳和气候控制系统。立面设置2.5米高大型滑动玻璃窗,可完全打开实现室内外空间的无缝连接。 设计团队 拉卡东与瓦萨尔建筑师事务所是法国知名建筑事务所,以社会住宅和公共建筑项目著称,擅长通过简洁有效的技术解决方案创造高品质、经济适用的建筑空间。 项目简介 多元剧场大南部位于法国里尔Arras Europe区域,是一座多功能文化建筑,建筑面积2500平方米,设计团队为拉卡东与瓦萨尔建筑师事务所。 设计理念 项目以”消失的建筑”为核心理念,将建筑体量巧妙隐藏在起伏的公共花园之下,创造建筑与景观的完美融合。设计强调空间的灵活性与多功能性,通过创新的技术解决方案实现环境控制与能源效率。 空间与功能 中央区域设有无结构柱的观众厅,配备模块化移动看台和舞台区。周边布置各类公共功能空间,通过大型窗帘和移动隔音隔断系统,空间可灵活配置为400座剧场、1800人节庆场地、展览空间或宴会厅等多种模式。 材料与技术 建筑采用ETFE双层围护结构形成冬季花园,配备自动通风、遮阳和气候控制系统。立面设置2.5米高大型滑动玻璃窗,可完全打开实现室内外空间的无缝连接。 设计团队 拉卡东与瓦萨尔建筑师事务所是法国知名建筑事务所,以社会住宅和公共建筑项目著称,擅长通过简洁有效的技术解决方案创造高品质、经济适用的建筑空间。 本文来自 © 拉卡东与瓦萨尔建筑师事务所|Lacaton & Vassal, 发布于 © 建筑学院官方网站。 未经授权,禁止转载或摘编。 编辑版本版权归 © 建筑学院官方网站 所有, 设计、图纸及照片版权归设计方 © 拉卡东与瓦萨尔建筑师事务所|Lacaton & Vassal ↗ 所有。 查看作者在建筑学院发布的更多作品: 拉卡东与瓦萨尔建筑师事务所|Lacaton & Vassal @ 建筑学院官方网站 ETFE材料多元剧场大南部拉卡东与瓦萨尔文化建筑里尔 拉卡东与瓦萨尔建筑师事务所|Lacaton & Vassal事务所 & 设计师 下载原图 收藏 0 关于作者 拉卡东与瓦萨尔建筑师事务所|Lacaton & Vassal事务所 & 设计师 关注私信 7 文章 0 评论 0 粉丝 拉卡东与瓦萨尔建筑师事务所由安妮·拉卡东与让-菲利普·瓦萨尔于1987年在巴黎创立,是2021年普利兹克建筑奖获得者。他们以“永不拆毁”为核心原则,擅长通过改造与增建,赋予旧建筑(尤其是社会住宅)新生,并以其低成本、可持续的策略,运用经济生态材料(如温室技术的聚碳酸酯面板)为空间引入充裕的光线与自由使用的可能性。其代表作包括波尔多大公园区住宅改造(获2019年密斯·凡·德罗奖)及巴黎东京宫改造。 Ageo的排房 / Row House in Ageo | 长谷川豪建筑事务所|Go Hasegawa 上一篇 2025-11-12 上午8:50 水网编织的未来聚落 | CROX闊合 下一篇 2025-11-12 下午12:59 猜你喜欢 大剧院 Auditorium / Teatro-Auditorio | 阿尔瓦罗·西扎|Álvaro Siza 2026-03-02 公共建筑设计 绿线艺术中心 / Green Line Arts Center | MARKLEE 建筑事务所 2025-11-13 公共建筑设计 诺贝尔中心 Nobel Center | 大卫·奇珀菲尔德建筑事务所|David Chipperfield 2025-11-13 公共建筑设计 重构斯德哥尔摩市图书馆项目 Restructuring Stockholm City Library | 卡鲁索·圣约翰建筑事务所|Caruso St John 2025-12-07 公共建筑设计 Embres-et-Castelmaure 的酒窖 Wine Cellar in Embres et Castelmaure | 拉卡东与瓦萨尔建筑师事务所|Lacaton & Vassal 2025-11-13 公共建筑设计 曼彻斯特科学与工业博物馆特别展览馆 Special Exhibition Gallery,Museum of Science and Industry, Manchester | 卡莫迪·格罗克建筑事务所|Carmody Groarke 2025-11-27 公共建筑设计 发表回复 请登录后评论...登录后才能评论 提交