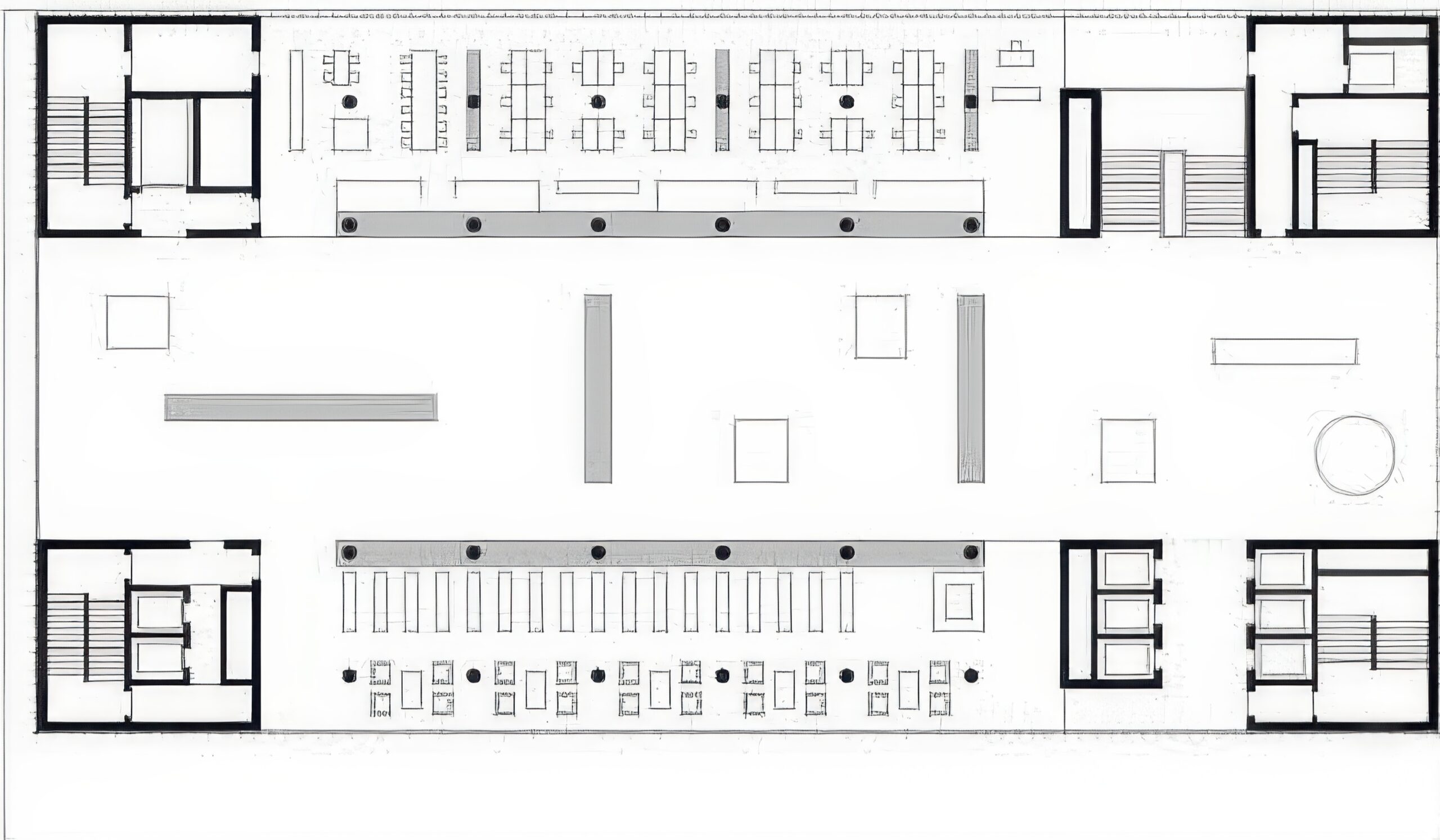
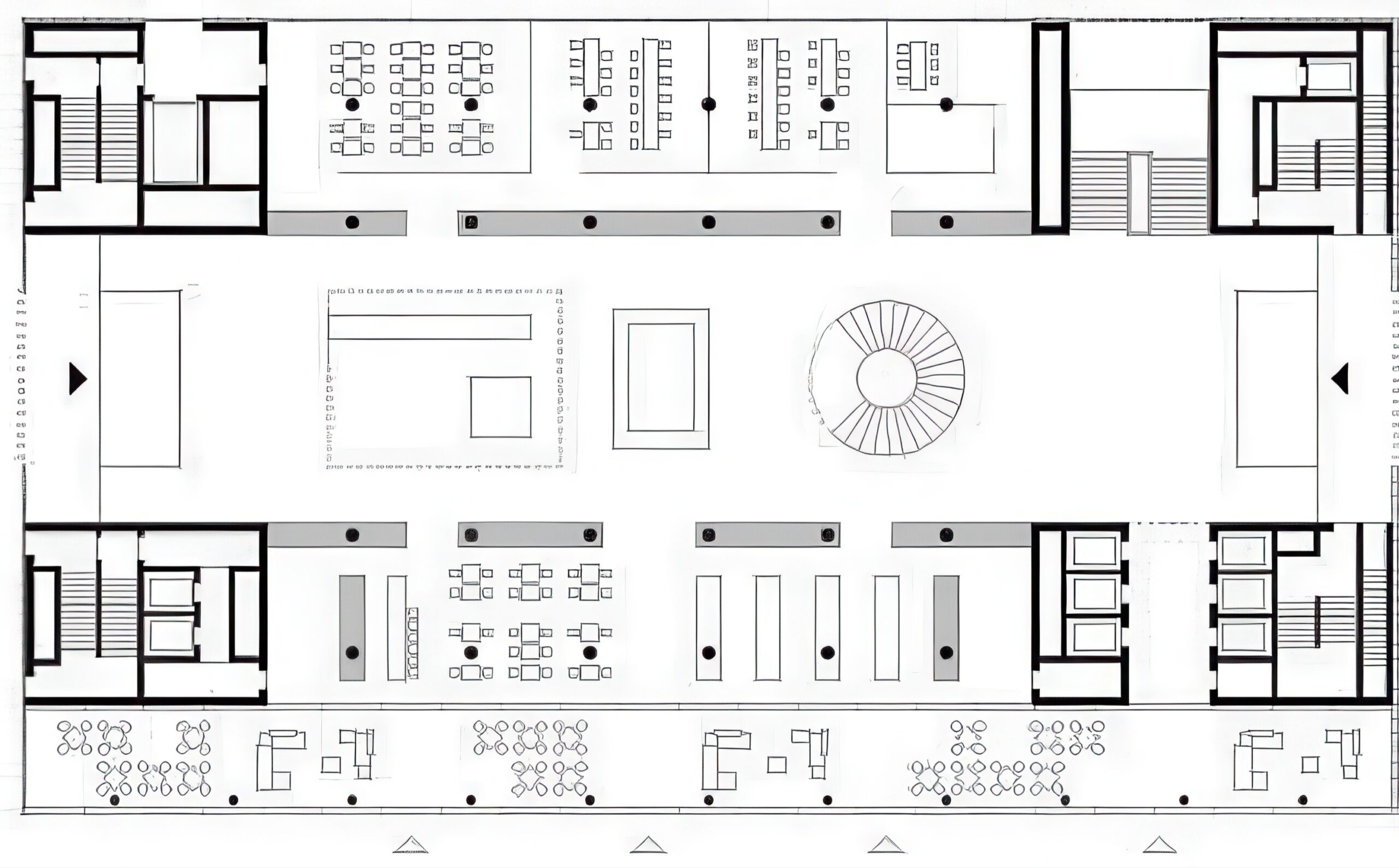
诺贝尔中心 Nobel Center | 大卫·奇珀菲尔德建筑事务所|David Chipperfield 大卫·奇珀菲尔德建筑事务所|David Chipperfield • 2025-11-13 上午8:50 • 公共建筑设计, 建筑师设计, 建筑设计, 文化建筑设计 诺贝尔中心(Nobelhuset)是位于瑞典斯德哥尔摩市中心Blasieholmen半岛的文化建筑,由大卫·奇珀菲尔德建筑事务所设计。该项目作为诺贝尔奖的首个永久性场馆,集颁奖典礼、博物馆、会议研究、办公餐饮等多功能于一体。建筑以透明与不透明玻璃及石材构成的立面为特色,在传统与现代之间取得平衡,成为斯德哥尔摩重要的文化地标。 设计: 类型: 文化建筑设计 功能: 文化中心 风格: 当代建筑 材料: 钢材 玻璃 石材 尺度: 大型建筑 地点:斯德哥尔摩 时间: 2014年 项目简介 诺贝尔中心(Nobelhuset)位于瑞典斯德哥尔摩Blasieholmen半岛,是一座综合性文化建筑。项目包含颁奖典礼、博物馆、会议研究、办公餐饮等多种功能,建筑面积规模宏大,由大卫·奇珀菲尔德建筑事务所设计,预计将成为诺贝尔奖的永久性场馆。 设计理念 设计团队以”传统与现代的对话”为核心理念,通过建筑语言体现诺贝尔奖的价值观。建筑立面在透明与不透明玻璃、石材之间取得平衡,象征着诺贝尔奖在传统遗产与未来创新之间的桥梁作用。 空间与功能 建筑内部通过一条公共流线串联各功能区域:从开放的底层博物馆空间,经过图书馆、会议区、餐厅和办公区,最终到达顶层的诺贝尔颁奖大厅。南侧新建的诺贝尔花园与现有国家博物馆公园和水滨步道共同构成城市公共空间。 材料与技术 建筑立面采用透明与不透明玻璃与石材元素的组合,根据日光条件和内部活动变化外观。这种材料选择既保证了建筑的坚固性,又创造了轻盈通透的视觉效果,体现了可持续设计理念。 设计团队 大卫·奇珀菲尔德建筑事务所是一家国际知名的建筑设计事务所,以精致简约的设计语言和对材料、细节的精准把控著称。事务所在文化建筑、博物馆设计领域具有丰富经验,作品强调建筑与环境的和谐共生。 项目简介 诺贝尔中心(Nobelhuset)位于瑞典斯德哥尔摩Blasieholmen半岛,是一座综合性文化建筑。项目包含颁奖典礼、博物馆、会议研究、办公餐饮等多种功能,建筑面积规模宏大,由大卫·奇珀菲尔德建筑事务所设计,预计将成为诺贝尔奖的永久性场馆。 设计理念 设计团队以”传统与现代的对话”为核心理念,通过建筑语言体现诺贝尔奖的价值观。建筑立面在透明与不透明玻璃、石材之间取得平衡,象征着诺贝尔奖在传统遗产与未来创新之间的桥梁作用。 空间与功能 建筑内部通过一条公共流线串联各功能区域:从开放的底层博物馆空间,经过图书馆、会议区、餐厅和办公区,最终到达顶层的诺贝尔颁奖大厅。南侧新建的诺贝尔花园与现有国家博物馆公园和水滨步道共同构成城市公共空间。 材料与技术 建筑立面采用透明与不透明玻璃与石材元素的组合,根据日光条件和内部活动变化外观。这种材料选择既保证了建筑的坚固性,又创造了轻盈通透的视觉效果,体现了可持续设计理念。 设计团队 大卫·奇珀菲尔德建筑事务所是一家国际知名的建筑设计事务所,以精致简约的设计语言和对材料、细节的精准把控著称。事务所在文化建筑、博物馆设计领域具有丰富经验,作品强调建筑与环境的和谐共生。 本文来自 © 大卫·奇珀菲尔德建筑事务所|David Chipperfield, 发布于 © 建筑学院官方网站。 未经授权,禁止转载或摘编。 编辑版本版权归 © 建筑学院官方网站 所有, 设计、图纸及照片版权归设计方 © 大卫·奇珀菲尔德建筑事务所|David Chipperfield ↗ 所有。 查看作者在建筑学院发布的更多作品: 大卫·奇珀菲尔德建筑事务所|David Chipperfield @ 建筑学院官方网站 大卫·奇珀菲尔德文化建筑斯德哥尔摩玻璃石材立面诺贝尔中心 大卫·奇珀菲尔德建筑事务所|David Chipperfield事务所 & 设计师 下载原图 收藏 0 关于作者 大卫·奇珀菲尔德建筑事务所|David Chipperfield事务所 & 设计师 关注私信 22 文章 0 评论 1 粉丝 大卫·奇珀菲尔德建筑事务所由2023年普利兹克奖得主大卫·奇珀菲尔德爵士于1985年创立,在伦敦、柏林、米兰、上海等地设有办公室。事务所以优雅克制、注重永恒感的设计风格闻名,尤其擅长文化建筑与历史建筑改造,代表作包括柏林新博物馆重建、上海西岸美术馆和洛克外滩源项目。 水网编织的未来聚落 | CROX闊合 上一篇 2025-11-12 下午12:59 Embres-et-Castelmaure 的酒窖 Wine Cellar in Embres et Castelmaure | 拉卡东与瓦萨尔建筑师事务所|Lacaton & Vassal 下一篇 2025-11-13 下午12:50 猜你喜欢 圣路易斯艺术博物馆,东楼 Saint Louis Art Museum,East Building | 大卫·奇珀菲尔德建筑事务所|David 2025-11-25 公共建筑设计 乌德米勒喷射塔博物馆 Windermere Jetty Museum | 卡莫迪·格罗克建筑事务所|Carmody Groarke 2025-11-28 公共建筑设计 罗马别墅博物馆 Museum for a Roman Villa | 卡鲁索·圣约翰建筑事务所|Caruso St John 2025-12-04 公共建筑设计 圣罗伦索纽约新店 Valentino New York | 大卫·奇珀菲尔德建筑事务所|David Chipperfield 2025-11-24 公共建筑设计 欧洲信息与文化图书馆 / BEIC – European Library of Information and Culture | SANAA 2026-03-08 住宅建筑设计 罗马窑炉发现空间 / Roman Kiln Discovery Space in Vilassar de Dalt | 托尼·希罗内斯|Toni Gironès 2025-11-12 公共建筑设计 发表回复 请登录后评论...登录后才能评论 提交