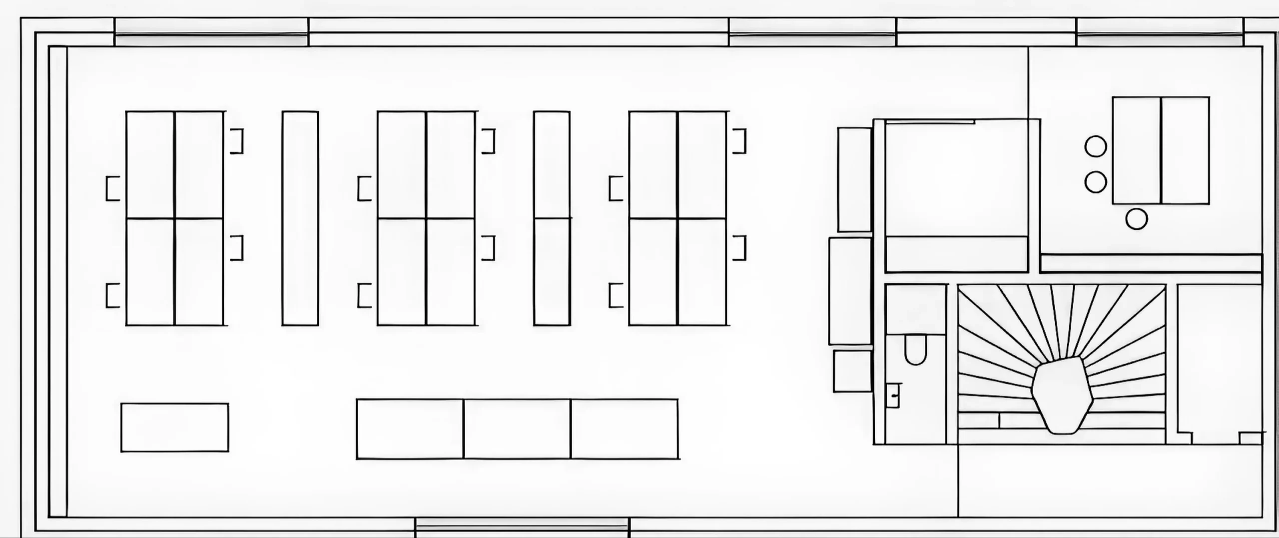
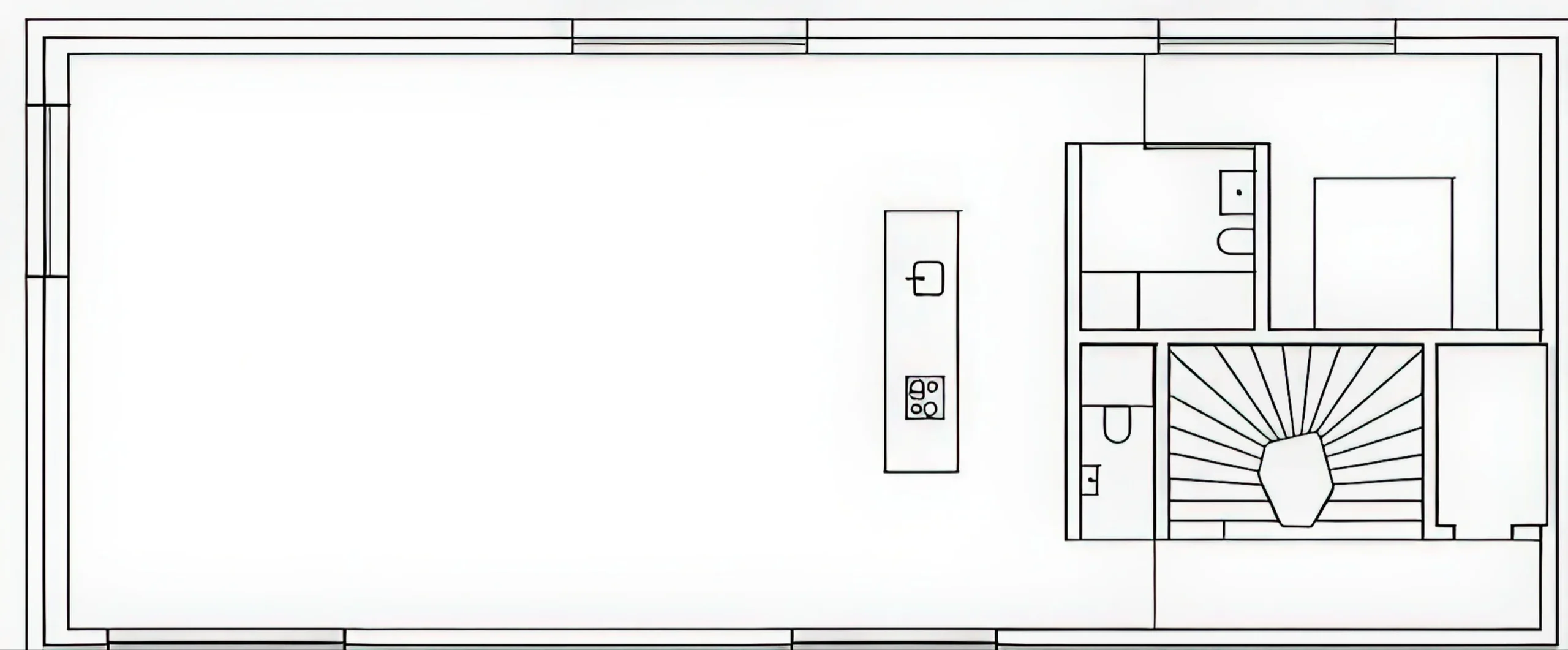
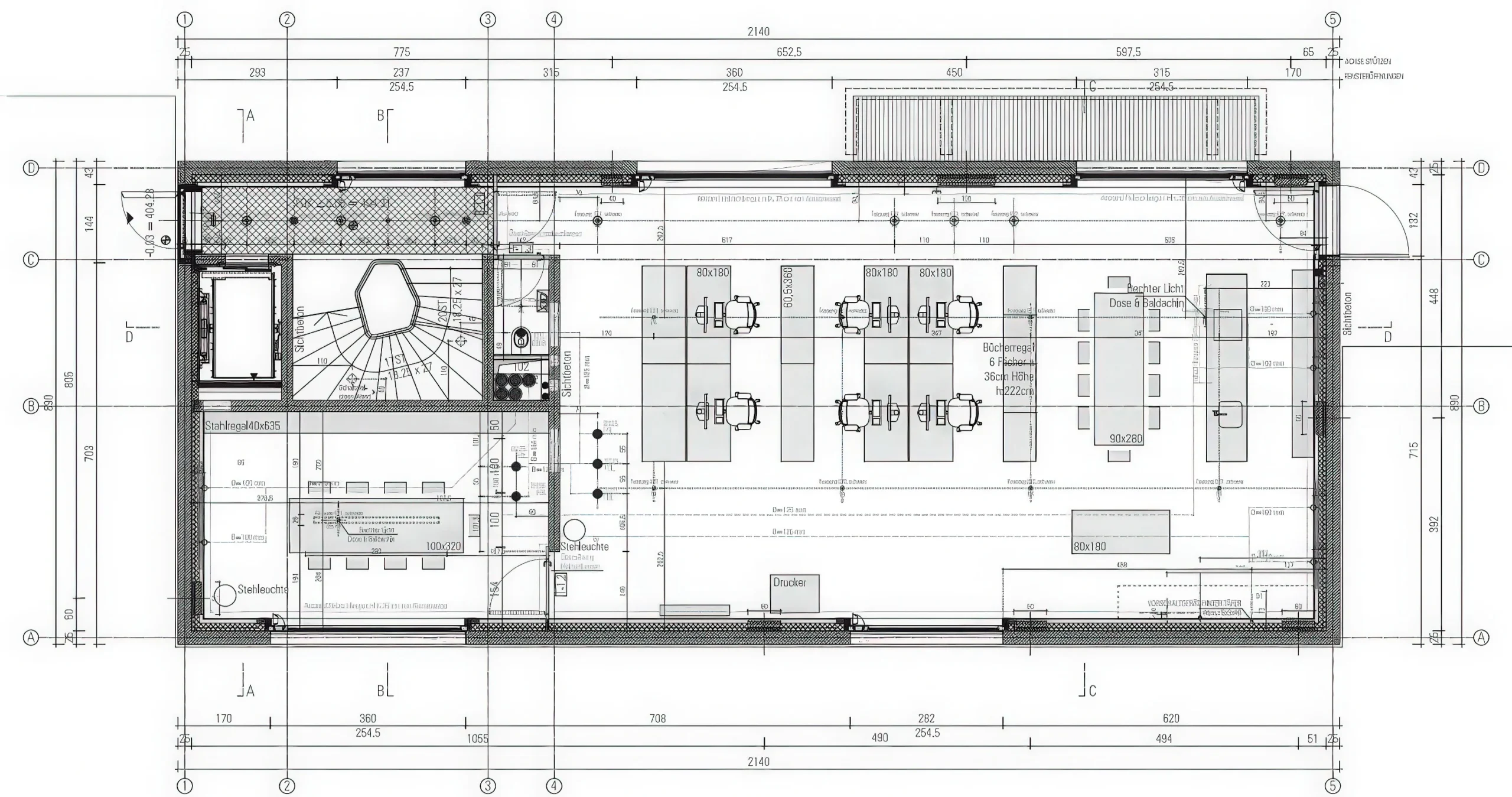
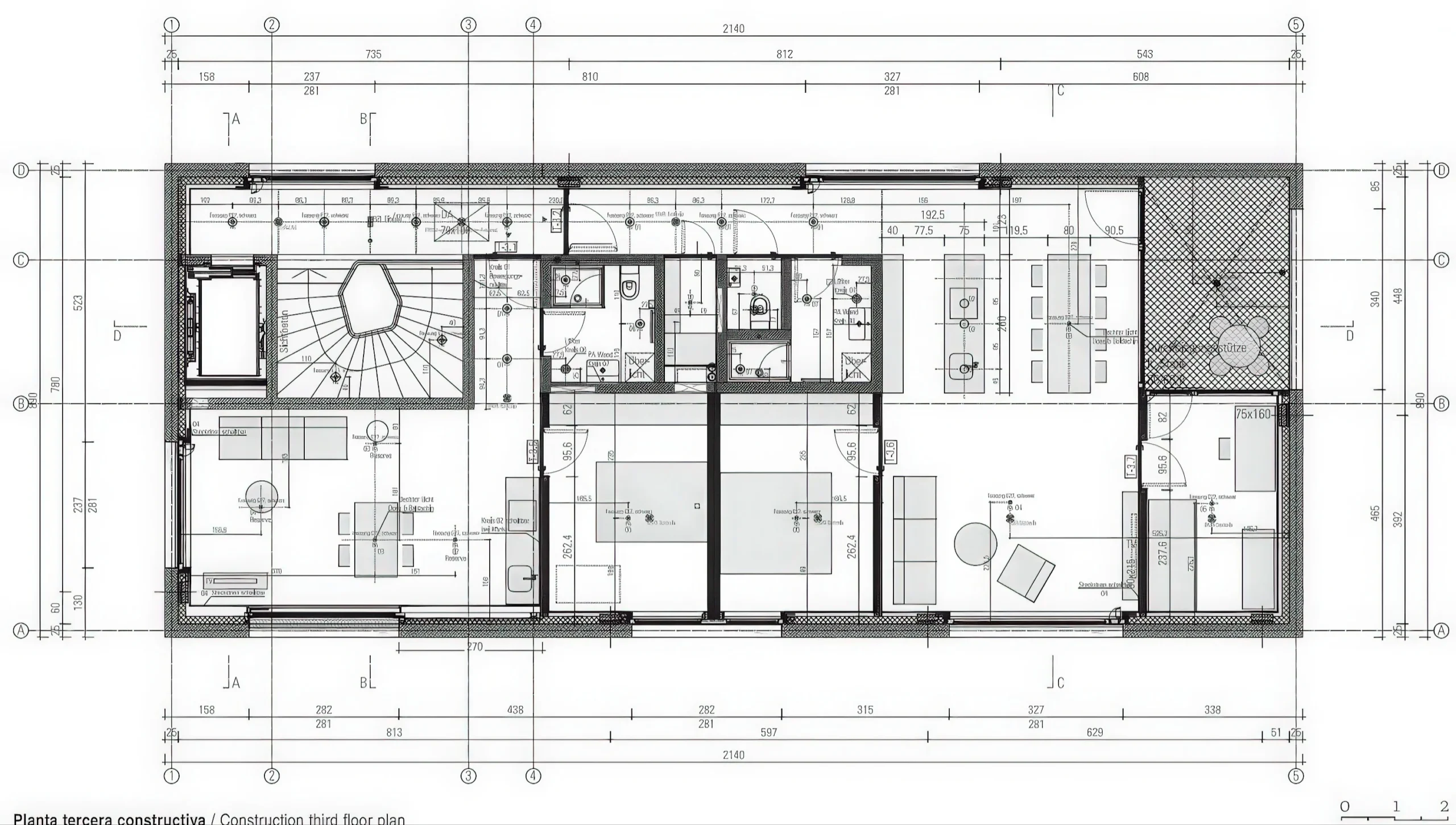
Klostergasse Studio / Klostergasse Studio | 贝尔纳多·巴德尔|Bernardo Bader 贝尔纳多·巴德尔|Bernardo Bader • 2025-11-20 上午7:10 • 公共建筑设计, 建筑师, 建筑设计, 文化建筑设计 Klostergasse Studio 由贝尔纳多·巴德尔建筑师设计,位于奥地利福拉尔贝格州布雷根茨市中心,是一座集工作室与住宅功能于一体的混合用途建筑。项目采用全混凝土结构,通过深色染色混凝土展现材料的雕塑潜力,创造灵活的工作与生活空间。 设计: 贝尔纳多·巴德尔|Bernardo Bader 类型: 文化建筑设计 功能: 公寓住宅 风格: 当代建筑 材料: 混凝土 钢材 木材 尺度: 小型建筑 地点:布雷根茨 时间: 2019年 项目概述 Klostergasse Studio 位于奥地利福拉尔贝格州布雷根茨市 Klostergasse 街道,邻近火车站,是一座集工作室与住宅功能于一体的混合用途建筑。项目占地规模紧凑,设计于2017年,建成于2019年,建筑面积涵盖四层空间。 设计理念 贝尔纳多·巴德尔建筑师以几何纯粹性为出发点,将建筑视为从几何领域意外闯入现实世界的雕塑体量。设计回应了狭窄城市地块的限制,通过深色混凝土体量与周围行政建筑和住宅形成强烈对比,强化建筑在城市环境中的独特存在感。 空间与功能 Klostergasse Studio 采用四层垂直堆叠的空间组织,每层单元均设计为工作与居住混合使用的灵活空间。大型变化的开窗位置充分利用城市视野与日照条件,室内流线简洁高效,营造出既适合创作又适宜居住的多功能环境。 材料与技术 建筑完全采用混凝土建造,包括地板、天花板、墙壁和屋顶。深色染色混凝土表面保留模板痕迹,展现材料的原始质感与雕塑潜力。室内辅以天然染色云杉木和未加工钢制家具,通过材料对比强化空间氛围。 项目特色与启发 Klostergasse Studio 展示了小型城市地块中建筑表达的极致可能性,其全混凝土构造与功能混合设计为高密度城市环境中的建筑更新提供了参考。项目对材料真实性的探索和空间灵活性的实现,为当代工作室建筑设计树立了典范。 设计团队 贝尔纳多·巴德尔建筑师事务所专注于建筑与地域文化的深度结合,以材料研究和空间体验为核心设计理念。事务所在福拉尔贝格地区完成多个获奖项目,以其对混凝土材料的创新运用和对建筑本质的探索而闻名。 项目概述 Klostergasse Studio 位于奥地利福拉尔贝格州布雷根茨市 Klostergasse 街道,邻近火车站,是一座集工作室与住宅功能于一体的混合用途建筑。项目占地规模紧凑,设计于2017年,建成于2019年,建筑面积涵盖四层空间。 设计理念 贝尔纳多·巴德尔建筑师以几何纯粹性为出发点,将建筑视为从几何领域意外闯入现实世界的雕塑体量。设计回应了狭窄城市地块的限制,通过深色混凝土体量与周围行政建筑和住宅形成强烈对比,强化建筑在城市环境中的独特存在感。 空间与功能 Klostergasse Studio 采用四层垂直堆叠的空间组织,每层单元均设计为工作与居住混合使用的灵活空间。大型变化的开窗位置充分利用城市视野与日照条件,室内流线简洁高效,营造出既适合创作又适宜居住的多功能环境。 材料与技术 建筑完全采用混凝土建造,包括地板、天花板、墙壁和屋顶。深色染色混凝土表面保留模板痕迹,展现材料的原始质感与雕塑潜力。室内辅以天然染色云杉木和未加工钢制家具,通过材料对比强化空间氛围。 项目特色与启发 Klostergasse Studio 展示了小型城市地块中建筑表达的极致可能性,其全混凝土构造与功能混合设计为高密度城市环境中的建筑更新提供了参考。项目对材料真实性的探索和空间灵活性的实现,为当代工作室建筑设计树立了典范。 设计团队 贝尔纳多·巴德尔建筑师事务所专注于建筑与地域文化的深度结合,以材料研究和空间体验为核心设计理念。事务所在福拉尔贝格地区完成多个获奖项目,以其对混凝土材料的创新运用和对建筑本质的探索而闻名。 本文来自 © 贝尔纳多·巴德尔|Bernardo Bader, 发布于 © 建筑学院官方网站。 未经授权,禁止转载或摘编。 编辑版本版权归 © 建筑学院官方网站 所有, 设计、图纸及照片版权归设计方 © 贝尔纳多·巴德尔|Bernardo Bader ↗ 所有。 查看作者在建筑学院发布的更多作品: 贝尔纳多·巴德尔|Bernardo Bader @ 建筑学院官方网站 Klostergasse Studio工作室建筑设计布雷根茨建筑贝尔纳多·巴德尔 贝尔纳多·巴德尔|Bernardo Bader事务所 & 设计师 下载原图 收藏 0 关于作者 贝尔纳多·巴德尔|Bernardo Bader事务所 & 设计师 关注私信 21 文章 0 评论 0 粉丝 贝尔纳多·巴德尔(Bernardo Bader)是一位出生于布雷根策瓦尔的奥地利建筑师-2。他于2003年创立自己的事务所,其作品深深植根于地域性,以精巧的细节和对自然与文化关系的独特诠释而闻名。巴德尔曾多次获奖,包括2007年青年建筑Weissenhof奖、2012年及2017年的Piranesi奖,并在2013年荣获著名的阿卡汗建筑奖。 谜餐厅 Enigma Restaurant | RCR 建筑事务所 上一篇 2025-11-19 下午12:50 法国图尔国家舞蹈编导中心 National Choreographic Centre of Tours | 布鲁瑟建筑事务所|Bruther 下一篇 2025-11-20 下午10:00 猜你喜欢 儿童之家 / Children’s House | 贝尔纳多·巴德尔|Bernardo Bader 2026-01-17 公共建筑设计 Salgenreute 教堂 / Salgenreute Chapel | 贝尔纳多·巴德尔|Bernardo Bader 2026-01-14 公共建筑设计 House at the Bäumle / Vertical Living | 贝尔纳多·巴德尔|Bernardo Bader 2026-01-18 住宅建筑设计 希伯伦清真寺及文化中心 / Mosque and Cultural Centre, Heilbronn | 贝尔纳多·巴德尔|Bernardo Bader 2026-01-18 文化建筑设计 蒂根塞酒店 / Tegernsee Hotel | 贝尔纳多·巴德尔|Bernardo Bader 2025-11-14 公共建筑设计 阿尔卑斯体育中心,施鲁斯 Alpine Sports Centre, Schruns | 贝尔纳多·巴德尔|Bernardo Bader 2025-10-27 公共建筑设计 发表回复 请登录后评论...登录后才能评论 提交