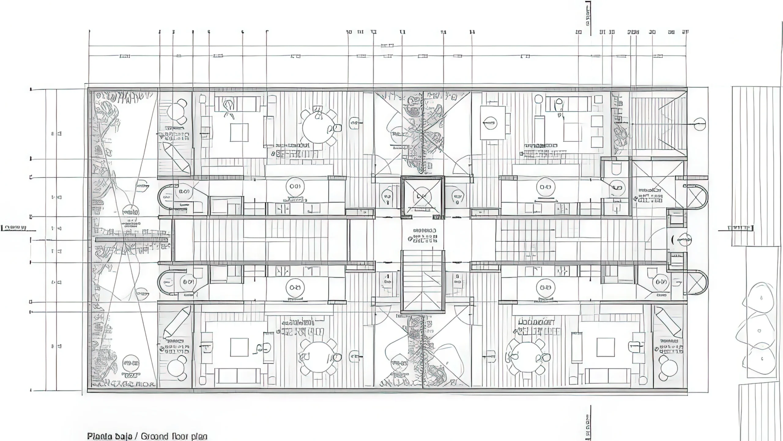
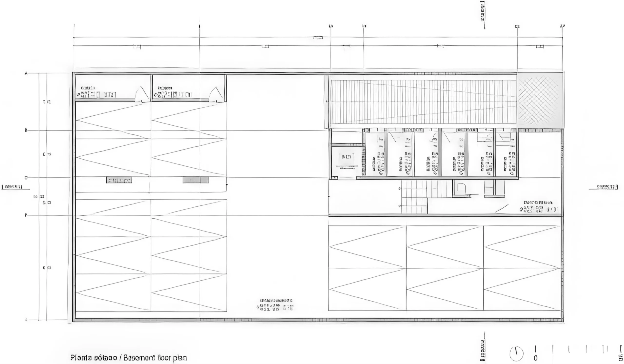
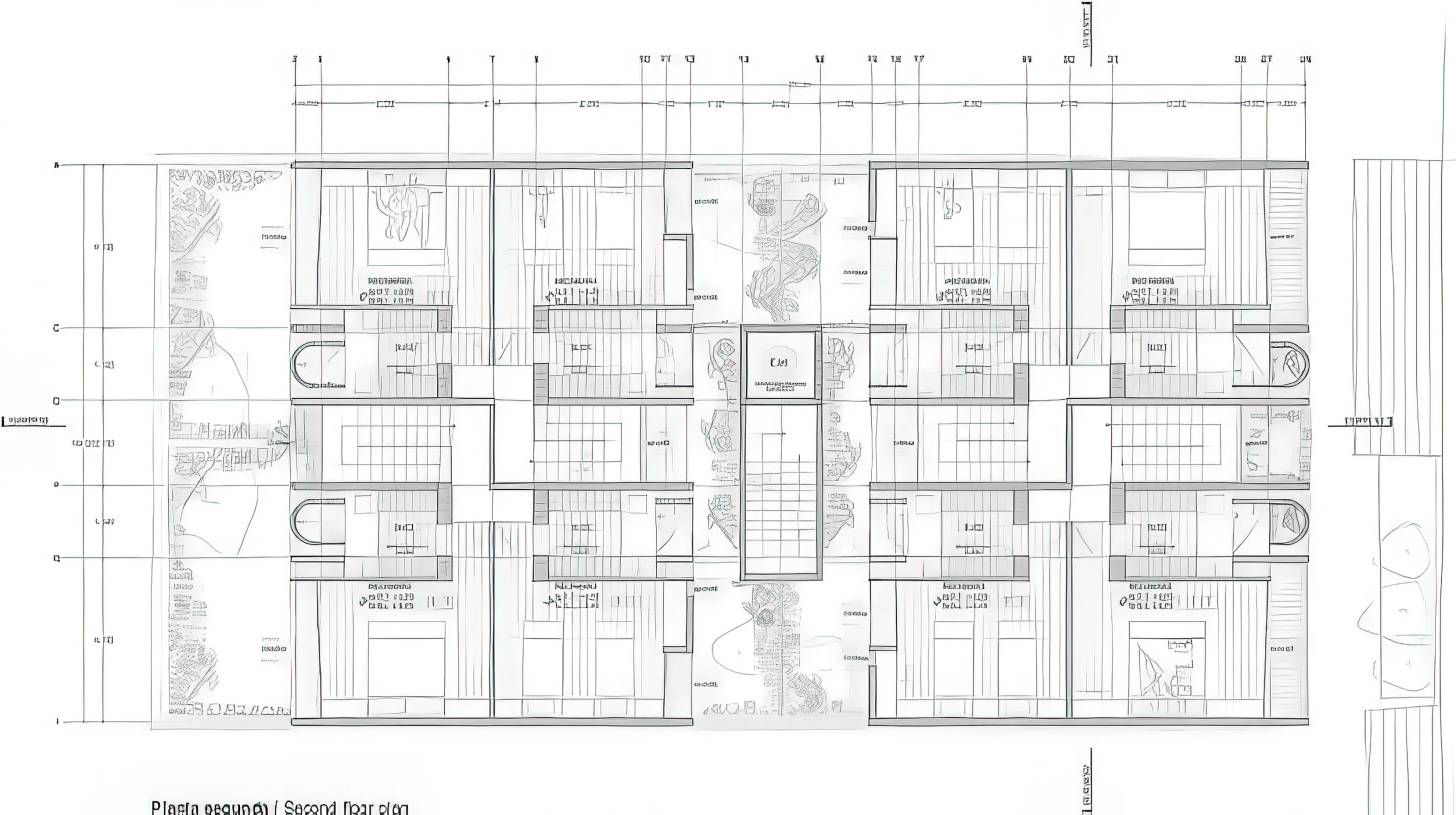
安纳阿戈拉斯公寓楼 / ANAXÁGORAS APARTMENT BUILDING | Taller Héctor Barroso tallerhectorbarroso • 2026-02-17 下午4:33 • 住宅建筑设计, 公寓住宅设计, 建筑设计 安纳阿戈拉斯公寓楼由Taller Héctor Barroso设计,位于墨西哥城20世纪初的工人阶层社区。这座集合住宅基于传统独户住宅模式,通过垂直布局创造私密环境,以开放式平面和交叉通风回应热带气候需求。 设计: tallerhectorbarroso 类型: 建筑设计 功能: 公寓住宅 风格: 当代建筑 材料: 混凝土 钢材 玻璃 尺度: 中型建筑 地点:墨西哥城 时间: 2021年 项目概述 安纳阿戈拉斯公寓楼位于墨西哥城,是一座集合住宅建筑,设计始于2021年。项目基于传统独户住宅模式,在多层住宅综合体中创造私密居住环境,回应早期工人阶层社区的城市肌理。 设计理念 Taller Héctor Barroso的设计理念源于对传统住宅模式的重新诠释,通过垂直组织空间创造私密性,同时保持与周边环境的联系。设计以剖面为基本组织原则,在密集城市环境中实现自然采光与通风。 空间与功能 安纳阿戈拉斯公寓楼采用垂直发展模式,中央交通核连接各户单元。公共与私密空间分层布置,社交空间位于同一层开放式平面,提供使用灵活性;私密空间可根据居民需求开合,每户配有庭院、阳台或屋顶花园。 材料与技术 建筑采用简洁的承重结构体系,创造开放室内空间。清晰的模数化设计形成中性宽敞的空间,便于使用者个性化使用。设计注重自然通风与采光,通过空间组织实现环境性能优化。 项目特色与启发 安纳阿戈拉斯公寓楼展示了在密集城市环境中如何通过垂直组织创造优质居住空间。Taller Héctor Barroso的设计为当代集合住宅提供了传统模式现代转化的范例,对高密度城市住宅设计具有重要参考价值。 设计团队 Taller Héctor Barroso是墨西哥知名建筑事务所,专注于住宅与城市环境设计。其作品以对场地文脉的敏感回应、材料使用的精确性和空间组织的逻辑性著称,在墨西哥当代建筑界具有重要影响力。 项目概述 安纳阿戈拉斯公寓楼位于墨西哥城,是一座集合住宅建筑,设计始于2021年。项目基于传统独户住宅模式,在多层住宅综合体中创造私密居住环境,回应早期工人阶层社区的城市肌理。 设计理念 Taller Héctor Barroso的设计理念源于对传统住宅模式的重新诠释,通过垂直组织空间创造私密性,同时保持与周边环境的联系。设计以剖面为基本组织原则,在密集城市环境中实现自然采光与通风。 空间与功能 安纳阿戈拉斯公寓楼采用垂直发展模式,中央交通核连接各户单元。公共与私密空间分层布置,社交空间位于同一层开放式平面,提供使用灵活性;私密空间可根据居民需求开合,每户配有庭院、阳台或屋顶花园。 材料与技术 建筑采用简洁的承重结构体系,创造开放室内空间。清晰的模数化设计形成中性宽敞的空间,便于使用者个性化使用。设计注重自然通风与采光,通过空间组织实现环境性能优化。 项目特色与启发 安纳阿戈拉斯公寓楼展示了在密集城市环境中如何通过垂直组织创造优质居住空间。Taller Héctor Barroso的设计为当代集合住宅提供了传统模式现代转化的范例,对高密度城市住宅设计具有重要参考价值。 设计团队 Taller Héctor Barroso是墨西哥知名建筑事务所,专注于住宅与城市环境设计。其作品以对场地文脉的敏感回应、材料使用的精确性和空间组织的逻辑性著称,在墨西哥当代建筑界具有重要影响力。 本文来自 © tallerhectorbarroso, 发布于 © 建筑学院官方网站。 未经授权,禁止转载或摘编。 编辑版本版权归 © 建筑学院官方网站 所有, 设计、图纸及照片版权归设计方 © tallerhectorbarroso ↗ 所有。 查看作者在建筑学院发布的更多作品: tallerhectorbarroso @ 建筑学院官方网站 anaxagoras-apartment-buildingTaller Héctor Barroso垂直住宅墨西哥城住宅集合住宅设计 tallerhectorbarroso事务所 & 设计师 下载原图 收藏 0 关于作者 tallerhectorbarroso事务所 & 设计师 关注私信 14 文章 0 评论 0 粉丝 Taller Héctor Barroso是墨西哥知名建筑事务所,由Héctor Barroso Riba于2008年创立。工作室以"林中静谧"的设计哲学著称,擅长利用当地自然资源如植被、土壤和地理特征,创造与自然环境深度融合的建筑方案。其作品曾荣获加拿大AZ奖最佳住宅建筑奖、墨西哥双年展青年建筑师金牌等多项国际荣誉。Taller Héctor Barroso通过尊重场地文脉和采用本土材料,实现建筑与自然的和谐共生,在住宅和度假项目领域具有独特影响力。 加那达之家 / Cañada House | Taller Héctor Barroso 上一篇 2026-02-17 下午4:33 洛杉矶四座房子 / FOUR HOUSES IN LOS HELECHOS | Taller Héctor Barroso 下一篇 2026-02-18 下午2:40 猜你喜欢 瓦拉兰斯住宅区 / Housing Complex in Valendas | 吉翁·A·卡米纳达|Gion A. Caminada 2026-03-29 住宅建筑设计 洛杉矶四座房子 / FOUR HOUSES IN LOS HELECHOS | Taller Héctor Barroso 2026-02-18 住宅建筑设计 DDH房子扩建和翻新 / DDH HOUSE ENLARGEMENT AND RENOVATION | Taller Héctor Barroso 2026-02-21 住宅建筑设计 安东尼奥·麦卡伊公寓楼 8 / ANTONIO MACEO APARTMENT BUILDING 8 | Taller Héctor Barroso 2026-02-18 住宅建筑设计 布列塔尼街14套住宅 14 Housing Units on Rue des Bergers | 布鲁瑟建筑事务所|Bruther 2025-11-28 公共建筑设计 洛佩兹科尔蒂亚710公寓楼 / LÓPEZ COTILLA 710 APARTMENT BUILDING | Taller Héctor Barroso 2026-02-18 住宅建筑设计 发表回复 请登录后评论...登录后才能评论 提交