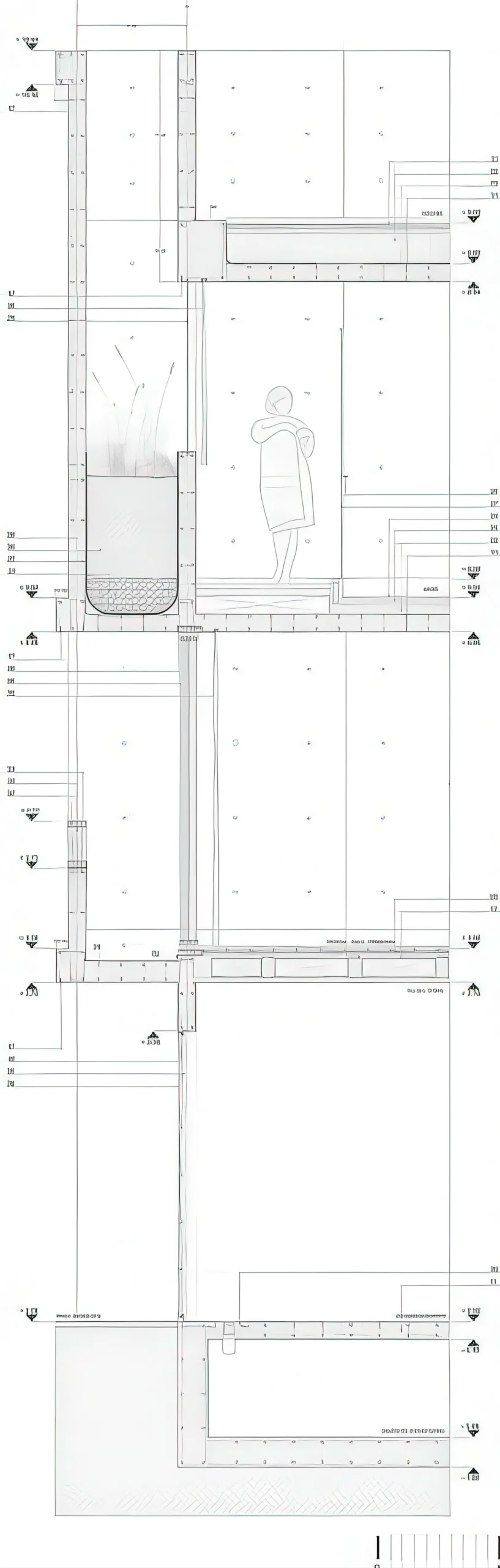
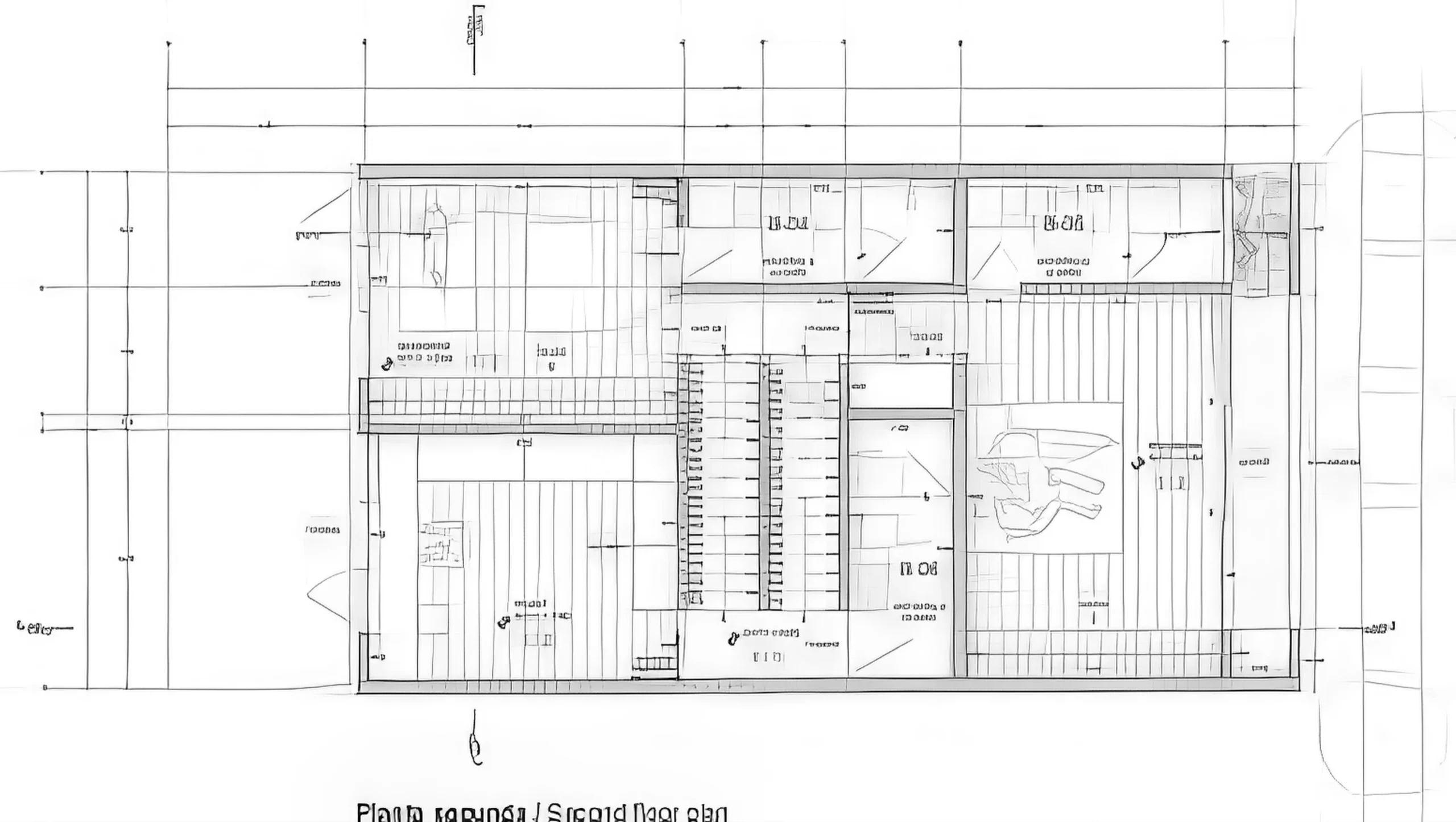
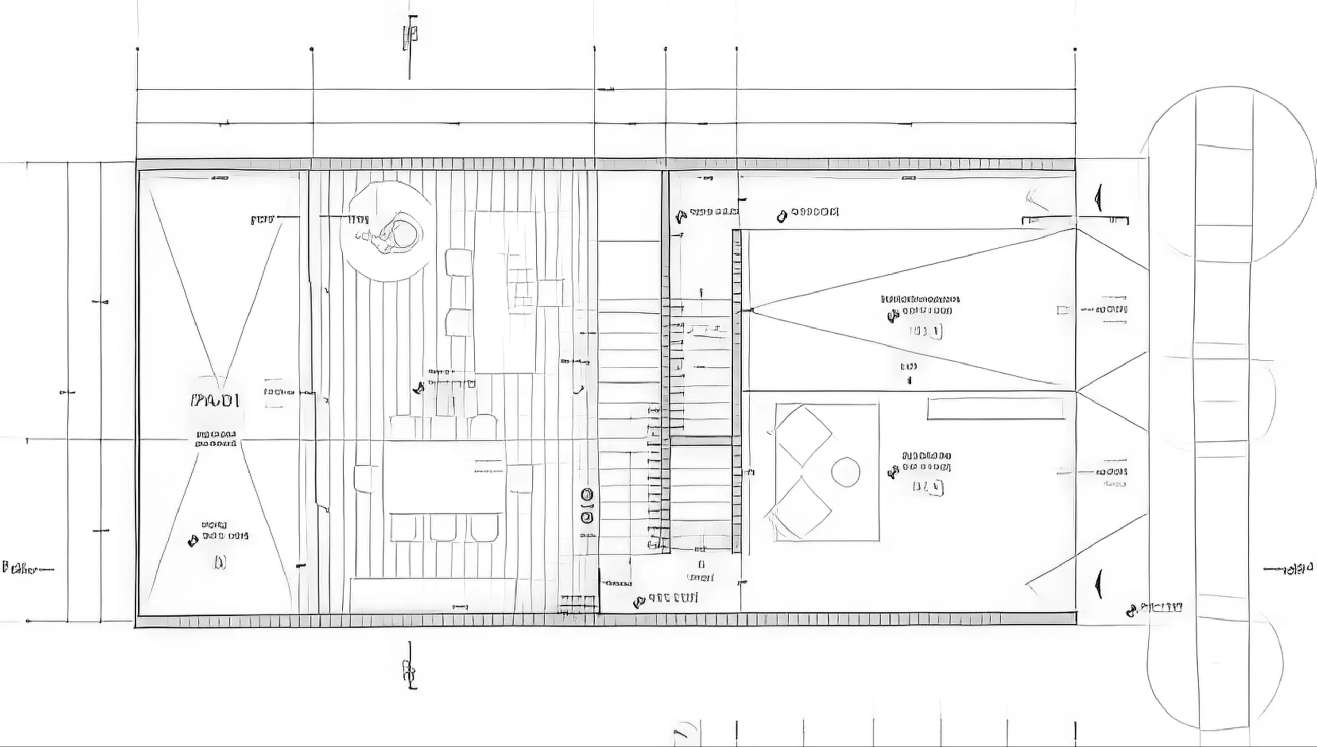
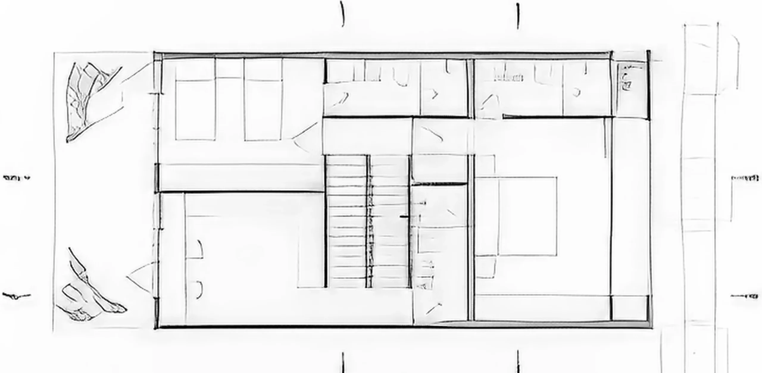
帕拉尔大街工作室和公寓 / Studio and Apartment on Calle Parral | Taller Héctor Barroso tallerhectorbarroso • 2026-02-20 下午9:24 • 住宅建筑设计, 公寓住宅设计, 建筑设计 帕拉尔大街工作室和公寓由Taller Héctor Barroso设计,位于墨西哥城康德萨社区,是一座集工作室与住宅功能于一体的混凝土建筑。项目通过双楼梯系统巧妙组织空间流线,在有限场地中创造出灵活的功能布局,展现了当代城市建筑的紧凑性与适应性。 设计: tallerhectorbarroso 类型: 建筑设计 功能: 独立住宅 风格: 当代建筑 材料: 混凝土 木材 玻璃 尺度: 小型建筑 地点:墨西哥城 时间: 2021年 项目概述 帕拉尔大街工作室和公寓位于墨西哥城康德萨社区,是一座集建筑工作室与住宅功能于一体的城市建筑。项目由Taller Héctor Barroso设计,建筑面积紧凑,设计年份为2019年,建成于2021年,体现了在高密度城市环境中对功能复合型建筑的探索。 设计理念 帕拉尔大街工作室和公寓的设计理念源于对城市肌理的尊重与回应。Taller Héctor Barroso通过将混凝土体量一分为二,使公寓面向街道、工作室朝向内部庭院花园,既保证了功能的独立性,又创造了建筑与城市的对话关系。设计强调在有限场地中实现空间的最大化利用。 空间与功能 帕拉尔大街工作室和公寓的空间组织以双楼梯系统为核心特征。两套独立的楼梯系统在每一层交叉连接但不相通,为工作室和公寓分别提供独立的垂直交通。这种设计创造了灵活的自由平面,能够适应不同用户的需求。公寓包含卧室、客厅、餐厅和厨房,工作室则设有接待区、模型工作坊和多个工作空间。 材料与技术 帕拉尔大街工作室和公寓主要采用现浇混凝土结构,外立面保持混凝土原始质感。开窗设计根据内部功能需求确定尺寸,形成具有家庭尺度的立面表情。建筑细节处理精细,包括抛光混凝土地面、木地板与混凝土瓷砖的组合,以及精心设计的门窗系统,体现了材料真实性的表达。 项目特色与启发 帕拉尔大街工作室和公寓的独特之处在于其双楼梯系统的创新应用,为复合功能建筑提供了新的空间组织模式。项目展示了如何在城市密集区域通过精心的空间规划实现功能分区与流线优化,对城市更新和小型建筑开发具有重要参考价值。 设计团队 Taller Héctor Barroso是墨西哥知名建筑事务所,专注于住宅、文化和小型公共建筑的设计。事务所擅长运用混凝土材料,注重建筑与环境的对话,在墨西哥当代建筑界具有重要影响力。帕拉尔大街工作室和公寓体现了其严谨的空间组织和材料运用的设计理念。 项目概述 帕拉尔大街工作室和公寓位于墨西哥城康德萨社区,是一座集建筑工作室与住宅功能于一体的城市建筑。项目由Taller Héctor Barroso设计,建筑面积紧凑,设计年份为2019年,建成于2021年,体现了在高密度城市环境中对功能复合型建筑的探索。 设计理念 帕拉尔大街工作室和公寓的设计理念源于对城市肌理的尊重与回应。Taller Héctor Barroso通过将混凝土体量一分为二,使公寓面向街道、工作室朝向内部庭院花园,既保证了功能的独立性,又创造了建筑与城市的对话关系。设计强调在有限场地中实现空间的最大化利用。 空间与功能 帕拉尔大街工作室和公寓的空间组织以双楼梯系统为核心特征。两套独立的楼梯系统在每一层交叉连接但不相通,为工作室和公寓分别提供独立的垂直交通。这种设计创造了灵活的自由平面,能够适应不同用户的需求。公寓包含卧室、客厅、餐厅和厨房,工作室则设有接待区、模型工作坊和多个工作空间。 材料与技术 帕拉尔大街工作室和公寓主要采用现浇混凝土结构,外立面保持混凝土原始质感。开窗设计根据内部功能需求确定尺寸,形成具有家庭尺度的立面表情。建筑细节处理精细,包括抛光混凝土地面、木地板与混凝土瓷砖的组合,以及精心设计的门窗系统,体现了材料真实性的表达。 项目特色与启发 帕拉尔大街工作室和公寓的独特之处在于其双楼梯系统的创新应用,为复合功能建筑提供了新的空间组织模式。项目展示了如何在城市密集区域通过精心的空间规划实现功能分区与流线优化,对城市更新和小型建筑开发具有重要参考价值。 设计团队 Taller Héctor Barroso是墨西哥知名建筑事务所,专注于住宅、文化和小型公共建筑的设计。事务所擅长运用混凝土材料,注重建筑与环境的对话,在墨西哥当代建筑界具有重要影响力。帕拉尔大街工作室和公寓体现了其严谨的空间组织和材料运用的设计理念。 本文来自 © tallerhectorbarroso, 发布于 © 建筑学院官方网站。 未经授权,禁止转载或摘编。 编辑版本版权归 © 建筑学院官方网站 所有, 设计、图纸及照片版权归设计方 © tallerhectorbarroso ↗ 所有。 查看作者在建筑学院发布的更多作品: tallerhectorbarroso @ 建筑学院官方网站 Studio and Apartment on Calle ParralTaller Héctor Barroso城市住宅设计墨西哥城建筑混凝土建筑 tallerhectorbarroso事务所 & 设计师 下载原图 收藏 0 关于作者 tallerhectorbarroso事务所 & 设计师 关注私信 14 文章 0 评论 0 粉丝 Taller Héctor Barroso是墨西哥知名建筑事务所,由Héctor Barroso Riba于2008年创立。工作室以"林中静谧"的设计哲学著称,擅长利用当地自然资源如植被、土壤和地理特征,创造与自然环境深度融合的建筑方案。其作品曾荣获加拿大AZ奖最佳住宅建筑奖、墨西哥双年展青年建筑师金牌等多项国际荣誉。Taller Héctor Barroso通过尊重场地文脉和采用本土材料,实现建筑与自然的和谐共生,在住宅和度假项目领域具有独特影响力。 塔卢姆六座房屋 / Six Houses in Tulum | Taller Héctor Barroso 上一篇 2026-02-19 下午9:50 Tulum的六座房屋 / Six Houses in Tulum | Taller Héctor Barroso 下一篇 2026-02-20 下午9:25 猜你喜欢 Sierra Mimbre公寓建筑 / SIERRA MIMBRES APARTMENT BUILDING | Taller Héctor Barroso 2026-02-21 住宅建筑设计 隐藏的房子 Hidden House | 斯米里扬·拉迪奇|Smiljan Radić 2025-12-07 公共建筑设计 安东尼奥·麦卡伊公寓楼 8 / ANTONIO MACEO APARTMENT BUILDING 8 | Taller Héctor Barroso 2026-02-18 住宅建筑设计 安纳阿戈拉斯公寓楼 / ANAXÁGORAS APARTMENT BUILDING | Taller Héctor Barroso 2026-02-17 住宅建筑设计 Taifong Golf Club 接待馆群 / Taifong Golf Club Reception Pavilions | 阿尔瓦罗·西扎|Álvaro Siza 2026-03-09 公共建筑设计 DDH房子扩建和翻新 / DDH HOUSE ENLARGEMENT AND RENOVATION | Taller Héctor Barroso 2026-02-21 住宅建筑设计 发表回复 请登录后评论...登录后才能评论 提交