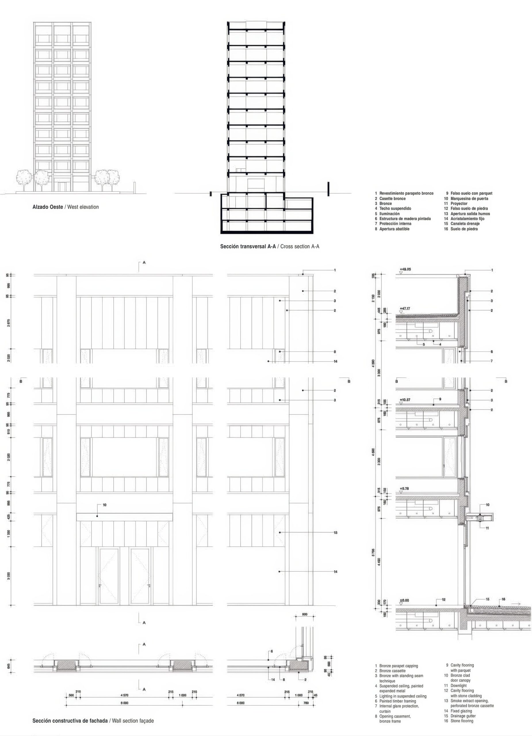
Moganshan Road 办公楼 Office Building Moganshan Road | 大卫·奇珀菲尔德建筑事务所|David Chipperfield 大卫·奇珀菲尔德建筑事务所|David Chipperfield • 2025-11-27 上午8:50 • 公共建筑设计, 建筑师, 建筑设计, 文化建筑设计 Moganshan Road 办公楼位于杭州莫干山路,是一座十层高的办公建筑。项目由大卫·奇珀菲尔德建筑事务所设计,采用清晰的几何形体,通过抬高的基座和周边灰黑色玄武岩地形处理,在城市密集环境中创造必要的空间距离。建筑外立面采用大型铜质面板,内部为无柱环形平面布局,提供灵活办公空间配置。 设计: 大卫·奇珀菲尔德建筑事务所|David Chipperfield 类型: 文化建筑设计 功能: 办公楼 风格: 现代主义 材料: 混凝土 钢材 木材 玻璃 尺度: 中型建筑 地点:杭州 时间: 2000年 项目简介 Moganshan Road 办公楼位于中国杭州莫干山路,是一座十层办公建筑,建筑面积未公开,设计建成于21世纪初。 设计理念 设计团队以清晰的几何形体在城市密集环境中确立建筑主体性,通过抬高的基座和周边地形处理,创造从城市到建筑的多样化过渡空间。 空间与功能 建筑采用周边结构框架实现内部无柱平面,标准层围绕中央核心筒形成环形大空间,可灵活划分为独立单元,支持单人、小组或开放式办公布局。 材料与技术 外立面采用大型铜质面板覆层,窗框区域使用小型铜板元素,内部核心筒和地面采用橡木饰面,外墙为白色抹灰,营造loft般的空间品质。 设计团队 大卫·奇珀菲尔德建筑事务所是国际知名建筑事务所,以精致简约的设计语言、对材料质感的敏锐把握和对城市文脉的深入理解而著称。 项目简介 Moganshan Road 办公楼位于中国杭州莫干山路,是一座十层办公建筑,建筑面积未公开,设计建成于21世纪初。 设计理念 设计团队以清晰的几何形体在城市密集环境中确立建筑主体性,通过抬高的基座和周边地形处理,创造从城市到建筑的多样化过渡空间。 空间与功能 建筑采用周边结构框架实现内部无柱平面,标准层围绕中央核心筒形成环形大空间,可灵活划分为独立单元,支持单人、小组或开放式办公布局。 材料与技术 外立面采用大型铜质面板覆层,窗框区域使用小型铜板元素,内部核心筒和地面采用橡木饰面,外墙为白色抹灰,营造loft般的空间品质。 设计团队 大卫·奇珀菲尔德建筑事务所是国际知名建筑事务所,以精致简约的设计语言、对材料质感的敏锐把握和对城市文脉的深入理解而著称。 本文来自 © 大卫·奇珀菲尔德建筑事务所|David Chipperfield, 发布于 © 建筑学院官方网站。 未经授权,禁止转载或摘编。 编辑版本版权归 © 建筑学院官方网站 所有, 设计、图纸及照片版权归设计方 © 大卫·奇珀菲尔德建筑事务所|David Chipperfield ↗ 所有。 查看作者在建筑学院发布的更多作品: 大卫·奇珀菲尔德建筑事务所|David Chipperfield @ 建筑学院官方网站 Moganshan Road办公楼办公建筑设计大卫·奇珀菲尔德杭州建筑铜质立面 大卫·奇珀菲尔德建筑事务所|David Chipperfield事务所 & 设计师 下载原图 收藏 0 关于作者 大卫·奇珀菲尔德建筑事务所|David Chipperfield事务所 & 设计师 关注私信 22 文章 0 评论 1 粉丝 大卫·奇珀菲尔德建筑事务所由2023年普利兹克奖得主大卫·奇珀菲尔德爵士于1985年创立,在伦敦、柏林、米兰、上海等地设有办公室。事务所以优雅克制、注重永恒感的设计风格闻名,尤其擅长文化建筑与历史建筑改造,代表作包括柏林新博物馆重建、上海西岸美术馆和洛克外滩源项目。 曼彻斯特科学与工业博物馆特别展览馆 Special Exhibition Gallery,Museum of Science and Industry, Manchester | 卡莫迪·格罗克建筑事务所|Carmody Groarke 上一篇 2025-11-27 上午12:50 新昌小球中心Sports Mall / line+ 下一篇 2025-11-27 下午12:36 猜你喜欢 安萨尔多文化博物馆 Ansaldo Museum of Cultures | 大卫·奇珀菲尔德建筑事务所|David Chipperfield 2025-11-18 公共建筑设计 皇家咖啡馆酒店 Hotel Café Royal | 大卫·奇珀菲尔德建筑事务所|David Chipperfield 2025-11-08 商业与综合建筑 Bötzow啤酒厂的改造 Conversion of Bötzow Brewery | 大卫·奇珀菲尔德建筑事务所|David Chipperfield 2025-11-25 公共建筑设计 诺贝尔中心 Nobel Center | 大卫·奇珀菲尔德建筑事务所|David Chipperfield 2025-11-13 公共建筑设计 巴黎瓦伦汀诺男装店 Valentino Man Store, Paris | 大卫·奇珀菲尔德建筑事务所|David Chipperfield 2025-11-05 室内设计 爱茉莉太平洋总部 Amorepacific Headquarters | 大卫·奇珀菲尔德建筑事务所|David Chipperfield 2025-11-05 公共建筑设计 发表回复 请登录后评论...登录后才能评论 提交