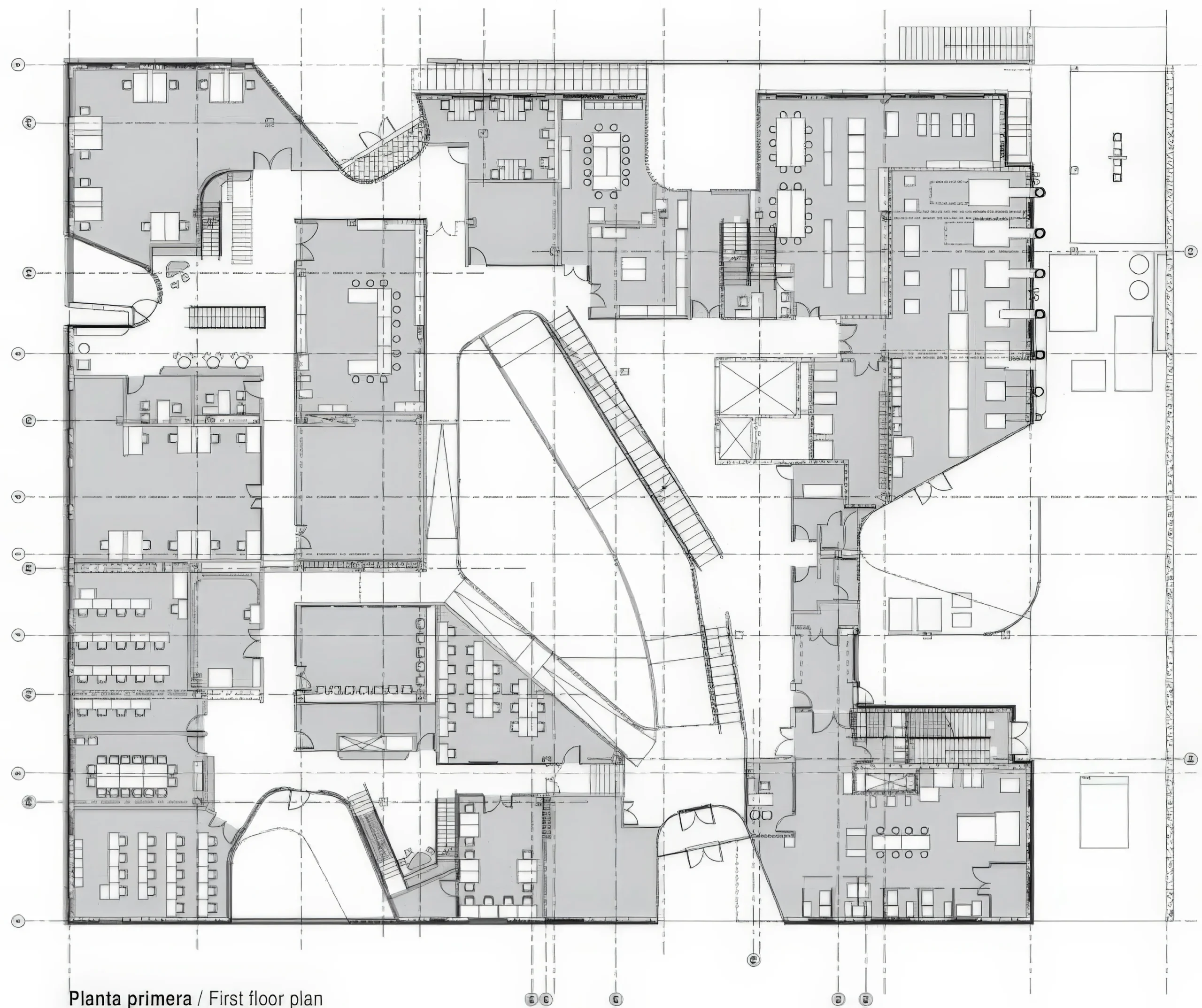
视觉艺术大楼,爱荷华大学 / Visual Arts Building, University of Iowa | 霍尔 Steven Holl 建筑学院 • 2025-11-30 下午10:48 • 公共建筑设计, 建筑师, 建筑设计, 文化建筑设计 爱荷华大学视觉艺术大楼由霍尔建筑师事务所设计,是一座四层教育建筑,为绘画、摄影、版画等艺术学科提供126,000平方英尺的开放工作室空间。建筑通过垂直孔隙和多重采光中心实现艺术学科间的互联互通,展现了当代艺术教育建筑的创新理念。 设计: 霍尔 | Steven Holl Architects 类型: 文化建筑设计 功能: 学校 风格: 当代建筑 材料: 混凝土 钢材 玻璃 金属板 尺度: 中型建筑 地点:爱荷华市 时间: 2006年 项目概述 爱荷华大学视觉艺术大楼位于美国爱荷华州爱荷华市,是一座四层教育建筑,总建筑面积126,000平方英尺。该项目由霍尔建筑师事务所设计,主要为绘画、摄影、版画、跨媒体和三维艺术等学科提供开放工作室空间,旨在促进艺术学科间的交叉融合。 设计理念 霍尔建筑师事务所通过”垂直孔隙”概念回应艺术教育的互联需求。设计采用垂直切割的开放楼层平面,创造视觉联系和空间互动,同时呼应校园网格与河流有机形态的对话,定义出新的”艺术草坪”校园空间。 空间与功能 建筑组织围绕七个垂直采光中心展开,各楼层通过错层几何形成多个阳台和室外工作空间。楼梯设计为垂直社交凝聚器,配备休息平台和家具,走廊则作为水平交流空间,促进不同艺术专业学生的自发互动与创意交流。 材料与技术 建筑采用穿孔混凝土框架结构提供热质量,配合气泡板辐射供暖冷却系统。东北和西北立面使用风化蓝绿色Rheinzink锌板,东南和西南立面采用喷砂不锈钢穿孔表皮以阻挡太阳辐射,实现自然通风和生态创新。 项目特色与启发 爱荷华大学视觉艺术大楼通过垂直孔隙和多重采光中心的创新设计,重新定义了艺术教育空间的组织模式。项目展示了如何通过建筑语言促进学科交叉,为当代教育建筑提供了空间互动与可持续发展的实践范例。 设计团队 霍尔建筑师事务所由斯蒂文·霍尔创立,以现象学建筑和空间体验设计著称。事务所在文化教育建筑领域具有丰富经验,擅长通过材料创新和光线运用创造独特的空间体验,在本项目中成功实现了艺术教育空间的革新性表达。 项目概述 爱荷华大学视觉艺术大楼位于美国爱荷华州爱荷华市,是一座四层教育建筑,总建筑面积126,000平方英尺。该项目由霍尔建筑师事务所设计,主要为绘画、摄影、版画、跨媒体和三维艺术等学科提供开放工作室空间,旨在促进艺术学科间的交叉融合。 设计理念 霍尔建筑师事务所通过”垂直孔隙”概念回应艺术教育的互联需求。设计采用垂直切割的开放楼层平面,创造视觉联系和空间互动,同时呼应校园网格与河流有机形态的对话,定义出新的”艺术草坪”校园空间。 空间与功能 建筑组织围绕七个垂直采光中心展开,各楼层通过错层几何形成多个阳台和室外工作空间。楼梯设计为垂直社交凝聚器,配备休息平台和家具,走廊则作为水平交流空间,促进不同艺术专业学生的自发互动与创意交流。 材料与技术 建筑采用穿孔混凝土框架结构提供热质量,配合气泡板辐射供暖冷却系统。东北和西北立面使用风化蓝绿色Rheinzink锌板,东南和西南立面采用喷砂不锈钢穿孔表皮以阻挡太阳辐射,实现自然通风和生态创新。 项目特色与启发 爱荷华大学视觉艺术大楼通过垂直孔隙和多重采光中心的创新设计,重新定义了艺术教育空间的组织模式。项目展示了如何通过建筑语言促进学科交叉,为当代教育建筑提供了空间互动与可持续发展的实践范例。 设计团队 霍尔建筑师事务所由斯蒂文·霍尔创立,以现象学建筑和空间体验设计著称。事务所在文化教育建筑领域具有丰富经验,擅长通过材料创新和光线运用创造独特的空间体验,在本项目中成功实现了艺术教育空间的革新性表达。 本文来自 © 建筑学院, 发布于 © 建筑学院官方网站。 未经授权,禁止转载或摘编。 编辑版本版权归 © 建筑学院官方网站 所有, 设计、图纸及照片版权归设计方 © 建筑学院 ↗ 所有。 查看作者在建筑学院发布的更多作品: 建筑学院 @ 建筑学院官方网站 Visual Arts Building教育建筑设计艺术教育空间霍尔建筑师事务所 建筑学院编辑 下载原图 收藏 0 关于作者 建筑学院编辑 关注私信 9.0K 文章 202 评论 12 粉丝 建筑学院(ArchCollege)是中国领先的建筑师移动垂直社区,成立于2012年,超过 70% 的年轻建筑师正在使用我们的产品。我们致力于通过建筑设计新媒体与在线教育平台,连接教育、行业与科技,为建筑师提供灵感与成长支持,陪伴并见证每一位青年建筑师的专业进阶与时代探索。 欧洲阿乐街办公大楼 Europaallee Office Building | 克里斯蒂安·凯雷兹|Christian Kerez 上一篇 2025-11-30 下午10:22 波特苏雷社会住房 Porto Seguro Social Housing | 克里斯蒂安·凯雷兹|Christian Kerez 下一篇 2025-12-01 下午12:00 猜你喜欢 Vila Nova da Barquinha学校 / School in Vila Nova da Barquinha | 艾雷斯·马特乌斯建筑事务所|Aires Mateus 2025-11-16 公共建筑设计 大学校园系统理论模型 / Theoretical Model for a System of University Campuses | Dogma 2026-01-25 概念建筑 科克兰创新中心 / Innovation Centre in Concepción | Pezo Von Ellrichshausen 2026-02-02 公共建筑设计 赫赫斯特大学经济学院 / Faculty of Economics, Ghent University | Xaveer de Geyter 2026-02-27 公共建筑设计 舞与文本设计学院的扩展,伯尔尼 / Extension for the School of Dance and Textile Design, Bern | 巴罗齐与维加建筑事务所|Barozzi Veiga 2025-11-14 公共建筑设计 陶土展馆 / Clay Pavilion in Oaxaca | 阿尔瓦罗·西扎|Álvaro Siza 2026-03-16 公共建筑设计 发表回复 请登录后评论...登录后才能评论 提交