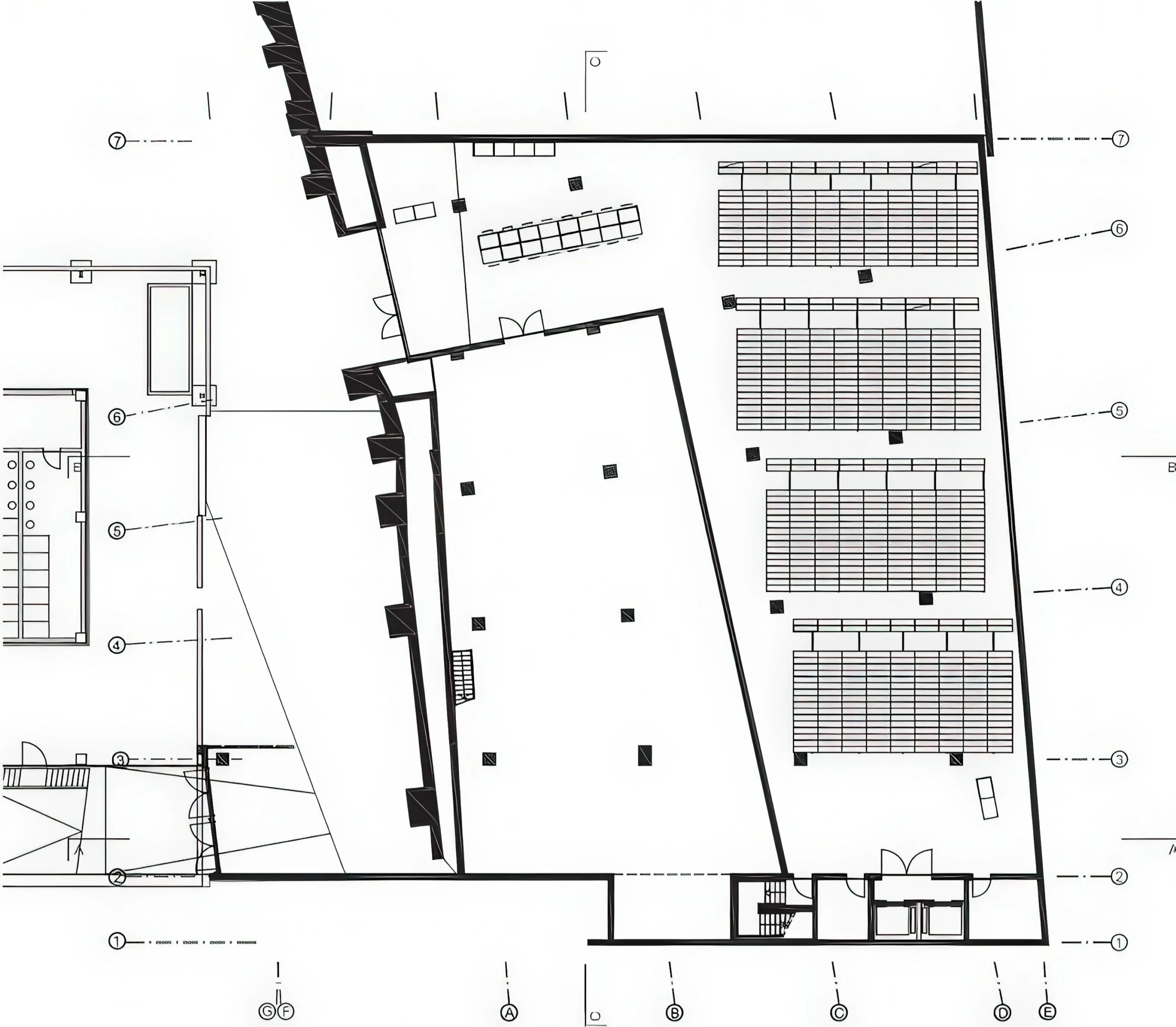
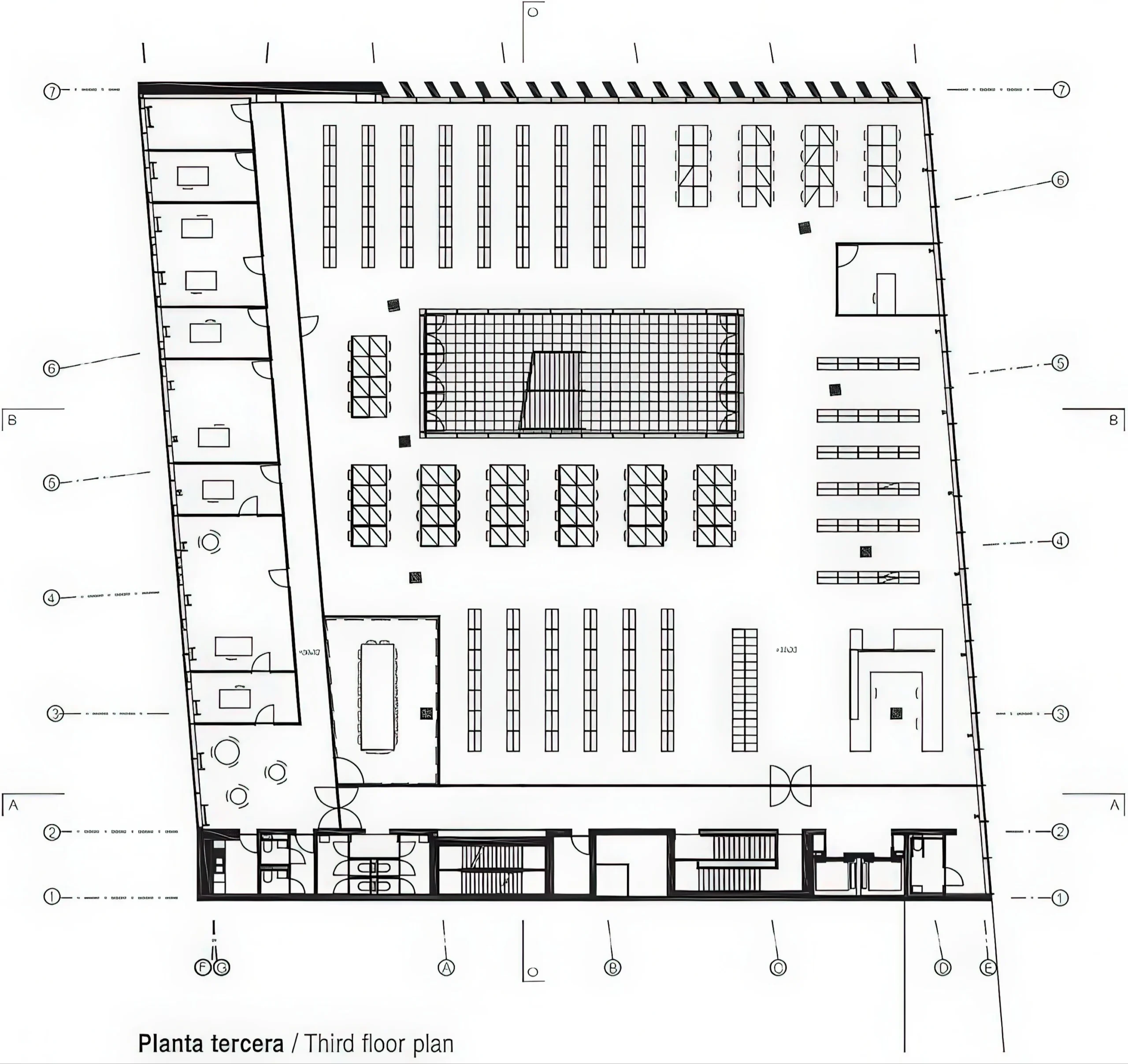
赫赫斯特大学经济学院 / Faculty of Economics, Ghent University | Xaveer de Geyter XaveerdeGeyter • 2026-02-27 下午1:36 • 公共建筑设计, 建筑设计, 教育建筑设计 赫赫斯特大学经济学院由Xaveer de Geyter设计,位于比利时根特市中心校区,是一座教育建筑。项目通过总体规划整合新旧建筑,以人行步道连接内外空间,采用混合结构系统实现功能堆叠与流畅动线。 设计: XaveerdeGeyter 类型: 教育建筑设计 功能: 大学 风格: 当代建筑 材料: 混凝土 钢材 玻璃 尺度: 中型建筑 地点:根特 时间: 2006年 项目概述 赫赫斯特大学经济学院位于比利时根特市中心校区,是一座教育建筑,设计于2001年并于2006年建成。项目通过总体规划整合校园空间,以创新的建筑语言回应复杂地形与功能需求。 设计理念 Xaveer de Geyter的设计以校园总体规划为基础,将建筑”嫁接”于主要人行步道上,形成建筑被路径穿透的独特空间关系。设计回应了场地倾斜地形与多样化功能需求,创造出非规则形态的建筑体量。 空间与功能 建筑采用混合结构系统堆叠不同功能,垂直交通核集中布置于步道一侧,另一侧设置双层高门厅。门厅向下延伸形成地下通道连接旧教学楼,顶部设置礼堂并通过环绕走廊连接教师会议室。顶层图书馆围绕庭院布置,结合办公空间。 材料与技术 建筑采用扩大的柱网网格、外部结构肋和大型钢桁架梁组成的混合结构体系。前后立面为全玻璃幕墙并向外悬挑,两侧立面采用混凝土材质,一侧为实墙,另一侧为20米高混凝土肋结构。 项目特色与启发 赫赫斯特大学经济学院展示了如何在城市校园环境中通过建筑与路径的融合创造连贯的空间体验。Xaveer de Geyter的设计为教育建筑提供了功能整合与空间创新的参考范例。 设计团队 Xaveer de Geyter是比利时知名建筑事务所,以城市设计与建筑项目的创新方法著称。事务所在教育建筑、城市更新领域具有丰富经验,擅长通过建筑回应复杂的城市文脉与功能需求。 项目概述 赫赫斯特大学经济学院位于比利时根特市中心校区,是一座教育建筑,设计于2001年并于2006年建成。项目通过总体规划整合校园空间,以创新的建筑语言回应复杂地形与功能需求。 设计理念 Xaveer de Geyter的设计以校园总体规划为基础,将建筑”嫁接”于主要人行步道上,形成建筑被路径穿透的独特空间关系。设计回应了场地倾斜地形与多样化功能需求,创造出非规则形态的建筑体量。 空间与功能 建筑采用混合结构系统堆叠不同功能,垂直交通核集中布置于步道一侧,另一侧设置双层高门厅。门厅向下延伸形成地下通道连接旧教学楼,顶部设置礼堂并通过环绕走廊连接教师会议室。顶层图书馆围绕庭院布置,结合办公空间。 材料与技术 建筑采用扩大的柱网网格、外部结构肋和大型钢桁架梁组成的混合结构体系。前后立面为全玻璃幕墙并向外悬挑,两侧立面采用混凝土材质,一侧为实墙,另一侧为20米高混凝土肋结构。 项目特色与启发 赫赫斯特大学经济学院展示了如何在城市校园环境中通过建筑与路径的融合创造连贯的空间体验。Xaveer de Geyter的设计为教育建筑提供了功能整合与空间创新的参考范例。 设计团队 Xaveer de Geyter是比利时知名建筑事务所,以城市设计与建筑项目的创新方法著称。事务所在教育建筑、城市更新领域具有丰富经验,擅长通过建筑回应复杂的城市文脉与功能需求。 本文来自 © XaveerdeGeyter, 发布于 © 建筑学院官方网站。 未经授权,禁止转载或摘编。 编辑版本版权归 © 建筑学院官方网站 所有, 设计、图纸及照片版权归设计方 © XaveerdeGeyter ↗ 所有。 查看作者在建筑学院发布的更多作品: XaveerdeGeyter @ 建筑学院官方网站 Faculty of Economics Ghent UniversityXaveer de Geyter教育建筑设计校园建筑根特大学建筑 XaveerdeGeyter事务所 & 设计师 下载原图 收藏 0 关于作者 XaveerdeGeyter事务所 & 设计师 关注私信 13 文章 0 评论 0 粉丝 XDGA(Xaveer De Geyter Architects)是1988年由Xaveer De Geyter在布鲁塞尔和巴黎创立的建筑、城市与景观设计事务所。事务所以其激进的设计方法、多元的专业团队和国际化的作品著称,曾获密斯·凡·德罗奖、Bigmat奖等多项重要奖项。XDGA主张建筑不是固定功能或解决问题,而是开启场地的潜在可能,处理不确定性,容纳多样且未预见的生活场景。其作品涵盖文化、教育、居住、商业等多种类型,遍布欧洲及全球。 荷兰私人住宅,霍伊莱特 / Private house, Hoeilaart | Xaveer de Geyter 上一篇 2026-02-26 上午9:31 赫斯塔特的 Z33 博物馆 / Z33 Museum, Hasselt | Xaveer de Geyter 下一篇 2026-02-27 下午1:42 猜你喜欢 罗杰广场,布鲁塞尔 / Place Rogier, Brussels | Xaveer de Geyter 2026-02-28 公共空间设计 Weiden 中学 / Weiden Secondary School | Karamuk Kuo 建筑事务所 2025-11-07 公共建筑设计 巴塞尔大学生物医学系 Department of Biomedicine, University of Basel | 卡鲁索·圣约翰建筑事务所|Caruso St John 2025-11-22 公共建筑设计 克拉默阿克尔小学 / Krämeracker Primary School | Roger Boltshauser 2026-03-22 公共建筑设计 陶土展馆 / Clay Pavilion in Oaxaca | 阿尔瓦罗·西扎|Álvaro Siza 2026-03-05 公共建筑设计 Vila Nova da Barquinha学校 / School in Vila Nova da Barquinha | 艾雷斯·马特乌斯建筑事务所|Aires Mateus 2025-11-16 公共建筑设计 发表回复 请登录后评论...登录后才能评论 提交