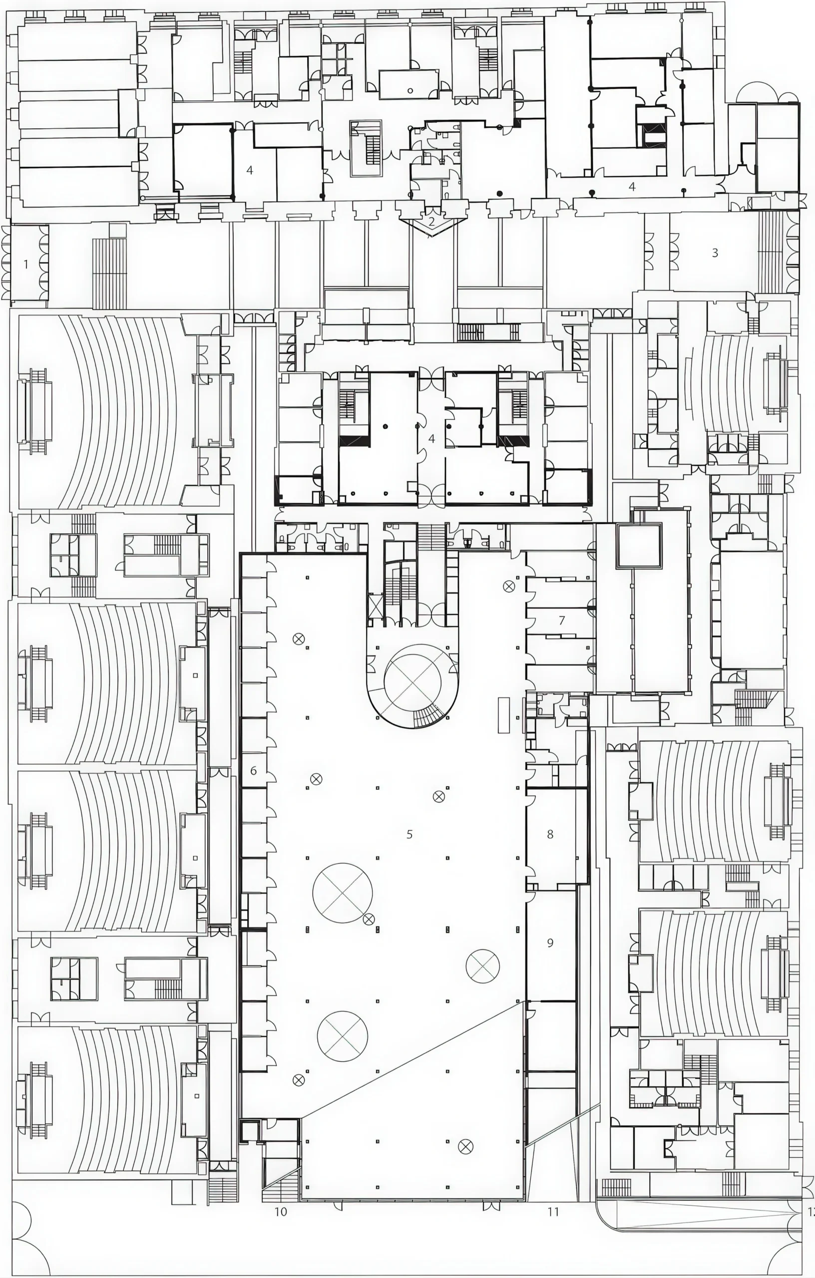
斯特拉斯堡经济学院 / Faculty of Economics, Strasbourg | Xaveer de Geyter XaveerdeGeyter • 2026-02-28 下午2:26 • 公共建筑设计, 建筑设计, 教育建筑设计 斯特拉斯堡经济学院由Xaveer de Geyter建筑事务所设计,位于法国斯特拉斯堡,通过创新的空间重组策略,将图书馆与餐厅整合于半抬高的公共广场之下,创造多层次的教育建筑空间体验。 设计: XaveerdeGeyter 类型: 教育建筑设计 功能: 大学 风格: 当代建筑 材料: 混凝土 钢材 玻璃 尺度: 中型建筑 地点:斯特拉斯堡 时间: 1970年 项目概述 斯特拉斯堡经济学院项目位于法国斯特拉斯堡,是一处教育建筑扩建与改造工程。项目包括新建图书馆、餐厅空间,以及对现有建筑内部街道的空间重组,设计周期为2013年至2020年。 设计理念 设计团队Xaveer de Geyter以”减法”策略回应学术建筑常需扩建的挑战,通过拆除利用率低的停车场等元素,将新建图书馆置于半抬高公共广场下方,餐厅则以展馆形式置于广场之上,形成独特的空间层次。 空间与功能 斯特拉斯堡经济学院的空间组织围绕内部街道展开,通过拆除部分楼板创造三层高入口空间,引入自然光线。图书馆采用单层布局,餐厅展馆通过大型开口、天窗和上升广场平面三种方式为下层图书馆提供采光。 材料与技术 项目采用现代建筑构造技术,注重自然采光与空间流动性。通过精确的结构设计实现半抬高广场与下方图书馆的空间关系,天窗设计兼具座椅功能,体现材料与功能的巧妙结合。 项目特色与启发 斯特拉斯堡经济学院项目展示了如何在有限场地内通过空间重组创造高质量教育环境,其”减法”设计策略为学术建筑扩建提供了创新思路,对城市教育空间更新具有重要参考价值。 设计团队 Xaveer de Geyter建筑事务所以其独特的空间处理手法和城市设计视角闻名,在斯特拉斯堡经济学院项目中展现了将功能需求与空间品质完美结合的设计能力。 项目概述 斯特拉斯堡经济学院项目位于法国斯特拉斯堡,是一处教育建筑扩建与改造工程。项目包括新建图书馆、餐厅空间,以及对现有建筑内部街道的空间重组,设计周期为2013年至2020年。 设计理念 设计团队Xaveer de Geyter以”减法”策略回应学术建筑常需扩建的挑战,通过拆除利用率低的停车场等元素,将新建图书馆置于半抬高公共广场下方,餐厅则以展馆形式置于广场之上,形成独特的空间层次。 空间与功能 斯特拉斯堡经济学院的空间组织围绕内部街道展开,通过拆除部分楼板创造三层高入口空间,引入自然光线。图书馆采用单层布局,餐厅展馆通过大型开口、天窗和上升广场平面三种方式为下层图书馆提供采光。 材料与技术 项目采用现代建筑构造技术,注重自然采光与空间流动性。通过精确的结构设计实现半抬高广场与下方图书馆的空间关系,天窗设计兼具座椅功能,体现材料与功能的巧妙结合。 项目特色与启发 斯特拉斯堡经济学院项目展示了如何在有限场地内通过空间重组创造高质量教育环境,其”减法”设计策略为学术建筑扩建提供了创新思路,对城市教育空间更新具有重要参考价值。 设计团队 Xaveer de Geyter建筑事务所以其独特的空间处理手法和城市设计视角闻名,在斯特拉斯堡经济学院项目中展现了将功能需求与空间品质完美结合的设计能力。 本文来自 © XaveerdeGeyter, 发布于 © 建筑学院官方网站。 未经授权,禁止转载或摘编。 编辑版本版权归 © 建筑学院官方网站 所有, 设计、图纸及照片版权归设计方 © XaveerdeGeyter ↗ 所有。 查看作者在建筑学院发布的更多作品: XaveerdeGeyter @ 建筑学院官方网站 Faculty of Economics StrasbourgXaveer de Geyter中国当代建筑教育建筑设计斯特拉斯堡建筑 XaveerdeGeyter事务所 & 设计师 下载原图 收藏 0 关于作者 XaveerdeGeyter事务所 & 设计师 关注私信 13 文章 0 评论 0 粉丝 XDGA(Xaveer De Geyter Architects)是1988年由Xaveer De Geyter在布鲁塞尔和巴黎创立的建筑、城市与景观设计事务所。事务所以其激进的设计方法、多元的专业团队和国际化的作品著称,曾获密斯·凡·德罗奖、Bigmat奖等多项重要奖项。XDGA主张建筑不是固定功能或解决问题,而是开启场地的潜在可能,处理不确定性,容纳多样且未预见的生活场景。其作品涵盖文化、教育、居住、商业等多种类型,遍布欧洲及全球。 卢塞斯艺术学院 / Sint-Lucas School of Fine Arts | Xaveer de Geyter 上一篇 2026-02-28 下午1:58 阿兹赫诺瓦尔别墅,辛特拉 / Vila Adeuzinho House, Sintra | 阿尔瓦罗·西扎|Álvaro Siza 下一篇 2026-03-01 下午8:54 猜你喜欢 卢塞斯艺术学院 / Sint-Lucas School of Fine Arts | Xaveer de Geyter 2026-02-28 公共建筑设计 新图书馆,日本女子大学 / New Library, Japan Women’s University | SANAA 2026-02-15 公共建筑设计 瓦尔拉海滨步道 / Waterfront Promenade, Vlora | Xaveer de Geyter 2026-03-01 公园景观设计 赫斯塔特的 Z33 博物馆 / Z33 Museum, Hasselt | Xaveer de Geyter 2026-02-27 公共建筑设计 弗拉门卡尔海滩中学 / ‘Playa Flamenca’ Secondary School | 阿尔弗雷多·帕亚|Alfredo Payá 2025-12-05 公共建筑设计 国际奥委会总部 / International Olympic Committee Headquarters | Xaveer de Geyter 2026-02-26 公共建筑设计 发表回复 请登录后评论...登录后才能评论 提交