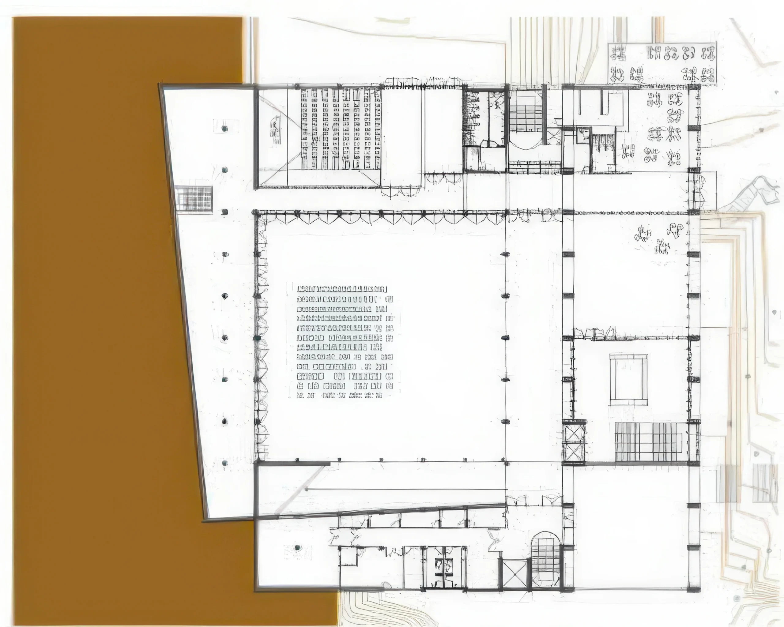
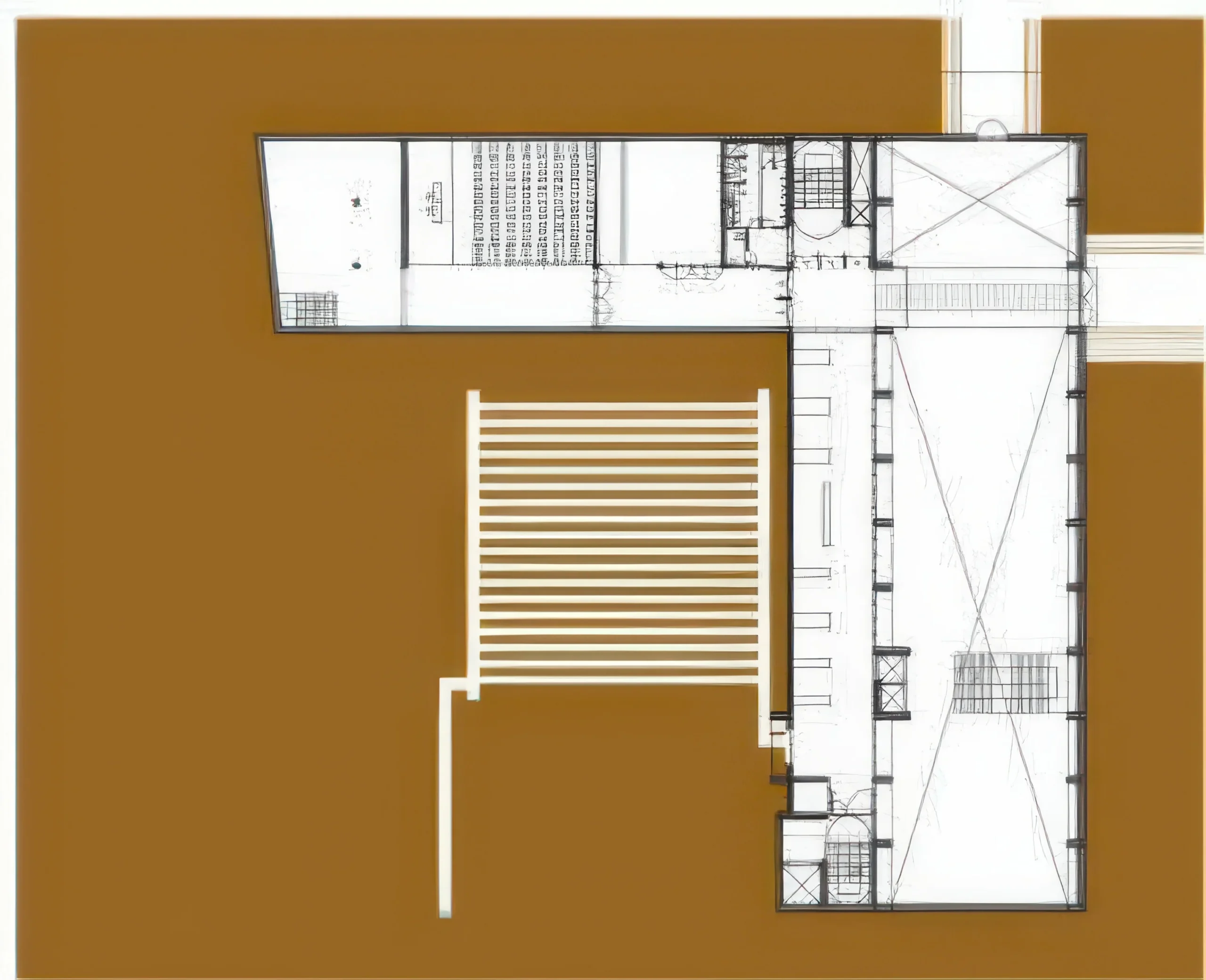
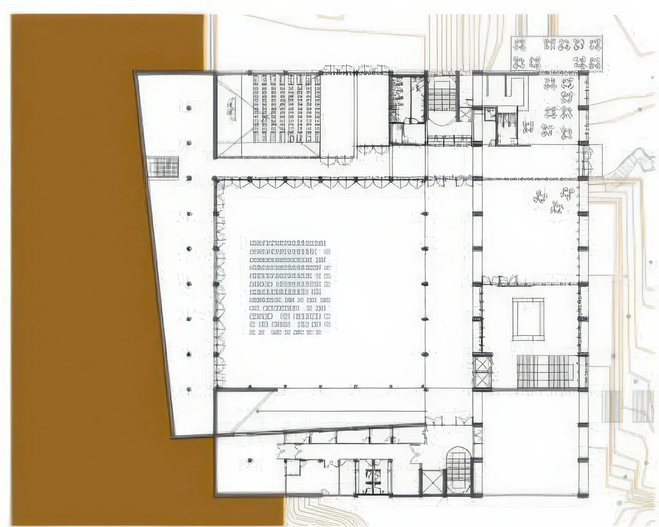
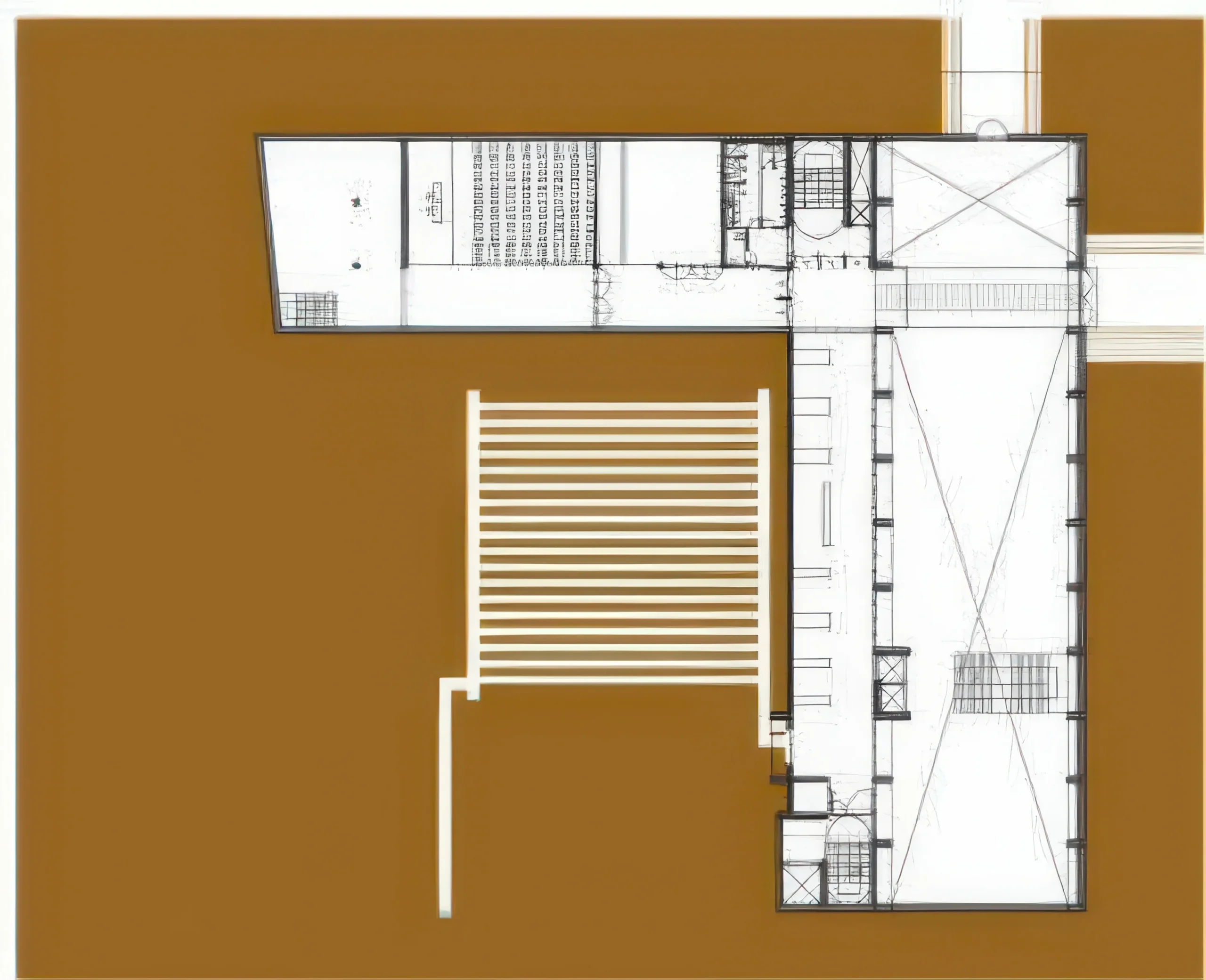
气候博物馆在莱里达 / Climate Museum in Lleida | 托尼·希罗内斯|Toni Gironès 托尼·希罗内斯|Toni Gironès • 2026-01-03 下午4:16 • 公共建筑设计, 建筑师, 建筑设计, 文化建筑设计 气候博物馆在莱里达由托尼·希罗内斯设计,位于西班牙莱里达,是一座以气候为主题的文化建筑。项目通过地形重塑与自然元素整合,创造连续微气候空间,将建筑与景观融为一体,实现零人工气候控制的可持续设计。 设计: 托尼·希罗内斯|Toni Gironès 类型: 文化建筑设计 功能: 文化中心 风格: 可持续建筑 材料: 混凝土 石材 再生材料 尺度: 中型建筑 地点:莱里达 时间: 2017年 项目概述 气候博物馆在莱里达位于西班牙莱里达市,是一座以气候为主题的文化建筑。项目始于2008年国际竞赛,通过地形重塑与景观整合,将工作面积扩大一倍以上,形成建筑与公园的连续性公共空间。 设计理念 托尼·希罗内斯质疑传统博物馆设计,将气候作为核心设计参数,模糊建筑边界,强调自然元素过渡。设计提出“容器即内容”概念,通过地形、植被与微气候创造建筑与自然的不可分割关系。 空间与功能 空间组织围绕四种自然元素展开:水循环管理湿度,空气形成高原暖风与森林通风,太阳辐射通过落叶植被调节阴影。访客在阳光高原与阴凉谷地间穿行,体验不同微气候形成的空间序列。 材料与技术 项目充分利用场地开挖材料构建新地形,激活本土植被作为设计资源。采用零人工气候控制策略,通过自然通风、遮阳与重力供水系统,将预算减半同时实现可持续性能。 项目特色与启发 气候博物馆在莱里达超越传统建筑对象概念,建立与自然元素持续对话的系统。托尼·希罗内斯的作品为文化建筑提供新范式,展示如何通过气候响应设计创造更具包容性的公共空间。 设计团队 托尼·希罗内斯是西班牙知名建筑师,其作品以对地形、材料与自然元素的敏感处理著称。在本项目中,他通过创新性的气候响应策略,重新定义了博物馆建筑的可能性。 项目概述 气候博物馆在莱里达位于西班牙莱里达市,是一座以气候为主题的文化建筑。项目始于2008年国际竞赛,通过地形重塑与景观整合,将工作面积扩大一倍以上,形成建筑与公园的连续性公共空间。 设计理念 托尼·希罗内斯质疑传统博物馆设计,将气候作为核心设计参数,模糊建筑边界,强调自然元素过渡。设计提出“容器即内容”概念,通过地形、植被与微气候创造建筑与自然的不可分割关系。 空间与功能 空间组织围绕四种自然元素展开:水循环管理湿度,空气形成高原暖风与森林通风,太阳辐射通过落叶植被调节阴影。访客在阳光高原与阴凉谷地间穿行,体验不同微气候形成的空间序列。 材料与技术 项目充分利用场地开挖材料构建新地形,激活本土植被作为设计资源。采用零人工气候控制策略,通过自然通风、遮阳与重力供水系统,将预算减半同时实现可持续性能。 项目特色与启发 气候博物馆在莱里达超越传统建筑对象概念,建立与自然元素持续对话的系统。托尼·希罗内斯的作品为文化建筑提供新范式,展示如何通过气候响应设计创造更具包容性的公共空间。 设计团队 托尼·希罗内斯是西班牙知名建筑师,其作品以对地形、材料与自然元素的敏感处理著称。在本项目中,他通过创新性的气候响应策略,重新定义了博物馆建筑的可能性。 本文来自 © 托尼·希罗内斯|Toni Gironès, 发布于 © 建筑学院官方网站。 未经授权,禁止转载或摘编。 编辑版本版权归 © 建筑学院官方网站 所有, 设计、图纸及照片版权归设计方 © 托尼·希罗内斯|Toni Gironès ↗ 所有。 查看作者在建筑学院发布的更多作品: 托尼·希罗内斯|Toni Gironès @ 建筑学院官方网站 climate-museum-in-lleida托尼·希罗内斯文化建筑莱里达文化建筑 托尼·希罗内斯|Toni Gironès事务所 & 设计师 下载原图 收藏 0 关于作者 托尼·希罗内斯|Toni Gironès事务所 & 设计师 关注私信 8 文章 4 评论 0 粉丝 托尼·希罗内斯是西班牙加泰罗尼亚地区备受瞩目的建筑师与教授。他的作品深深植根于当地环境,擅长运用本土材料与可持续策略,创造性地处理边界、光线与中间空间的过渡,以此提升空间的可居住性。其代表作如塞罗巨石陵墓文化服务空间、巴达洛纳35住宅等,都体现了对场地历史的尊重与现代的转译,展现出一种诗意的、缓慢的建筑叙事。 圣弗朗西斯科文化公园花园 / Jardim Sao Francisco Cultural Centre | Estúdio Gustavo Utrabo 上一篇 2026-01-03 下午3:08 阿瓦纳达罗之家 Avándaro House | 曼努埃尔·塞万提斯|Manuel Cervantes 下一篇 2026-01-03 下午6:20 猜你喜欢 罗马别墅博物馆 Museum for a Roman Villa | 卡鲁索·圣约翰建筑事务所|Caruso St John 2025-12-04 公共建筑设计 大剧院 Auditorium / Teatro-Auditorio | 阿尔瓦罗·西扎|Álvaro Siza 2026-03-02 公共建筑设计 曼彻斯特科学与工业博物馆特别展览馆 Special Exhibition Gallery,Museum of Science and Industry, Manchester | 卡莫迪·格罗克建筑事务所|Carmody Groarke 2025-11-27 公共建筑设计 绿线艺术中心 / Green Line Arts Center | MARKLEE 建筑事务所 2025-11-13 公共建筑设计 Seró 巨石墓/石室冢传输空间 / Seró Megalithic Tomb/Dolmen Transmitter Space | 托尼·希罗内斯|Toni Gironès 2025-11-16 公共建筑设计 国家博物馆(Qatar National Museum) National Museum of Qatar | 让·努维尔建筑事务所|Jean Nouvel 2025-12-01 公共建筑设计 发表回复 请登录后评论...登录后才能评论 提交