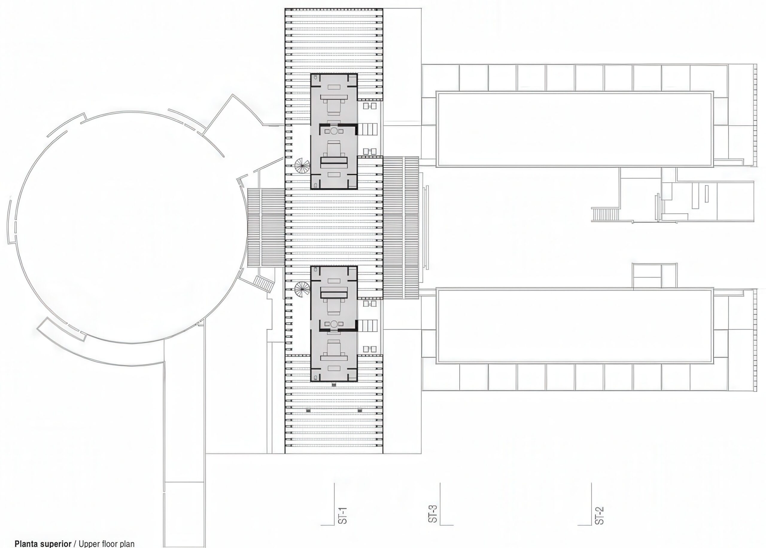
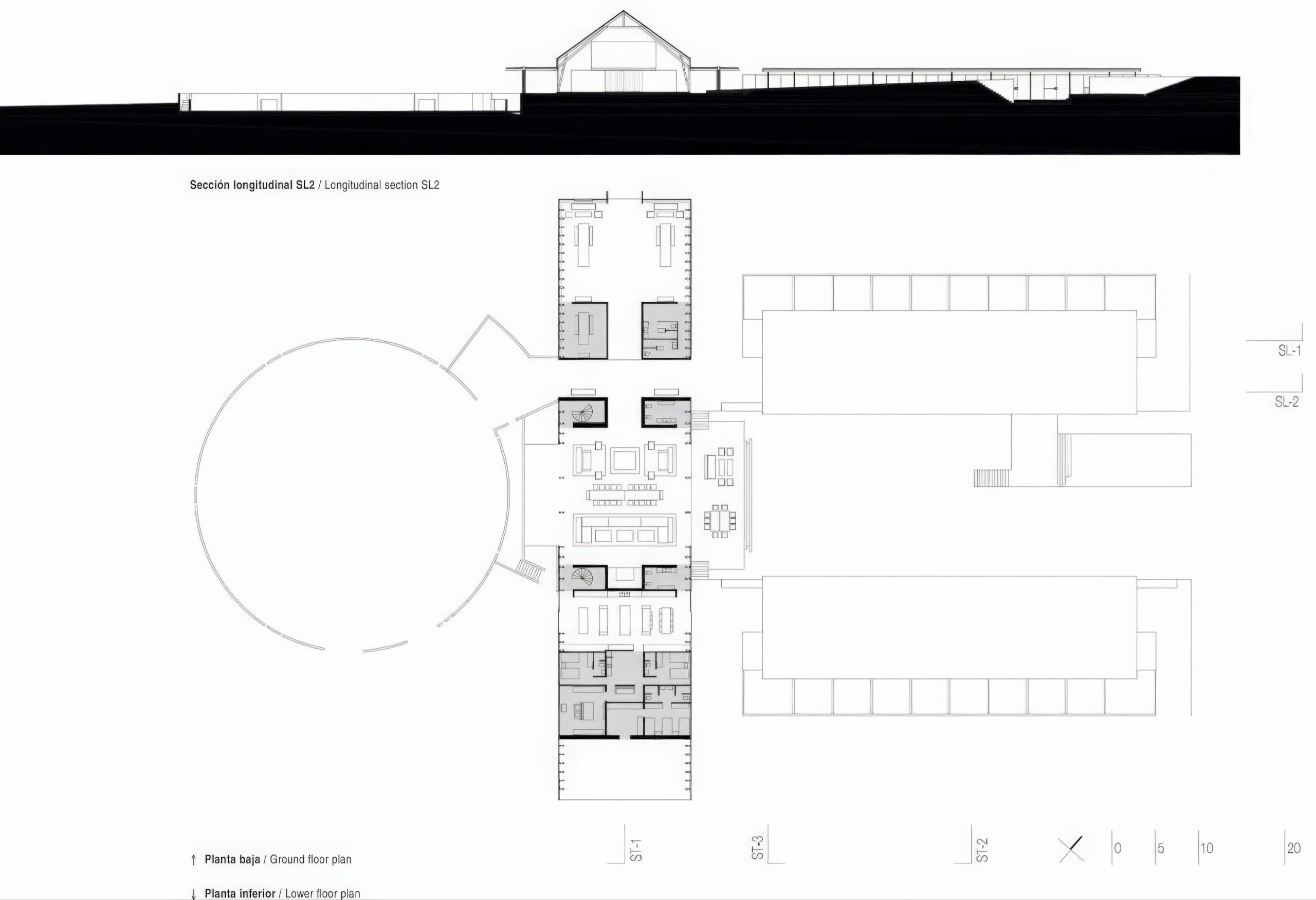
马术项目 Equestrian Project | 曼努埃尔·塞万提斯|Manuel Cervantes 曼努埃尔·塞万提斯|Manuel Cervantes • 2025-12-08 上午12:50 • 公共建筑设计, 建筑师, 建筑设计, 文化建筑设计 马术项目位于葡萄牙埃武拉,由曼努埃尔·塞万提斯设计,是一座融合住宅与马厩功能的建筑。项目巧妙利用缓坡地形,通过土方工程将马厩嵌入地形,保留山体植被视野。设计采用重复裸露木结构,营造温馨氛围,实现人与马匹亲密共处的空间体验。 设计: 曼努埃尔·塞万提斯|Manuel Cervantes 类型: 文化建筑设计 功能: 独立住宅 风格: 当代建筑 材料: 混凝土 木材 石材 金属板 尺度: 小型建筑 地点:葡萄牙 时间: 2015年 项目简介 马术项目位于葡萄牙埃武拉,是一座集住宅与马厩功能于一体的建筑。项目通过巧妙的地形处理,将建筑融入森林空地,最小化环境影响。 设计理念 设计核心是实现人与马匹的亲密共处。建筑师通过地形操作,将马厩锚固在缓坡上,保持山体植被视野的同时,通过重复裸露结构创造独特的空间氛围。 空间与功能 空间组织采用正负形体游戏,住宅与马厩通过共享路径连接。缓坡坡道引导人流,让人在漫步中逐步发现建筑。所有空间都渗透着森林、植被、空气和自然光线。 材料与技术 采用木材和金属元素构成主要结构,裸露的重复框架创造建筑真实性。使用陶瓷瓦屋顶、混凝土外墙和石材饰面,配合热绝缘和防水层,实现结构简洁与功能完善。 设计团队 曼努埃尔·塞万提斯建筑事务所专注于住宅和公共建筑,以对地形、材料和光线的敏感处理著称,善于创造与环境对话的建筑作品。 项目简介 马术项目位于葡萄牙埃武拉,是一座集住宅与马厩功能于一体的建筑。项目通过巧妙的地形处理,将建筑融入森林空地,最小化环境影响。 设计理念 设计核心是实现人与马匹的亲密共处。建筑师通过地形操作,将马厩锚固在缓坡上,保持山体植被视野的同时,通过重复裸露结构创造独特的空间氛围。 空间与功能 空间组织采用正负形体游戏,住宅与马厩通过共享路径连接。缓坡坡道引导人流,让人在漫步中逐步发现建筑。所有空间都渗透着森林、植被、空气和自然光线。 材料与技术 采用木材和金属元素构成主要结构,裸露的重复框架创造建筑真实性。使用陶瓷瓦屋顶、混凝土外墙和石材饰面,配合热绝缘和防水层,实现结构简洁与功能完善。 设计团队 曼努埃尔·塞万提斯建筑事务所专注于住宅和公共建筑,以对地形、材料和光线的敏感处理著称,善于创造与环境对话的建筑作品。 本文来自 © 曼努埃尔·塞万提斯|Manuel Cervantes, 发布于 © 建筑学院官方网站。 未经授权,禁止转载或摘编。 编辑版本版权归 © 建筑学院官方网站 所有, 设计、图纸及照片版权归设计方 © 曼努埃尔·塞万提斯|Manuel Cervantes ↗ 所有。 查看作者在建筑学院发布的更多作品: 曼努埃尔·塞万提斯|Manuel Cervantes @ 建筑学院官方网站 住宅马厩综合体埃武拉建筑曼努埃尔·塞万提斯木结构建筑马术项目 曼努埃尔·塞万提斯|Manuel Cervantes事务所 & 设计师 下载原图 收藏 0 关于作者 曼努埃尔·塞万提斯|Manuel Cervantes事务所 & 设计师 关注私信 19 文章 0 评论 0 粉丝 曼努埃尔·塞万提斯是墨西哥极具影响力的新生代建筑师。他的事务所以对材料、光线与构造的深刻理解和娴熟运用而闻名,尤其擅长运用夯土、木材和混凝土等本土材料,创造出与场地和环境紧密相连的现代建筑。其作品涵盖住宅、文化及商业项目,展现了简洁、宁静而富有 tactile 质感的设计美学。 巴西贝萨雷斯保护区两座房子 | 曼努埃尔·塞万提斯|Manuel Cervantes 上一篇 2025-12-07 下午5:00 铜屋II Copper House II | 孟买工作室(Studio Mumbai)|Studio Mumbai 下一篇 2025-12-08 上午8:50 猜你喜欢 玫瑰渡口运输交换点 El Rosario Transport Interchange | 曼努埃尔·塞万提斯|Manuel Cervantes 2025-12-10 公共建筑设计 迪森尼斯修道院农场 / Disentis Monastery Farm | 吉翁·A·卡米纳达|Gion A. Caminada 2天前 公共空间设计 阿瓦纳达罗之家 Avándaro House | 曼努埃尔·塞万提斯|Manuel Cervantes 2026-01-03 住宅建筑设计 阿马特佩克的房子 House in Amatepec | 曼努埃尔·塞万提斯|Manuel Cervantes 2025-12-04 公共建筑设计 Obernau村酒店 / Guesthouse in Obernau | 吉翁·A·卡米纳达|Gion A. Caminada 4天前 商业与综合建筑 多内塞尔大厦 Donceles Building | 曼努埃尔·塞万提斯|Manuel Cervantes 2025-12-09 公共建筑设计 发表回复 请登录后评论...登录后才能评论 提交