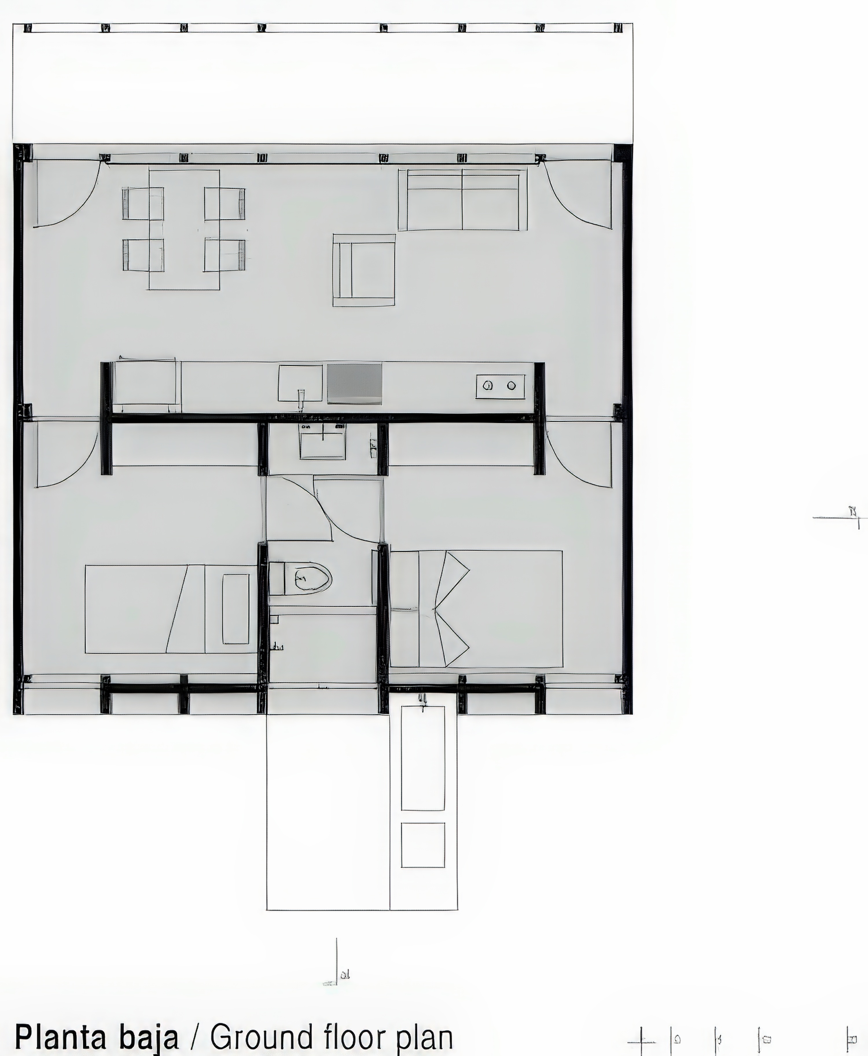
三个农村住房原型 Three Rural Housing Prototypes | 曼努埃尔·塞万提斯|Manuel Cervantes 曼努埃尔·塞万提斯|Manuel Cervantes • 2025-12-12 上午8:50 • 住宅室内设计, 住宅建筑设计, 公共建筑设计, 室内设计, 建筑师, 建筑设计, 文化建筑设计, 独立住宅, 独立住宅设计 曼努埃尔·塞万提斯建筑事务所设计的三个农村住房原型项目,分别位于墨西哥普埃布拉、恰帕斯和杜兰戈地区。这些住宅采用模块化设计,针对不同气候条件优化生物气候性能,通过被动式设计策略实现室内外空间的无缝过渡,为墨西哥农村地区的自建住宅提供了创新解决方案。 设计: 曼努埃尔·塞万提斯|Manuel Cervantes 类型: 独立住宅设计 功能: 独立住宅 风格: 可持续建筑 材料: 木材 砖材 金属板 尺度: 小型建筑 地点:墨西哥 时间: 2017年 项目简介 三个农村住房原型项目由曼努埃尔·塞万提斯设计,分别位于墨西哥普埃布拉(2017年)、恰帕斯(2015年)和杜兰戈(2016年)。项目为小型住宅建筑,每个原型建筑面积约80-100平方米,旨在改善墨西哥农村地区的自建住宅条件。 设计理念 设计团队以生物气候设计为核心策略,针对不同地区的气候特征(温带、湿热、干燥)开发适应性解决方案。通过优化建筑朝向、通风系统和遮阳策略,实现能源效率最大化,同时强调社区参与和本土建造技术的应用。 空间与功能 每个原型均采用三模块布局,包含社交区域、两个卧室、厨房和卫生间。空间组织注重室内外连通性,通过可扩展的社交区域和交叉通风设计,创造灵活的生活体验。建筑布局充分考虑功能分区与气候响应。 材料与技术 项目采用本土材料包括夯土砖、木材、镀锌钢板和天然纤维。技术策略包括双层屋顶隔热系统、热烟囱通风、抬升地基促进空气流通,以及利用植被作为自然遮阳屏障,实现被动式温度调节。 设计团队 曼努埃尔·塞万提斯建筑事务所是墨西哥知名设计机构,专注于社会住宅和可持续建筑。团队擅长将传统建造技术与现代设计方法结合,致力于通过建筑改善社区生活质量。 项目简介 三个农村住房原型项目由曼努埃尔·塞万提斯设计,分别位于墨西哥普埃布拉(2017年)、恰帕斯(2015年)和杜兰戈(2016年)。项目为小型住宅建筑,每个原型建筑面积约80-100平方米,旨在改善墨西哥农村地区的自建住宅条件。 设计理念 设计团队以生物气候设计为核心策略,针对不同地区的气候特征(温带、湿热、干燥)开发适应性解决方案。通过优化建筑朝向、通风系统和遮阳策略,实现能源效率最大化,同时强调社区参与和本土建造技术的应用。 空间与功能 每个原型均采用三模块布局,包含社交区域、两个卧室、厨房和卫生间。空间组织注重室内外连通性,通过可扩展的社交区域和交叉通风设计,创造灵活的生活体验。建筑布局充分考虑功能分区与气候响应。 材料与技术 项目采用本土材料包括夯土砖、木材、镀锌钢板和天然纤维。技术策略包括双层屋顶隔热系统、热烟囱通风、抬升地基促进空气流通,以及利用植被作为自然遮阳屏障,实现被动式温度调节。 设计团队 曼努埃尔·塞万提斯建筑事务所是墨西哥知名设计机构,专注于社会住宅和可持续建筑。团队擅长将传统建造技术与现代设计方法结合,致力于通过建筑改善社区生活质量。 本文来自 © 曼努埃尔·塞万提斯|Manuel Cervantes, 发布于 © 建筑学院官方网站。 未经授权,禁止转载或摘编。 编辑版本版权归 © 建筑学院官方网站 所有, 设计、图纸及照片版权归设计方 © 曼努埃尔·塞万提斯|Manuel Cervantes ↗ 所有。 查看作者在建筑学院发布的更多作品: 曼努埃尔·塞万提斯|Manuel Cervantes @ 建筑学院官方网站 三个农村住房原型农村住宅设计墨西哥建筑曼努埃尔·塞万提斯生物气候设计 曼努埃尔·塞万提斯|Manuel Cervantes事务所 & 设计师 下载原图 收藏 0 关于作者 曼努埃尔·塞万提斯|Manuel Cervantes事务所 & 设计师 关注私信 19 文章 0 评论 0 粉丝 曼努埃尔·塞万提斯是墨西哥极具影响力的新生代建筑师。他的事务所以对材料、光线与构造的深刻理解和娴熟运用而闻名,尤其擅长运用夯土、木材和混凝土等本土材料,创造出与场地和环境紧密相连的现代建筑。其作品涵盖住宅、文化及商业项目,展现了简洁、宁静而富有 tactile 质感的设计美学。 A Mews Collection A Mews Collection | 6a 建筑事务所|6a architects 上一篇 2025-12-11 下午9:03 河边小屋 Huts on the River | 艾雷斯·马特乌斯建筑事务所|Aires Mateus 下一篇 2025-12-13 下午8:51 猜你喜欢 Next Hydroponic Plant Next Hydroponic Plant | 曼努埃尔·塞万提斯|Manuel Cervantes 2025-12-04 公共建筑设计 Ventanas Villas” Ventanas Villas | 曼努埃尔·塞万提斯|Manuel Cervantes 2025-12-03 公共建筑设计 双座屋及工作室,阿玛特帕克 Two Houses and Studio, Amatepec | 曼努埃尔·塞万提斯|Manuel Cervantes 2025-12-08 住宅室内设计 帕内拉山谷住宅 House in Valle La Peña | 曼努埃尔·塞万提斯|Manuel Cervantes 2025-12-11 住宅室内设计 Equestrian Puebla Equestrian Puebla | 曼努埃尔·塞万提斯|Manuel Cervantes 2026-01-05 建筑师 艾尔·乌罗奎迪奥帕拉兹 El Orquideario Pavilion | 曼努埃尔·塞万提斯|Manuel Cervantes 2025-12-07 公共建筑设计 发表回复 请登录后评论...登录后才能评论 提交