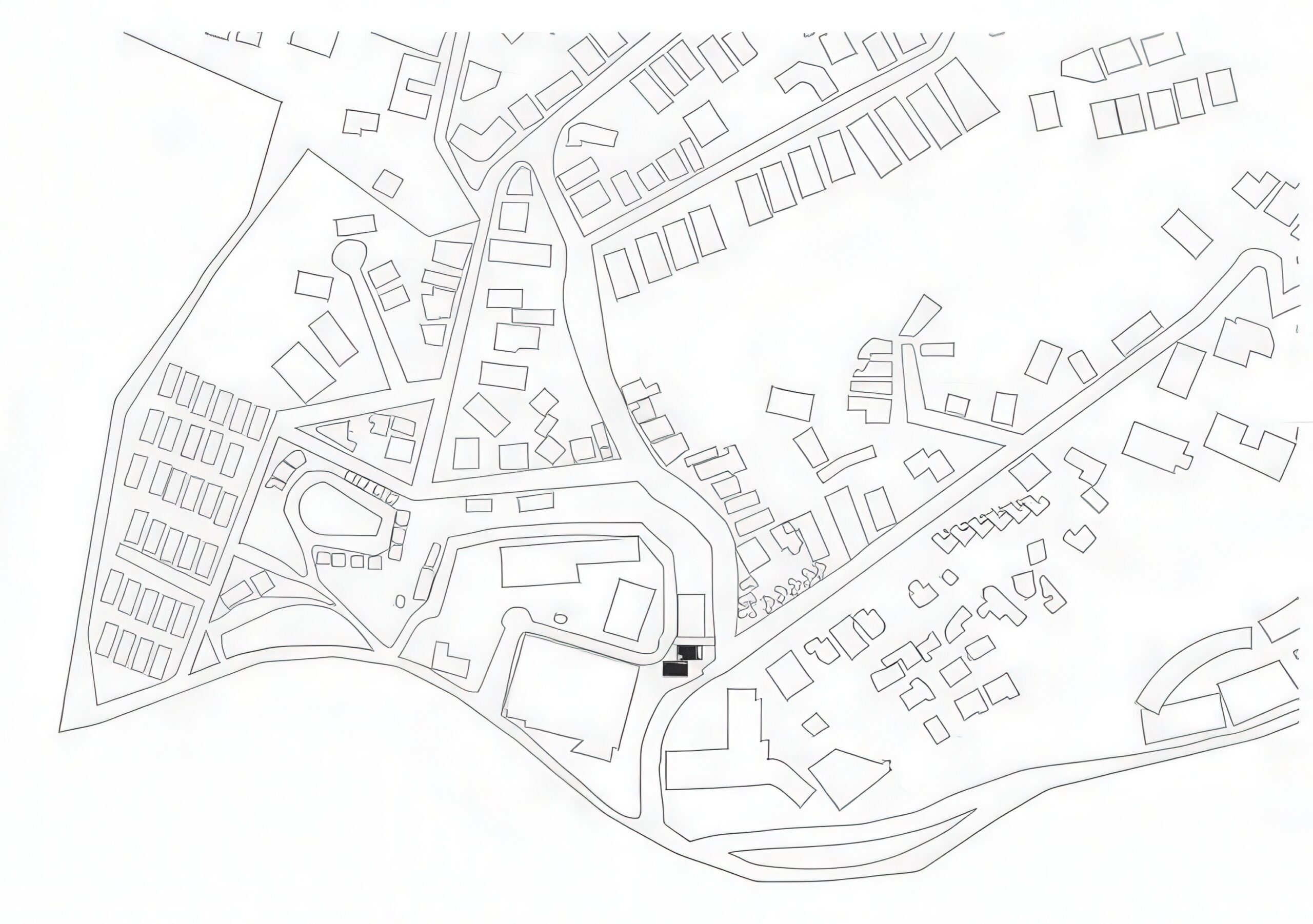
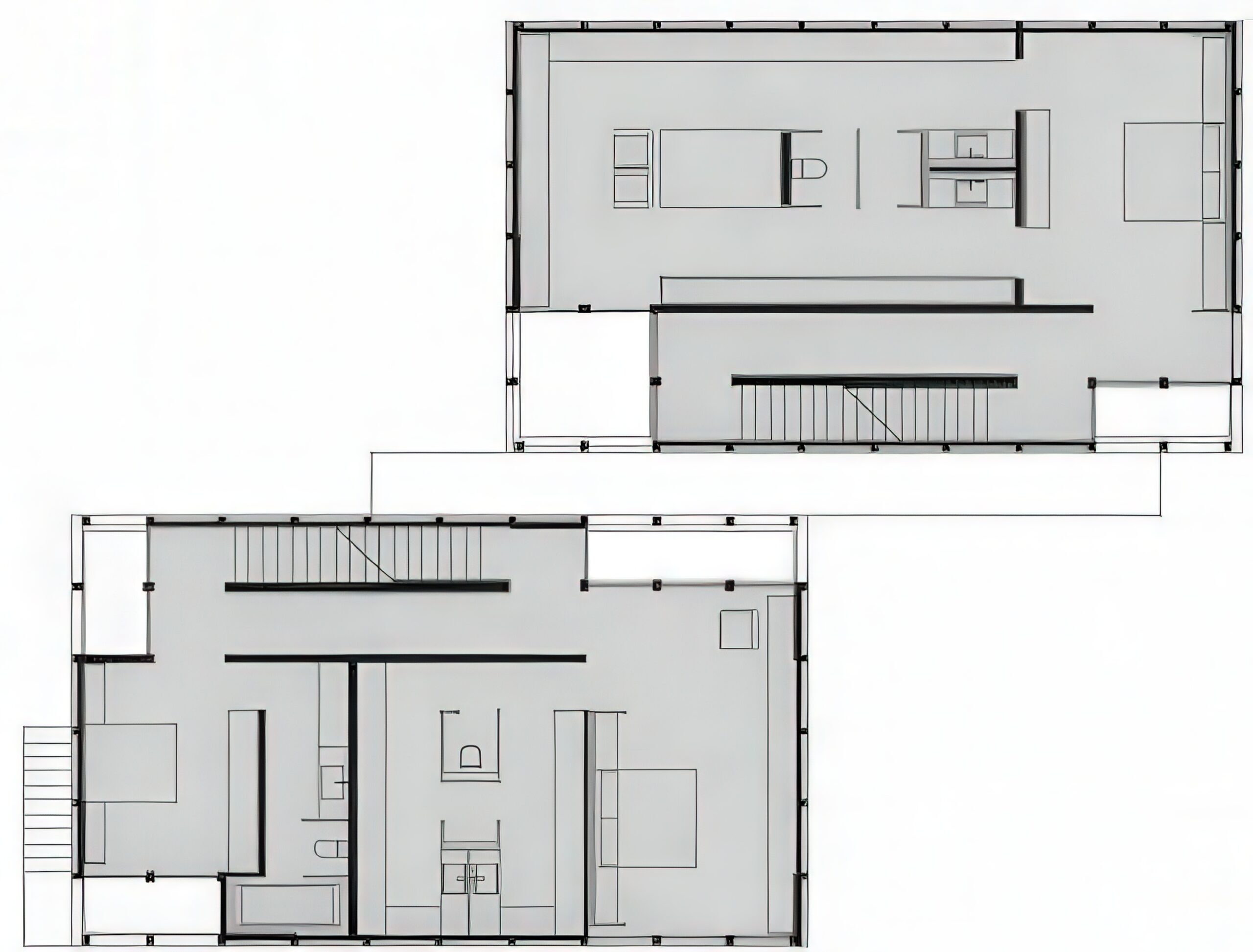
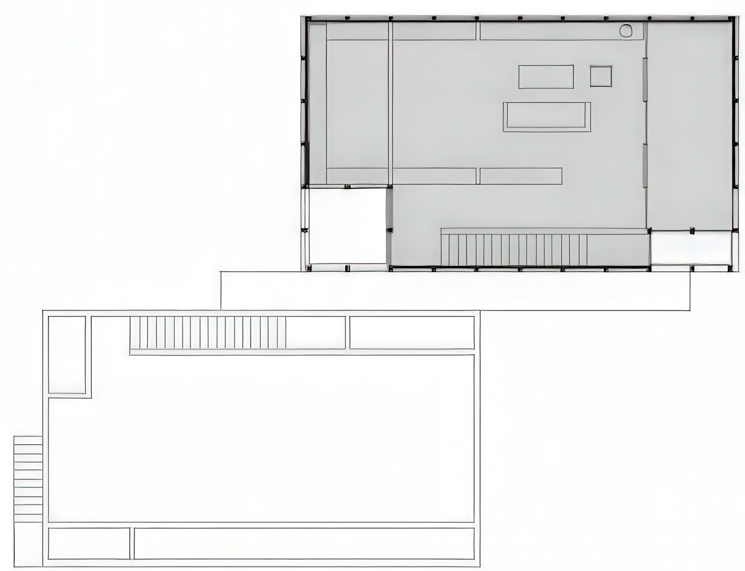
巴西贝萨雷斯保护区两座房子 | 曼努埃尔·塞万提斯|Manuel Cervantes 曼努埃尔·塞万提斯|Manuel Cervantes • 2025-12-07 下午5:00 • 公共建筑设计, 建筑师, 建筑设计, 文化建筑设计 巴西贝萨雷斯保护区两座房子位于墨西哥城,由曼努埃尔·塞万提斯设计。项目采用1.50×1.50米网格模块化设计,两栋住宅依地形错落布置,通过钢结构框架和盲立面处理,创造私密空间与绿色庭院。设计巧妙应对场地限制,实现功能分区与视觉通透。 设计: 曼努埃尔·塞万提斯|Manuel Cervantes 类型: 文化建筑设计 功能: 独立住宅 风格: 当代建筑 材料: 混凝土 钢材 玻璃 尺度: 小型建筑 地点:巴西 时间: 2016年 项目简介 巴西贝萨雷斯保护区两座房子位于墨西哥城,属于独立住宅设计。项目占地面积990平方米,每栋住宅平面尺寸为10米×8.70米,设计于2016年。 设计理念 设计团队以1.50×1.50米网格为基本模块,尊重相邻排屋高度限制,顺应自然地形坡度布局。通过暴露钢结构框架和转角开窗策略,创造视觉通透性与私密空间的平衡。 空间与功能 项目包含两栋错层住宅:1号住宅设4层,顶层为双层高社交空间连接室外区域;2号住宅为3层,屋顶设开放区域。两栋住宅共享地下服务区与独立入口,通过连接廊道实现分层出入。 材料与技术 采用钢柱梁框架结构,每层设置周边金属带增强刚性。外立面采用盲墙设计,仅在转角开窗形成视觉通廊。绿色庭院与社交区域紧密结合,提升空间品质。 设计团队 曼努埃尔·塞万提斯建筑事务所专注于住宅与城市项目,以模块化设计、结构表达和场地适应性著称,在墨西哥当代建筑领域具有重要影响力。 项目简介 巴西贝萨雷斯保护区两座房子位于墨西哥城,属于独立住宅设计。项目占地面积990平方米,每栋住宅平面尺寸为10米×8.70米,设计于2016年。 设计理念 设计团队以1.50×1.50米网格为基本模块,尊重相邻排屋高度限制,顺应自然地形坡度布局。通过暴露钢结构框架和转角开窗策略,创造视觉通透性与私密空间的平衡。 空间与功能 项目包含两栋错层住宅:1号住宅设4层,顶层为双层高社交空间连接室外区域;2号住宅为3层,屋顶设开放区域。两栋住宅共享地下服务区与独立入口,通过连接廊道实现分层出入。 材料与技术 采用钢柱梁框架结构,每层设置周边金属带增强刚性。外立面采用盲墙设计,仅在转角开窗形成视觉通廊。绿色庭院与社交区域紧密结合,提升空间品质。 设计团队 曼努埃尔·塞万提斯建筑事务所专注于住宅与城市项目,以模块化设计、结构表达和场地适应性著称,在墨西哥当代建筑领域具有重要影响力。 本文来自 © 曼努埃尔·塞万提斯|Manuel Cervantes, 发布于 © 建筑学院官方网站。 未经授权,禁止转载或摘编。 编辑版本版权归 © 建筑学院官方网站 所有, 设计、图纸及照片版权归设计方 © 曼努埃尔·塞万提斯|Manuel Cervantes ↗ 所有。 查看作者在建筑学院发布的更多作品: 曼努埃尔·塞万提斯|Manuel Cervantes @ 建筑学院官方网站 墨西哥城巴西贝萨雷斯保护区两座房子曼努埃尔·塞万提斯独立住宅设计钢结构 曼努埃尔·塞万提斯|Manuel Cervantes事务所 & 设计师 下载原图 收藏 0 关于作者 曼努埃尔·塞万提斯|Manuel Cervantes事务所 & 设计师 关注私信 19 文章 0 评论 0 粉丝 曼努埃尔·塞万提斯是墨西哥极具影响力的新生代建筑师。他的事务所以对材料、光线与构造的深刻理解和娴熟运用而闻名,尤其擅长运用夯土、木材和混凝土等本土材料,创造出与场地和环境紧密相连的现代建筑。其作品涵盖住宅、文化及商业项目,展现了简洁、宁静而富有 tactile 质感的设计美学。 重构斯德哥尔摩市图书馆项目 Restructuring Stockholm City Library | 卡鲁索·圣约翰建筑事务所|Caruso St John 上一篇 2025-12-07 上午8:50 圣加尔教堂钟楼 St Gallen Cathedral Chancel | 卡鲁索·圣约翰建筑事务所|Caruso St John 下一篇 2025-12-08 上午12:50 猜你喜欢 帕拉蒂之家 / House in Paraty | Estúdio Gustavo Utrabo 2025-12-25 住宅建筑设计 Ventanas Villas” Ventanas Villas | 曼努埃尔·塞万提斯|Manuel Cervantes 2025-12-03 公共建筑设计 郑智屋 / House in Chonchi | Pezo Von Ellrichshausen 2026-02-04 住宅建筑设计 梅尔迪斯的房子 II / House in Melides II | 艾雷斯·马特乌斯建筑事务所 2025-11-11 公共建筑设计 时光之家 / House in Time | 艾雷斯·马特乌斯建筑事务所 2025-11-09 住宅室内设计 CASA EN FONTINHA / House in Fontinha | 艾雷斯·马特乌斯建筑事务所|Aires Mateus 2025-11-14 公共建筑设计 发表回复 请登录后评论...登录后才能评论 提交