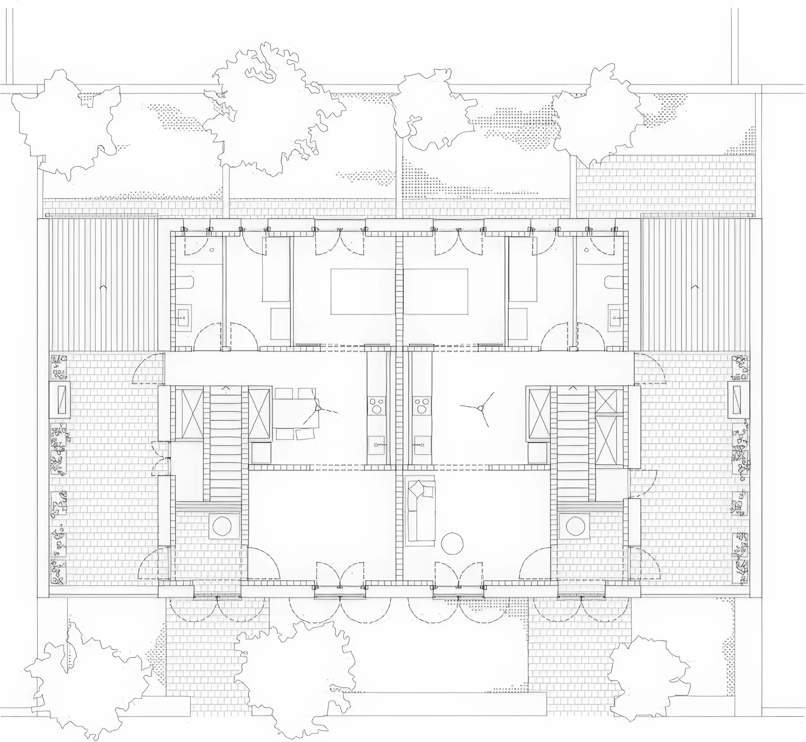
6 VPP Ses Veles / 6 Social Housing Units. Ses Veles | FORTUNY + ALVENTOSA MORELL ARQUITECTES 建筑学院 • 2025-12-19 下午7:26 • 住宅建筑设计, 公寓住宅设计, 建筑设计, 独立住宅设计 6 VPP Ses Veles 社会住宅项目由 FORTUNY + ALVENTOSA MORELL ARQUITECTES 设计,位于西班牙马略卡岛普伊格普尼恩特市 Ses Veles 新区。该项目包含6套住宅单元,采用创新的可持续设计策略,通过被动式气候调节和本土材料应用,实现建筑与周边城乡环境的和谐共生。 设计: ARQUITECTES 类型: 独立住宅设计 功能: 公寓住宅 风格: 可持续建筑 材料: 混凝土 木材 石材 再生材料 尺度: 小型建筑 地点:普伊格普尼恩特 时间: 2021年 项目概述 6 VPP Ses Veles 社会住宅项目位于西班牙马略卡岛普伊格普尼恩特市的 Ses Veles 新区,由 FORTUNY + ALVENTOSA MORELL ARQUITECTES 设计。项目包含6套住宅单元,其中4套为一居室58平方米地面层住宅,2套为两居室83平方米上层住宅,设计始于2021年,目前仍在建设中。 设计理念 6 VPP Ses Veles 项目的设计理念源于场地作为城市与乡村交界处的特殊位置,建筑作为两种现实之间的”铰链”。设计团队通过现代建筑语言重新诠释当地传统建筑元素,在保持当代性的同时尊重地域文脉,实现新旧环境的有机融合。 空间与功能 6 VPP Ses Veles 住宅采用开放、灵活且无差别的空间组织方式,通过三个结构跨度的叠加形成空间逻辑,其中厨房作为核心空间。服务空间(浴室和洗衣房)与垂直连接集中在平面两个中心点,释放其余可用空间。所有住宅均为穿堂式布局,拥有东西双向朝向,西向临街,东向面向庭院,有效改善室内空气质量。 材料与技术 6 VPP Ses Veles 项目外墙采用石灰建造的巨石墙,使用回收软木屑作为保温材料,基础开挖的土石方直接用于立面材料。木制门窗和遮阳系统,屋顶在冬季作为集热元件,夏季作为通风空间,通过被动式策略解决建筑能耗问题,最大限度减少住宅能源消耗。 项目特色与启发 6 VPP Ses Veles 项目的特色在于其创新的可持续设计方法,通过材料循环利用和被动式气候调节技术,展示了社会住宅在环境响应性和资源效率方面的潜力。该项目为经济适用房设计提供了新的参考模式,特别是在地中海气候区的城乡过渡地带。 设计团队 FORTUNY + ALVENTOSA MORELL ARQUITECTES 是西班牙的建筑设计事务所,专注于可持续建筑与社会住宅设计。团队擅长将传统建造技艺与现代技术结合,在尊重地域文脉的同时实现建筑的环境性能优化,6 VPP Ses Veles 项目体现了其在这一领域的专业能力。 项目概述 6 VPP Ses Veles 社会住宅项目位于西班牙马略卡岛普伊格普尼恩特市的 Ses Veles 新区,由 FORTUNY + ALVENTOSA MORELL ARQUITECTES 设计。项目包含6套住宅单元,其中4套为一居室58平方米地面层住宅,2套为两居室83平方米上层住宅,设计始于2021年,目前仍在建设中。 设计理念 6 VPP Ses Veles 项目的设计理念源于场地作为城市与乡村交界处的特殊位置,建筑作为两种现实之间的”铰链”。设计团队通过现代建筑语言重新诠释当地传统建筑元素,在保持当代性的同时尊重地域文脉,实现新旧环境的有机融合。 空间与功能 6 VPP Ses Veles 住宅采用开放、灵活且无差别的空间组织方式,通过三个结构跨度的叠加形成空间逻辑,其中厨房作为核心空间。服务空间(浴室和洗衣房)与垂直连接集中在平面两个中心点,释放其余可用空间。所有住宅均为穿堂式布局,拥有东西双向朝向,西向临街,东向面向庭院,有效改善室内空气质量。 材料与技术 6 VPP Ses Veles 项目外墙采用石灰建造的巨石墙,使用回收软木屑作为保温材料,基础开挖的土石方直接用于立面材料。木制门窗和遮阳系统,屋顶在冬季作为集热元件,夏季作为通风空间,通过被动式策略解决建筑能耗问题,最大限度减少住宅能源消耗。 项目特色与启发 6 VPP Ses Veles 项目的特色在于其创新的可持续设计方法,通过材料循环利用和被动式气候调节技术,展示了社会住宅在环境响应性和资源效率方面的潜力。该项目为经济适用房设计提供了新的参考模式,特别是在地中海气候区的城乡过渡地带。 设计团队 FORTUNY + ALVENTOSA MORELL ARQUITECTES 是西班牙的建筑设计事务所,专注于可持续建筑与社会住宅设计。团队擅长将传统建造技艺与现代技术结合,在尊重地域文脉的同时实现建筑的环境性能优化,6 VPP Ses Veles 项目体现了其在这一领域的专业能力。 本文来自 © 建筑学院, 发布于 © 建筑学院官方网站。 未经授权,禁止转载或摘编。 编辑版本版权归 © 建筑学院官方网站 所有, 设计、图纸及照片版权归设计方 © 建筑学院 ↗ 所有。 查看作者在建筑学院发布的更多作品: 建筑学院 @ 建筑学院官方网站 6 Social Housing Units Ses Veles可持续住宅社会住宅设计马略卡建筑 建筑学院编辑 下载原图 收藏 0 关于作者 建筑学院编辑 关注私信 9.0K 文章 202 评论 12 粉丝 建筑学院(ArchCollege)是中国领先的建筑师移动垂直社区,成立于2012年,超过 70% 的年轻建筑师正在使用我们的产品。我们致力于通过建筑设计新媒体与在线教育平台,连接教育、行业与科技,为建筑师提供灵感与成长支持,陪伴并见证每一位青年建筑师的专业进阶与时代探索。 一个必要的经历 / Una Experiencia Necesaria | ALBERT CUCHÍ 上一篇 2025-12-19 下午6:58 The Frame – 假日度假屋 / The Frame – Holiday Retreat in Imaduwa | 帕琳达·坎南加拉|Palinda Kannangara 下一篇 2025-12-20 上午10:55 猜你喜欢 波特苏雷社会住房 Porto Seguro Social Housing | 克里斯蒂安·凯雷兹|Christian Kerez 2025-12-01 公共建筑设计 53号建筑 / 42 VPP Cós 49-53 | PERIS TORAL ARQUITECTES 2026-01-21 住宅建筑设计 6 VPP Ses Veles / 6 Social Housing Units. Ses Veles | FORTUNY + ALVENTOSA MORELL ARQUITECTES 2026-03-30 住宅建筑设计 加瓦市社会住房项目 / Social Housing in Gavá | HArquitectes 2026-01-05 住宅建筑设计 23套住宅,特龙卡 23 Housing Units, Trignac | 拉卡东与瓦萨尔建筑师事务所|Lacaton & Vassal 2025-11-12 公共建筑设计 32社交住宅于圣维泽德拉斯帕利戈 / 32 Social Dwellings in San Vicente del Raspeig | 阿尔弗雷多·帕亚|Alfredo Payá 4天前 住宅建筑设计 发表回复 请登录后评论...登录后才能评论 提交