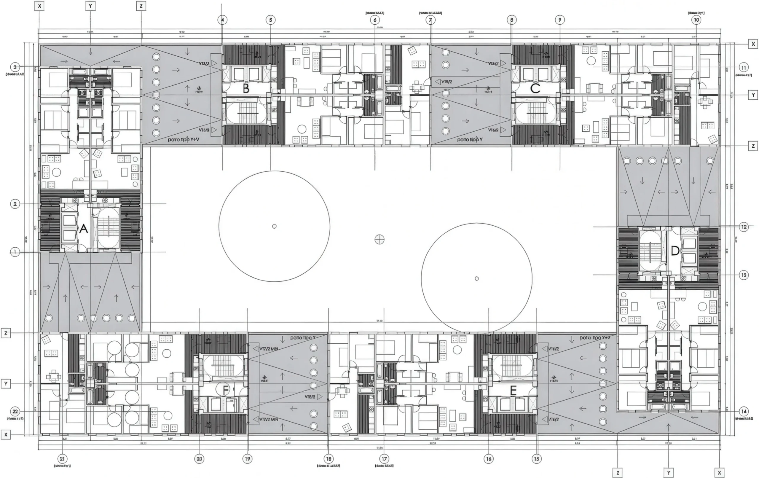
Celosía 社会住房公寓 / Celosía Social Housing Apartments | MVRDV + Blanca Lleó Arquitectos MVRDV • 2025-12-21 下午10:07 • 住宅建筑设计, 公寓住宅设计, 建筑师, 建筑设计 Celosía 社会住房公寓由 MVRDV 与 Blanca Lleó Arquitectos 联合设计,位于马德里 Sanchinarro 新区。项目通过创新的棋盘式布局打破传统封闭街区模式,创造通透的社区花园与视野,采用预制混凝土系统实现高效建造,为保障性住房提供全新设计范式。 设计: MVRDV 类型: 建筑设计 功能: 公寓住宅 风格: 当代建筑 材料: 混凝土 金属板 尺度: 中型建筑 地点: 马德里 时间: 2000年 项目概述 Celosía 社会住房公寓位于西班牙马德里 Sanchinarro 新区,是一座保障性住宅建筑。项目由 MVRDV 与 Blanca Lleó Arquitectos 联合设计,采用创新的预制混凝土系统建造,通过棋盘式布局打破传统封闭街区的单调性,创造丰富的社区空间体验。 设计理念 设计团队以”逃离封闭”为核心概念,回应马德里新区千篇一律的六层封闭街区现状。通过在每个楼层”打开”建筑体块,形成棋盘式错动布局,既打破建筑内外界限,又创造贯穿建筑的视觉通廊,有效改善社区的空间品质与居住体验。 空间与功能 建筑由八个住宅单元组成的预制模块按棋盘模式叠加构成,模块间的空隙形成社区花园。这种布局不仅提供充足的采光通风,还创造了从街道穿透建筑的多重视线,让居民在密集的城市环境中仍能享受开阔视野与绿色空间。 材料与技术 项目采用创新的预制混凝土系统,将结构、保温与饰面整合为一体。液态混凝土注入铝制模具,24小时内即可完成整个构件的生产与干燥。外表面涂覆聚氨酯涂层,在不同光照条件下产生微妙的光泽变化,增强建筑的表现力。 项目特色与启发 Celosía 社会住房公寓展示了保障性住房设计的创新可能,通过建筑形态的巧妙处理,在有限预算内实现高品质的居住环境。项目为高密度城市住宅提供了新的设计思路,证明社会性住房同样可以具备卓越的建筑品质与空间体验。 设计团队 MVRDV 是荷兰知名建筑事务所,以创新性城市规划和建筑设计著称,擅长通过研究驱动设计解决复杂的城市问题。Blanca Lleó Arquitectos 是西班牙本土事务所,在本项目中共同协作,确保设计符合当地文化背景与建造条件。 项目概述 Celosía 社会住房公寓位于西班牙马德里 Sanchinarro 新区,是一座保障性住宅建筑。项目由 MVRDV 与 Blanca Lleó Arquitectos 联合设计,采用创新的预制混凝土系统建造,通过棋盘式布局打破传统封闭街区的单调性,创造丰富的社区空间体验。 设计理念 设计团队以”逃离封闭”为核心概念,回应马德里新区千篇一律的六层封闭街区现状。通过在每个楼层”打开”建筑体块,形成棋盘式错动布局,既打破建筑内外界限,又创造贯穿建筑的视觉通廊,有效改善社区的空间品质与居住体验。 空间与功能 建筑由八个住宅单元组成的预制模块按棋盘模式叠加构成,模块间的空隙形成社区花园。这种布局不仅提供充足的采光通风,还创造了从街道穿透建筑的多重视线,让居民在密集的城市环境中仍能享受开阔视野与绿色空间。 材料与技术 项目采用创新的预制混凝土系统,将结构、保温与饰面整合为一体。液态混凝土注入铝制模具,24小时内即可完成整个构件的生产与干燥。外表面涂覆聚氨酯涂层,在不同光照条件下产生微妙的光泽变化,增强建筑的表现力。 项目特色与启发 Celosía 社会住房公寓展示了保障性住房设计的创新可能,通过建筑形态的巧妙处理,在有限预算内实现高品质的居住环境。项目为高密度城市住宅提供了新的设计思路,证明社会性住房同样可以具备卓越的建筑品质与空间体验。 设计团队 MVRDV 是荷兰知名建筑事务所,以创新性城市规划和建筑设计著称,擅长通过研究驱动设计解决复杂的城市问题。Blanca Lleó Arquitectos 是西班牙本土事务所,在本项目中共同协作,确保设计符合当地文化背景与建造条件。 本文来自 © MVRDV, 发布于 © 建筑学院官方网站。 未经授权,禁止转载或摘编。 编辑版本版权归 © 建筑学院官方网站 所有, 设计、图纸及照片版权归设计方 © MVRDV ↗ 所有。 查看作者在建筑学院发布的更多作品: MVRDV @ 建筑学院官方网站 blanca-lleo-arquitectoscelosiamadridMVRDVsocial-housing MVRDV事务所 & 设计师 下载原图 收藏 0 关于作者 MVRDV事务所 & 设计师 关注私信 19 文章 0 评论 0 粉丝 巴林王国国家馆 / National Pavilion of the Kingdom of Bahrain | 安妮·霍尔特罗普|Anne Holtrop 上一篇 2025-12-21 下午9:43 花园餐厅 / Restaurant in a Garden | Estúdio Gustavo Utrabo 下一篇 2025-12-21 下午10:30 猜你喜欢 屋顶公寓扩展项目,鹿特丹 Rooftop House Extension, Rotterdam | MVRDV 建筑事务所 2025-10-31 公共建筑设计 可移动的旅店 / MVRDV 2017-10-30 酒店建筑设计 德国海尔布隆人工智能园区创新园区 / MVRDV 2023-05-23 办公建筑设计 地拉那金字塔 / MVRDV 2023-10-25 公共建筑设计 MVRDV 新作“绿色之墅”,一个覆满植物的街角住宅 2019-08-19 住宅建筑设计 SKY VILLAGE RODOVRE MIXED-USE TOWER | MVRDV 建筑事务所皇家咖啡馆酒店 Hotel Café Royal | 大卫·奇珀菲尔德建筑事务所|David Chipperfield 2025-11-09 公共建筑设计 发表回复 请登录后评论...登录后才能评论 提交