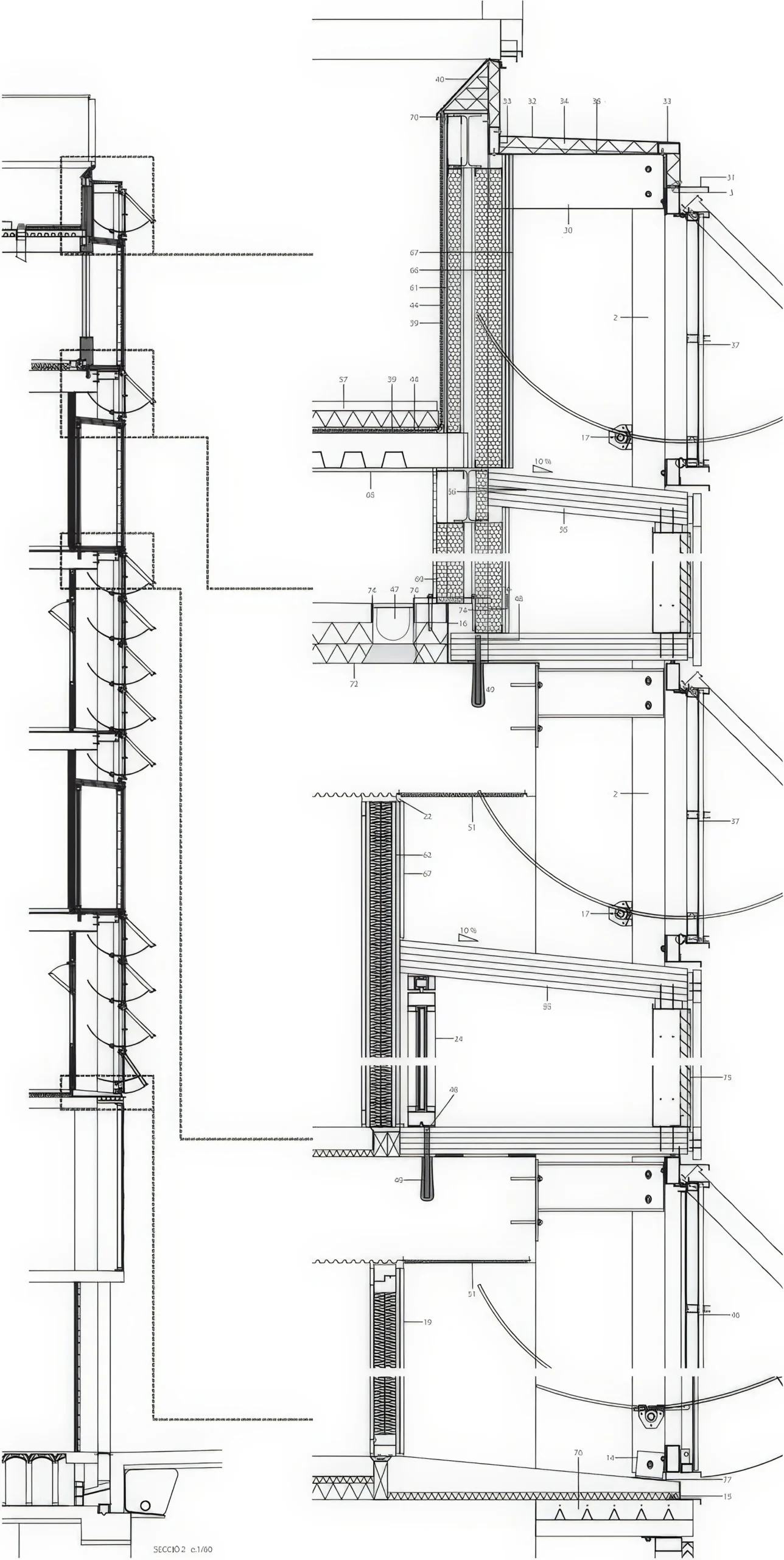
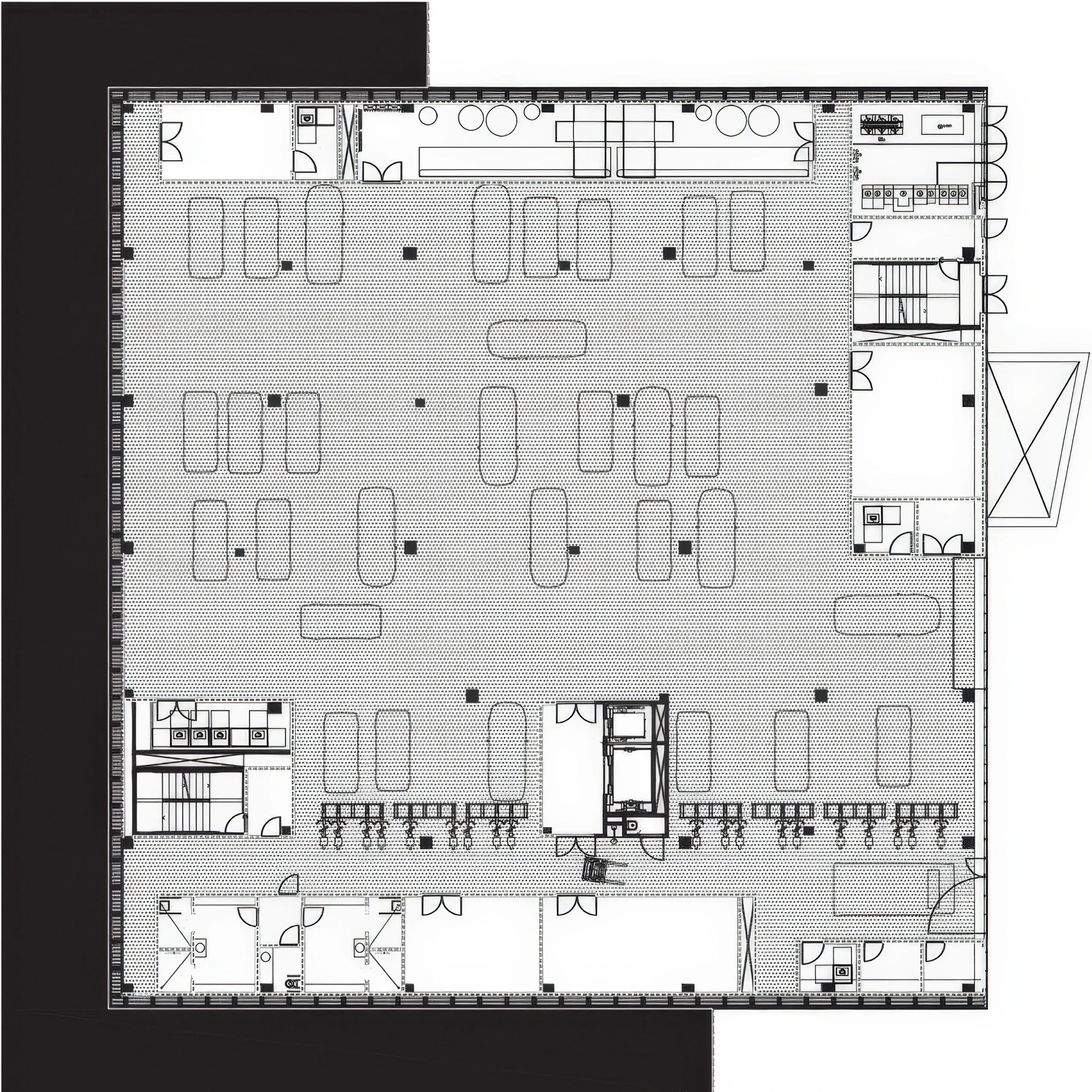
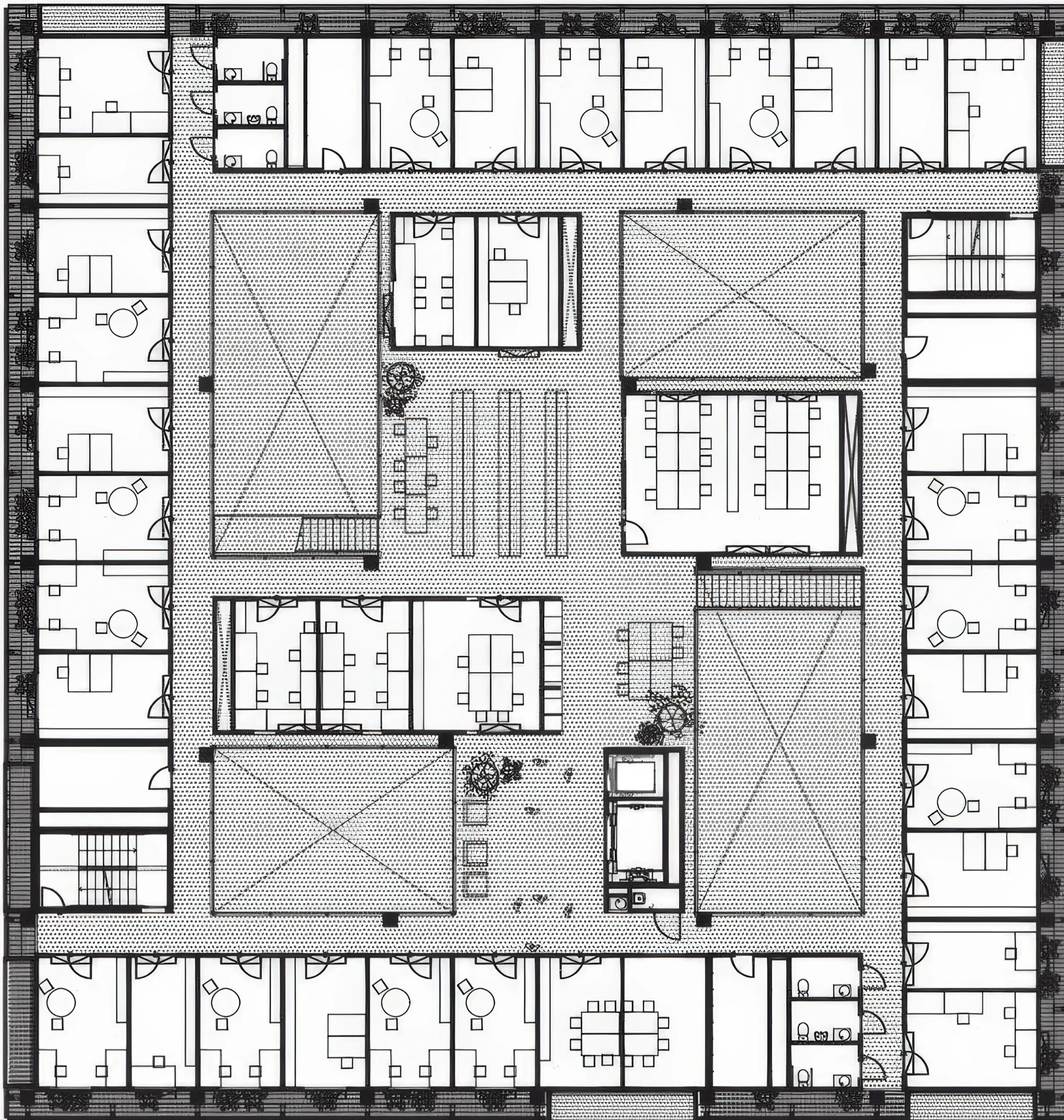
UAB ICPRC研究中心 / ICP Research Centre. UAB | HArquitectes Harquitectes 建筑师事务所|Harquitectes • 2026-02-01 下午5:13 • 公共建筑设计, 建筑设计, 教育建筑设计 UAB ICPRC研究中心由HArquitectes设计,位于西班牙巴塞罗那自治大学校园内,是一座环境科学与古生物学研究设施。该项目通过创新的生物气候策略和可持续设计,实现了能源自给自足与高度适应性,展现了当代研究建筑的生态责任与技术整合。 设计: Harquitectes 建筑师事务所|Harquitectes 类型: 教育建筑设计 功能: 研究中心 风格: 可持续建筑 材料: 混凝土 钢材 木材 玻璃 尺度: 中型建筑 地点:巴塞罗那 时间: 2014年 项目概述 UAB ICPRC研究中心位于西班牙巴塞罗那塞尔达尼奥拉-德尔巴列斯,是一座环境科学与古生物学研究设施。建筑为5层地上+2层地下结构,每层面积40×40平方米,设计于2011年,建成于2014年,荣获设计竞赛一等奖。 设计理念 HArquitectes将建筑构想为可适应未来功能转变的基础设施,核心概念是利用内部热负荷实现冬季供暖与夏季散热。设计团队通过多种互补策略,构建了一个能够主动响应环境变化的智能建筑系统。 空间与功能 建筑功能分层布局:地面层设大厅、餐厅、教室和行政办公;中间三层为办公室和实验室;屋顶设置菜园和休息区;地下层包含停车场、设备间和储藏室。四个垂直庭院贯穿建筑,连接各层空间,确保所有工作区域的自然采光与通风。 材料与技术 采用长寿命混凝土结构提供热惯性,外围护系统使用工业化温室组件构建低成本生物气候表皮。建筑整合了被动式设计、地热辐射系统和自动化控制,实现三种不同气候区域的精确调控,最大限度减少非可再生能源消耗。 项目特色与启发 UAB ICPRC研究中心展示了如何将可持续理念转化为具体建筑实践,其创新的气候调节系统和灵活的空间组织为科研建筑设计提供了新范式,对生态建筑发展具有重要参考价值。 设计团队 HArquitectes是西班牙知名建筑事务所,专注于可持续建筑与技术创新。他们在UAB ICPRC研究中心项目中展现了将环境策略与建筑形式完美融合的设计能力,通过与DATAAE的合作实现了高度集成的智能建筑系统。 项目概述 UAB ICPRC研究中心位于西班牙巴塞罗那塞尔达尼奥拉-德尔巴列斯,是一座环境科学与古生物学研究设施。建筑为5层地上+2层地下结构,每层面积40×40平方米,设计于2011年,建成于2014年,荣获设计竞赛一等奖。 设计理念 HArquitectes将建筑构想为可适应未来功能转变的基础设施,核心概念是利用内部热负荷实现冬季供暖与夏季散热。设计团队通过多种互补策略,构建了一个能够主动响应环境变化的智能建筑系统。 空间与功能 建筑功能分层布局:地面层设大厅、餐厅、教室和行政办公;中间三层为办公室和实验室;屋顶设置菜园和休息区;地下层包含停车场、设备间和储藏室。四个垂直庭院贯穿建筑,连接各层空间,确保所有工作区域的自然采光与通风。 材料与技术 采用长寿命混凝土结构提供热惯性,外围护系统使用工业化温室组件构建低成本生物气候表皮。建筑整合了被动式设计、地热辐射系统和自动化控制,实现三种不同气候区域的精确调控,最大限度减少非可再生能源消耗。 项目特色与启发 UAB ICPRC研究中心展示了如何将可持续理念转化为具体建筑实践,其创新的气候调节系统和灵活的空间组织为科研建筑设计提供了新范式,对生态建筑发展具有重要参考价值。 设计团队 HArquitectes是西班牙知名建筑事务所,专注于可持续建筑与技术创新。他们在UAB ICPRC研究中心项目中展现了将环境策略与建筑形式完美融合的设计能力,通过与DATAAE的合作实现了高度集成的智能建筑系统。 本文来自 © Harquitectes 建筑师事务所|Harquitectes, 发布于 © 建筑学院官方网站。 未经授权,禁止转载或摘编。 编辑版本版权归 © 建筑学院官方网站 所有, 设计、图纸及照片版权归设计方 © Harquitectes 建筑师事务所|Harquitectes ↗ 所有。 查看作者在建筑学院发布的更多作品: Harquitectes 建筑师事务所|Harquitectes @ 建筑学院官方网站 HarquitectesICP Research Centre可持续建筑巴塞罗那建筑研究建筑设计 Harquitectes 建筑师事务所|Harquitectes事务所 & 设计师 下载原图 收藏 0 关于作者 Harquitectes 建筑师事务所|Harquitectes事务所 & 设计师 关注私信 12 文章 0 评论 0 粉丝 Harquitectes是西班牙备受赞誉的建筑师事务所,以其对环境、材料和建造逻辑的深刻洞察而闻名。其官网harquitectes.com展示了众多获奖作品,涵盖学校、住宅及公共建筑。他们擅长运用本土、可持续的策略,创造舒适、高效且充满诗意的空间。 18世纪农舍修复 / Refurbishment of an 18th Century Farmhouse | HArquitectes 上一篇 2026-01-31 上午9:35 赫尔展馆 / Pavilion in Hull | Pezo Von Ellrichshausen 下一篇 2026-02-01 下午5:16 猜你喜欢 XSING原生公园遮阳棚 / Canopies for Xingu Indigenous Park | Estúdio Gustúdio Gustavo Utrabo 2025-12-21 公共建筑设计 Tegia da Vaut – Domat的森林小屋 / Tegia da Vaut – Forest Hut in Domat | 吉翁·A·卡米纳达|Gion A. Caminada 2026-03-20 住宅建筑设计 帕劳Solità岛Plegamans的住宅 / House in Palau Solità i Plegamans | HArquitectes 2026-02-12 住宅建筑设计 希尔根巴赫瑞斯建筑 / Rise Buildings in Hirzenbach | Roger Boltshauser 5天前 商业与综合建筑 马德雷德萨里亚街上的房子 / House on Major de Sarrià Street | HArquitectes 2026-01-03 住宅建筑设计 钢屋案例研究 / Steel House Case Study | Roger Boltshauser 2026-03-15 商业与综合建筑 发表回复 请登录后评论...登录后才能评论 提交