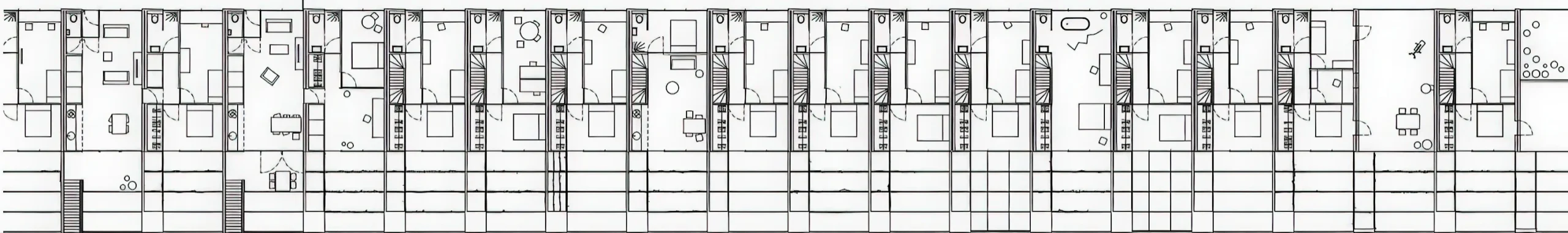
44套社会住房单位 / Proposal for 44 Social Housing Units | Dogma Dogma • 2026-01-25 上午10:24 • 住宅建筑设计, 公寓住宅设计, 建筑设计 Dogma建筑事务所在比利时韦斯特洛设计的44套社会住房单位项目,通过线性建筑布局创造共享花园空间,以简洁的住宅模型回应郊区环境,展现了社会住宅设计的创新思路。 设计: Dogma 类型: 建筑设计 功能: 公寓住宅 风格: 当代建筑 材料: 混凝土 玻璃 尺度: 中型建筑 地点:韦斯特洛 时间: 2011年 项目概述 44套社会住房单位项目位于比利时韦斯特洛,由Dogma建筑事务所于2011年设计。该项目包含44套社会住宅单元,采用线性双层层建筑布局,在保留场地开放性的同时创造共享社区空间。 设计理念 设计团队针对法兰德斯地区郊区化发展的现状,提出”框架”概念,通过将住宅推向场地边缘,保留中心区域作为共享花园,以此对抗周边郊区别墅的私有化逻辑,创造社区归属感。 空间与功能 项目采用两条线性两层建筑体量,围合出中心共享花园。花园分为三个区域:靠近建筑的蔬菜种植区提供私密性,中间为草坪区,核心区域种植常绿树木,形成层次丰富的户外空间体验。 材料与技术 住宅采用简洁的结构体系,内部空间组织基于单一通廊和服务墙概念,可根据需求灵活分隔。这种模块化设计提高了社会住宅的适应性和使用效率。 项目特色与启发 44套社会住房单位项目展示了如何在密集的郊区环境中创造高质量的共享空间,为社会住宅设计提供了新的范式,强调社区价值而非单纯的居住功能。 设计团队 Dogma建筑事务所专注于建筑理论与实践研究,通过项目探讨当代城市与建筑问题,在住宅设计和城市研究领域具有重要影响力。 项目概述 44套社会住房单位项目位于比利时韦斯特洛,由Dogma建筑事务所于2011年设计。该项目包含44套社会住宅单元,采用线性双层层建筑布局,在保留场地开放性的同时创造共享社区空间。 设计理念 设计团队针对法兰德斯地区郊区化发展的现状,提出”框架”概念,通过将住宅推向场地边缘,保留中心区域作为共享花园,以此对抗周边郊区别墅的私有化逻辑,创造社区归属感。 空间与功能 项目采用两条线性两层建筑体量,围合出中心共享花园。花园分为三个区域:靠近建筑的蔬菜种植区提供私密性,中间为草坪区,核心区域种植常绿树木,形成层次丰富的户外空间体验。 材料与技术 住宅采用简洁的结构体系,内部空间组织基于单一通廊和服务墙概念,可根据需求灵活分隔。这种模块化设计提高了社会住宅的适应性和使用效率。 项目特色与启发 44套社会住房单位项目展示了如何在密集的郊区环境中创造高质量的共享空间,为社会住宅设计提供了新的范式,强调社区价值而非单纯的居住功能。 设计团队 Dogma建筑事务所专注于建筑理论与实践研究,通过项目探讨当代城市与建筑问题,在住宅设计和城市研究领域具有重要影响力。 本文来自 © Dogma, 发布于 © 建筑学院官方网站。 未经授权,禁止转载或摘编。 编辑版本版权归 © 建筑学院官方网站 所有, 设计、图纸及照片版权归设计方 © Dogma ↗ 所有。 查看作者在建筑学院发布的更多作品: Dogma @ 建筑学院官方网站 community-designDogmaresidential-architecturesocial-housingwesterlo Dogma事务所 & 设计师 下载原图 收藏 0 关于作者 Dogma事务所 & 设计师 关注私信 19 文章 0 评论 1 粉丝 DOGMA建筑事务所致力于通过设计回应居住与城市的社会性议题,其工作涵盖合作住房、社会住宅及城市转型规划。他们在深圳、巴塞尔、苏黎世、墨西哥城等地均有建成实践,并以《Living and Working》一书荣获2022年DAM建筑图书奖。访问 dogma.name 可查阅其完整作品与理论研究。 单元式住宅小区 / Unité Housing Blocks | Arrhov Frick 上一篇 2026-01-24 上午9:56 COMMUNAL VILLA / COMMUNAL VILLA | Dogma 下一篇 2026-01-26 下午12:01 猜你喜欢 模型城市:4亿居民的超大城市模型 / Model for a City of 4,000,000 Inhabitants | Dogma 2026-01-28 建筑设计 Celosía 社会住房公寓 / Celosía Social Housing Apartments | MVRDV + Blanca Lleó Arquitectos 2025-12-21 住宅建筑设计 卡森内萨尼总体规划 / Caserma Sani Masterplan | Dogma 2026-01-02 公共建筑设计 卡森内萨尼总体规划 / Caserma Sani Masterplan | Dogma 2026-01-27 住宅建筑设计 发表回复 请登录后评论...登录后才能评论 提交