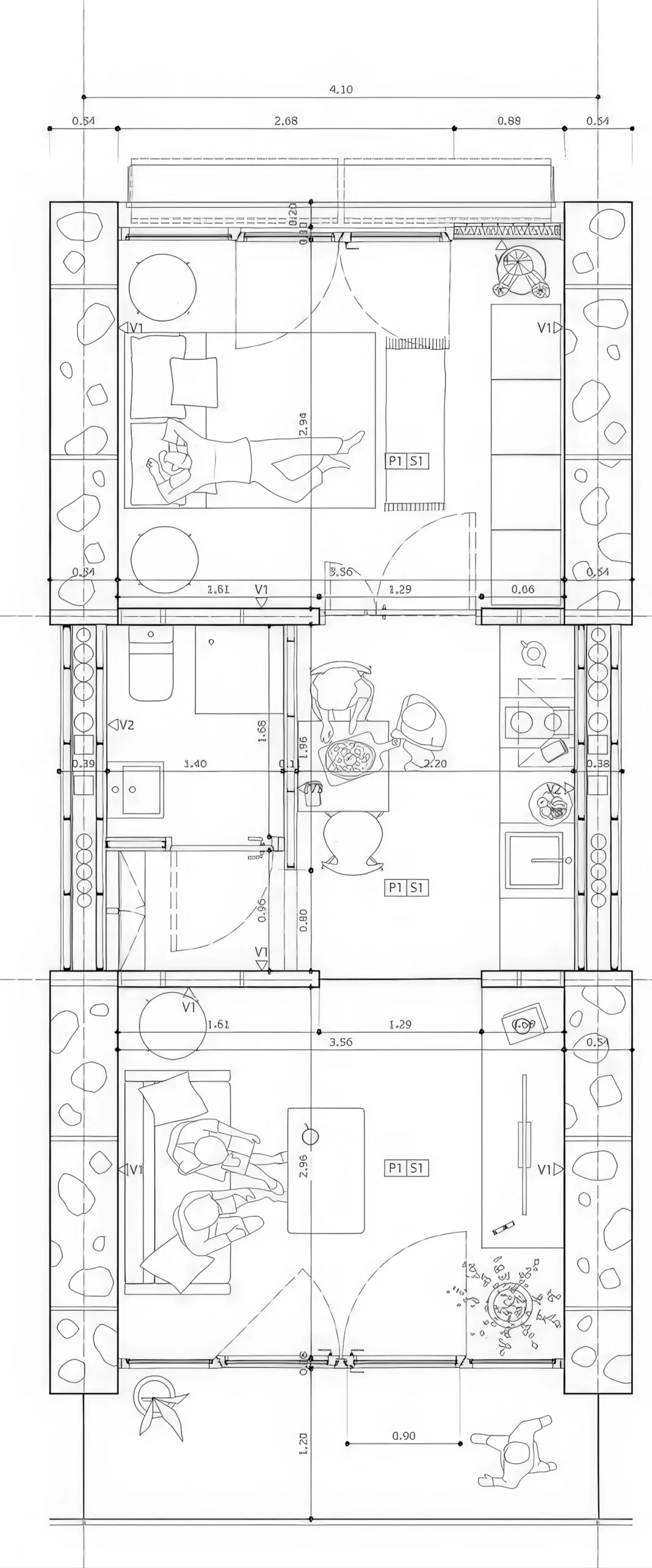
25 DOT Lope de Vega 3 / 25 Temporary Cohousing Units | HARQUITECTES Harquitectes 建筑师事务所|Harquitectes • 2026-02-09 下午1:27 • 住宅建筑设计, 公寓住宅设计, 建筑设计 25 DOT Lope de Vega 3 是由 HARQUITECTES 建筑事务所在西班牙马略卡岛帕尔马设计的临时共居住宅项目。该项目主要为老年人提供25套住宅单元,采用创新的城市采矿策略,将拆除的旧校舍材料重新利用于新建筑中,展现了可持续建筑设计的实践典范。 设计: Harquitectes 建筑师事务所|Harquitectes 类型: 建筑设计 功能: 独立住宅 风格: 可持续建筑 材料: 混凝土 木材 石材 再生材料 尺度: 中型建筑 地点:帕尔马 时间: 2020年 项目概述 25 DOT Lope de Vega 3 位于西班牙巴利阿里群岛马略卡岛的帕尔马市,是一个主要为老年人设计的临时共居住宅项目。该项目包含25套住宅单元,设计于2020年,采用创新的材料循环利用策略,将场地原有废弃校舍的拆除材料重新用于新建筑建造。 设计理念 HARQUITECTES 的设计核心是”城市采矿”概念,通过将拆除的旧校舍材料重新利用于新建筑中,实现资源的循环利用。设计团队将场地限制转化为设计机遇,利用原有建筑的砂岩和混凝土材料,创造出独特的建筑表达,体现了可持续设计的核心理念。 空间与功能 建筑空间组织基于结构系统,采用垂直于街道的承重墙布局。每层住宅单元均为通透设计,半地下室和顶层单元深度减半。楼梯核心位于角落,通向内部花园走道,形成清晰的空间层次和流畅的动线关系,满足老年人居住的功能需求。 材料与技术 项目主要使用回收砂岩制作的大型预制混凝土块,配合交叉层压木屋顶系统。拆除的陶瓷和混凝土碎片用于地基填充,砂岩则用于制作含40%回收材料的巨型混凝土块。这种预制建造方法显著缩短了施工周期,体现了高效的建设策略。 项目特色与启发 25 DOT Lope de Vega 3 项目展示了如何在城市环境中实现材料的闭环循环,为可持续建筑设计提供了重要参考。HARQUITECTES 通过创新的结构系统和材料再利用策略,为老年住宅设计树立了新的标准,对未来的保障性住房项目具有重要启发意义。 设计团队 HARQUITECTES 是西班牙知名的建筑事务所,以其创新的可持续设计方法和材料研究而闻名。团队擅长将环境考量与建筑实践相结合,在住宅设计和城市更新项目中展现出独特的设计理念和技术解决方案。 项目概述 25 DOT Lope de Vega 3 位于西班牙巴利阿里群岛马略卡岛的帕尔马市,是一个主要为老年人设计的临时共居住宅项目。该项目包含25套住宅单元,设计于2020年,采用创新的材料循环利用策略,将场地原有废弃校舍的拆除材料重新用于新建筑建造。 设计理念 HARQUITECTES 的设计核心是”城市采矿”概念,通过将拆除的旧校舍材料重新利用于新建筑中,实现资源的循环利用。设计团队将场地限制转化为设计机遇,利用原有建筑的砂岩和混凝土材料,创造出独特的建筑表达,体现了可持续设计的核心理念。 空间与功能 建筑空间组织基于结构系统,采用垂直于街道的承重墙布局。每层住宅单元均为通透设计,半地下室和顶层单元深度减半。楼梯核心位于角落,通向内部花园走道,形成清晰的空间层次和流畅的动线关系,满足老年人居住的功能需求。 材料与技术 项目主要使用回收砂岩制作的大型预制混凝土块,配合交叉层压木屋顶系统。拆除的陶瓷和混凝土碎片用于地基填充,砂岩则用于制作含40%回收材料的巨型混凝土块。这种预制建造方法显著缩短了施工周期,体现了高效的建设策略。 项目特色与启发 25 DOT Lope de Vega 3 项目展示了如何在城市环境中实现材料的闭环循环,为可持续建筑设计提供了重要参考。HARQUITECTES 通过创新的结构系统和材料再利用策略,为老年住宅设计树立了新的标准,对未来的保障性住房项目具有重要启发意义。 设计团队 HARQUITECTES 是西班牙知名的建筑事务所,以其创新的可持续设计方法和材料研究而闻名。团队擅长将环境考量与建筑实践相结合,在住宅设计和城市更新项目中展现出独特的设计理念和技术解决方案。 本文来自 © Harquitectes 建筑师事务所|Harquitectes, 发布于 © 建筑学院官方网站。 未经授权,禁止转载或摘编。 编辑版本版权归 © 建筑学院官方网站 所有, 设计、图纸及照片版权归设计方 © Harquitectes 建筑师事务所|Harquitectes ↗ 所有。 查看作者在建筑学院发布的更多作品: Harquitectes 建筑师事务所|Harquitectes @ 建筑学院官方网站 25-dot-lope-de-vega-3Harquitectes共居住宅设计可持续建筑帕尔马住宅 Harquitectes 建筑师事务所|Harquitectes事务所 & 设计师 下载原图 收藏 0 关于作者 Harquitectes 建筑师事务所|Harquitectes事务所 & 设计师 关注私信 24 文章 0 评论 0 粉丝 Harquitectes是西班牙备受赞誉的建筑师事务所,以其对环境、材料和建造逻辑的深刻洞察而闻名。其官网harquitectes.com展示了众多获奖作品,涵盖学校、住宅及公共建筑。他们擅长运用本土、可持续的策略,创造舒适、高效且充满诗意的空间。 Oyagi 住宅 / Oyagi House | SANAA 上一篇 2026-02-08 上午9:48 凯林眼镜新总部大楼 / Kering Eyewear New Headquarters | SANAA 下一篇 2026-02-09 下午1:29 猜你喜欢 新加伦西美制药公司大楼 / New Galenicum Pharmaceutical Company Building | HArquitectes 2026-01-04 公共建筑设计 窑塔,砖工博物馆所在地 / Kiln Tower for the Brickworks Museum, Cham | Roger Boltshauser 2026-02-06 公共建筑设计 住宅开发阿尔特维森 / Residential Development Altwiesen | Roger Boltshauser 2026-02-06 住宅建筑设计 亚马逊社区行业 / Amazon Community Industry | Estúdio Gustavo Utrabo 2026-04-03 工业建筑 Ararat住宅 / SJB:澳大利亚阿拉拉特1950年代砖房改造 | 可持续家庭住宅典范 2025-05-20 住宅建筑设计 Tegia da Vaut – Domat的森林小屋 / Tegia da Vaut – Forest Hut in Domat | 吉翁·A·卡米纳达|Gion A. Caminada 2026-03-20 住宅建筑设计 发表回复 请登录后评论...登录后才能评论 提交