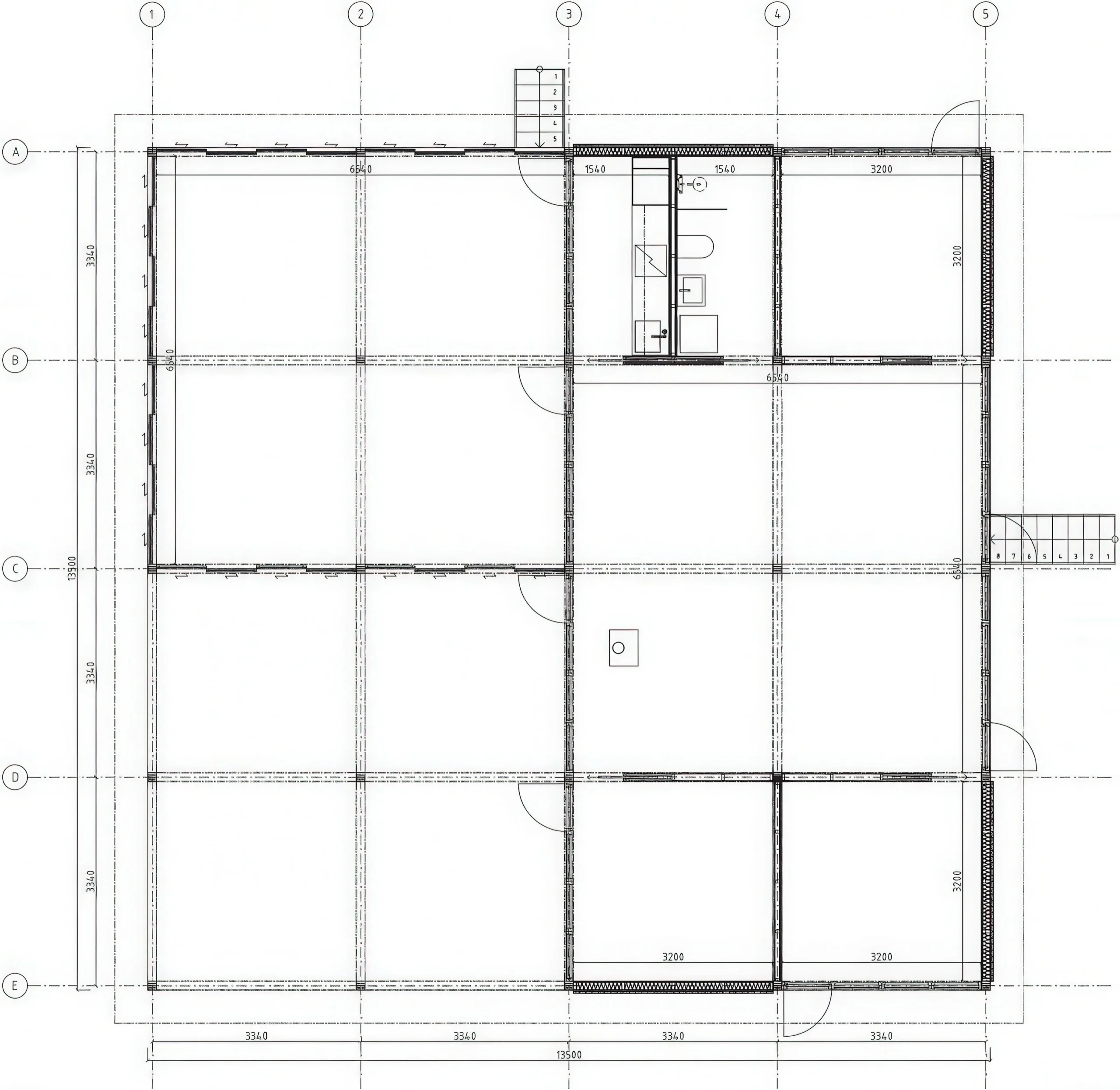
格里丝尔海姆诺别墅 / Grisslehamn House | Arrhov Frick Arrhov Frick • 2026-01-23 上午9:18 • 住宅建筑设计, 建筑设计, 独立住宅设计 格里丝尔海姆诺别墅由Arrhov Frick建筑事务所设计,位于瑞典瓦德岛,是一座采用全预制木结构系统的独立住宅。项目通过模块化设计实现个性化定制,完美融入多样化的自然景观环境。 设计: Arrhov Frick 类型: 独立住宅设计 功能: 独立住宅 风格: 现代主义 材料: 木材 玻璃 尺度: 小型建筑 地点:瑞典 时间: 2018年 项目概述 格里丝尔海姆诺别墅位于瑞典瓦德岛的格里丝尔海姆地区,是一座独立住宅项目。该项目由Arrhov Frick建筑事务所设计,采用创新的全预制木结构系统,将场地划分为12个独立地块,每个住宅都根据具体地形特征进行个性化定制。 设计理念 设计团队以最小化干预为核心理念,选择场地中偏远且不影响动植物生态的区域进行开发。项目充分尊重场地原有的多样化自然景观特征,从岩石空地到松树林地再到茂密桦树林,每个住宅都与其所处环境建立独特对话。 空间与功能 别墅内部采用序列化房间布局,不预设固定功能程序。空间从最小的三面封闭墙体和玻璃隔断单元,到完全没有墙壁的房间,再到波纹塑料结构创造的宜人室内气候空间,以及森林中抬高的开放式平台,提供了多样化的居住体验可能性。 材料与技术 项目开发了完整的预制木构建筑系统,结构层压木框架支撑木质插入件作为墙壁、地板和屋顶。所有组件都经过优化设计,可通过中型卡车进行平板包装运输,框架可在数天内安装完成,整个房屋在数周内竣工。 项目特色与启发 格里丝尔海姆诺别墅展示了预制建筑系统在保持个性化定制能力方面的创新突破,为可持续住宅设计提供了重要参考。Arrhov Frick建筑事务所通过该项目证明了工业化建造与场地特异性可以完美结合。 设计团队 Arrhov Frick是一家瑞典建筑事务所,专注于住宅和公共建筑设计,以创新的建造方法和材料运用著称。事务所在项目中展现出对预制化建造与个性化定制的平衡能力,体现了现代建筑工业化的发展方向。 项目概述 格里丝尔海姆诺别墅位于瑞典瓦德岛的格里丝尔海姆地区,是一座独立住宅项目。该项目由Arrhov Frick建筑事务所设计,采用创新的全预制木结构系统,将场地划分为12个独立地块,每个住宅都根据具体地形特征进行个性化定制。 设计理念 设计团队以最小化干预为核心理念,选择场地中偏远且不影响动植物生态的区域进行开发。项目充分尊重场地原有的多样化自然景观特征,从岩石空地到松树林地再到茂密桦树林,每个住宅都与其所处环境建立独特对话。 空间与功能 别墅内部采用序列化房间布局,不预设固定功能程序。空间从最小的三面封闭墙体和玻璃隔断单元,到完全没有墙壁的房间,再到波纹塑料结构创造的宜人室内气候空间,以及森林中抬高的开放式平台,提供了多样化的居住体验可能性。 材料与技术 项目开发了完整的预制木构建筑系统,结构层压木框架支撑木质插入件作为墙壁、地板和屋顶。所有组件都经过优化设计,可通过中型卡车进行平板包装运输,框架可在数天内安装完成,整个房屋在数周内竣工。 项目特色与启发 格里丝尔海姆诺别墅展示了预制建筑系统在保持个性化定制能力方面的创新突破,为可持续住宅设计提供了重要参考。Arrhov Frick建筑事务所通过该项目证明了工业化建造与场地特异性可以完美结合。 设计团队 Arrhov Frick是一家瑞典建筑事务所,专注于住宅和公共建筑设计,以创新的建造方法和材料运用著称。事务所在项目中展现出对预制化建造与个性化定制的平衡能力,体现了现代建筑工业化的发展方向。 本文来自 © Arrhov Frick, 发布于 © 建筑学院官方网站。 未经授权,禁止转载或摘编。 编辑版本版权归 © 建筑学院官方网站 所有, 设计、图纸及照片版权归设计方 © Arrhov Frick ↗ 所有。 查看作者在建筑学院发布的更多作品: Arrhov Frick @ 建筑学院官方网站 Grisslehamn House可持续建筑独立住宅设计瑞典住宅预制木结构 Arrhov Frick事务所 & 设计师 下载原图 收藏 0 关于作者 Arrhov Frick事务所 & 设计师 关注私信 16 文章 0 评论 1 粉丝 Arrhov Frick 是由 Johan Arrhov 和 Henrik Frick 于2010年在斯德哥尔摩创立的建筑事务所。他们以清晰的建造逻辑、实用的空间规划和极简的美学著称,设计涵盖私人住宅、集合住宅及文化建筑。其官网 arrhovfrick.se 完整展示了他们的作品与实践理念。 Velamsund 住宅 / House in Velamsund | Arrhov Frick 上一篇 2026-01-23 上午9:16 viggsö 楼屋 / House in Viggsö | Arrhov Frick 下一篇 2026-01-23 上午9:19 猜你喜欢 The Frame – 假日度假屋 / The Frame – Holiday Retreat in Imaduwa | 帕琳达·坎南加拉|Palinda Kannangara 2026-04-04 住宅建筑设计 奥利维尔多杜罗之家 House in Oliveira do Douro | 德莫拉建筑事务所|De Mora 2025-11-05 公共建筑设计 小拉格哈姆的房子 / House in Lilla Rågholmen | Arrhov Frick 建筑事务所 2025-12-23 住宅建筑设计 凯奥巴之家 / Caiobá House | Estúdio Gustavo Utrabo 2025-12-22 住宅建筑设计 Sakuradai House / House in Sakuradai | 长谷川豪建筑事务所|Go Hasegawa 2025-11-22 公共建筑设计 帕拉蒂之家 / House in Paraty | Estúdio Gustavo Utrabo 2025-12-25 住宅建筑设计 发表回复 请登录后评论...登录后才能评论 提交