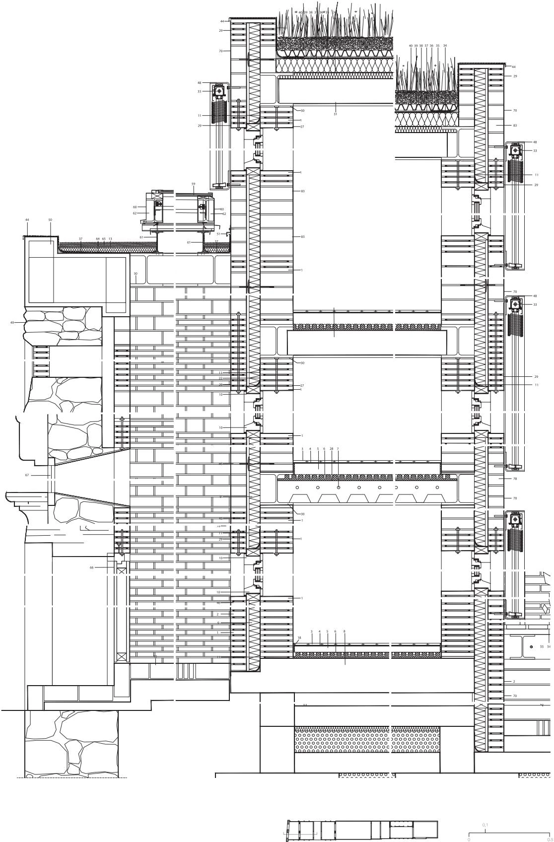
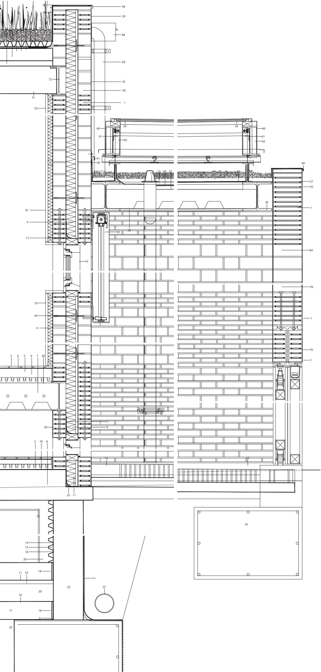
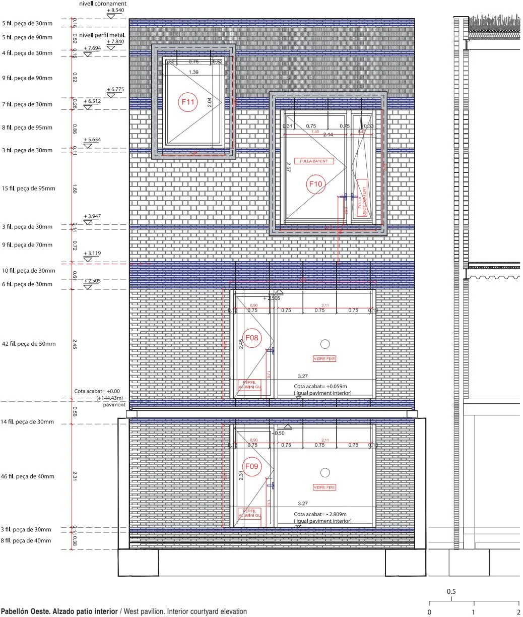
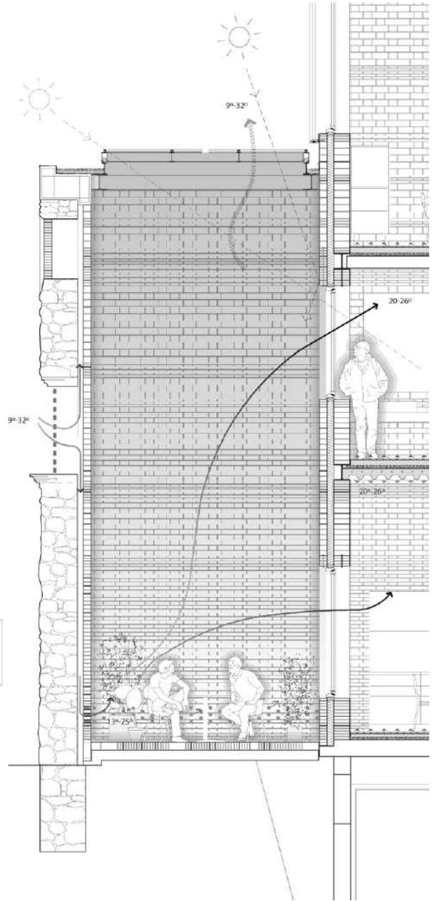
格兰罗拉住宅 / House in Granollers | HArquitectes Harquitectes 建筑师事务所|Harquitectes • 2026-04-07 下午9:48 • 住宅建筑设计, 建筑设计, 独立住宅设计 格兰罗拉住宅由西班牙HArquitectes事务所设计,位于巴塞罗那格兰罗拉历史中心,是一座6.5米宽的狭长联排住宅。设计通过设置后退庭院创造生物气候过渡空间,巧妙解决了采光、隐私与热舒适问题,展现了当代住宅设计的创新思维。 设计: Harquitectes 建筑师事务所|Harquitectes 类型: 独立住宅设计 功能: 独立住宅 风格: 当代建筑 材料: 混凝土 木材 玻璃 砖材 尺度: 小型建筑 地点:格兰罗拉 时间: 2014年 项目概述 格兰罗拉住宅位于西班牙巴塞罗那格兰罗拉历史中心,是一座狭长型联排住宅改造项目。建筑占地宽度仅6.5米,长度达53米,总建筑面积345平方米,设计于2010年,2014年完工。HArquitectes事务所在保留原有临街立面的基础上,对内部空间进行了全面重组。 设计理念 HArquitectes的设计理念源于对场地条件的深度回应。面对东西向狭长地块和狭窄街道带来的采光与隐私挑战,设计师创造性地设置了后退庭院作为生物气候缓冲区。这些过渡空间通过可伸缩屋顶调节,冬季捕捉阳光,夏季促进通风,形成了介于室内外之间的微气候环境。 空间与功能 格兰罗拉住宅的空间组织以序列化房间串联为特色。地面层作为家庭主要活动区,长达53米的连续空间包含了室内房间、半室外生物气候空间和露天庭院。私密空间和服务区域分别位于上层和地下室,通过精心设计的楼梯连接。这种布局创造了室内外空间的模糊边界,使每个区域都具有明确的身份特征。 材料与技术 项目主要采用陶瓷砖材作为结构和表皮材料,通过不同砌筑方式形成丰富的纹理变化。承重墙系统不仅定义了空间界限,还通过厚度变化创造了密度梯度。建筑采用10厘米木纤维保温层的双层砖墙,结合地源热泵辐射采暖系统,实现了优异的隔热性能和热惯性平衡。 项目特色与启发 格兰罗拉住宅展示了在极端场地条件下创造高品质居住环境的可能性。HArquitectes通过生物气候庭院的创新应用,将被动式设计原则与空间体验完美结合。该项目为高密度城市环境中的住宅更新提供了重要参考,特别是在处理采光、通风和隐私等核心问题方面具有示范意义。 设计团队 HArquitectes是西班牙知名建筑事务所,以其对场地文脉的敏感回应和可持续设计方法著称。团队擅长在复杂城市环境中创造具有地域特色的现代建筑,特别在住宅设计和城市更新领域有着丰富经验。在格兰罗拉住宅项目中,他们展现了将传统材料与现代技术相结合的独特设计语言。 项目概述 格兰罗拉住宅位于西班牙巴塞罗那格兰罗拉历史中心,是一座狭长型联排住宅改造项目。建筑占地宽度仅6.5米,长度达53米,总建筑面积345平方米,设计于2010年,2014年完工。HArquitectes事务所在保留原有临街立面的基础上,对内部空间进行了全面重组。 设计理念 HArquitectes的设计理念源于对场地条件的深度回应。面对东西向狭长地块和狭窄街道带来的采光与隐私挑战,设计师创造性地设置了后退庭院作为生物气候缓冲区。这些过渡空间通过可伸缩屋顶调节,冬季捕捉阳光,夏季促进通风,形成了介于室内外之间的微气候环境。 空间与功能 格兰罗拉住宅的空间组织以序列化房间串联为特色。地面层作为家庭主要活动区,长达53米的连续空间包含了室内房间、半室外生物气候空间和露天庭院。私密空间和服务区域分别位于上层和地下室,通过精心设计的楼梯连接。这种布局创造了室内外空间的模糊边界,使每个区域都具有明确的身份特征。 材料与技术 项目主要采用陶瓷砖材作为结构和表皮材料,通过不同砌筑方式形成丰富的纹理变化。承重墙系统不仅定义了空间界限,还通过厚度变化创造了密度梯度。建筑采用10厘米木纤维保温层的双层砖墙,结合地源热泵辐射采暖系统,实现了优异的隔热性能和热惯性平衡。 项目特色与启发 格兰罗拉住宅展示了在极端场地条件下创造高品质居住环境的可能性。HArquitectes通过生物气候庭院的创新应用,将被动式设计原则与空间体验完美结合。该项目为高密度城市环境中的住宅更新提供了重要参考,特别是在处理采光、通风和隐私等核心问题方面具有示范意义。 设计团队 HArquitectes是西班牙知名建筑事务所,以其对场地文脉的敏感回应和可持续设计方法著称。团队擅长在复杂城市环境中创造具有地域特色的现代建筑,特别在住宅设计和城市更新领域有着丰富经验。在格兰罗拉住宅项目中,他们展现了将传统材料与现代技术相结合的独特设计语言。 本文来自 © Harquitectes 建筑师事务所|Harquitectes, 发布于 © 建筑学院官方网站。 未经授权,禁止转载或摘编。 编辑版本版权归 © 建筑学院官方网站 所有, 设计、图纸及照片版权归设计方 © Harquitectes 建筑师事务所|Harquitectes ↗ 所有。 查看作者在建筑学院发布的更多作品: Harquitectes 建筑师事务所|Harquitectes @ 建筑学院官方网站 HarquitectesHouse in Granollers格兰罗拉建筑生物气候建筑联排住宅设计 Harquitectes 建筑师事务所|Harquitectes事务所 & 设计师 下载原图 收藏 0 关于作者 Harquitectes 建筑师事务所|Harquitectes事务所 & 设计师 关注私信 24 文章 0 评论 0 粉丝 Harquitectes是西班牙备受赞誉的建筑师事务所,以其对环境、材料和建造逻辑的深刻洞察而闻名。其官网harquitectes.com展示了众多获奖作品,涵盖学校、住宅及公共建筑。他们擅长运用本土、可持续的策略,创造舒适、高效且充满诗意的空间。 弗朗茨·麦卡利亚街上的房子 / House on Francesc Macià Street | HArquitectes 上一篇 2026-04-07 下午9:48 线性房屋 / Linear House | 帕琳达·坎南加拉|Palinda Kannangara 下一篇 2026-04-08 下午4:58 猜你喜欢 新加伦西美制药公司大楼 / New Galenicum Pharmaceutical Company Building | HArquitectes 2026-04-06 公共建筑设计 加瓦市社会住房项目 / Social Housing in Gavá | HArquitectes 2026-01-05 住宅建筑设计 学生宿舍,ETSAV校园 / Student Residence, ETSAV Campus | HArquitectes 2026-04-05 公共建筑设计 克里斯蒂艾尔计划乐 civic centre / Cristalleries Planell Civic Centre | HArquitectes 2026-02-12 公共建筑设计 1014号房屋,格兰多尔斯 House 1014, Granollers | Harquitectes 建筑师事务所|Harquitectes 2025-10-26 公共建筑设计 帕劳Solità岛Plegamans的住宅 / House in Palau Solità i Plegamans | HArquitectes 2026-02-12 住宅建筑设计 发表回复 请登录后评论...登录后才能评论 提交