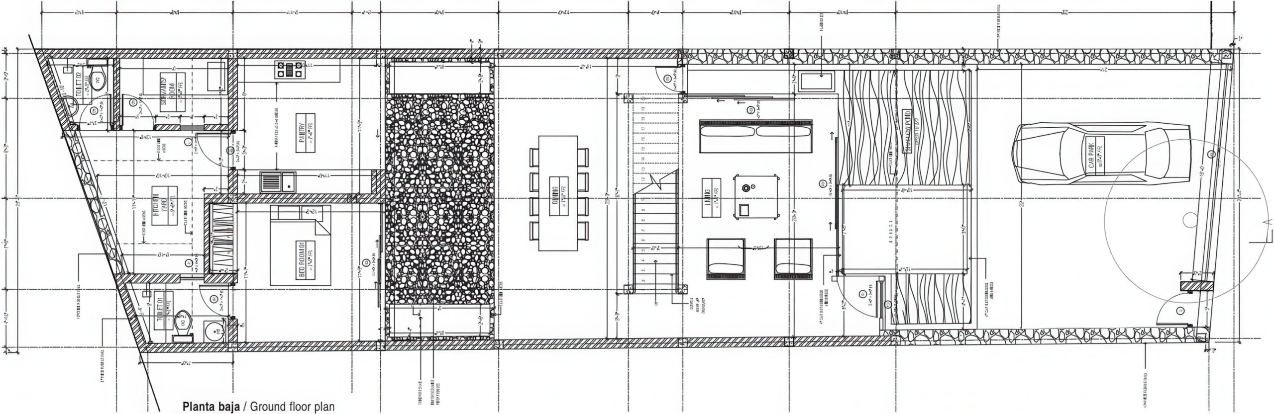
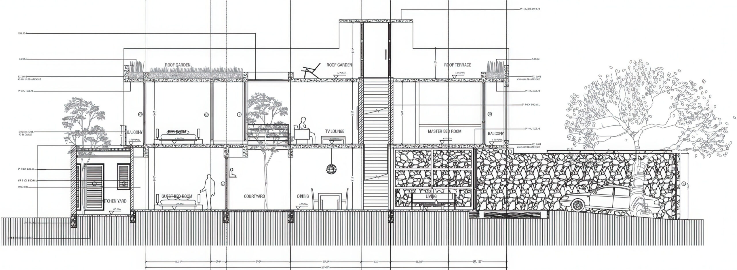
线性房屋 / Linear House | 帕琳达·坎南加拉|Palinda Kannangara 帕琳达·坎南加拉|Palinda Kannangara • 2026-04-08 下午4:58 • 住宅建筑设计, 建筑设计, 独立住宅设计 项目概述 线性房屋位于斯里兰卡巴塔拉穆拉,靠近议会区域,是一座在不足250平方米狭长地块上建造的独立住宅。项目由帕琳达·坎南加拉设计,设计始于2012年,2014年建成,建筑面积紧凑但空间体验丰富。 设计理念 线性房屋的设计理念旨在在密集城市环境中创造与热带自然环境的连接感。设计通过一系列庭院、水景和绿化,模糊室内外界限,让居住者在狭窄空间中仍能感受到天空、水和树木的存在,营造花园般的居住体验。 空间与功能 线性房屋采用纵向布局,地面层设有客厅、餐厅、厨房和客卧,通过庭院分隔空间。一层设有电视厅、主卧和两间次卧,细长的木桥连接各房间,仿佛穿越树冠。屋顶花园不仅收集雨水,还创造凉爽微气候,提供户外用餐空间。 材料与技术 项目采用本地材料和回收材料,包括碎石铺地、碎砾石庭院和抛光水泥地面。砖砌墙体搭配回收雅卡木门窗,细长框架不干扰水景视野。南墙木制屏风受斯里兰卡传统建筑启发,有效遮挡强烈日照并提供遮荫。 项目特色与启发 线性房屋展示了在有限预算和狭小地块上创造高品质居住环境的可能性。项目通过巧妙的空间组织和材料选择,证明了热带地区高密度城市环境中仍可实现舒适、可持续的居住体验,为类似条件下的住宅设计提供了重要参考。 设计团队 帕琳达·坎南加拉是斯里兰卡知名建筑师,以其对热带现代主义的独特诠释而闻名。他的设计注重场地响应、材料真实性和空间体验,擅长在有限条件下创造富有诗意的建筑作品,线性房屋是其代表作品之一。 设计: 帕琳达·坎南加拉|Palinda Kannangara 类型: 独立住宅设计 功能: 独立住宅 风格: 现代主义 材料: 混凝土 木材 砖材 尺度: 小型建筑 地点:巴塔拉穆拉 时间: 2014年 项目概述 线性房屋位于斯里兰卡巴塔拉穆拉,靠近议会区域,是一座在不足250平方米狭长地块上建造的独立住宅。项目由帕琳达·坎南加拉设计,设计始于2012年,2014年建成,建筑面积紧凑但空间体验丰富。 设计理念 线性房屋的设计理念旨在在密集城市环境中创造与热带自然环境的连接感。设计通过一系列庭院、水景和绿化,模糊室内外界限,让居住者在狭窄空间中仍能感受到天空、水和树木的存在,营造花园般的居住体验。 空间与功能 线性房屋采用纵向布局,地面层设有客厅、餐厅、厨房和客卧,通过庭院分隔空间。一层设有电视厅、主卧和两间次卧,细长的木桥连接各房间,仿佛穿越树冠。屋顶花园不仅收集雨水,还创造凉爽微气候,提供户外用餐空间。 材料与技术 项目采用本地材料和回收材料,包括碎石铺地、碎砾石庭院和抛光水泥地面。砖砌墙体搭配回收雅卡木门窗,细长框架不干扰水景视野。南墙木制屏风受斯里兰卡传统建筑启发,有效遮挡强烈日照并提供遮荫。 项目特色与启发 线性房屋展示了在有限预算和狭小地块上创造高品质居住环境的可能性。项目通过巧妙的空间组织和材料选择,证明了热带地区高密度城市环境中仍可实现舒适、可持续的居住体验,为类似条件下的住宅设计提供了重要参考。 设计团队 帕琳达·坎南加拉是斯里兰卡知名建筑师,以其对热带现代主义的独特诠释而闻名。他的设计注重场地响应、材料真实性和空间体验,擅长在有限条件下创造富有诗意的建筑作品,线性房屋是其代表作品之一。 项目概述 线性房屋位于斯里兰卡巴塔拉穆拉,靠近议会区域,是一座在不足250平方米狭长地块上建造的独立住宅。项目由帕琳达·坎南加拉设计,设计始于2012年,2014年建成,建筑面积紧凑但空间体验丰富。 设计理念 线性房屋的设计理念旨在在密集城市环境中创造与热带自然环境的连接感。设计通过一系列庭院、水景和绿化,模糊室内外界限,让居住者在狭窄空间中仍能感受到天空、水和树木的存在,营造花园般的居住体验。 空间与功能 线性房屋采用纵向布局,地面层设有客厅、餐厅、厨房和客卧,通过庭院分隔空间。一层设有电视厅、主卧和两间次卧,细长的木桥连接各房间,仿佛穿越树冠。屋顶花园不仅收集雨水,还创造凉爽微气候,提供户外用餐空间。 材料与技术 项目采用本地材料和回收材料,包括碎石铺地、碎砾石庭院和抛光水泥地面。砖砌墙体搭配回收雅卡木门窗,细长框架不干扰水景视野。南墙木制屏风受斯里兰卡传统建筑启发,有效遮挡强烈日照并提供遮荫。 项目特色与启发 线性房屋展示了在有限预算和狭小地块上创造高品质居住环境的可能性。项目通过巧妙的空间组织和材料选择,证明了热带地区高密度城市环境中仍可实现舒适、可持续的居住体验,为类似条件下的住宅设计提供了重要参考。 设计团队 帕琳达·坎南加拉是斯里兰卡知名建筑师,以其对热带现代主义的独特诠释而闻名。他的设计注重场地响应、材料真实性和空间体验,擅长在有限条件下创造富有诗意的建筑作品,线性房屋是其代表作品之一。 本文来自 © 帕琳达·坎南加拉|Palinda Kannangara, 发布于 © 建筑学院官方网站。 未经授权,禁止转载或摘编。 编辑版本版权归 © 建筑学院官方网站 所有, 设计、图纸及照片版权归设计方 © 帕琳达·坎南加拉|Palinda Kannangara ↗ 所有。 查看作者在建筑学院发布的更多作品: 帕琳达·坎南加拉|Palinda Kannangara @ 建筑学院官方网站 Linear House巴塔拉穆拉住宅庭院住宅热带现代主义独立住宅设计 帕琳达·坎南加拉|Palinda Kannangara事务所 & 设计师 下载原图 收藏 0 关于作者 帕琳达·坎南加拉|Palinda Kannangara事务所 & 设计师 关注私信 21 文章 0 评论 0 粉丝 帕琳达·坎南加拉(Palinda Kannangara)是斯里兰卡最具影响力的当代建筑师之一,以其创新的热带现代主义设计而闻名。他的作品深刻诠释了建筑与自然、光线的对话,擅长运用本地材料与现代工艺,创造出既具私密性又开放于景观的空间。其官方网站 www.palindakannangara.com 全面展示了他的住宅、酒店与文化项目,是了解其设计哲学、完整作品集及所获国际奖项的重要窗口。 格兰罗拉住宅 / House in Granollers | HArquitectes 上一篇 2026-04-07 下午9:48 艺术家避暑所 帕特鲁加纳拉 / Artists’ Retreat in Pittugala | 帕琳达·坎南加拉|Palinda Kannangara 下一篇 2026-04-08 下午5:10 猜你喜欢 圣弗朗西斯科文化公园花园 / Jardim Sao Francisco Cultural Centre | Estúdio Gustavo Utrabo 2026-01-03 住宅建筑设计 巴西贝萨雷斯保护区两座房子 | 曼努埃尔·塞万提斯|Manuel Cervantes 2025-12-07 公共建筑设计 乌尔斯塔雷之家 / House in Ullastret | HArquitectes 2026-04-06 住宅建筑设计 帕拉蒂之家 / House in Paraty | Estúdio Gustavo Utrabo 2025-12-25 住宅建筑设计 土胚房 / Hut House | MARKLEE 建筑事务所 2025-11-15 公共建筑设计 迪朱维克之家 / House in Djupvik | Arrhov Frick 2025-12-26 住宅建筑设计 发表回复 请登录后评论...登录后才能评论 提交