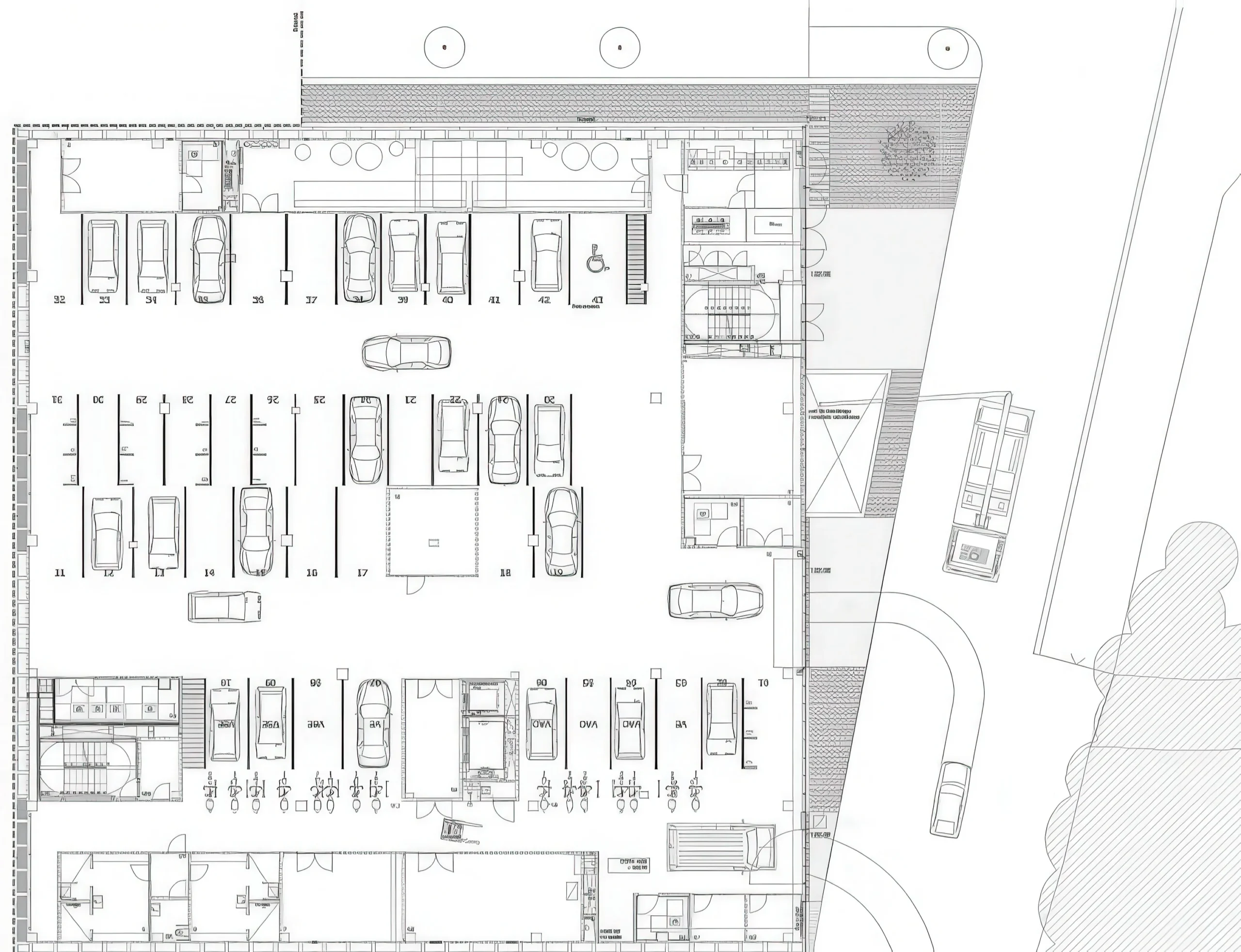
ICTA-ICP 研究中心 | Harquitectes 建筑师事务所 Harquitectes 建筑师事务所|Harquitectes • 2025-10-29 上午8:50 • 公共建筑设计, 建筑师设计, 建筑设计, 文化建筑设计 ICTA-ICP研究中心位于西班牙巴塞罗那自治大学校园内,是一座专注于环境科学与古生物学研究的科研建筑。该项目由Harquitectes事务所设计,采用创新的生物气候策略,通过混凝土结构的热惰性和自动化温室表皮系统实现被动式节能。建筑包含五层地上空间和两层地下室,总面积达8000平方米,于2014年建成。 设计: Harquitectes 建筑师事务所|Harquitectes 类型: 文化建筑设计 功能: 学校 风格: 可持续建筑 材料: 混凝土 钢材 木材 玻璃 再生材料 尺度: 中型建筑 地点:西班牙 时间: 2014年 项目简介 ICTA-ICP研究中心位于西班牙巴塞罗那塞尔达尼奥拉-德尔巴列斯,是一座科研教育建筑。建筑为5层地上结构加2层地下室,每层面积40×40平方米,总建筑面积约8000平方米。项目于2011年设计,2014年建成。 设计理念 设计团队以可持续发展为核心目标,将建筑视为可适应未来使用需求的基础设施。通过分层气候控制系统,针对不同功能空间采用差异化的环境策略,最大化利用被动式设计减少能源消耗。 空间与功能 建筑功能分区明确:地面层设大厅、酒吧、教室和会议室;中间三层为办公室和实验室;屋顶布置菜园和休息区;地下层包含停车场、设备间和仓储空间。四个垂直庭院贯穿建筑,提供自然采光通风,连接各层交通流线。 材料与技术 主体采用混凝土结构,优化热惰性性能。外围护系统使用低成本工业化温室组件构成生物气候表皮,可自动调节开合。内部采用干燥构造系统和可再生材料,实现水资源循环利用和地热能应用。 设计团队 Harquitectes是西班牙知名建筑事务所,专注于可持续建筑设计和环境响应策略。团队以严谨的材料研究和创新的构造解决方案著称,在教育和科研建筑领域具有丰富经验。 项目简介 ICTA-ICP研究中心位于西班牙巴塞罗那塞尔达尼奥拉-德尔巴列斯,是一座科研教育建筑。建筑为5层地上结构加2层地下室,每层面积40×40平方米,总建筑面积约8000平方米。项目于2011年设计,2014年建成。 设计理念 设计团队以可持续发展为核心目标,将建筑视为可适应未来使用需求的基础设施。通过分层气候控制系统,针对不同功能空间采用差异化的环境策略,最大化利用被动式设计减少能源消耗。 空间与功能 建筑功能分区明确:地面层设大厅、酒吧、教室和会议室;中间三层为办公室和实验室;屋顶布置菜园和休息区;地下层包含停车场、设备间和仓储空间。四个垂直庭院贯穿建筑,提供自然采光通风,连接各层交通流线。 材料与技术 主体采用混凝土结构,优化热惰性性能。外围护系统使用低成本工业化温室组件构成生物气候表皮,可自动调节开合。内部采用干燥构造系统和可再生材料,实现水资源循环利用和地热能应用。 设计团队 Harquitectes是西班牙知名建筑事务所,专注于可持续建筑设计和环境响应策略。团队以严谨的材料研究和创新的构造解决方案著称,在教育和科研建筑领域具有丰富经验。 本文来自 © Harquitectes 建筑师事务所|Harquitectes, 发布于 © 建筑学院官方网站。 未经授权,禁止转载或摘编。 编辑版本版权归 © 建筑学院官方网站 所有, 设计、图纸及照片版权归设计方 © Harquitectes 建筑师事务所|Harquitectes ↗ 所有。 查看作者在建筑学院发布的更多作品: Harquitectes 建筑师事务所|Harquitectes @ 建筑学院官方网站 HarquitectesICTA-ICP研究中心巴塞罗那混凝土结构科研建筑 Harquitectes 建筑师事务所|Harquitectes事务所 & 设计师 下载原图 收藏 0 关于作者 Harquitectes 建筑师事务所|Harquitectes事务所 & 设计师 关注私信 24 文章 0 评论 0 粉丝 Harquitectes是西班牙备受赞誉的建筑师事务所,以其对环境、材料和建造逻辑的深刻洞察而闻名。其官网harquitectes.com展示了众多获奖作品,涵盖学校、住宅及公共建筑。他们擅长运用本土、可持续的策略,创造舒适、高效且充满诗意的空间。 克伦尼亚考古遗址游客中心 Clunia Archaeological Site Visitor Centre | AMID.cero9 建筑事务所 上一篇 2025-10-29 上午8:50 兰登贝格豪斯剧院 Landenberghaus Theater | Karamuk Kuo 建筑事务所 下一篇 2025-10-29 上午8:50 猜你喜欢 欧洲阿乐街办公大楼 Europaallee Office Building | 克里斯蒂安·凯雷兹|Christian Kerez 2025-11-30 公共建筑设计 1014号房屋 / House 1014 | Harquitectes 建筑师事务所 2026-04-18 住宅建筑设计 瑞士生命竞技场 Swiss Life Arena | 卡鲁索·圣约翰建筑事务所|Caruso St John 2025-11-05 公共建筑设计 英国Nithurst 农庄 2019-12-10 建筑设计 我们为什么迷恋高迪 2018-04-16 建筑设计 乌尔斯塔雷之家 / House in Ullastret | HArquitectes 2026-04-06 住宅建筑设计 发表回复 请登录后评论...登录后才能评论 提交