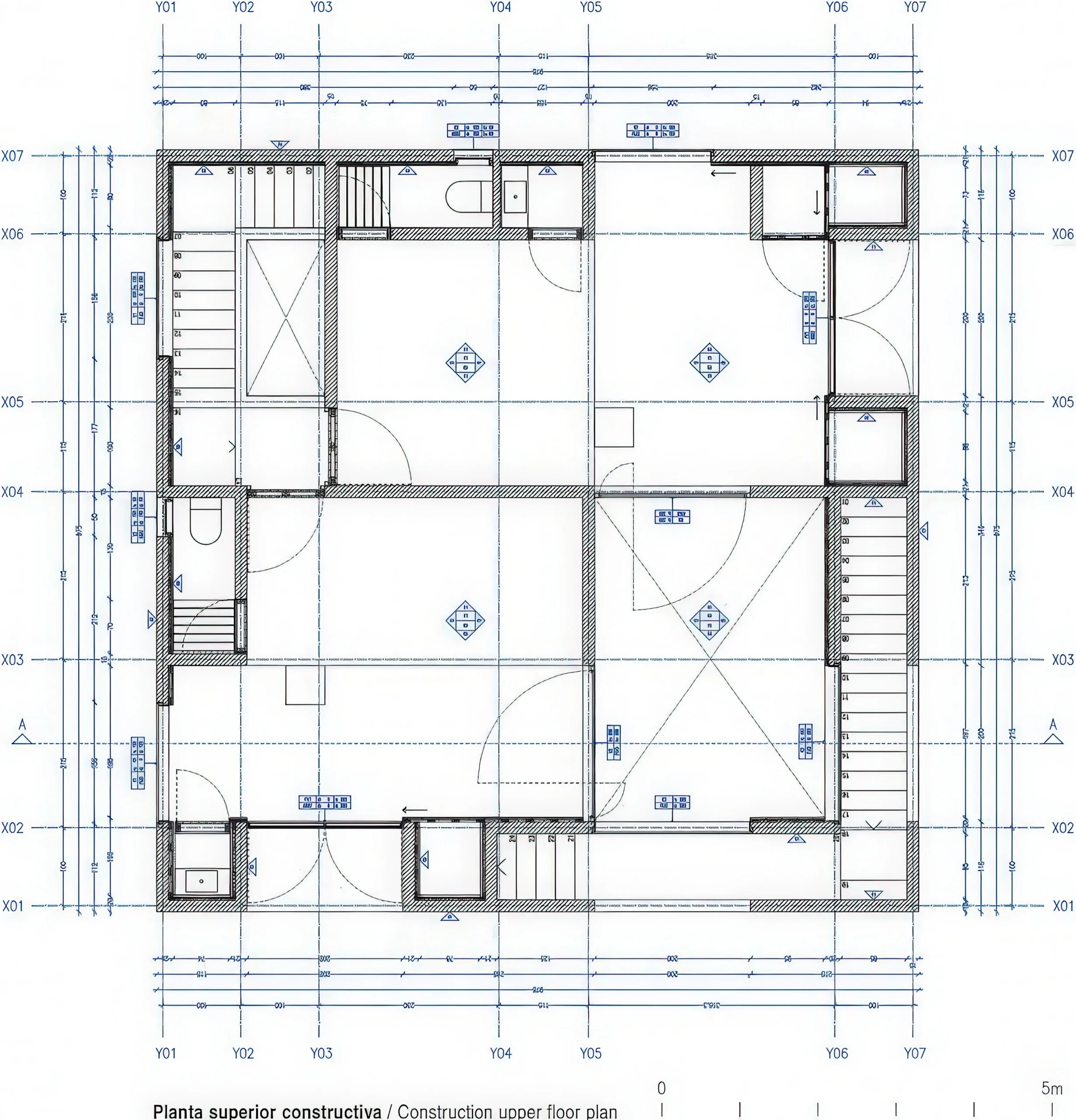
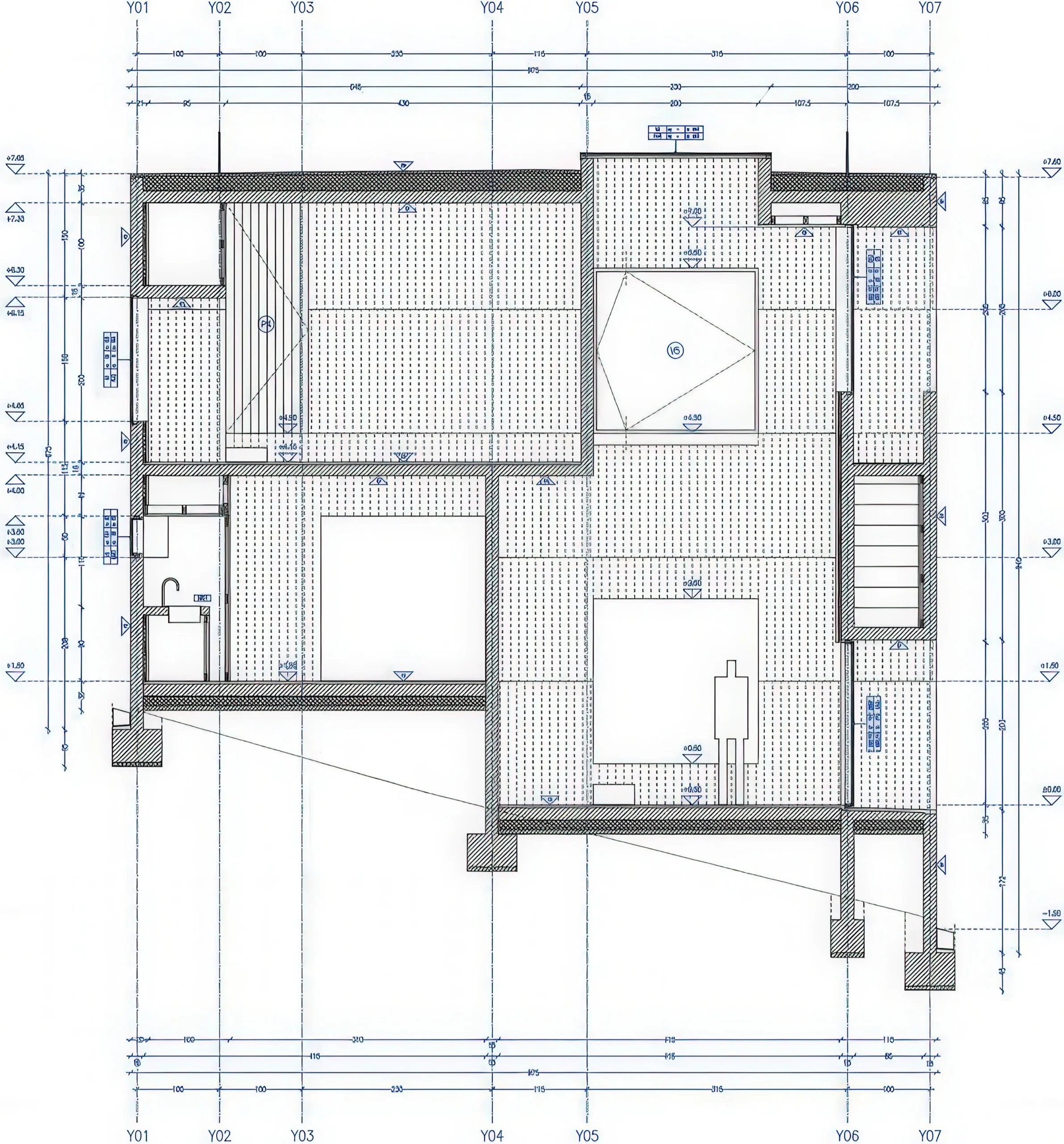
科尔姆奥文化中心 / Cultural Centre in Coliumo | Pezo Von Ellrichshausen Pezo Von Ellrichshausen • 2026-03-27 下午9:19 • 公共建筑设计, 建筑设计, 文化建筑设计 科尔姆奥文化中心由智利建筑事务所Pezo Von Ellrichshausen设计,位于智利第八大区波利托梅,是一座兼具度假住宅与文化中心功能的独特建筑。该项目通过紧凑的自主体量、厚重的可居住墙体以及灵活的空间组织,巧妙平衡了公共性与私密性的双重需求。 设计: Pezo Von Ellrichshausen 类型: 文化建筑设计 功能: 独立住宅 风格: 当代建筑 材料: 混凝土 木材 尺度: 小型建筑 地点:波利托梅 时间: 2005年 项目概述 科尔姆奥文化中心位于智利第八大区波利托梅的科尔姆奥半岛,是一座兼具度假住宅与文化中心功能的建筑。项目设计于2002年,2005年建成,建筑面积约300平方米,坐落于悬崖边缘,直面太平洋景观。 设计理念 Pezo Von Ellrichshausen事务所旨在创造一个自主的紧凑体量,捕捉自然基座与悬崖边缘的视觉张力。设计回应了建筑作为度假住宅与文化中心的双重身份,通过未命名的空间和厚重的可居住墙体,实现了公共性与私密性的平衡。 空间与功能 科尔姆奥文化中心采用开放式空间布局,所有服务功能被整合到厚重的周边墙体中。内部空间相互连通,可根据需要灵活转换用途。垂直交通、厨房、卫生间等功能隐藏在墙体内部,释放出完整的中央空间用于多种活动。 材料与技术 建筑全部采用现场浇筑的混凝土建造,使用未经处理的木模板形成水平分层纹理。施工采用小型搅拌机和手推车逐层浇筑,模板拆除后的木材被重新利用于室内墙面和滑动面板,体现了材料的循环使用。 项目特色与启发 科尔姆奥文化中心展示了如何通过简单的建筑策略解决复杂的功能需求,其厚重的可居住墙体概念为小型多功能建筑提供了创新思路。项目对材料真实性和施工工艺的关注,为当代建筑实践提供了重要参考。 设计团队 Pezo Von Ellrichshausen是智利知名建筑事务所,由Mauricio Pezo和Sofia von Ellrichshausen创立。事务所以对空间感知、材料特性和建造工艺的深入研究著称,作品涵盖住宅、文化建筑和艺术装置等多个领域。 项目概述 科尔姆奥文化中心位于智利第八大区波利托梅的科尔姆奥半岛,是一座兼具度假住宅与文化中心功能的建筑。项目设计于2002年,2005年建成,建筑面积约300平方米,坐落于悬崖边缘,直面太平洋景观。 设计理念 Pezo Von Ellrichshausen事务所旨在创造一个自主的紧凑体量,捕捉自然基座与悬崖边缘的视觉张力。设计回应了建筑作为度假住宅与文化中心的双重身份,通过未命名的空间和厚重的可居住墙体,实现了公共性与私密性的平衡。 空间与功能 科尔姆奥文化中心采用开放式空间布局,所有服务功能被整合到厚重的周边墙体中。内部空间相互连通,可根据需要灵活转换用途。垂直交通、厨房、卫生间等功能隐藏在墙体内部,释放出完整的中央空间用于多种活动。 材料与技术 建筑全部采用现场浇筑的混凝土建造,使用未经处理的木模板形成水平分层纹理。施工采用小型搅拌机和手推车逐层浇筑,模板拆除后的木材被重新利用于室内墙面和滑动面板,体现了材料的循环使用。 项目特色与启发 科尔姆奥文化中心展示了如何通过简单的建筑策略解决复杂的功能需求,其厚重的可居住墙体概念为小型多功能建筑提供了创新思路。项目对材料真实性和施工工艺的关注,为当代建筑实践提供了重要参考。 设计团队 Pezo Von Ellrichshausen是智利知名建筑事务所,由Mauricio Pezo和Sofia von Ellrichshausen创立。事务所以对空间感知、材料特性和建造工艺的深入研究著称,作品涵盖住宅、文化建筑和艺术装置等多个领域。 本文来自 © Pezo Von Ellrichshausen, 发布于 © 建筑学院官方网站。 未经授权,禁止转载或摘编。 编辑版本版权归 © 建筑学院官方网站 所有, 设计、图纸及照片版权归设计方 © Pezo Von Ellrichshausen ↗ 所有。 查看作者在建筑学院发布的更多作品: Pezo Von Ellrichshausen @ 建筑学院官方网站 Cultural Centre in ColiumoPezo von Ellrichshausen当代建筑文化中心设计智利建筑 Pezo Von Ellrichshausen事务所 & 设计师 下载原图 收藏 0 关于作者 Pezo Von Ellrichshausen事务所 & 设计师 关注私信 22 文章 0 评论 0 粉丝 Pezo Von Ellrichshausen是智利知名建筑事务所,由Mauricio Pezo与Sofia von Ellrichshausen创立。其作品以强烈的雕塑感、对几何形态的探索和材料的诗意运用而闻名,涵盖住宅、艺术装置与展览设计。事务所曾多次参展威尼斯建筑双年展,是南美当代建筑的重要代表。访问官网pezo.cl,探索其深邃而独特的设计世界。 阿伦莫斯二学校展馆 / Pavilion Allenmoos II School Pavilion | Roger Boltshauser 上一篇 2026-03-27 下午9:19 堪培拉游客中心 / Visitor Centre in Canberra | Pezo Von Ellrichshausen 下一篇 2026-03-28 下午3:17 猜你喜欢 Concepción住宅 / House in Concepción | Pezo Von Ellrichshausen 2026-04-05 住宅建筑设计 江南水陆工厂 / The Building on the Water Shilien Chemical Industrial Factory | 阿尔瓦罗·西扎 & 卡洛斯·卡斯塔涅拉 2026-03-04 工业建筑 INES创意中心,智利 / Pezo von Ellrichshausen 2021-03-25 办公建筑设计 厨房塔 / Kitchen Tower | Xaveer de Geyter 2026-02-25 公共建筑设计 科克兰创新中心 / Innovation Centre in Concepción | Pezo Von Ellrichshausen 2026-02-02 公共建筑设计 巴黎圣母院大教堂 Grand Magasin La Samaritaine / Grand Magasin La Samaritaine | SANAA 2026-02-08 商业建筑 发表回复 请登录后评论...登录后才能评论 提交