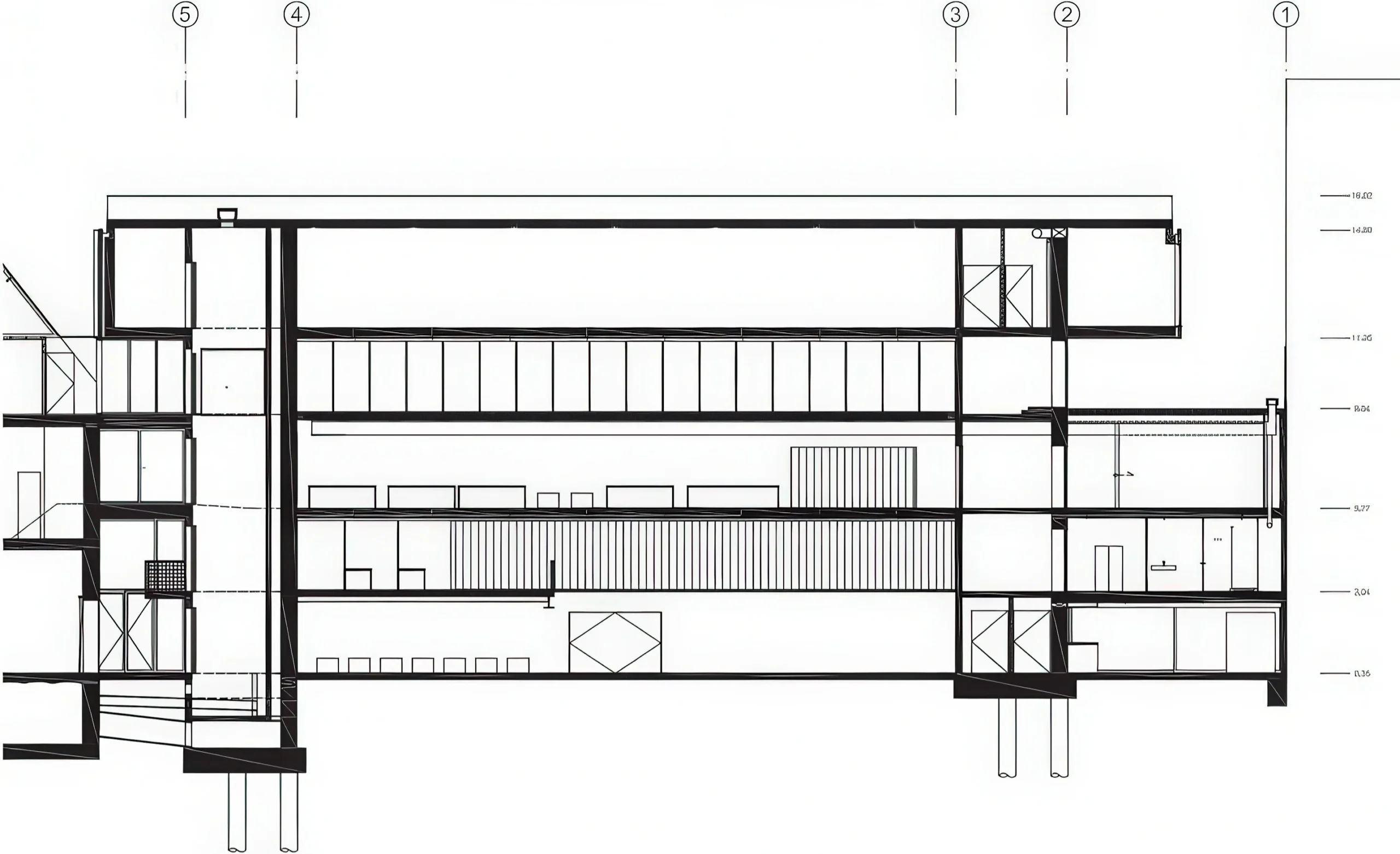
卢塞斯艺术学院 / Sint-Lucas School of Fine Arts | Xaveer de Geyter XaveerdeGeyter • 2026-02-28 下午1:58 • 公共建筑设计, 建筑设计, 教育建筑设计 卢塞斯艺术学院由Xaveer de Geyter设计,位于比利时根特,是一座教育建筑。项目通过三个混凝土体量的错落堆叠,巧妙解决了艺术工作室对顶部采光与封闭墙面的双重需求,同时回应了不规则场地与城市规范的限制。 设计: XaveerdeGeyter 类型: 教育建筑设计 功能: 大学 风格: 当代建筑 材料: 混凝土 玻璃 混合材料 尺度: 中型建筑 地点:根特 时间: 2013年 项目概述 卢塞斯艺术学院(Sint-Lucas School of Fine Arts)位于比利时根特,是一座专为艺术教育设计的建筑。项目在2002年竞赛中获一等奖,于2013年建成,通过三个矩形混凝土体量的堆叠组织空间,满足多种艺术工作室的功能需求。 设计理念 设计核心在于如何在严格的城市规范与不规则梯形场地中,为需要顶部采光与封闭墙面的艺术工作室创造理想空间。Xaveer de Geyter通过三个看似松散堆叠的混凝土体量,既适应了场地限制,又避免了与邻近新哥特式亭楼的冲突,同时实现了顶部采光。 空间与功能 建筑包含双层与单层工作室,两层设有夹层。下层封闭墙面既作为工作区,又作为横跨两端核心的结构梁,最大化内部无柱工作空间。空间组织通过不规则的体量对齐与半透明层填充,塑造了灵活流动的艺术创作环境。 材料与技术 主要采用混凝土、聚碳酸酯与玻璃砖,营造简约而高效的工作室氛围。临街立面混凝土中嵌入不规则树脂块,隐约透出内部活动,增强了建筑与城市的视觉联系。 项目特色与启发 卢塞斯艺术学院展示了在严苛条件下通过体量堆叠与材料创新实现功能与美学的平衡,为艺术教育建筑与城市更新项目提供了灵活应对场地限制的设计参考。 设计团队 Xaveer de Geyter 是一家以城市与建筑研究为导向的设计事务所,擅长在复杂城市语境中通过清晰的空间策略与材料语言创造具有识别度的建筑作品,卢塞斯艺术学院体现了其对功能、结构与场地回应的深入思考。 项目概述 卢塞斯艺术学院(Sint-Lucas School of Fine Arts)位于比利时根特,是一座专为艺术教育设计的建筑。项目在2002年竞赛中获一等奖,于2013年建成,通过三个矩形混凝土体量的堆叠组织空间,满足多种艺术工作室的功能需求。 设计理念 设计核心在于如何在严格的城市规范与不规则梯形场地中,为需要顶部采光与封闭墙面的艺术工作室创造理想空间。Xaveer de Geyter通过三个看似松散堆叠的混凝土体量,既适应了场地限制,又避免了与邻近新哥特式亭楼的冲突,同时实现了顶部采光。 空间与功能 建筑包含双层与单层工作室,两层设有夹层。下层封闭墙面既作为工作区,又作为横跨两端核心的结构梁,最大化内部无柱工作空间。空间组织通过不规则的体量对齐与半透明层填充,塑造了灵活流动的艺术创作环境。 材料与技术 主要采用混凝土、聚碳酸酯与玻璃砖,营造简约而高效的工作室氛围。临街立面混凝土中嵌入不规则树脂块,隐约透出内部活动,增强了建筑与城市的视觉联系。 项目特色与启发 卢塞斯艺术学院展示了在严苛条件下通过体量堆叠与材料创新实现功能与美学的平衡,为艺术教育建筑与城市更新项目提供了灵活应对场地限制的设计参考。 设计团队 Xaveer de Geyter 是一家以城市与建筑研究为导向的设计事务所,擅长在复杂城市语境中通过清晰的空间策略与材料语言创造具有识别度的建筑作品,卢塞斯艺术学院体现了其对功能、结构与场地回应的深入思考。 本文来自 © XaveerdeGeyter, 发布于 © 建筑学院官方网站。 未经授权,禁止转载或摘编。 编辑版本版权归 © 建筑学院官方网站 所有, 设计、图纸及照片版权归设计方 © XaveerdeGeyter ↗ 所有。 查看作者在建筑学院发布的更多作品: XaveerdeGeyter @ 建筑学院官方网站 Sint-Lucas School of Fine ArtsXaveer de Geyter当代建筑根特教育建筑艺术教育建筑 XaveerdeGeyter事务所 & 设计师 下载原图 收藏 0 关于作者 XaveerdeGeyter事务所 & 设计师 关注私信 13 文章 0 评论 0 粉丝 XDGA(Xaveer De Geyter Architects)是1988年由Xaveer De Geyter在布鲁塞尔和巴黎创立的建筑、城市与景观设计事务所。事务所以其激进的设计方法、多元的专业团队和国际化的作品著称,曾获密斯·凡·德罗奖、Bigmat奖等多项重要奖项。XDGA主张建筑不是固定功能或解决问题,而是开启场地的潜在可能,处理不确定性,容纳多样且未预见的生活场景。其作品涵盖文化、教育、居住、商业等多种类型,遍布欧洲及全球。 凯瑞尔全球总部 / Cargill Headquarters | Xaveer de Geyter 上一篇 2026-02-27 下午1:52 斯特拉斯堡经济学院 / Faculty of Economics, Strasbourg | Xaveer de Geyter 下一篇 2026-02-28 下午2:26 猜你喜欢 安特卫普省府大楼 / Province Headquarters, Antwerp | Xaveer de Geyter 2026-02-25 公共建筑设计 罗杰广场,布鲁塞尔 / Place Rogier, Brussels | Xaveer de Geyter 2026-02-28 公共空间设计 凯瑞尔全球总部 / Cargill Headquarters | Xaveer de Geyter 2026-02-27 公共建筑设计 赫斯塔特的 Z33 博物馆 / Z33 Museum, Hasselt | Xaveer de Geyter 2026-02-27 公共建筑设计 克瑞塔斯的房子 / House in Cretas | Pezo Von Ellrichshausen 2026-02-02 住宅建筑设计 悉尼现代项目 / Sydney Modern Project | SANAA 2026-02-24 公共建筑设计 发表回复 请登录后评论...登录后才能评论 提交