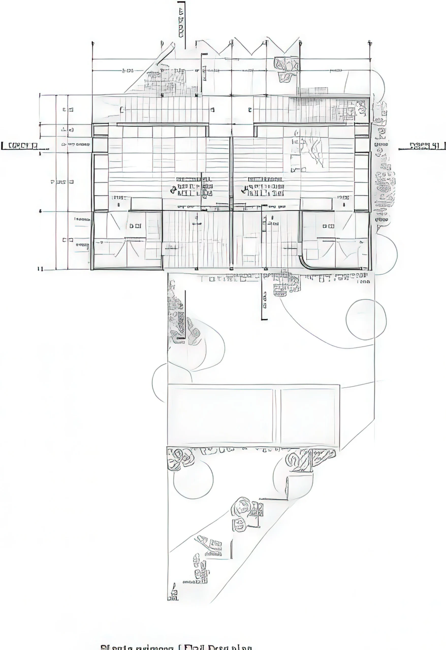
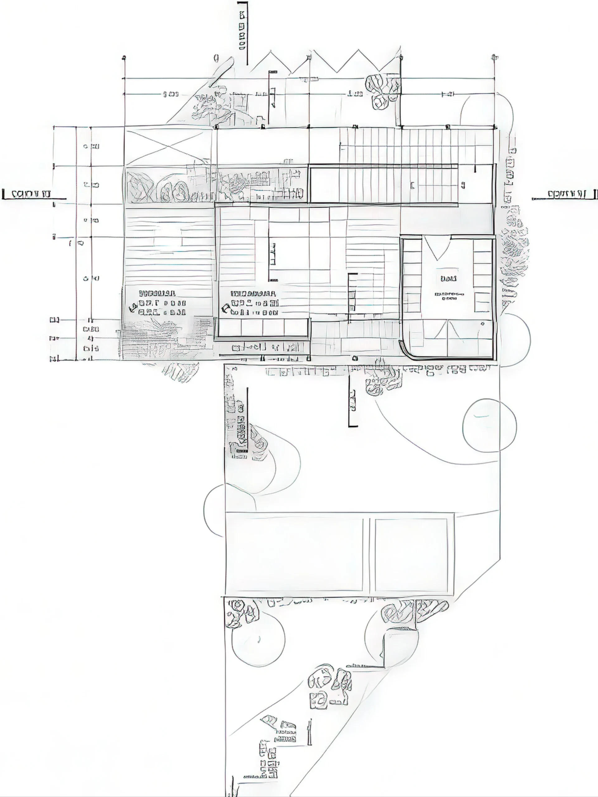
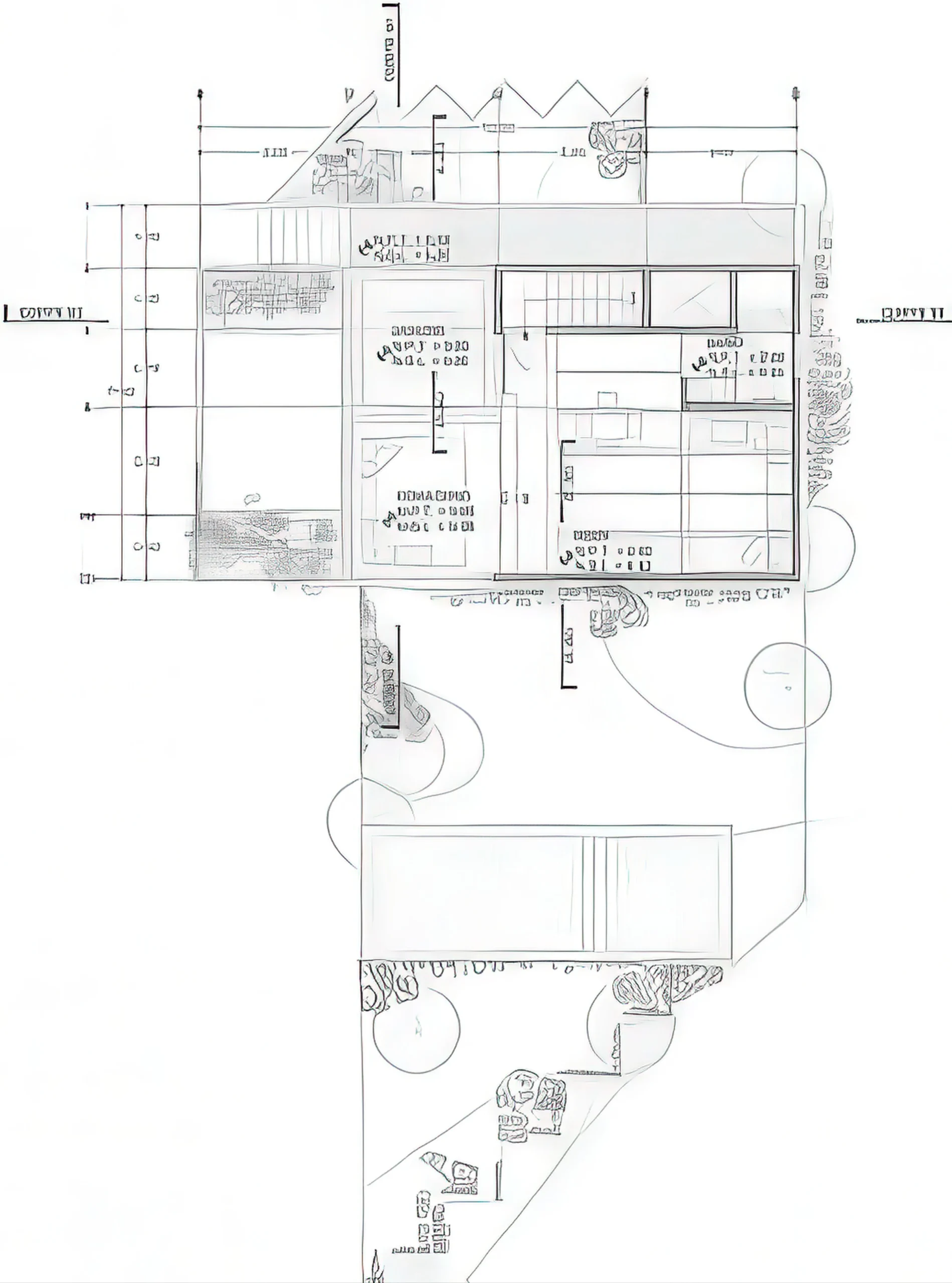
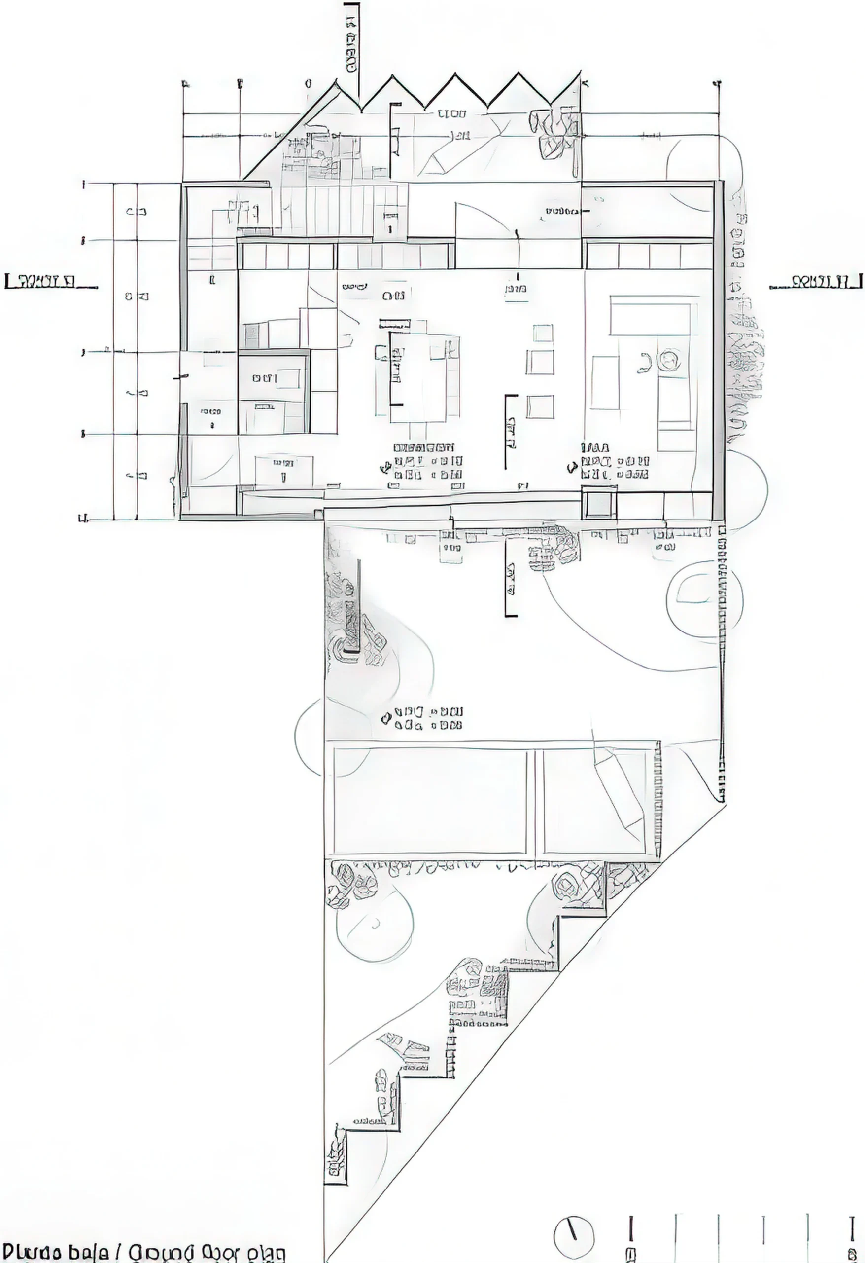
Tulum的六座房屋 / Six Houses in Tulum | Taller Héctor Barroso tallerhectorbarroso • 2026-02-20 下午9:25 • 住宅建筑设计, 建筑设计, 独立住宅设计 Tulum的六座房屋由Taller Héctor Barroso设计,位于墨西哥尤卡坦半岛加勒比海岸的图卢姆丛林中。该项目通过中央水道组织六个住宅体量,形成与自然融合的社区空间,采用木材与楚库姆材料,最大限度减少对生态环境的影响。 设计: tallerhectorbarroso 类型: 独立住宅设计 功能: 独立住宅 风格: 可持续建筑 材料: 尺度: 小型建筑 地点:图卢姆 时间: 1970年 项目概述 Tulum的六座房屋项目位于墨西哥金塔纳罗奥州的图卢姆,由Taller Héctor Barroso设计,属于住宅建筑类型。项目占地约—,设计始于2021年,通过分层布局在丛林中创造和谐的人居环境。 设计理念 Taller Héctor Barroso的设计理念强调建筑与自然的深度融合,以中央水道为核心组织六个住宅体量,形成最小生态足迹的社区。设计回应热带丛林环境,创造过渡空间让使用者体验树影、水声与自然通风。 空间与功能 Tulum的六座房屋采用四层布局,首层释放为邻里交流的公共区域,通过庭院相互连接。上层设置私密空间,配备大窗户实现与自然的直接接触。流线设计强化室内外过渡,让建筑与丛林环境形成连续体验。 材料与技术 项目主要使用木材和楚库姆传统材料,结构采用混凝土梁板体系。施工注重环境友好,利用自然通风与遮阳策略减少能耗,材料选择体现地域特色与可持续理念。 项目特色与启发 Tulum的六座房屋展示了热带地区住宅设计的新可能,通过空间组织与材料运用实现建筑与生态的平衡。该项目为丛林环境下的住宅开发提供了有价值的参考。 设计团队 Taller Héctor Barroso是墨西哥知名建筑事务所,专注于地域性建筑与可持续设计。团队擅长将自然元素融入建筑,在住宅与文化项目中展现独特的环境回应策略。 项目概述 Tulum的六座房屋项目位于墨西哥金塔纳罗奥州的图卢姆,由Taller Héctor Barroso设计,属于住宅建筑类型。项目占地约—,设计始于2021年,通过分层布局在丛林中创造和谐的人居环境。 设计理念 Taller Héctor Barroso的设计理念强调建筑与自然的深度融合,以中央水道为核心组织六个住宅体量,形成最小生态足迹的社区。设计回应热带丛林环境,创造过渡空间让使用者体验树影、水声与自然通风。 空间与功能 Tulum的六座房屋采用四层布局,首层释放为邻里交流的公共区域,通过庭院相互连接。上层设置私密空间,配备大窗户实现与自然的直接接触。流线设计强化室内外过渡,让建筑与丛林环境形成连续体验。 材料与技术 项目主要使用木材和楚库姆传统材料,结构采用混凝土梁板体系。施工注重环境友好,利用自然通风与遮阳策略减少能耗,材料选择体现地域特色与可持续理念。 项目特色与启发 Tulum的六座房屋展示了热带地区住宅设计的新可能,通过空间组织与材料运用实现建筑与生态的平衡。该项目为丛林环境下的住宅开发提供了有价值的参考。 设计团队 Taller Héctor Barroso是墨西哥知名建筑事务所,专注于地域性建筑与可持续设计。团队擅长将自然元素融入建筑,在住宅与文化项目中展现独特的环境回应策略。 本文来自 © tallerhectorbarroso, 发布于 © 建筑学院官方网站。 未经授权,禁止转载或摘编。 编辑版本版权归 © 建筑学院官方网站 所有, 设计、图纸及照片版权归设计方 © tallerhectorbarroso ↗ 所有。 查看作者在建筑学院发布的更多作品: tallerhectorbarroso @ 建筑学院官方网站 Six Houses in TulumTaller Héctor Barroso住宅设计可持续建筑图卢姆建筑 tallerhectorbarroso事务所 & 设计师 下载原图 收藏 0 关于作者 tallerhectorbarroso事务所 & 设计师 关注私信 14 文章 0 评论 0 粉丝 Taller Héctor Barroso是墨西哥知名建筑事务所,由Héctor Barroso Riba于2008年创立。工作室以"林中静谧"的设计哲学著称,擅长利用当地自然资源如植被、土壤和地理特征,创造与自然环境深度融合的建筑方案。其作品曾荣获加拿大AZ奖最佳住宅建筑奖、墨西哥双年展青年建筑师金牌等多项国际荣誉。Taller Héctor Barroso通过尊重场地文脉和采用本土材料,实现建筑与自然的和谐共生,在住宅和度假项目领域具有独特影响力。 帕拉尔大街工作室和公寓 / Studio and Apartment on Calle Parral | Taller Héctor Barroso 上一篇 2026-02-20 下午9:24 Sierra Mimbre公寓建筑 / SIERRA MIMBRES APARTMENT BUILDING | Taller Héctor Barroso 下一篇 2026-02-21 下午10:06 猜你喜欢 帕劳Solità岛Plegamans的住宅 / House in Palau Solità i Plegamans | HArquitectes 2026-02-12 住宅建筑设计 塔卢姆六座房屋 / Six Houses in Tulum | Taller Héctor Barroso 2026-02-19 住宅建筑设计 帕拉尔大街工作室和公寓 / Studio and Apartment on Calle Parral | Taller Héctor Barroso 2026-02-20 住宅建筑设计 健康疗养在哈巴纳 / Wellness Retreat in Habarana | 帕琳达·坎南加拉|Palinda Kannangara 2026-04-09 商业与综合建筑 学生宿舍,ETSAV校园 / Student Residence, ETSAV Campus | HArquitectes 2026-04-05 公共建筑设计 花园餐厅 / Restaurant in a Garden | Estúdio Gustavo Utrabo 2026-03-31 商业与综合建筑 发表回复 请登录后评论...登录后才能评论 提交