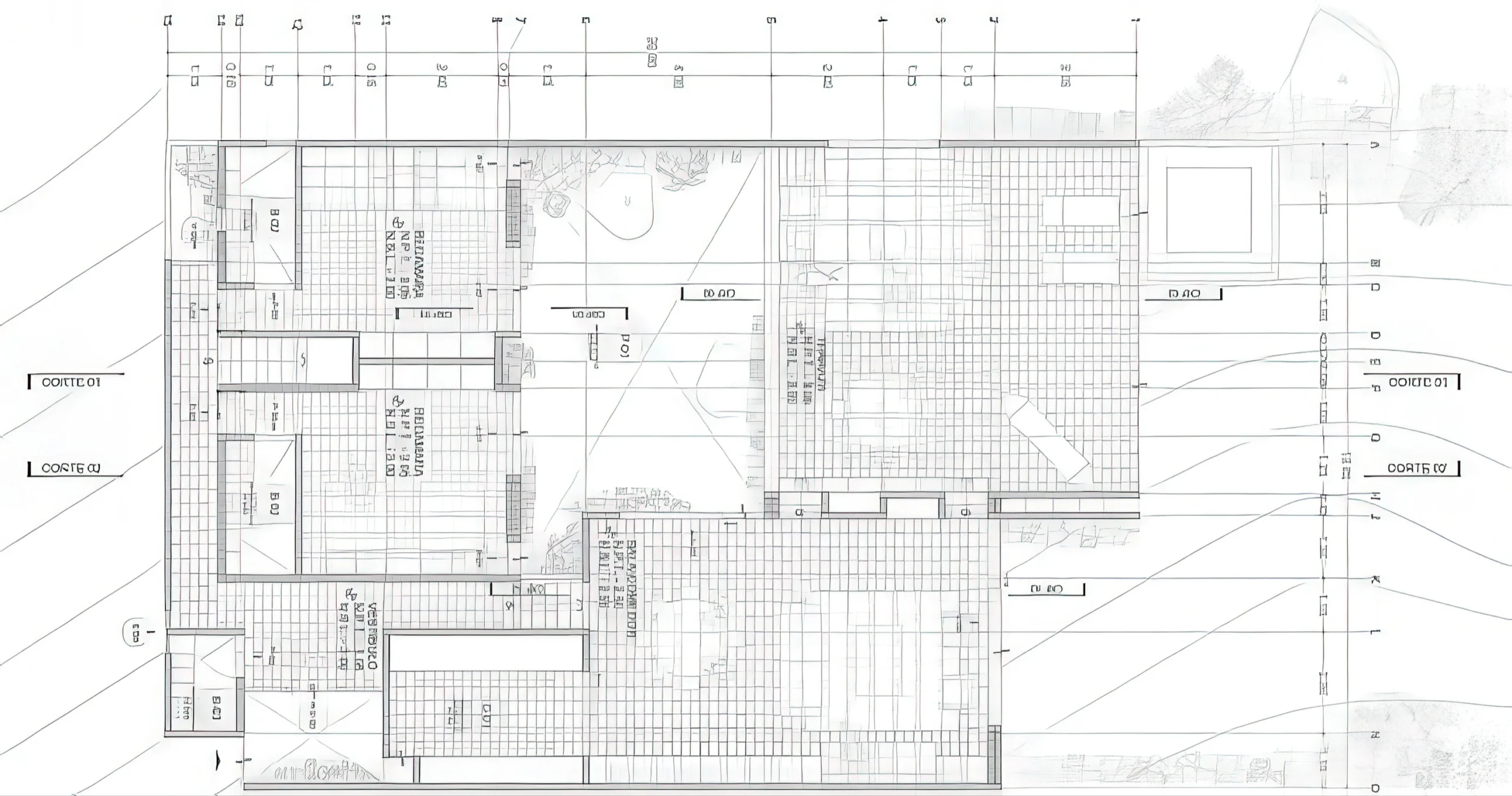
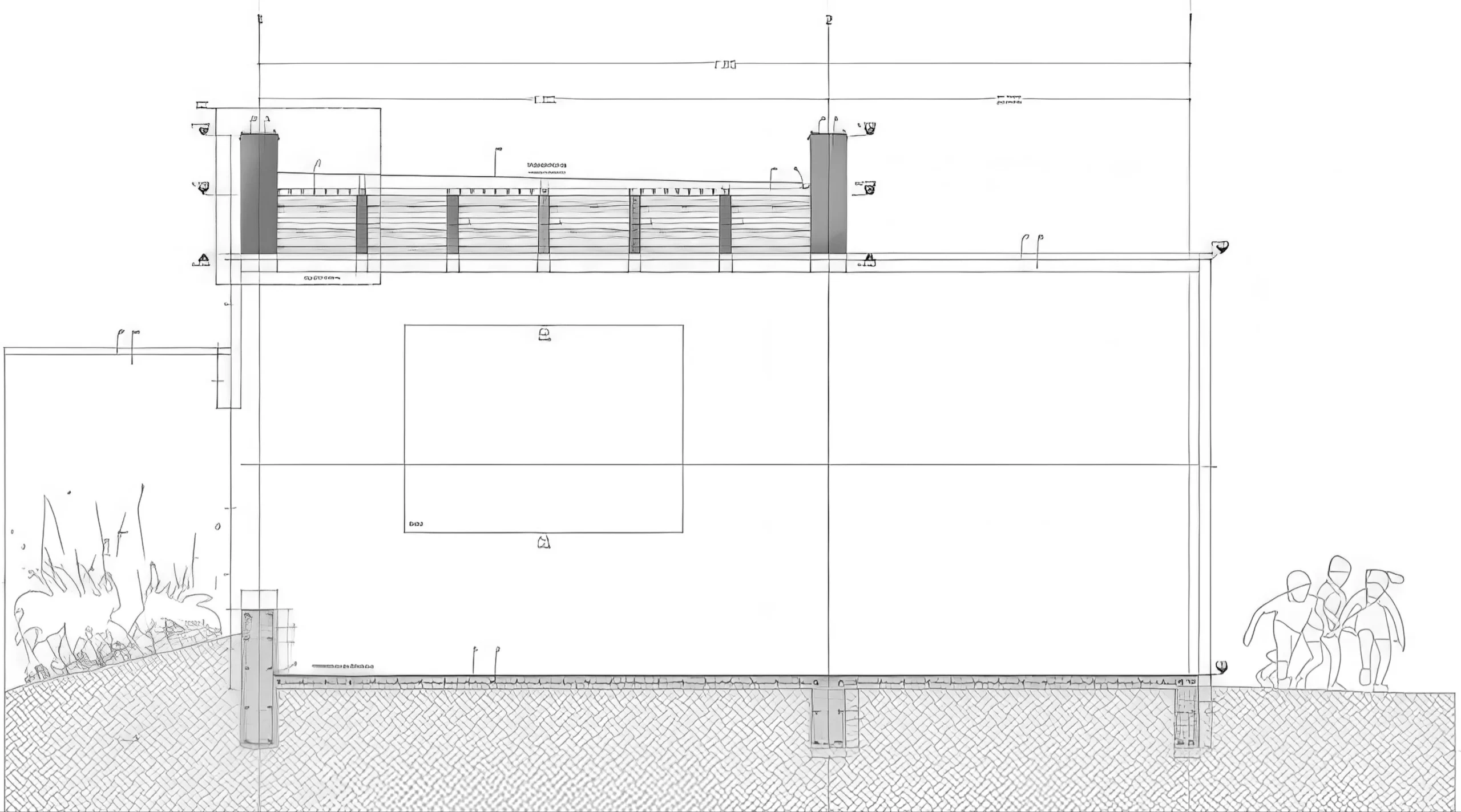
洛杉矶四座房子 / FOUR HOUSES IN LOS HELECHOS | Taller Héctor Barroso tallerhectorbarroso • 2026-02-18 下午2:40 • 住宅建筑设计, 建筑设计, 独立住宅设计 洛杉矶四座房子由Taller Héctor Barroso设计,位于墨西哥布拉沃谷的四栋独立住宅群。项目巧妙适应陡峭地形,通过内向庭院组织空间,创造建筑与自然的亲密对话,展现极简主义住宅的静谧美学。 设计: tallerhectorbarroso 类型: 独立住宅设计 功能: 独立住宅 风格: 极简主义 材料: 混凝土 木材 砖材 尺度: 小型建筑 地点:布拉沃谷 时间: 1970年 项目概述 洛杉矶四座房子是位于墨西哥布拉沃谷的四栋独立住宅群,由Taller Héctor Barroso设计。项目建于2019-2022年,占地面积适中,完美适应陡峭地形,最大限度减少对原始地貌的干扰。 设计理念 设计以”静谧建筑”为核心概念,强调建筑与自然的和谐共生。通过内向庭院组织空间,让住宅在保持私密性的同时与自然环境建立直接联系,创造内外交融的生活体验。 空间与功能 空间布局分为公共与私密两个层次:首层公共空间采用开放式木结构屋顶,完全向外部开放;上层私密空间则隐藏在实墙与当地土壤屋顶之下。交通流线巧妙连接两个区域,中央庭院成为整个建筑群的核心。 材料与技术 项目采用红砖墙、钢筋混凝土挡土墙、木结构屋顶和当地土壤等材料,体现地域特色。结构设计精准适应陡峭地形,施工工艺注重细节,确保建筑与环境的完美融合。 项目特色与启发 洛杉矶四座房子展示了如何在复杂地形中创造和谐居住环境的典范。其内向庭院设计、材料选择与地形适应性为山地住宅设计提供了重要参考,体现了当代住宅建筑的生态敏感性。 设计团队 Taller Héctor Barroso是墨西哥知名建筑事务所,专注于住宅与小型建筑项目。其设计理念强调建筑与环境的对话,善于运用当地材料创造具有地域特色的现代建筑语言。 项目概述 洛杉矶四座房子是位于墨西哥布拉沃谷的四栋独立住宅群,由Taller Héctor Barroso设计。项目建于2019-2022年,占地面积适中,完美适应陡峭地形,最大限度减少对原始地貌的干扰。 设计理念 设计以”静谧建筑”为核心概念,强调建筑与自然的和谐共生。通过内向庭院组织空间,让住宅在保持私密性的同时与自然环境建立直接联系,创造内外交融的生活体验。 空间与功能 空间布局分为公共与私密两个层次:首层公共空间采用开放式木结构屋顶,完全向外部开放;上层私密空间则隐藏在实墙与当地土壤屋顶之下。交通流线巧妙连接两个区域,中央庭院成为整个建筑群的核心。 材料与技术 项目采用红砖墙、钢筋混凝土挡土墙、木结构屋顶和当地土壤等材料,体现地域特色。结构设计精准适应陡峭地形,施工工艺注重细节,确保建筑与环境的完美融合。 项目特色与启发 洛杉矶四座房子展示了如何在复杂地形中创造和谐居住环境的典范。其内向庭院设计、材料选择与地形适应性为山地住宅设计提供了重要参考,体现了当代住宅建筑的生态敏感性。 设计团队 Taller Héctor Barroso是墨西哥知名建筑事务所,专注于住宅与小型建筑项目。其设计理念强调建筑与环境的对话,善于运用当地材料创造具有地域特色的现代建筑语言。 本文来自 © tallerhectorbarroso, 发布于 © 建筑学院官方网站。 未经授权,禁止转载或摘编。 编辑版本版权归 © 建筑学院官方网站 所有, 设计、图纸及照片版权归设计方 © tallerhectorbarroso ↗ 所有。 查看作者在建筑学院发布的更多作品: tallerhectorbarroso @ 建筑学院官方网站 Four Houses in Los HelechosTaller Héctor Barroso布拉沃谷住宅极简主义住宅独立住宅设计 tallerhectorbarroso事务所 & 设计师 下载原图 收藏 0 关于作者 tallerhectorbarroso事务所 & 设计师 关注私信 14 文章 0 评论 0 粉丝 Taller Héctor Barroso是墨西哥知名建筑事务所,由Héctor Barroso Riba于2008年创立。工作室以"林中静谧"的设计哲学著称,擅长利用当地自然资源如植被、土壤和地理特征,创造与自然环境深度融合的建筑方案。其作品曾荣获加拿大AZ奖最佳住宅建筑奖、墨西哥双年展青年建筑师金牌等多项国际荣誉。Taller Héctor Barroso通过尊重场地文脉和采用本土材料,实现建筑与自然的和谐共生,在住宅和度假项目领域具有独特影响力。 安纳阿戈拉斯公寓楼 / ANAXÁGORAS APARTMENT BUILDING | Taller Héctor Barroso 上一篇 2026-02-17 下午4:33 洛佩兹科尔蒂亚710公寓楼 / LÓPEZ COTILLA 710 APARTMENT BUILDING | Taller Héctor Barroso 下一篇 2026-02-18 下午2:40 猜你喜欢 梅诺卡的Son Parc住宅 / Son Parc House in Menorca | RCR 建筑事务所|RCR Arquitectes 2025-11-19 公共建筑设计 珊瑚岛住宅 Archipelago House | 谭姆与维德高德建筑事务所|Tham & Videgård 2025-11-09 住宅室内设计 圣弗朗西斯科文化公园花园 / Jardim Sao Francisco Cultural Centre | Estúdio Gustavo Utrabo 2026-01-03 住宅建筑设计 库拉卡维房屋 / House in Curacaví | Pezo Von Ellrichshausen 2026-02-07 住宅建筑设计 阿尔坎波查屋 / House in Alcobaça | 艾雷斯·马特乌斯建筑事务所 2025-11-02 公共建筑设计 Bredören 住宅 / House in Bredören | Arrhov Frick 建筑事务所 2026-01-20 住宅建筑设计 发表回复 请登录后评论...登录后才能评论 提交