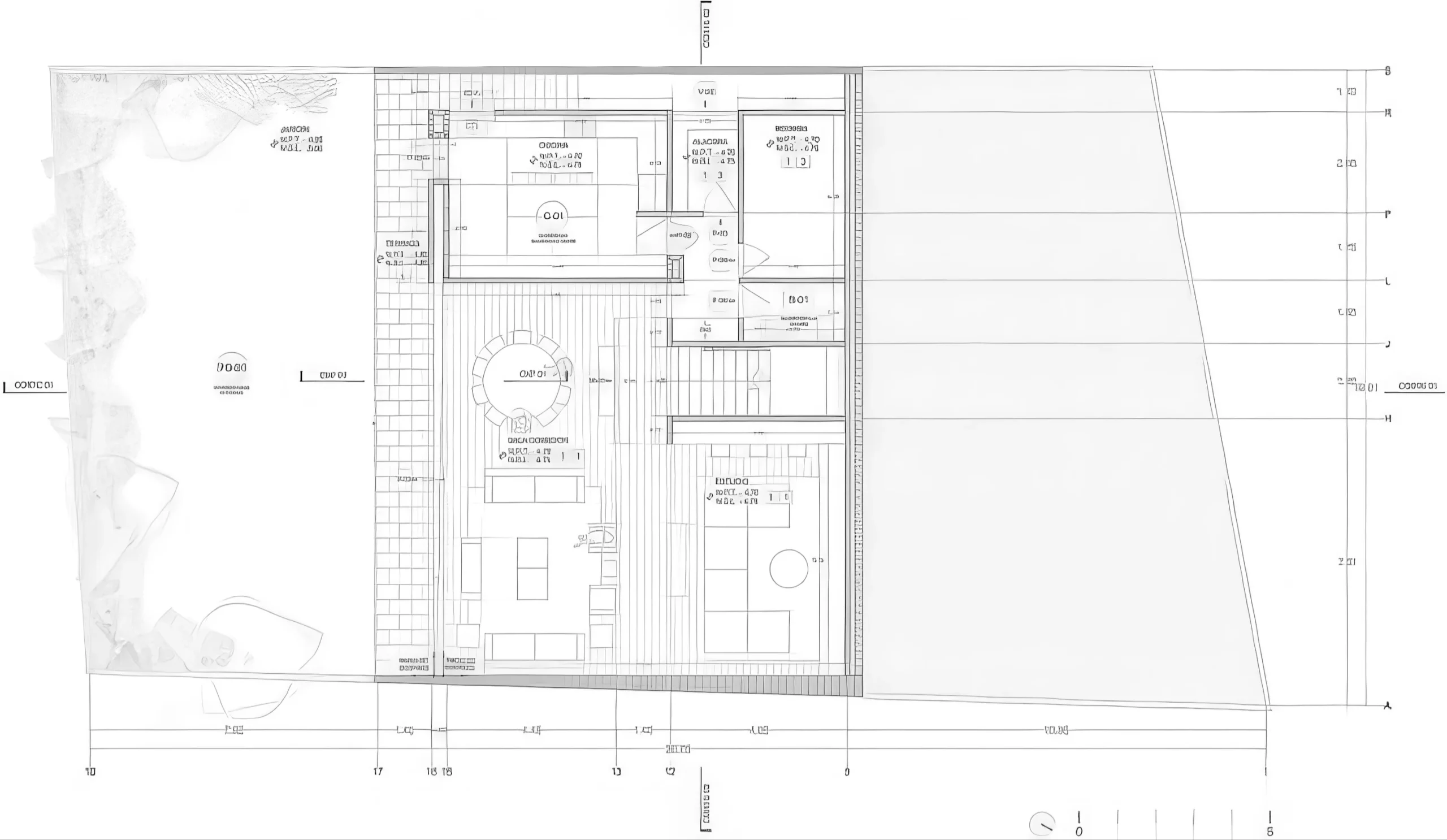
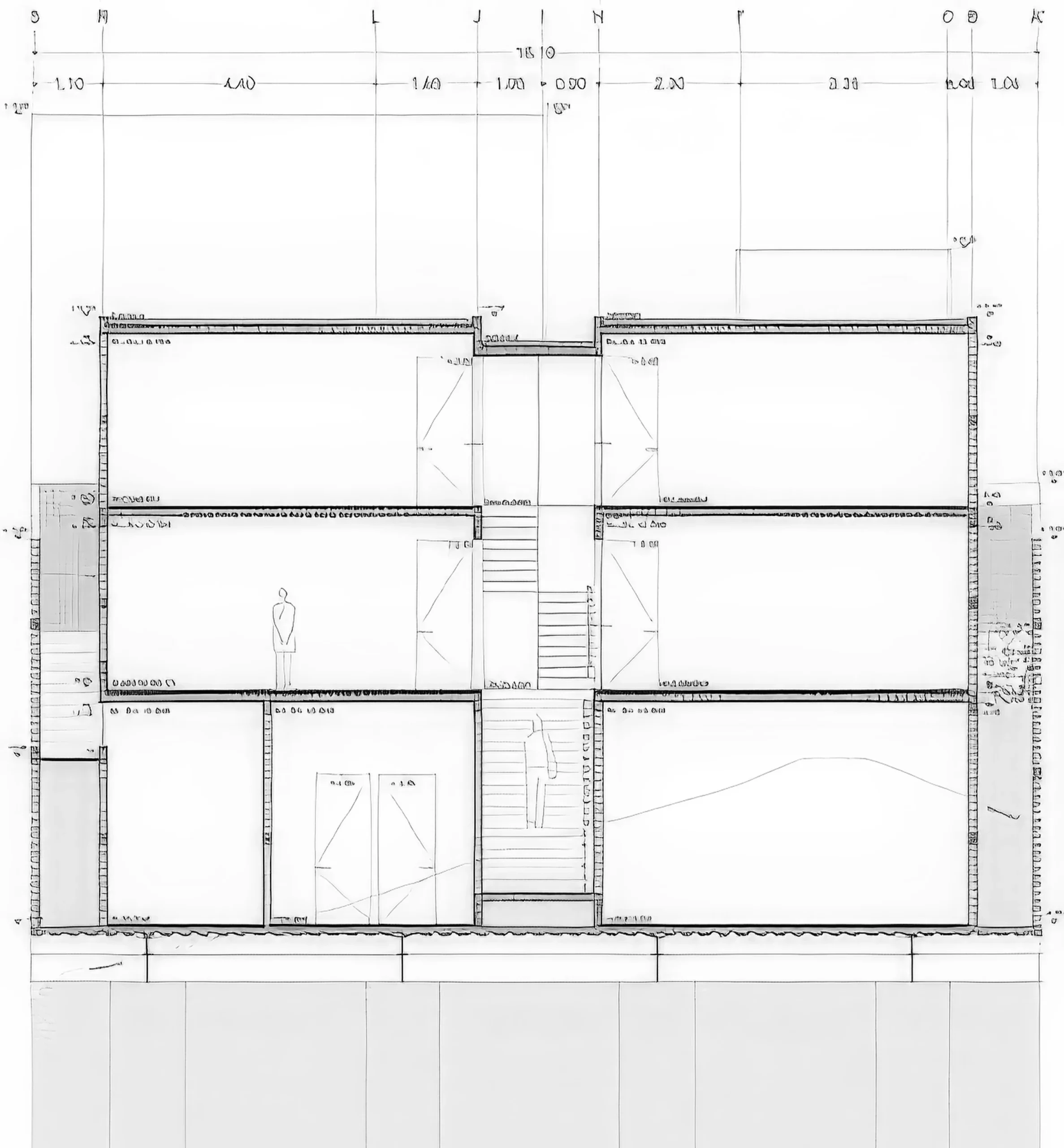
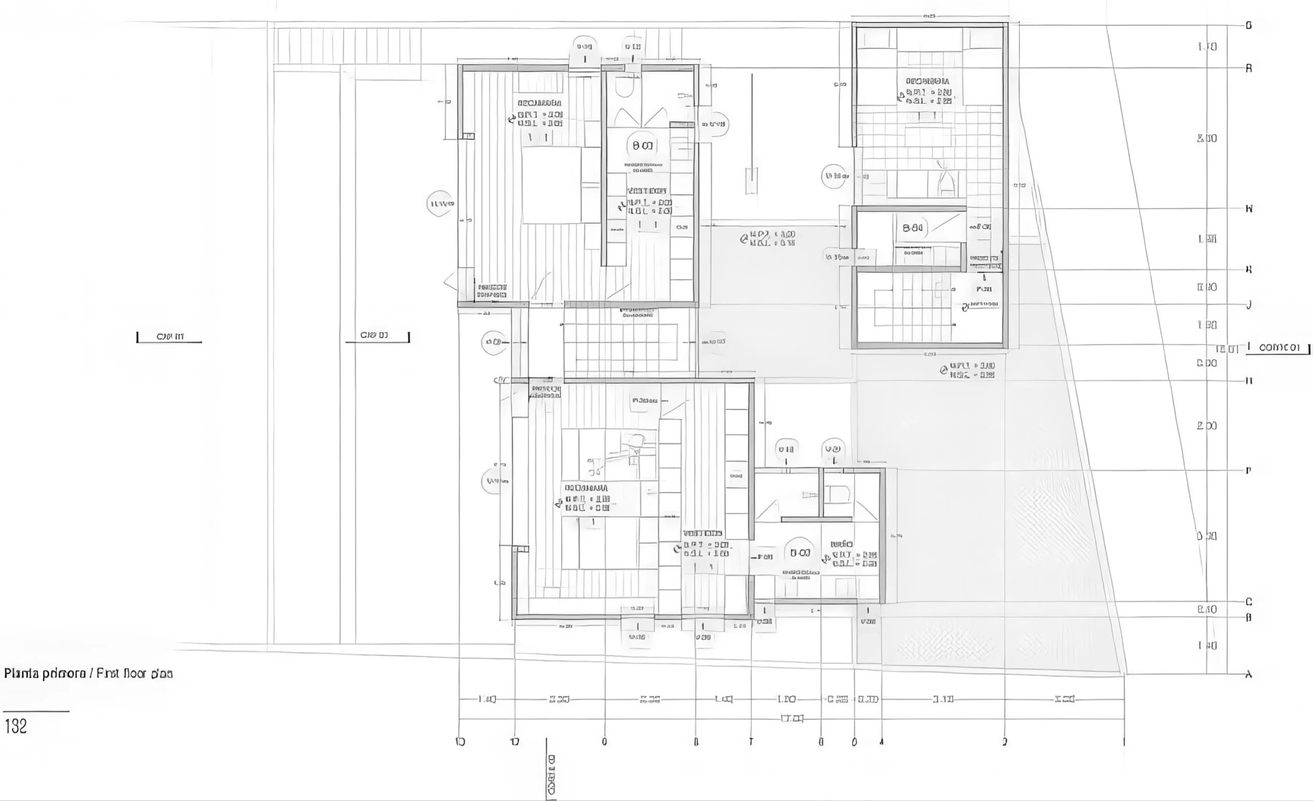
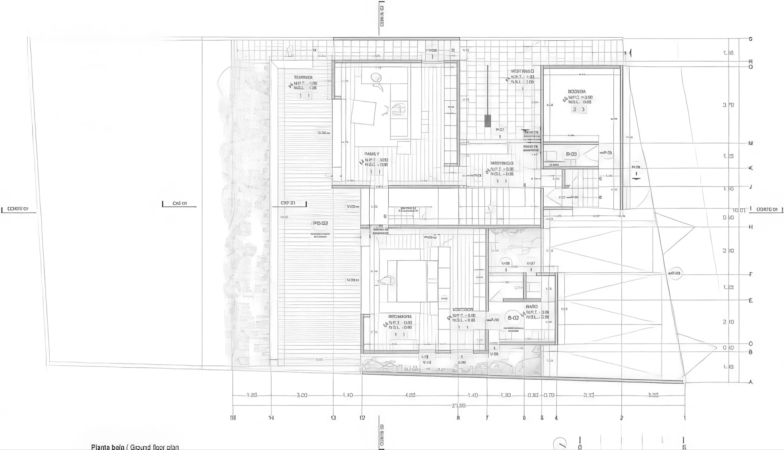
加那达之家 / Cañada House | Taller Héctor Barroso tallerhectorbarroso • 2026-02-17 下午4:33 • 住宅建筑设计, 建筑设计, 独立住宅设计 加那达之家由Taller Héctor Barroso设计,位于墨西哥城两座山脉之间的空隙地带。这座独立住宅通过矩形体量与两侧抬升的私密空间,重新诠释场地特征,让自然景观在建筑中自由展开,创造静谧而富有诗意的居住体验。 设计: tallerhectorbarroso 类型: 独立住宅设计 功能: 独立住宅 风格: 现代主义 材料: 混凝土 木材 玻璃 石材 尺度: 小型建筑 地点:墨西哥城 时间: 2021年 项目概述 加那达之家位于墨西哥城,是一座独立住宅项目,由Taller Héctor Barroso设计。项目建于2018年至2021年间,巧妙利用两座山脉间的空隙场地,通过多个体量组合创造与自然共生的居住空间。 设计理念 加那达之家的设计灵感源于对场地原始状态的想象,旨在不改变原有空隙的同时赋予其新意义。设计团队通过矩形基座体量容纳社交空间,两侧抬升的体量承载私密功能,让建筑成为自然景观的延伸而非干扰。 空间与功能 建筑空间组织清晰明确:中央矩形体量集中布置客厅、餐厅等社交区域,两侧抬升体量容纳卧室等私密空间。连接公私区域的廊道系统创造了丰富的行进体验,外部连续路径与内部转折流线形成对比,营造空间隔离感。 材料与技术 项目采用简洁的材料调色板,包括灰色采石石板、混凝土、木材和玻璃等。材料选择注重突出建筑细节而非形式,让自然过程成为建筑表现的核心。结构体系与场地地形紧密结合,实现建筑与环境的和谐共生。 项目特色与启发 加那达之家的独特之处在于其对场地记忆的尊重与重新诠释,通过建筑体量与自然景观的对话,创造了一个静观自然变化的居住场所。该项目为山地住宅设计提供了新的思路,展示了建筑如何在不破坏环境的前提下赋予场地新生命。 设计团队 Taller Héctor Barroso是墨西哥知名建筑事务所,专注于住宅与小型建筑项目。其设计理念强调建筑与自然环境的紧密联系,通过简洁的形式、恰当的材料和细致的空间处理,创造具有场所精神的建筑作品。加那达之家充分体现了该事务所在住宅设计方面的专业能力。 项目概述 加那达之家位于墨西哥城,是一座独立住宅项目,由Taller Héctor Barroso设计。项目建于2018年至2021年间,巧妙利用两座山脉间的空隙场地,通过多个体量组合创造与自然共生的居住空间。 设计理念 加那达之家的设计灵感源于对场地原始状态的想象,旨在不改变原有空隙的同时赋予其新意义。设计团队通过矩形基座体量容纳社交空间,两侧抬升的体量承载私密功能,让建筑成为自然景观的延伸而非干扰。 空间与功能 建筑空间组织清晰明确:中央矩形体量集中布置客厅、餐厅等社交区域,两侧抬升体量容纳卧室等私密空间。连接公私区域的廊道系统创造了丰富的行进体验,外部连续路径与内部转折流线形成对比,营造空间隔离感。 材料与技术 项目采用简洁的材料调色板,包括灰色采石石板、混凝土、木材和玻璃等。材料选择注重突出建筑细节而非形式,让自然过程成为建筑表现的核心。结构体系与场地地形紧密结合,实现建筑与环境的和谐共生。 项目特色与启发 加那达之家的独特之处在于其对场地记忆的尊重与重新诠释,通过建筑体量与自然景观的对话,创造了一个静观自然变化的居住场所。该项目为山地住宅设计提供了新的思路,展示了建筑如何在不破坏环境的前提下赋予场地新生命。 设计团队 Taller Héctor Barroso是墨西哥知名建筑事务所,专注于住宅与小型建筑项目。其设计理念强调建筑与自然环境的紧密联系,通过简洁的形式、恰当的材料和细致的空间处理,创造具有场所精神的建筑作品。加那达之家充分体现了该事务所在住宅设计方面的专业能力。 本文来自 © tallerhectorbarroso, 发布于 © 建筑学院官方网站。 未经授权,禁止转载或摘编。 编辑版本版权归 © 建筑学院官方网站 所有, 设计、图纸及照片版权归设计方 © tallerhectorbarroso ↗ 所有。 查看作者在建筑学院发布的更多作品: tallerhectorbarroso @ 建筑学院官方网站 Canada HouseTaller Héctor Barroso墨西哥城住宅独立住宅设计现代主义住宅 tallerhectorbarroso事务所 & 设计师 下载原图 收藏 0 关于作者 tallerhectorbarroso事务所 & 设计师 关注私信 14 文章 0 评论 0 粉丝 Taller Héctor Barroso是墨西哥知名建筑事务所,由Héctor Barroso Riba于2008年创立。工作室以"林中静谧"的设计哲学著称,擅长利用当地自然资源如植被、土壤和地理特征,创造与自然环境深度融合的建筑方案。其作品曾荣获加拿大AZ奖最佳住宅建筑奖、墨西哥双年展青年建筑师金牌等多项国际荣誉。Taller Héctor Barroso通过尊重场地文脉和采用本土材料,实现建筑与自然的和谐共生,在住宅和度假项目领域具有独特影响力。 新日铁市厅 / The New Hitachi City Hall | SANAA 上一篇 2026-02-15 上午9:00 安纳阿戈拉斯公寓楼 / ANAXÁGORAS APARTMENT BUILDING | Taller Héctor Barroso 下一篇 2026-02-17 下午4:33 猜你喜欢 House at the Bäumle / Vertical Living | 贝尔纳多·巴德尔|Bernardo Bader 2026-01-18 住宅建筑设计 塞塔克戈特-德-瓦利斯区的房屋 / House in Sant Cugat del Vallés | HArquitectes 2026-04-07 住宅建筑设计 坡上的房子 House on a Slope | Karamuk Kuo 建筑事务所|Karamuk Kuo 2025-10-26 公共建筑设计 两座房子 / House+House | Estúdio Gustavo Utrabo 2026-03-30 住宅建筑设计 圣楚尔瓦住宅 House in Stürcherwald | 贝尔纳多·巴德尔|Bernardo Bader 2025-10-30 公共建筑设计 巴西贝萨雷斯保护区两座房子 | 曼努埃尔·塞万提斯|Manuel Cervantes 2025-12-07 公共建筑设计 发表回复 请登录后评论...登录后才能评论 提交