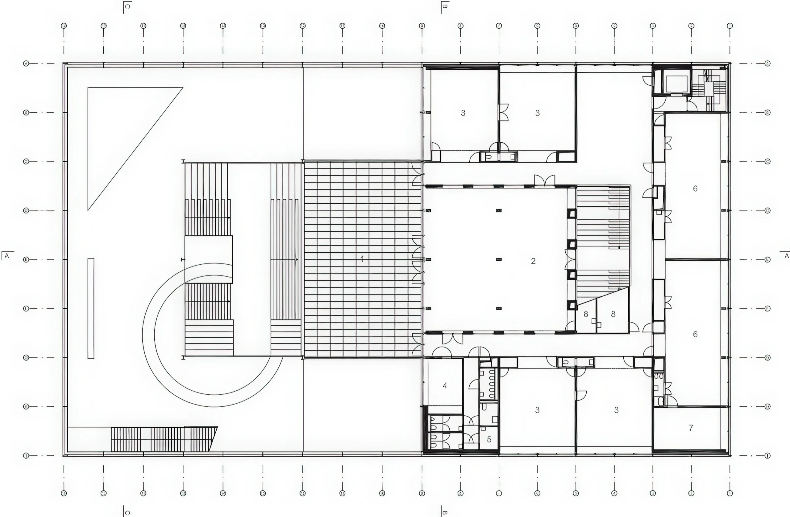
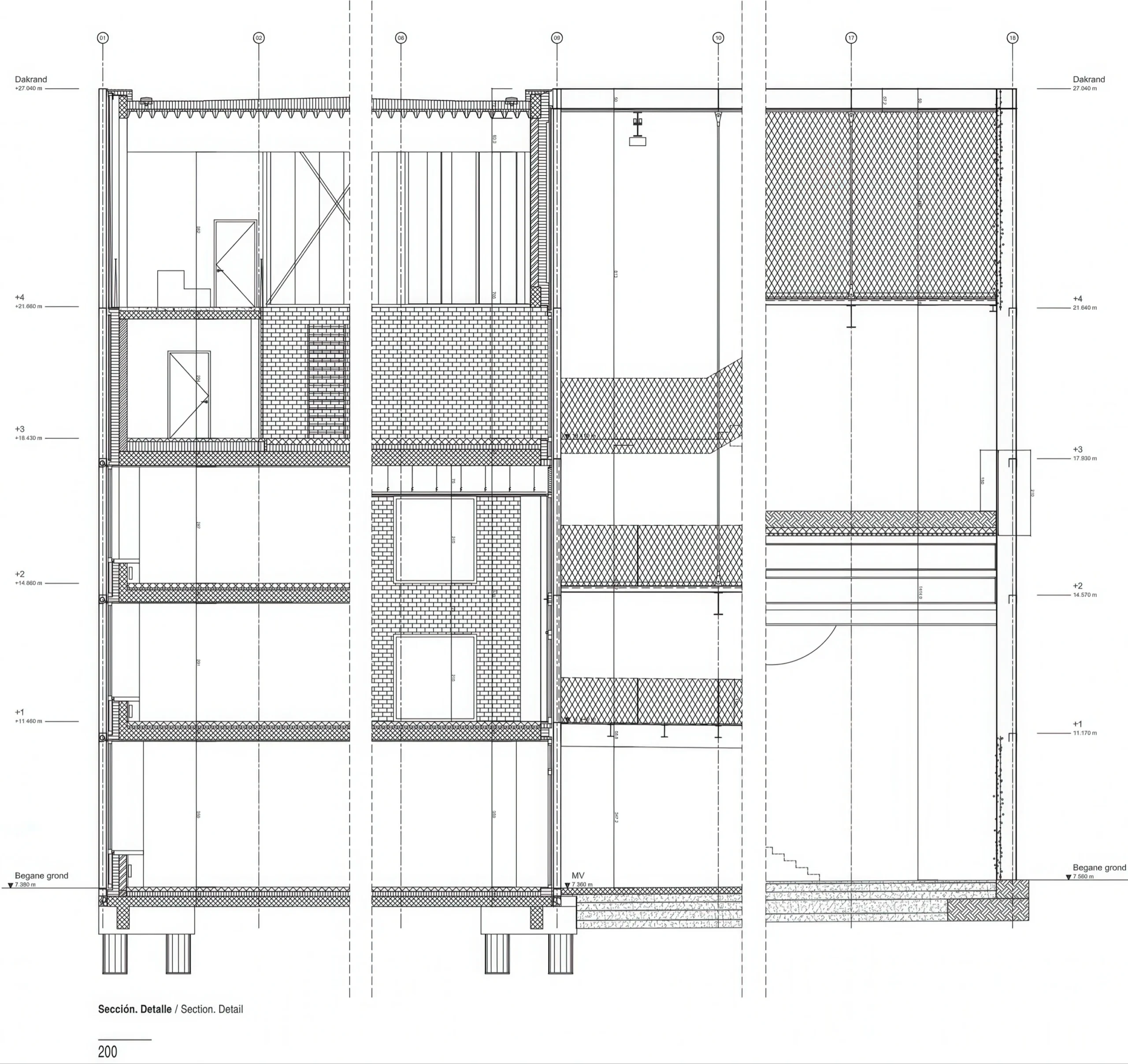
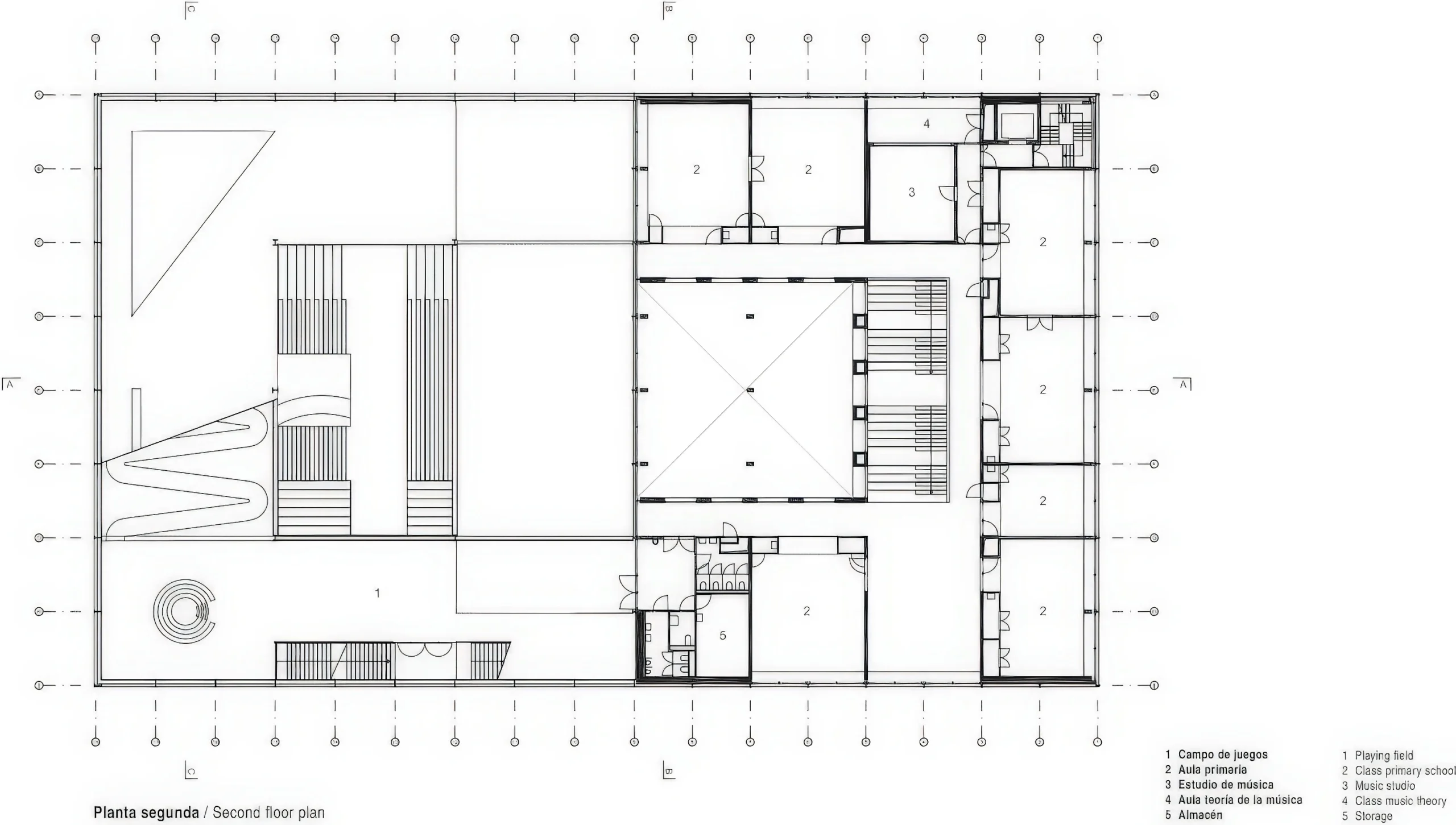
Melopee 多功能学校建筑 / Melopee Multipurpose School Building | Xaveer de Geyter Architects XaveerdeGeyter • 2026-02-26 上午9:21 • 公共建筑设计, 建筑设计, 教育建筑设计 Melopee 多功能学校建筑由 Xaveer de Geyter Architects 设计,位于比利时根特港区。该项目将小学、课后活动中心、托儿所和体育设施整合在一个紧凑的建筑体中,通过创新的垂直堆叠游戏场地和公共通道设计,解决了城市密集区域的教育空间需求。 设计: XaveerdeGeyter 类型: 教育建筑设计 功能: 学校 风格: 当代建筑 材料: 钢材 玻璃 金属板 尺度: 中型建筑 地点:根特 时间: 2020年 项目概述 Melopee 多功能学校建筑位于比利时根特港区,由 Xaveer de Geyter Architects 设计,项目于2015年竞赛获奖,2020年建成。这座教育建筑集小学、托儿所、课后活动中心和社区体育设施于一体,在有限的场地内创造了丰富的教育空间。 设计理念 Xaveer de Geyter Architects 采用”筷子”式城市规划概念,将最大建筑体量分为两个部分:一个容纳室内功能的紧凑建筑和一个堆叠户外游戏区域的空间。设计通过公共路径贯穿整个场地,为线性规划注入了中心感,同时解决了场地空间不足的问题。 空间与功能 Melopee 多功能学校建筑的空间组织巧妙地将室内功能与室外游戏区域分离。紧凑的建筑体量容纳了教室、办公区、厨房等室内功能,而室外部分则垂直堆叠了多个游戏场地。公共通道从建筑下方穿过,连接了南北两侧的开放空间,创造了独特的空间体验。 材料与技术 建筑采用镀锌钢骨架统一两个部分,室内体量的立面设计为透明和半透明聚碳酸酯、玻璃及铝制百叶的拼贴组合。室外结构包裹在钢网中,预留大型”窗口”并种植攀缘植物,体现了材料创新与生态设计的结合。 项目特色与启发 Melopee 多功能学校建筑展示了在密集城市环境中如何通过垂直堆叠和空间整合创造高质量教育设施的创新方法。Xaveer de Geyter Architects 的设计为城市更新项目中的教育建筑提供了重要参考,特别是在处理复杂功能与有限场地关系方面具有示范意义。 设计团队 Xaveer de Geyter Architects 是比利时知名建筑事务所,以创新的城市设计和建筑方案著称。事务所在城市更新、公共建筑和文化项目方面拥有丰富经验,其设计注重空间逻辑、材料表达与社会需求的平衡。 项目概述 Melopee 多功能学校建筑位于比利时根特港区,由 Xaveer de Geyter Architects 设计,项目于2015年竞赛获奖,2020年建成。这座教育建筑集小学、托儿所、课后活动中心和社区体育设施于一体,在有限的场地内创造了丰富的教育空间。 设计理念 Xaveer de Geyter Architects 采用”筷子”式城市规划概念,将最大建筑体量分为两个部分:一个容纳室内功能的紧凑建筑和一个堆叠户外游戏区域的空间。设计通过公共路径贯穿整个场地,为线性规划注入了中心感,同时解决了场地空间不足的问题。 空间与功能 Melopee 多功能学校建筑的空间组织巧妙地将室内功能与室外游戏区域分离。紧凑的建筑体量容纳了教室、办公区、厨房等室内功能,而室外部分则垂直堆叠了多个游戏场地。公共通道从建筑下方穿过,连接了南北两侧的开放空间,创造了独特的空间体验。 材料与技术 建筑采用镀锌钢骨架统一两个部分,室内体量的立面设计为透明和半透明聚碳酸酯、玻璃及铝制百叶的拼贴组合。室外结构包裹在钢网中,预留大型”窗口”并种植攀缘植物,体现了材料创新与生态设计的结合。 项目特色与启发 Melopee 多功能学校建筑展示了在密集城市环境中如何通过垂直堆叠和空间整合创造高质量教育设施的创新方法。Xaveer de Geyter Architects 的设计为城市更新项目中的教育建筑提供了重要参考,特别是在处理复杂功能与有限场地关系方面具有示范意义。 设计团队 Xaveer de Geyter Architects 是比利时知名建筑事务所,以创新的城市设计和建筑方案著称。事务所在城市更新、公共建筑和文化项目方面拥有丰富经验,其设计注重空间逻辑、材料表达与社会需求的平衡。 本文来自 © XaveerdeGeyter, 发布于 © 建筑学院官方网站。 未经授权,禁止转载或摘编。 编辑版本版权归 © 建筑学院官方网站 所有, 设计、图纸及照片版权归设计方 © XaveerdeGeyter ↗ 所有。 查看作者在建筑学院发布的更多作品: XaveerdeGeyter @ 建筑学院官方网站 MelopeeXaveer de Geyter Architects多功能学校建筑当代教育建筑根特教育建筑 XaveerdeGeyter事务所 & 设计师 下载原图 收藏 0 关于作者 XaveerdeGeyter事务所 & 设计师 关注私信 13 文章 0 评论 0 粉丝 XDGA(Xaveer De Geyter Architects)是1988年由Xaveer De Geyter在布鲁塞尔和巴黎创立的建筑、城市与景观设计事务所。事务所以其激进的设计方法、多元的专业团队和国际化的作品著称,曾获密斯·凡·德罗奖、Bigmat奖等多项重要奖项。XDGA主张建筑不是固定功能或解决问题,而是开启场地的潜在可能,处理不确定性,容纳多样且未预见的生活场景。其作品涵盖文化、教育、居住、商业等多种类型,遍布欧洲及全球。 厨房塔 / Kitchen Tower | Xaveer de Geyter 上一篇 2026-02-25 下午1:46 国际奥委会总部 / International Olympic Committee Headquarters | Xaveer de Geyter 下一篇 2026-02-26 上午9:27 猜你喜欢 卢塞斯艺术学院 / Sint-Lucas School of Fine Arts | Xaveer de Geyter 2026-02-28 公共建筑设计 发表回复 请登录后评论...登录后才能评论 提交