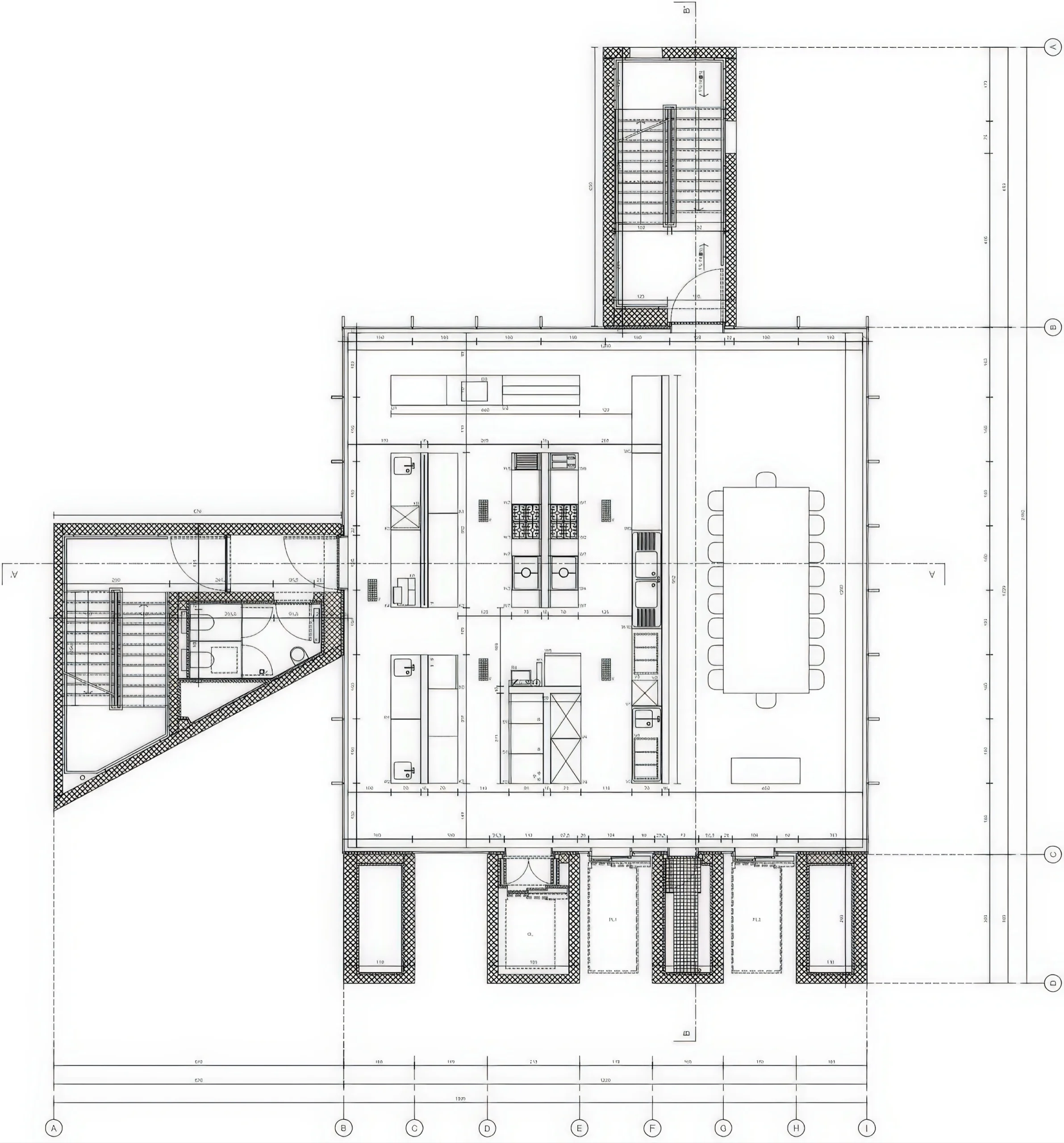
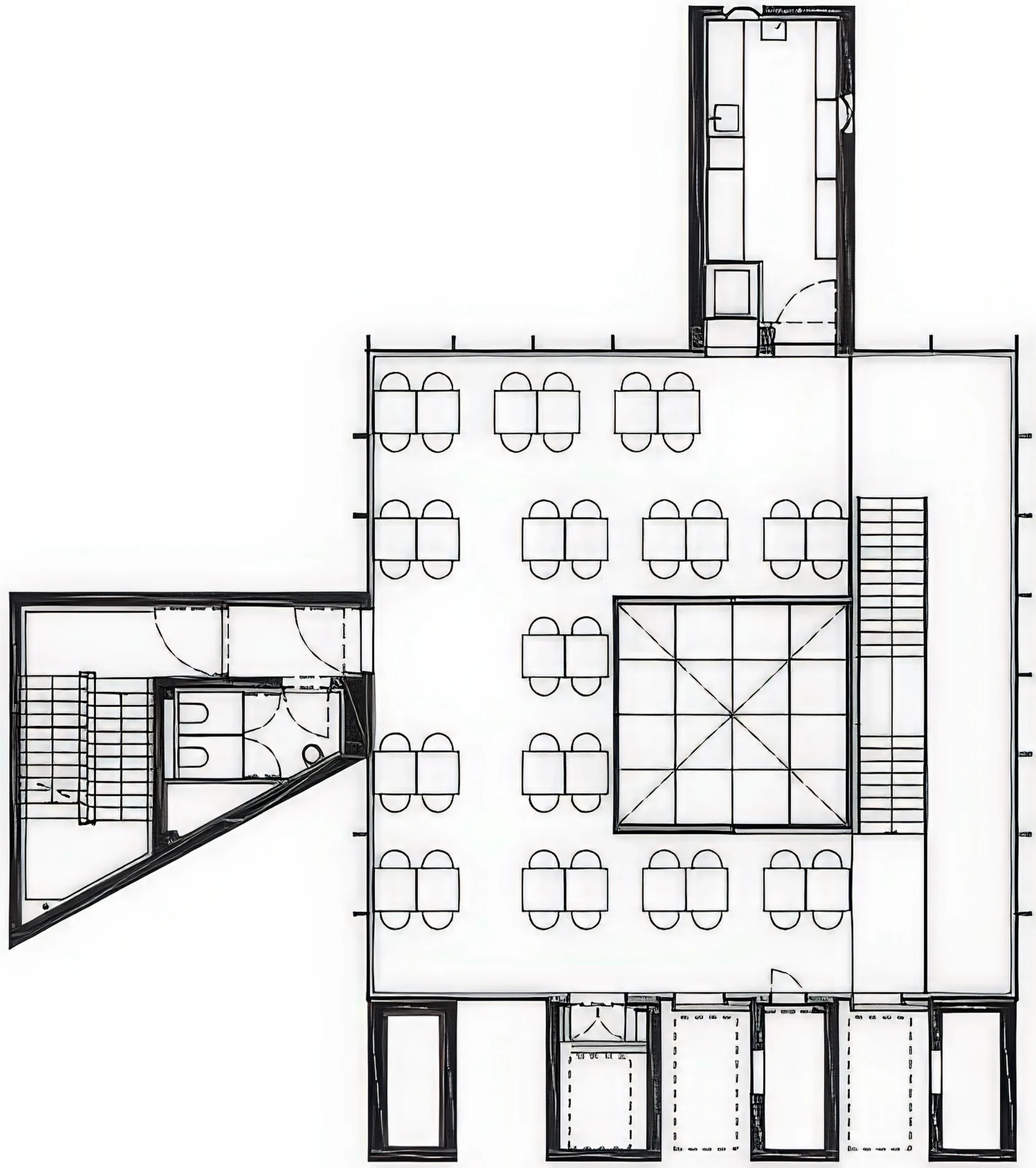
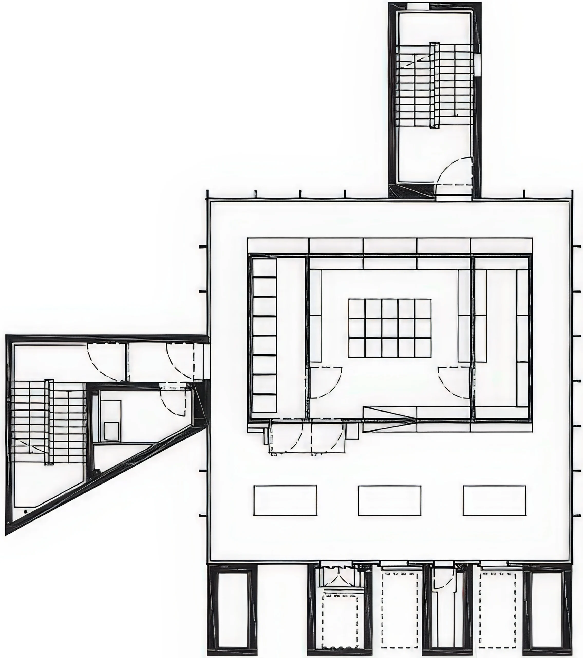
厨房塔 / Kitchen Tower | Xaveer de Geyter XaveerdeGeyter • 2026-02-25 下午1:46 • 公共建筑设计, 教育建筑设计 厨房塔由Xaveer de Geyter设计,位于比利时布鲁塞尔,是一座教育建筑。该项目作为酒店管理学院校园扩建的一部分,通过独特的塔楼形式重新定义了校园空间结构,采用创新的核心筒倒置设计,将玻璃教学空间悬浮于混凝土竖井之间。 设计: XaveerdeGeyter 类型: 教育建筑设计 功能: 学校 风格: 当代建筑 材料: 混凝土 玻璃 金属板 尺度: 中型建筑 地点:布鲁塞尔 时间: 2011年 项目概述 厨房塔位于比利时布鲁塞尔,是Xaveer de Geyter设计的酒店管理学院扩建项目。这座教育建筑建于2011年,采用塔楼形式,包含烹饪教室、餐厅和公共空间,旨在强化校园空间结构并应对城市环路的挑战。 设计理念 Xaveer de Geyter的设计理念源于对传统塔楼类型的重新思考。项目通过倒置核心筒的创新手法,将玻璃教学体量悬浮于混凝土竖井之间,既满足了功能需求,又创造了独特的建筑表达,同时强化了校园轴线空间秩序。 空间与功能 厨房塔的空间组织采用垂直分层布局:底层设有入口大厅、储藏室和更衣区,中间层为系列烹饪教室,顶层布置围绕中央庭院的公共餐厅和酒吧。流线设计将疏散楼梯、厨房通风管道和电梯整合在混凝土竖井内,确保教学空间的最大化利用。 材料与技术 项目主要采用黑白灰混凝土竖井与全玻璃幕墙的组合。为满足厨房卫生要求,玻璃幕墙的铝制竖框设置在外侧,内部保持平整光滑表面。结构体系采用创新的悬浮设计,每个楼层均为无结构元素的开放空间。 项目特色与启发 厨房塔展示了Xaveer de Geyter在建筑类型学上的创新探索,其核心筒倒置策略为高密度教育建筑提供了新思路。该项目对垂直空间的高效利用和材料表达的精确控制,为当代教育建筑设计提供了重要参考。 设计团队 Xaveer de Geyter Architects是比利时知名建筑事务所,以其在城市设计和建筑类型学方面的创新研究著称。事务所在教育建筑、文化设施和城市更新项目中展现出对空间逻辑和材料表达的深度思考。 项目概述 厨房塔位于比利时布鲁塞尔,是Xaveer de Geyter设计的酒店管理学院扩建项目。这座教育建筑建于2011年,采用塔楼形式,包含烹饪教室、餐厅和公共空间,旨在强化校园空间结构并应对城市环路的挑战。 设计理念 Xaveer de Geyter的设计理念源于对传统塔楼类型的重新思考。项目通过倒置核心筒的创新手法,将玻璃教学体量悬浮于混凝土竖井之间,既满足了功能需求,又创造了独特的建筑表达,同时强化了校园轴线空间秩序。 空间与功能 厨房塔的空间组织采用垂直分层布局:底层设有入口大厅、储藏室和更衣区,中间层为系列烹饪教室,顶层布置围绕中央庭院的公共餐厅和酒吧。流线设计将疏散楼梯、厨房通风管道和电梯整合在混凝土竖井内,确保教学空间的最大化利用。 材料与技术 项目主要采用黑白灰混凝土竖井与全玻璃幕墙的组合。为满足厨房卫生要求,玻璃幕墙的铝制竖框设置在外侧,内部保持平整光滑表面。结构体系采用创新的悬浮设计,每个楼层均为无结构元素的开放空间。 项目特色与启发 厨房塔展示了Xaveer de Geyter在建筑类型学上的创新探索,其核心筒倒置策略为高密度教育建筑提供了新思路。该项目对垂直空间的高效利用和材料表达的精确控制,为当代教育建筑设计提供了重要参考。 设计团队 Xaveer de Geyter Architects是比利时知名建筑事务所,以其在城市设计和建筑类型学方面的创新研究著称。事务所在教育建筑、文化设施和城市更新项目中展现出对空间逻辑和材料表达的深度思考。 本文来自 © XaveerdeGeyter, 发布于 © 建筑学院官方网站。 未经授权,禁止转载或摘编。 编辑版本版权归 © 建筑学院官方网站 所有, 设计、图纸及照片版权归设计方 © XaveerdeGeyter ↗ 所有。 查看作者在建筑学院发布的更多作品: XaveerdeGeyter @ 建筑学院官方网站 Kitchen TowerXaveer de Geyter布鲁塞尔建筑当代建筑教育建筑设计 XaveerdeGeyter事务所 & 设计师 下载原图 收藏 0 关于作者 XaveerdeGeyter事务所 & 设计师 关注私信 13 文章 0 评论 0 粉丝 XDGA(Xaveer De Geyter Architects)是1988年由Xaveer De Geyter在布鲁塞尔和巴黎创立的建筑、城市与景观设计事务所。事务所以其激进的设计方法、多元的专业团队和国际化的作品著称,曾获密斯·凡·德罗奖、Bigmat奖等多项重要奖项。XDGA主张建筑不是固定功能或解决问题,而是开启场地的潜在可能,处理不确定性,容纳多样且未预见的生活场景。其作品涵盖文化、教育、居住、商业等多种类型,遍布欧洲及全球。 安特卫普省府大楼 / Province Headquarters, Antwerp | Xaveer de Geyter 上一篇 2026-02-25 下午1:40 Melopee 多功能学校建筑 / Melopee Multipurpose School Building | Xaveer de Geyter Architects 下一篇 2026-02-26 上午9:21 猜你喜欢 科尔姆奥文化中心 / Cultural Centre in Coliumo | Pezo Von Ellrichshausen 2026-03-27 公共建筑设计 日本津市住宿计划 Inujima ‘Stay Project’ / Inujima Stay Project | SANAA 2026-03-08 住宅建筑设计 阿斯彭住宅与塔楼 / House and Pavilions in Aspen | Pezo Von Ellrichshausen 2026-04-02 住宅建筑设计 威尼斯馆 / Pavilion in Venice | Pezo Von Ellrichshausen 2026-02-05 公共建筑设计 江南水陆工厂 / The Building on the Water Shilien Chemical Industrial Factory | 阿尔瓦罗·西扎 & 卡洛斯·卡斯塔涅拉 2026-03-04 工业建筑 斯特拉斯堡经济学院 / Faculty of Economics, Strasbourg | Xaveer de Geyter 2026-02-28 公共建筑设计 发表回复 请登录后评论...登录后才能评论 提交