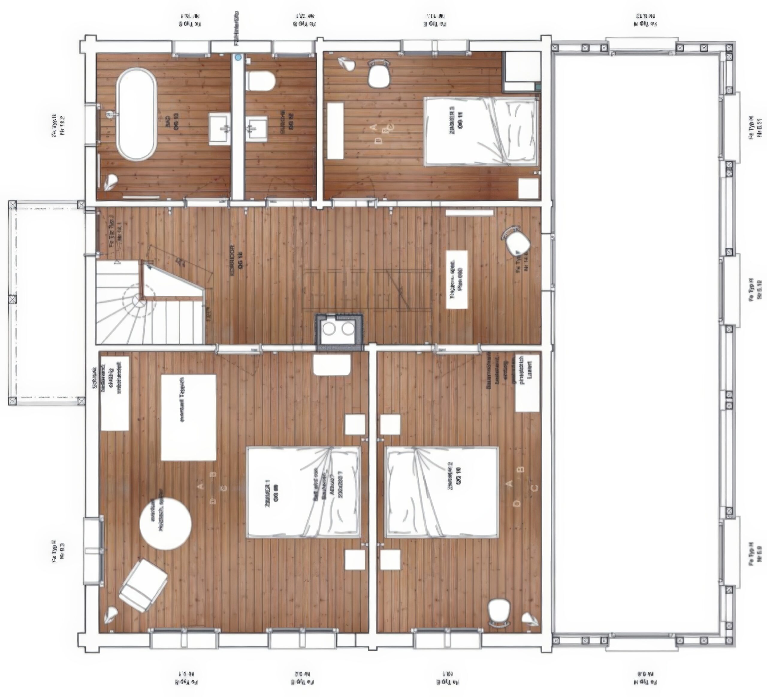
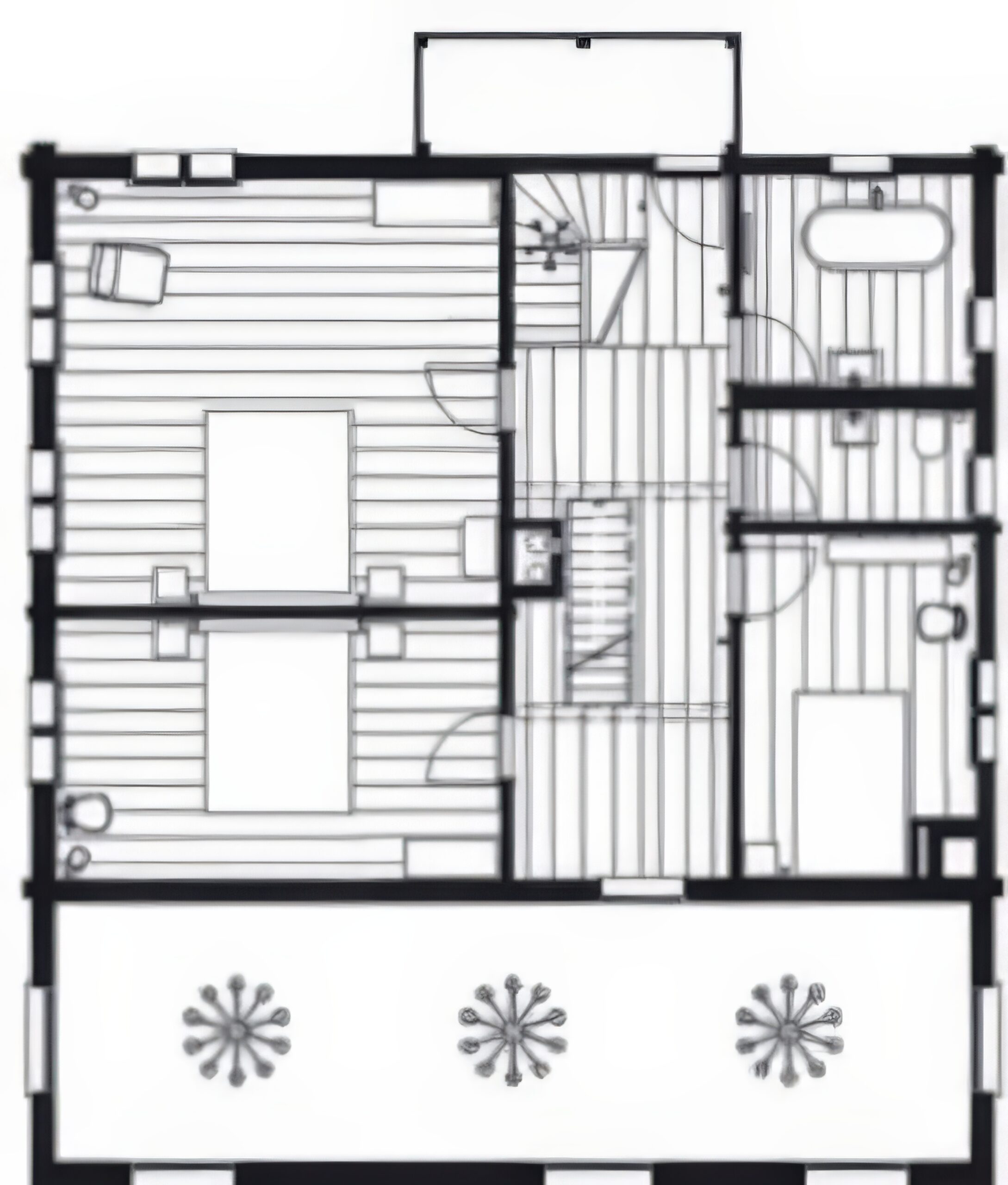
山间别墅 House in the Mountains | 卡鲁索·圣约翰建筑事务所|Caruso St John 卡鲁索·圣约翰建筑事务所|Caruso St John • 2025-12-08 上午12:50 • 公共建筑设计, 建筑师, 建筑设计, 文化建筑设计 山间别墅位于瑞士格劳宾登州的一个村庄中心,由卡鲁索·圣约翰建筑事务所设计。该项目将原有的恩吉咖啡馆改造为周末住宅兼社区文化空间,保留了传统的Strickbau木构建筑特色。设计通过色彩与木饰面处理,创造出兼具居住与展览功能的多层次室内空间,展现了历史建筑与现代功能的完美融合。 设计: 卡鲁索·圣约翰建筑事务所|Caruso St John 类型: 文化建筑设计 功能: 独立住宅 风格: 地域主义 材料: 木材 玻璃 混合材料 尺度: 小型建筑 地点:瑞士 时间: 2015年 项目简介 山间别墅项目位于瑞士格劳宾登州的一个村庄中心,原为恩吉咖啡馆与旅馆。建筑类型为住宅改造与文化空间,保留了传统的Strickbau木构体系,设计团队通过最小干预策略将其改造为周末住宅兼社区文化场所。 设计理念 卡鲁索·圣约翰建筑事务所采用”尊重原有结构”的设计理念,避免大规模结构改造,而是通过色彩、材料和空间处理来回应建筑不同历史时期的特征。设计灵感来源于瑞士农民手绘家具传统,将历史建筑与现代功能需求巧妙结合。 空间与功能 建筑底层设置系列起居空间,采用天然木饰面与彩色面板;后部扩建区域的双层高沙龙作为大型餐饮空间兼音乐厅,三向开窗面向群山。一层保留完好的Strickbau结构,恢复原有木板;顶层采用绿色条纹涂装的木饰面,形成独特的空间体验。 材料与技术 项目主要采用木材作为核心材料,包括传统的Strickbau木构体系和现代木饰面板。运用特殊颜料混合技术和错视画技法,设计团队还定制了固定家具、床具和衣柜,延续当地工艺传统。 设计团队 卡鲁索·圣约翰建筑事务所是英国知名建筑事务所,以文化建筑和改造项目著称,擅长在历史语境中创造当代空间体验,作品注重材料质感和建造细节的精湛表达。 项目简介 山间别墅项目位于瑞士格劳宾登州的一个村庄中心,原为恩吉咖啡馆与旅馆。建筑类型为住宅改造与文化空间,保留了传统的Strickbau木构体系,设计团队通过最小干预策略将其改造为周末住宅兼社区文化场所。 设计理念 卡鲁索·圣约翰建筑事务所采用”尊重原有结构”的设计理念,避免大规模结构改造,而是通过色彩、材料和空间处理来回应建筑不同历史时期的特征。设计灵感来源于瑞士农民手绘家具传统,将历史建筑与现代功能需求巧妙结合。 空间与功能 建筑底层设置系列起居空间,采用天然木饰面与彩色面板;后部扩建区域的双层高沙龙作为大型餐饮空间兼音乐厅,三向开窗面向群山。一层保留完好的Strickbau结构,恢复原有木板;顶层采用绿色条纹涂装的木饰面,形成独特的空间体验。 材料与技术 项目主要采用木材作为核心材料,包括传统的Strickbau木构体系和现代木饰面板。运用特殊颜料混合技术和错视画技法,设计团队还定制了固定家具、床具和衣柜,延续当地工艺传统。 设计团队 卡鲁索·圣约翰建筑事务所是英国知名建筑事务所,以文化建筑和改造项目著称,擅长在历史语境中创造当代空间体验,作品注重材料质感和建造细节的精湛表达。 本文来自 © 卡鲁索·圣约翰建筑事务所|Caruso St John, 发布于 © 建筑学院官方网站。 未经授权,禁止转载或摘编。 编辑版本版权归 © 建筑学院官方网站 所有, 设计、图纸及照片版权归设计方 © 卡鲁索·圣约翰建筑事务所|Caruso St John ↗ 所有。 查看作者在建筑学院发布的更多作品: 卡鲁索·圣约翰建筑事务所|Caruso St John @ 建筑学院官方网站 住宅改造卡鲁索圣约翰山间别墅文化空间瑞士建筑 卡鲁索·圣约翰建筑事务所|Caruso St John事务所 & 设计师 下载原图 收藏 0 关于作者 卡鲁索·圣约翰建筑事务所|Caruso St John事务所 & 设计师 关注私信 20 文章 0 评论 0 粉丝 卡鲁索·圣约翰建筑事务所(Caruso St John)是成立于1990年的英国知名建筑事务所,由亚当·卡鲁索(Adam Caruso)和彼得·圣约翰(Peter St John)合伙创立。该事务所以其深刻的概念思考、对历史文脉的尊重及精湛的材料运用而闻名于世,致力于创造“可随岁月流转缓慢感知的、拥有情感内容的建筑”。其代表作——伦敦纽波特街美术馆(Newport Street Gallery)曾荣获2016年英国斯特林建筑奖,砖屋(Brick House)和沃尔索尔新艺术画廊等项目也曾入围该奖项。 巴西贝萨雷斯保护区两座房子 | 曼努埃尔·塞万提斯|Manuel Cervantes 上一篇 2025-12-07 下午5:00 双座屋及工作室,阿玛特帕克 Two Houses and Studio, Amatepec | 曼努埃尔·塞万提斯|Manuel Cervantes 下一篇 2025-12-08 上午8:50 猜你喜欢 Sennaria 切奶工厂在德斯尼斯 / Cheese Factory in Disentis | 吉翁·A·卡米纳达|Gion A. Caminada 2026-01-07 工业建筑 福森豪恩的客人旅馆 / Guesthouse in Fürstenau | 吉翁·A·卡米纳达|Gion A. Caminada 2025-12-19 商业与综合建筑 钢屋案例研究 / Steel House Case Study | Roger Boltshauser 2026-03-15 商业与综合建筑 Sennaria 切奶工厂在德斯尼斯 / Cheese Factory in Disentis | 吉翁·A·卡米纳达|Gion A. Caminada 2026-03-26 工业建筑 九间屋 9 Vault House | 何塞·玛丽亚·桑切斯·加西亚|José María Sánchez García 2025-11-22 公共建筑设计 福森豪恩的客人旅馆 / Guesthouse in Fürstenau | 吉翁·A·卡米纳达|Gion A. Caminada 2026-03-23 商业与综合建筑 发表回复 请登录后评论...登录后才能评论 提交