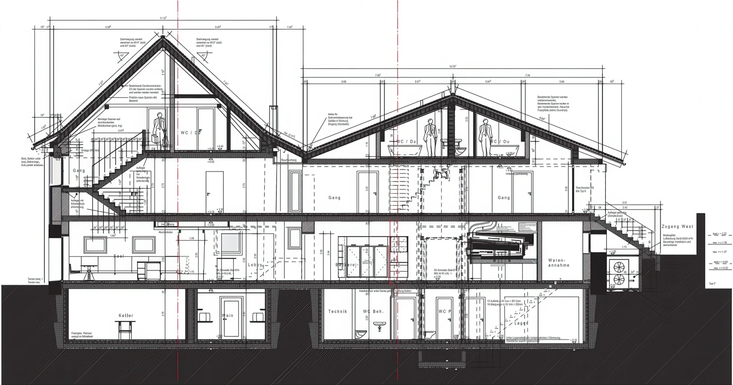
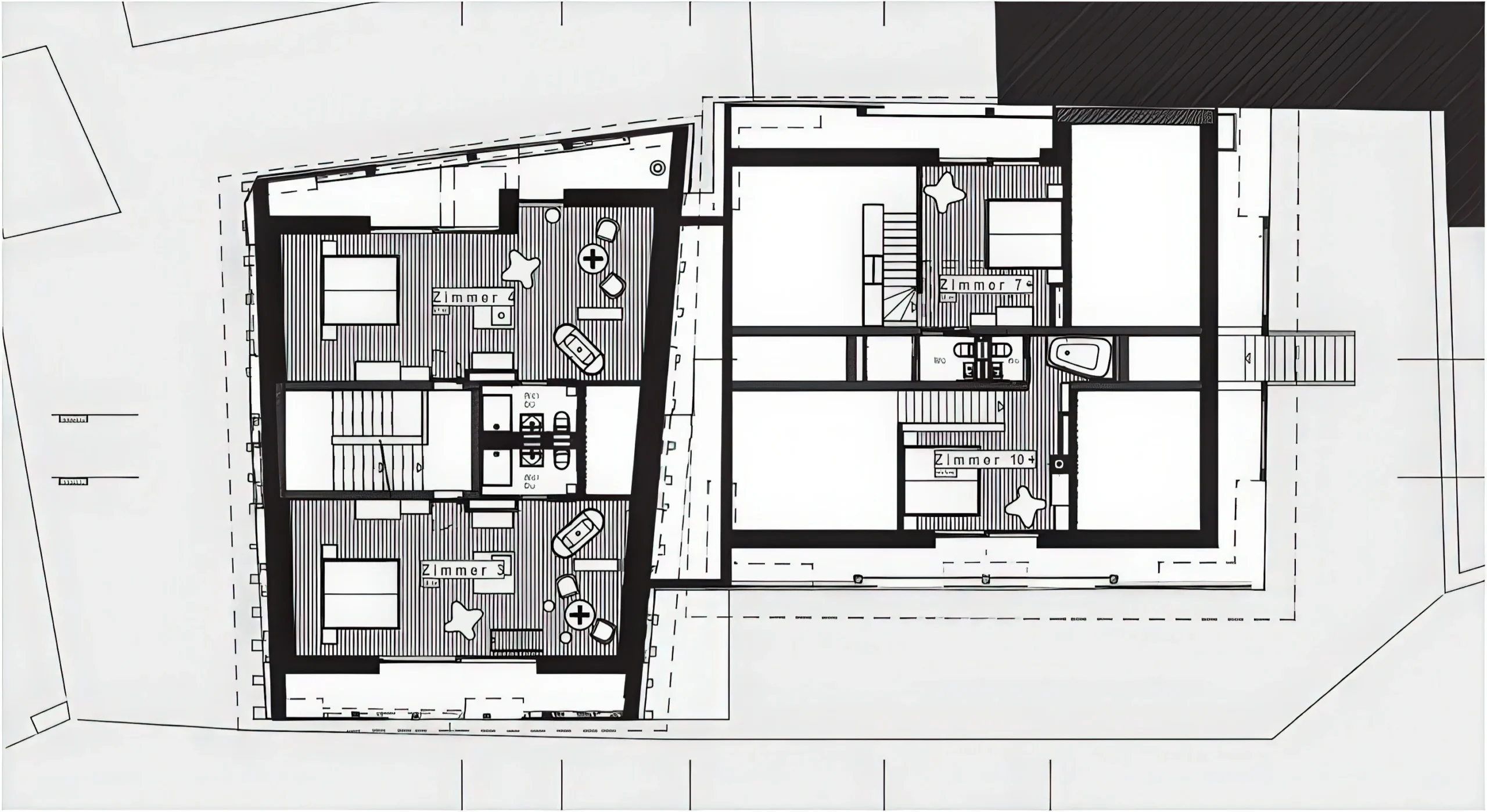
福森豪恩的客人旅馆 / Guesthouse in Fürstenau | 吉翁·A·卡米纳达|Gion A. Caminada 吉翁·A·卡米纳达|Gion A Caminada • 2025-12-19 下午5:36 • 商业与综合建筑, 商业空间设计, 室内设计, 建筑设计, 酒店建筑设计, 酒店空间设计 福森豪恩的客人旅馆由吉翁·A·卡米纳达设计,位于瑞士福森豪恩村,将两座废弃农场建筑改造为精品旅馆。设计保留原有石墙与木梁结构,通过现代介入重新诠释传统农舍价值,创造既非全新亦非完全保留的独特空间体验。 设计: 吉翁·A·卡米纳达|Gion A Caminada 类型: 酒店空间设计 功能: 酒店 风格: 地域主义 材料: 钢材 木材 玻璃 石材 尺度: 微型建筑与装置 地点:福森豪恩 时间: 2018年 项目概述 福森豪恩的客人旅馆项目位于瑞士福森豪恩村,由吉翁·A·卡米纳达于2016-2018年间设计完成。该项目将两座废弃的农场建筑改造为精品旅馆,总面积约800平方米,通过建筑更新实现了历史建筑的功能转型。 设计理念 吉翁·A·卡米纳达的设计理念聚焦于历史建筑的”在场性”与潜力挖掘。设计团队拒绝简单的拆除或完全保留,而是通过精准介入强化建筑的存在感,让新旧元素在对话中共同定义空间特质,创造既非纯粹传统亦非完全现代的独特建筑语言。 空间与功能 福森豪恩的客人旅馆空间组织尊重原有建筑格局,底层设置餐厅、面包房和等候区,上层分布九间客房。流线设计巧妙连接新旧空间,通过纵向剖面组织视线关系,使客人在传统石木结构与现代舒适设施间体验时空交织的建筑叙事。 材料与技术 项目主要采用原有石材、木材与现代玻璃、钢材相结合的材料策略。结构体系保留原有木梁框架,局部植入钢构支撑,施工工艺注重传统工艺与现代技术的融合,通过精确的细部设计实现新旧材料的和谐共生。 项目特色与启发 福森豪恩的客人旅馆展示了历史建筑改造的第三条路径,为建筑师处理废弃农舍提供了创新范例。项目证明通过尊重建筑本质的创造性转化,能够实现文化传承与功能更新的平衡,对乡村建筑更新具有重要参考价值。 设计团队 吉翁·A·卡米纳达是瑞士著名建筑师,以其对传统建筑语言的现代表达而闻名。他的作品常聚焦于乡村建筑更新,通过深入研究地方建造传统,发展出独特的建筑方法论,在福森豪恩的客人旅馆项目中充分体现了其设计哲学。 项目概述 福森豪恩的客人旅馆项目位于瑞士福森豪恩村,由吉翁·A·卡米纳达于2016-2018年间设计完成。该项目将两座废弃的农场建筑改造为精品旅馆,总面积约800平方米,通过建筑更新实现了历史建筑的功能转型。 设计理念 吉翁·A·卡米纳达的设计理念聚焦于历史建筑的”在场性”与潜力挖掘。设计团队拒绝简单的拆除或完全保留,而是通过精准介入强化建筑的存在感,让新旧元素在对话中共同定义空间特质,创造既非纯粹传统亦非完全现代的独特建筑语言。 空间与功能 福森豪恩的客人旅馆空间组织尊重原有建筑格局,底层设置餐厅、面包房和等候区,上层分布九间客房。流线设计巧妙连接新旧空间,通过纵向剖面组织视线关系,使客人在传统石木结构与现代舒适设施间体验时空交织的建筑叙事。 材料与技术 项目主要采用原有石材、木材与现代玻璃、钢材相结合的材料策略。结构体系保留原有木梁框架,局部植入钢构支撑,施工工艺注重传统工艺与现代技术的融合,通过精确的细部设计实现新旧材料的和谐共生。 项目特色与启发 福森豪恩的客人旅馆展示了历史建筑改造的第三条路径,为建筑师处理废弃农舍提供了创新范例。项目证明通过尊重建筑本质的创造性转化,能够实现文化传承与功能更新的平衡,对乡村建筑更新具有重要参考价值。 设计团队 吉翁·A·卡米纳达是瑞士著名建筑师,以其对传统建筑语言的现代表达而闻名。他的作品常聚焦于乡村建筑更新,通过深入研究地方建造传统,发展出独特的建筑方法论,在福森豪恩的客人旅馆项目中充分体现了其设计哲学。 本文来自 © 吉翁·A·卡米纳达|Gion A Caminada, 发布于 © 建筑学院官方网站。 未经授权,禁止转载或摘编。 编辑版本版权归 © 建筑学院官方网站 所有, 设计、图纸及照片版权归设计方 © 吉翁·A·卡米纳达|Gion A Caminada ↗ 所有。 查看作者在建筑学院发布的更多作品: 吉翁·A·卡米纳达|Gion A Caminada @ 建筑学院官方网站 Guesthouse in Fürstenau农场改造旅馆设计瑞士建筑 吉翁·A·卡米纳达|Gion A Caminada事务所 & 设计师 下载原图 收藏 0 关于作者 吉翁·A·卡米纳达|Gion A Caminada事务所 & 设计师 关注私信 22 文章 0 评论 0 粉丝 瑞士建筑师吉翁·A·卡米纳达(Gion A. Caminada)以其对传统木结构的现代诠释与乡村建筑复兴而闻名。他的官方网站 theaficionados.com 系统展示其代表作、设计哲学及对乡土文化的深刻思考。访问该站可深入了解其如何将地方传统转化为当代可持续的建筑语言。 无漂浮房屋 House No.2 / Floating House | MOS 建筑事务所 上一篇 2025-12-19 下午3:39 城市切片住宅 / Urban Slice House | 帕琳达·坎南加拉|Palinda Kannangara 下一篇 2025-12-19 下午6:14 猜你喜欢 福森豪恩的客人旅馆 / Guesthouse in Fürstenau | 吉翁·A·卡米纳达|Gion A. Caminada 2026-03-23 商业与综合建筑 Sennaria 切奶工厂在德斯尼斯 / Cheese Factory in Disentis | 吉翁·A·卡米纳达|Gion A. Caminada 2026-01-07 工业建筑 Vrin社区悼念场所 / Vrin Community Mourning Place | 吉翁·A·卡米纳达|Gion A. Caminada 2026-03-23 公共建筑设计 钢屋案例研究 / Steel House Case Study | Roger Boltshauser 2026-03-15 商业与综合建筑 Obernau村酒店 / Guesthouse in Obernau | 吉翁·A·卡米纳达|Gion A. Caminada 2026-03-23 商业与综合建筑 Sennaria 切奶工厂在德斯尼斯 / Cheese Factory in Disentis | 吉翁·A·卡米纳达|Gion A. Caminada 2026-03-26 工业建筑 发表回复 请登录后评论...登录后才能评论 提交