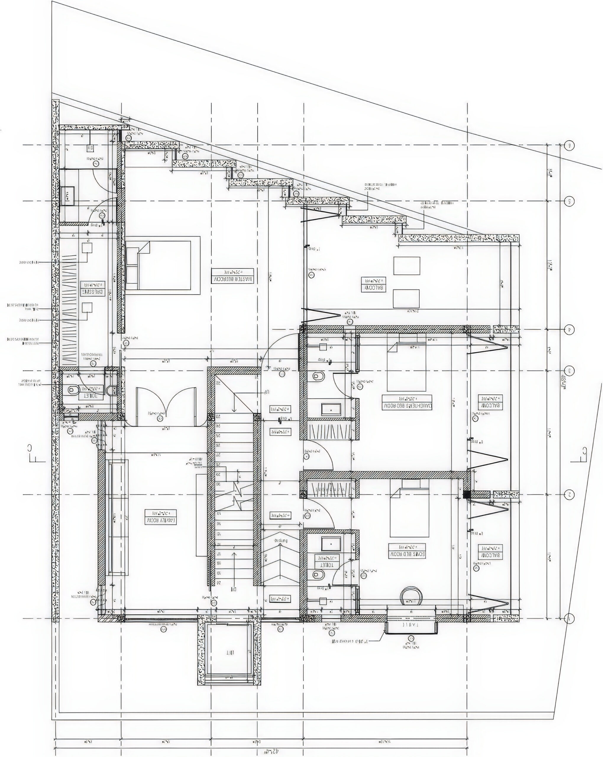
断层式住宅 / Striated House | 帕琳达·坎南加拉|Palinda Kannangara 帕琳达·坎南加拉|Palinda Kannangara • 2026-04-04 下午9:22 • 住宅建筑设计, 建筑设计, 独立住宅设计 断层式住宅由斯里兰卡建筑师帕琳达·坎南加拉设计,位于科伦坡郊区的拉贾吉里亚。这座独立住宅巧妙利用176平方米的狭小地块,通过垂直条纹立面与湿地景观对话,展现了热带气候下的当代建筑创新。 设计: 帕琳达·坎南加拉|Palinda Kannangara 类型: 独立住宅设计 功能: 独立住宅 风格: 现代主义 材料: 混凝土 木材 砖材 尺度: 小型建筑 地点:科伦坡 时间: 1970年 项目概述 断层式住宅位于斯里兰卡科伦坡郊区的拉贾吉里亚,是一座占地面积176平方米的三层独立住宅。项目由帕琳达·坎南加拉建筑师设计,于2017年设计,2019年建成,巧妙应对密集城市环境与湿地景观的独特场地条件。 设计理念 断层式住宅的核心设计理念是在密集城市环境中创造私密性与自然连接。建筑师帕琳达·坎南加拉通过垂直条纹立面屏蔽邻近高层建筑,同时将建筑向北侧湿地完全开放,形成从喧嚣街道到宁静自然的空间过渡序列。 空间与功能 断层式住宅采用垂直功能分区:首层设置餐厅、厨房与服务区,面向花园开放;二层容纳客厅与客房,享有湿地全景;三层为私密家庭空间,包括主卧室、儿童房及带酒吧的休闲凉亭。空间组织通过狭窄入口庭院、鱼池和细长楼梯营造渐进式空间体验。 材料与技术 项目采用简洁的热带材料语言:西立面使用纹理粗糙的混凝土薄板形成垂直条纹,其余部分为砖墙结构。屋顶采用本地碎红土建造的密集型绿色屋顶,配备生物池塘系统。设计运用被动式通风与采光策略,减少对人工系统的依赖。 项目特色与启发 断层式住宅展示了在密集城市环境中创造高质量居住空间的创新方法。帕琳达·坎南加拉通过巧妙的空间序列、材料选择和气候响应策略,为热带地区当代住宅设计提供了重要参考,特别是在有限用地条件下平衡隐私与景观的解决方案。 设计团队 帕琳达·坎南加拉是斯里兰卡知名建筑师,其工作室以探索热带现代主义建筑而闻名。团队专注于将本土材料、传统工艺与当代设计语言结合,在断层式住宅项目中展现了应对复杂城市环境的专业能力与设计敏感性。 项目概述 断层式住宅位于斯里兰卡科伦坡郊区的拉贾吉里亚,是一座占地面积176平方米的三层独立住宅。项目由帕琳达·坎南加拉建筑师设计,于2017年设计,2019年建成,巧妙应对密集城市环境与湿地景观的独特场地条件。 设计理念 断层式住宅的核心设计理念是在密集城市环境中创造私密性与自然连接。建筑师帕琳达·坎南加拉通过垂直条纹立面屏蔽邻近高层建筑,同时将建筑向北侧湿地完全开放,形成从喧嚣街道到宁静自然的空间过渡序列。 空间与功能 断层式住宅采用垂直功能分区:首层设置餐厅、厨房与服务区,面向花园开放;二层容纳客厅与客房,享有湿地全景;三层为私密家庭空间,包括主卧室、儿童房及带酒吧的休闲凉亭。空间组织通过狭窄入口庭院、鱼池和细长楼梯营造渐进式空间体验。 材料与技术 项目采用简洁的热带材料语言:西立面使用纹理粗糙的混凝土薄板形成垂直条纹,其余部分为砖墙结构。屋顶采用本地碎红土建造的密集型绿色屋顶,配备生物池塘系统。设计运用被动式通风与采光策略,减少对人工系统的依赖。 项目特色与启发 断层式住宅展示了在密集城市环境中创造高质量居住空间的创新方法。帕琳达·坎南加拉通过巧妙的空间序列、材料选择和气候响应策略,为热带地区当代住宅设计提供了重要参考,特别是在有限用地条件下平衡隐私与景观的解决方案。 设计团队 帕琳达·坎南加拉是斯里兰卡知名建筑师,其工作室以探索热带现代主义建筑而闻名。团队专注于将本土材料、传统工艺与当代设计语言结合,在断层式住宅项目中展现了应对复杂城市环境的专业能力与设计敏感性。 本文来自 © 帕琳达·坎南加拉|Palinda Kannangara, 发布于 © 建筑学院官方网站。 未经授权,禁止转载或摘编。 编辑版本版权归 © 建筑学院官方网站 所有, 设计、图纸及照片版权归设计方 © 帕琳达·坎南加拉|Palinda Kannangara ↗ 所有。 查看作者在建筑学院发布的更多作品: 帕琳达·坎南加拉|Palinda Kannangara @ 建筑学院官方网站 striated-house帕琳达·坎南加拉热带现代主义独立住宅设计科伦坡住宅 帕琳达·坎南加拉|Palinda Kannangara事务所 & 设计师 下载原图 收藏 0 关于作者 帕琳达·坎南加拉|Palinda Kannangara事务所 & 设计师 关注私信 21 文章 0 评论 0 粉丝 帕琳达·坎南加拉(Palinda Kannangara)是斯里兰卡最具影响力的当代建筑师之一,以其创新的热带现代主义设计而闻名。他的作品深刻诠释了建筑与自然、光线的对话,擅长运用本地材料与现代工艺,创造出既具私密性又开放于景观的空间。其官方网站 www.palindakannangara.com 全面展示了他的住宅、酒店与文化项目,是了解其设计哲学、完整作品集及所获国际奖项的重要窗口。 城市切片住宅 / Urban Slice House | 帕琳达·坎南加拉|Palinda Kannangara 上一篇 2026-04-04 下午9:13 The Frame – 假日度假屋 / The Frame – Holiday Retreat in Imaduwa | 帕琳达·坎南加拉|Palinda Kannangara 下一篇 2026-04-04 下午9:36 猜你喜欢 The Frame – 假日度假屋 / The Frame – Holiday Retreat in Imaduwa | 帕琳达·坎南加拉|Palinda Kannangara 2025-12-20 住宅建筑设计 克拉多伊村屋 House in Campolide | 艾雷斯·马特乌斯建筑事务所|Aires Mateus 2025-10-30 公共建筑设计 朱法纳风力发电站工作人员居住楼 / Staff Quarters for Wind Power Plant in Jaffna | 帕琳达·坎南加拉|Palinda Kannangara 2025-12-28 住宅建筑设计 圣皮埃德拉帕斯的房屋 / House in San Pedro de la Paz | Pezo Von Ellrichshausen 2026-02-03 住宅建筑设计 卡马之家和艾瓦哈之家 / Kama House and Alwah House | RCR 建筑事务所 2025-11-13 公共建筑设计 梅诺卡的Son Parc住宅 / Son Parc House in Menorca | RCR 建筑事务所|RCR Arquitectes 2025-11-19 公共建筑设计 发表回复 请登录后评论...登录后才能评论 提交