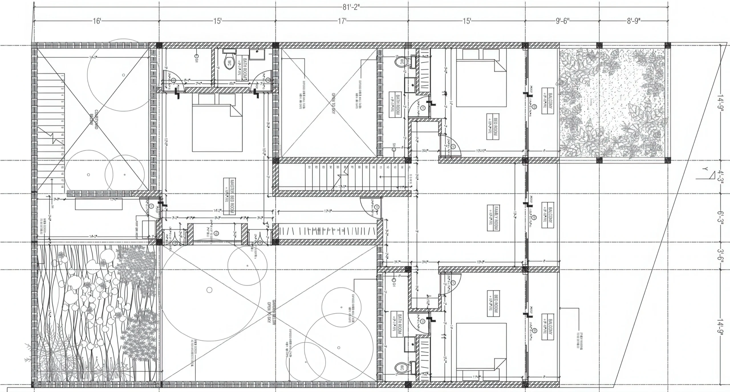
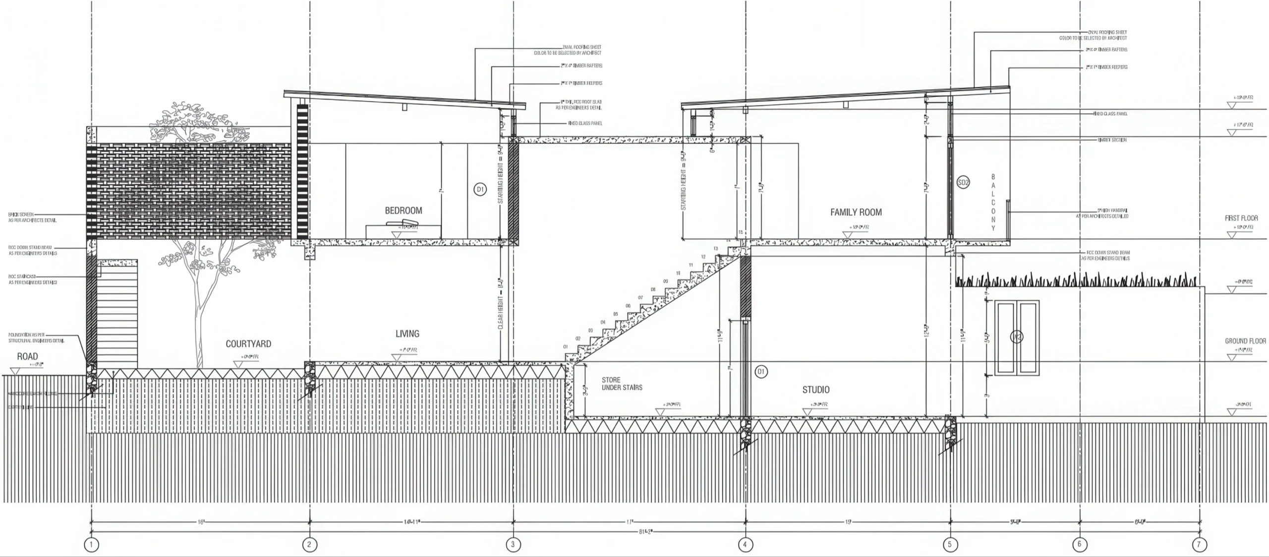
艺术家避暑所 帕特鲁加纳拉 / Artists’ Retreat in Pittugala | 帕琳达·坎南加拉|Palinda Kannangara 帕琳达·坎南加拉|Palinda Kannangara • 2026-04-08 下午5:10 • 住宅建筑设计, 建筑设计, 独立住宅设计 艺术家避暑所 帕特鲁加纳拉由帕琳达·坎南加拉设计,位于斯里兰卡科伦坡郊区,是一座融合住宅、工作室与画廊功能的艺术家居所。项目采用空心砖墙与开放式布局,营造自然通风的微气候环境,以低成本预算实现艺术创作与日常生活的完美结合。 设计: 帕琳达·坎南加拉|Palinda Kannangara 类型: 独立住宅设计 功能: 独立住宅 风格: 当代建筑 材料: 混凝土 木材 砖材 再生材料 尺度: 小型建筑 地点:科伦坡 时间: 1970年 项目概述 艺术家避暑所 帕特鲁加纳拉位于斯里兰卡科伦坡郊区皮图加拉,占地344平方米,是一座集住宅、工作室与画廊功能于一体的建筑。项目由帕琳达·坎南加拉设计,2013年开始设计,2017年完工,以1000万斯里兰卡卢比的有限预算实现了艺术家的居住与创作需求。 设计理念 设计旨在为艺术家夫妇打造一个与自然环境紧密相连的简约生活空间。建筑作为艺术家生活的背景幕布,通过开放式布局与自然材料运用,呼应客户在古都波隆纳鲁瓦废墟中成长的经历,营造出具有精神反思品质的生活环境。 空间与功能 建筑采用分层布局适应斜坡地形。底层为开放式花园亭阁,包含客厅、餐厅兼工作室、厨房及车库,无门窗设计实现与自然的无缝连接。上层设置三间卧室和6×6米屋顶莲花池,形成私密生活区。宽大台阶作为扩展空间,便于艺术家接待亲友及社区交流。 材料与技术 项目大量使用未粉刷空心砖墙,形成通风空隙实现被动冷却。上层内饰采用土质颜料抹灰,呈现赭石色调呼应佛教寺庙景观。地面为抛光水泥,台阶使用当地碎石建造。所有木材均为回收利用,家具由旧物改造而成,体现可持续设计理念。 项目特色与启发 艺术家避暑所 帕特鲁加纳拉展示了如何在有限预算下创造高品质艺术生活空间。项目通过巧妙的被动式设计、本地材料运用和手工制作工艺,为小型住宅设计提供了低成本、高环境适应性的解决方案,对热带地区住宅设计具有重要参考价值。 设计团队 帕琳达·坎南加拉是斯里兰卡知名建筑师,以其对场地文脉的深刻理解和创新材料运用而闻名。事务所专注于创造与自然环境和谐共生的建筑,在小型住宅和文化建筑领域有着丰富经验,擅长通过简约设计语言表达建筑的地域性与当代性。 项目概述 艺术家避暑所 帕特鲁加纳拉位于斯里兰卡科伦坡郊区皮图加拉,占地344平方米,是一座集住宅、工作室与画廊功能于一体的建筑。项目由帕琳达·坎南加拉设计,2013年开始设计,2017年完工,以1000万斯里兰卡卢比的有限预算实现了艺术家的居住与创作需求。 设计理念 设计旨在为艺术家夫妇打造一个与自然环境紧密相连的简约生活空间。建筑作为艺术家生活的背景幕布,通过开放式布局与自然材料运用,呼应客户在古都波隆纳鲁瓦废墟中成长的经历,营造出具有精神反思品质的生活环境。 空间与功能 建筑采用分层布局适应斜坡地形。底层为开放式花园亭阁,包含客厅、餐厅兼工作室、厨房及车库,无门窗设计实现与自然的无缝连接。上层设置三间卧室和6×6米屋顶莲花池,形成私密生活区。宽大台阶作为扩展空间,便于艺术家接待亲友及社区交流。 材料与技术 项目大量使用未粉刷空心砖墙,形成通风空隙实现被动冷却。上层内饰采用土质颜料抹灰,呈现赭石色调呼应佛教寺庙景观。地面为抛光水泥,台阶使用当地碎石建造。所有木材均为回收利用,家具由旧物改造而成,体现可持续设计理念。 项目特色与启发 艺术家避暑所 帕特鲁加纳拉展示了如何在有限预算下创造高品质艺术生活空间。项目通过巧妙的被动式设计、本地材料运用和手工制作工艺,为小型住宅设计提供了低成本、高环境适应性的解决方案,对热带地区住宅设计具有重要参考价值。 设计团队 帕琳达·坎南加拉是斯里兰卡知名建筑师,以其对场地文脉的深刻理解和创新材料运用而闻名。事务所专注于创造与自然环境和谐共生的建筑,在小型住宅和文化建筑领域有着丰富经验,擅长通过简约设计语言表达建筑的地域性与当代性。 本文来自 © 帕琳达·坎南加拉|Palinda Kannangara, 发布于 © 建筑学院官方网站。 未经授权,禁止转载或摘编。 编辑版本版权归 © 建筑学院官方网站 所有, 设计、图纸及照片版权归设计方 © 帕琳达·坎南加拉|Palinda Kannangara ↗ 所有。 查看作者在建筑学院发布的更多作品: 帕琳达·坎南加拉|Palinda Kannangara @ 建筑学院官方网站 Artists Retreat in Pittugala帕琳达·坎南加拉热带现代主义科伦坡住宅艺术家住宅设计 帕琳达·坎南加拉|Palinda Kannangara事务所 & 设计师 下载原图 收藏 0 关于作者 帕琳达·坎南加拉|Palinda Kannangara事务所 & 设计师 关注私信 21 文章 0 评论 0 粉丝 帕琳达·坎南加拉(Palinda Kannangara)是斯里兰卡最具影响力的当代建筑师之一,以其创新的热带现代主义设计而闻名。他的作品深刻诠释了建筑与自然、光线的对话,擅长运用本地材料与现代工艺,创造出既具私密性又开放于景观的空间。其官方网站 www.palindakannangara.com 全面展示了他的住宅、酒店与文化项目,是了解其设计哲学、完整作品集及所获国际奖项的重要窗口。 线性房屋 / Linear House | 帕琳达·坎南加拉|Palinda Kannangara 上一篇 2026-04-08 下午4:58 朱法纳风力发电站工作人员居住楼 / Staff Quarters for Wind Power Plant in Jaffna | 帕琳达·坎南加拉|Palinda Kannangara 下一篇 2026-04-08 下午5:15 猜你喜欢 The Frame – 假日度假屋 / The Frame – Holiday Retreat in Imaduwa | 帕琳达·坎南加拉|Palinda Kannangara 2026-04-04 住宅建筑设计 CASA ESPINAL / Spinal House | 帕琳达·坎南加拉|Palinda Kannangara 2026-04-12 住宅建筑设计 断层式住宅 / Striated House | 帕琳达·坎南加拉|Palinda Kannangara 2025-12-21 住宅建筑设计 假日别墅,阿维什瓦拉 / Holiday Bungalow in Avissawella | 帕琳达·坎南加拉|Palinda Kannangara 2025-12-22 住宅建筑设计 假日小木屋 葡萄花娜那 / Holiday Bungalow in Ginigathhena | 帕琳达·坎南加拉|Palinda Kannangara 2026-04-09 住宅建筑设计 朱法纳风力发电站工作人员居住楼 / Staff Quarters for Wind Power Plant in Jaffna | 帕琳达·坎南加拉|Palinda Kannangara 2026-04-08 住宅建筑设计 发表回复 请登录后评论...登录后才能评论 提交