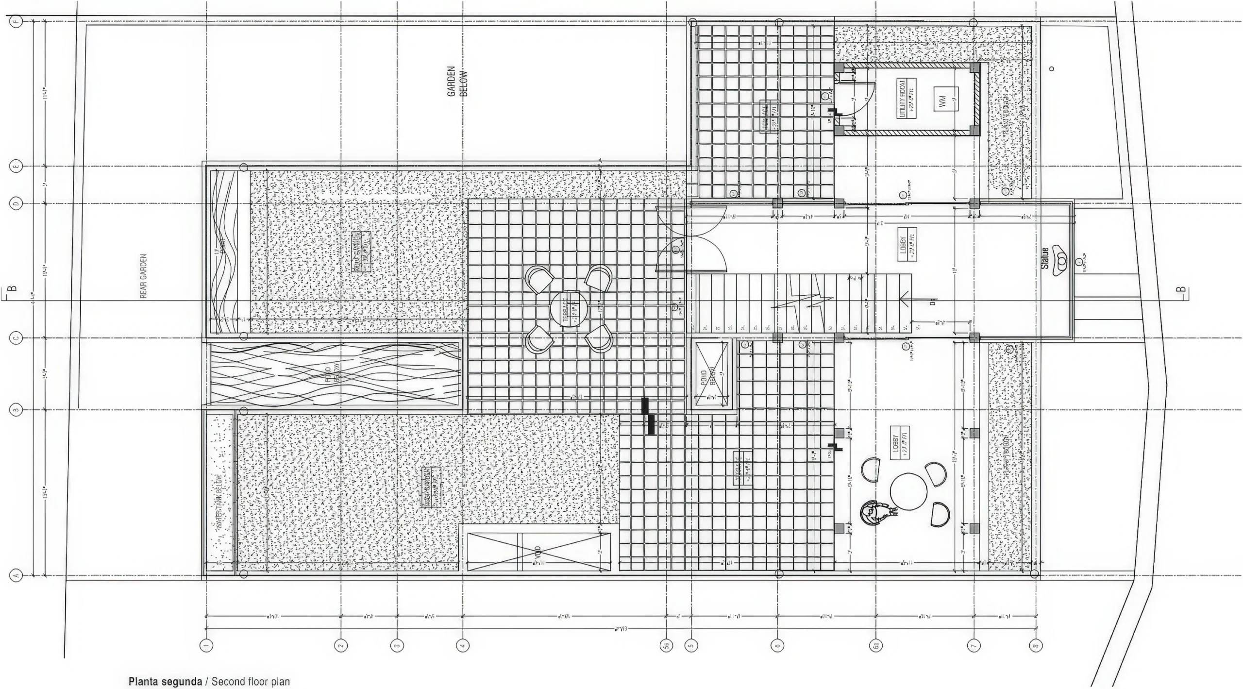
城市切片住宅 / Urban Slice House | 帕琳达·坎南加拉|Palinda Kannangara 帕琳达·坎南加拉|Palinda Kannangara • 2026-04-04 下午9:13 • 住宅建筑设计, 建筑设计, 独立住宅设计 城市切片住宅由帕琳达·坎南加拉设计,位于斯里兰卡拉贾吉里亚,是一座为年轻夫妇打造的城市住宅。项目通过线性穿插的花园与水景,创造室内外无缝连接的空间体验,展现了斯里兰卡传统建筑智慧与现代设计的融合。 设计: 帕琳达·坎南加拉|Palinda Kannangara 类型: 独立住宅设计 功能: 独立住宅 风格: 当代建筑 材料: 混凝土 木材 石材 金属板 尺度: 小型建筑 地点:拉贾吉里亚 时间: 1970年 项目概述 城市切片住宅位于斯里兰卡拉贾吉里亚,是一座为年轻夫妇设计的城市独立住宅。项目建筑面积紧凑,设计于2010年,建成于2012年,通过创新的空间组织回应高密度城市环境中的居住需求。 设计理念 帕琳达·坎南加拉的设计灵感源自斯里兰卡传统临街住宅的木格栅系统,旨在创造开放的花园式居住体验。设计通过线性穿插的花园和水池,打破室内外界限,营造与自然元素持续对话的生活空间。 空间与功能 城市切片住宅的空间组织以线性花园和水池为核心,贯穿建筑各层。地面层设置起居室、餐厅和卧室,通过木桥连接;上层包含主卧室和家庭活动空间;屋顶设有观景阳台和花园。所有功能空间都与水景、天空和花园保持视觉与物理连接。 材料与技术 项目采用简洁的材料组合:再生石材铺地、水泥抹面石材地板、木格栅和金属构件。双层木格栅立面系统不仅回应斯里兰卡炎热气候,还提供隐私保护、视线控制、光线过滤和噪音缓冲等多重功能。 项目特色与启发 城市切片住宅展示了如何在紧凑城市地块中创造与自然深度融合的居住环境。帕琳达·坎南加拉对传统建筑元素的现代转译,为热带地区城市住宅设计提供了创新范例,体现了地域性与当代性的平衡。 设计团队 帕琳达·坎南加拉是斯里兰卡知名建筑师,其工作室以探索空间与材料的本质著称。团队擅长将斯里兰卡传统建筑智慧与现代设计语言结合,在城市切片住宅项目中展现了独特的地域性现代主义风格。 项目概述 城市切片住宅位于斯里兰卡拉贾吉里亚,是一座为年轻夫妇设计的城市独立住宅。项目建筑面积紧凑,设计于2010年,建成于2012年,通过创新的空间组织回应高密度城市环境中的居住需求。 设计理念 帕琳达·坎南加拉的设计灵感源自斯里兰卡传统临街住宅的木格栅系统,旨在创造开放的花园式居住体验。设计通过线性穿插的花园和水池,打破室内外界限,营造与自然元素持续对话的生活空间。 空间与功能 城市切片住宅的空间组织以线性花园和水池为核心,贯穿建筑各层。地面层设置起居室、餐厅和卧室,通过木桥连接;上层包含主卧室和家庭活动空间;屋顶设有观景阳台和花园。所有功能空间都与水景、天空和花园保持视觉与物理连接。 材料与技术 项目采用简洁的材料组合:再生石材铺地、水泥抹面石材地板、木格栅和金属构件。双层木格栅立面系统不仅回应斯里兰卡炎热气候,还提供隐私保护、视线控制、光线过滤和噪音缓冲等多重功能。 项目特色与启发 城市切片住宅展示了如何在紧凑城市地块中创造与自然深度融合的居住环境。帕琳达·坎南加拉对传统建筑元素的现代转译,为热带地区城市住宅设计提供了创新范例,体现了地域性与当代性的平衡。 设计团队 帕琳达·坎南加拉是斯里兰卡知名建筑师,其工作室以探索空间与材料的本质著称。团队擅长将斯里兰卡传统建筑智慧与现代设计语言结合,在城市切片住宅项目中展现了独特的地域性现代主义风格。 本文来自 © 帕琳达·坎南加拉|Palinda Kannangara, 发布于 © 建筑学院官方网站。 未经授权,禁止转载或摘编。 编辑版本版权归 © 建筑学院官方网站 所有, 设计、图纸及照片版权归设计方 © 帕琳达·坎南加拉|Palinda Kannangara ↗ 所有。 查看作者在建筑学院发布的更多作品: 帕琳达·坎南加拉|Palinda Kannangara @ 建筑学院官方网站 Urban Slice House地域现代主义帕琳达·坎南加拉拉贾吉里亚住宅独立住宅设计 帕琳达·坎南加拉|Palinda Kannangara事务所 & 设计师 下载原图 收藏 0 关于作者 帕琳达·坎南加拉|Palinda Kannangara事务所 & 设计师 关注私信 21 文章 0 评论 0 粉丝 帕琳达·坎南加拉(Palinda Kannangara)是斯里兰卡最具影响力的当代建筑师之一,以其创新的热带现代主义设计而闻名。他的作品深刻诠释了建筑与自然、光线的对话,擅长运用本地材料与现代工艺,创造出既具私密性又开放于景观的空间。其官方网站 www.palindakannangara.com 全面展示了他的住宅、酒店与文化项目,是了解其设计哲学、完整作品集及所获国际奖项的重要窗口。 堪培拉 Pavilion / Pavilion in Canberra | Pezo Von Ellrichshausen 上一篇 2026-04-02 下午8:21 断层式住宅 / Striated House | 帕琳达·坎南加拉|Palinda Kannangara 下一篇 2026-04-04 下午9:22 猜你喜欢 假日小木屋 葡萄花娜那 / Holiday Bungalow in Ginigathhena | 帕琳达·坎南加拉|Palinda Kannangara 2026-04-09 住宅建筑设计 柏林艺术家之家 House for an Artist, Berlin | 卡鲁索·圣约翰建筑事务所|Caruso St John 2025-11-22 公共建筑设计 Mas Salvà 农家小屋 / Mas Salvà Farm House | +RCR 建筑事务所|RCR Arquitectes 2025-11-03 公共建筑设计 弗恩斯住宅,克鲁姆赫希 / House by the Fens, Krumbach | 贝尔纳多·巴德尔|Bernardo Bader 2025-11-14 公共建筑设计 珊瑚岛住宅 Archipelago House | 谭姆与维德高德建筑事务所|Tham & Videgård 2025-11-09 住宅室内设计 线性房屋 / Linear House | 帕琳达·坎南加拉|Palinda Kannangara 2026-01-06 住宅建筑设计 发表回复 请登录后评论...登录后才能评论 提交