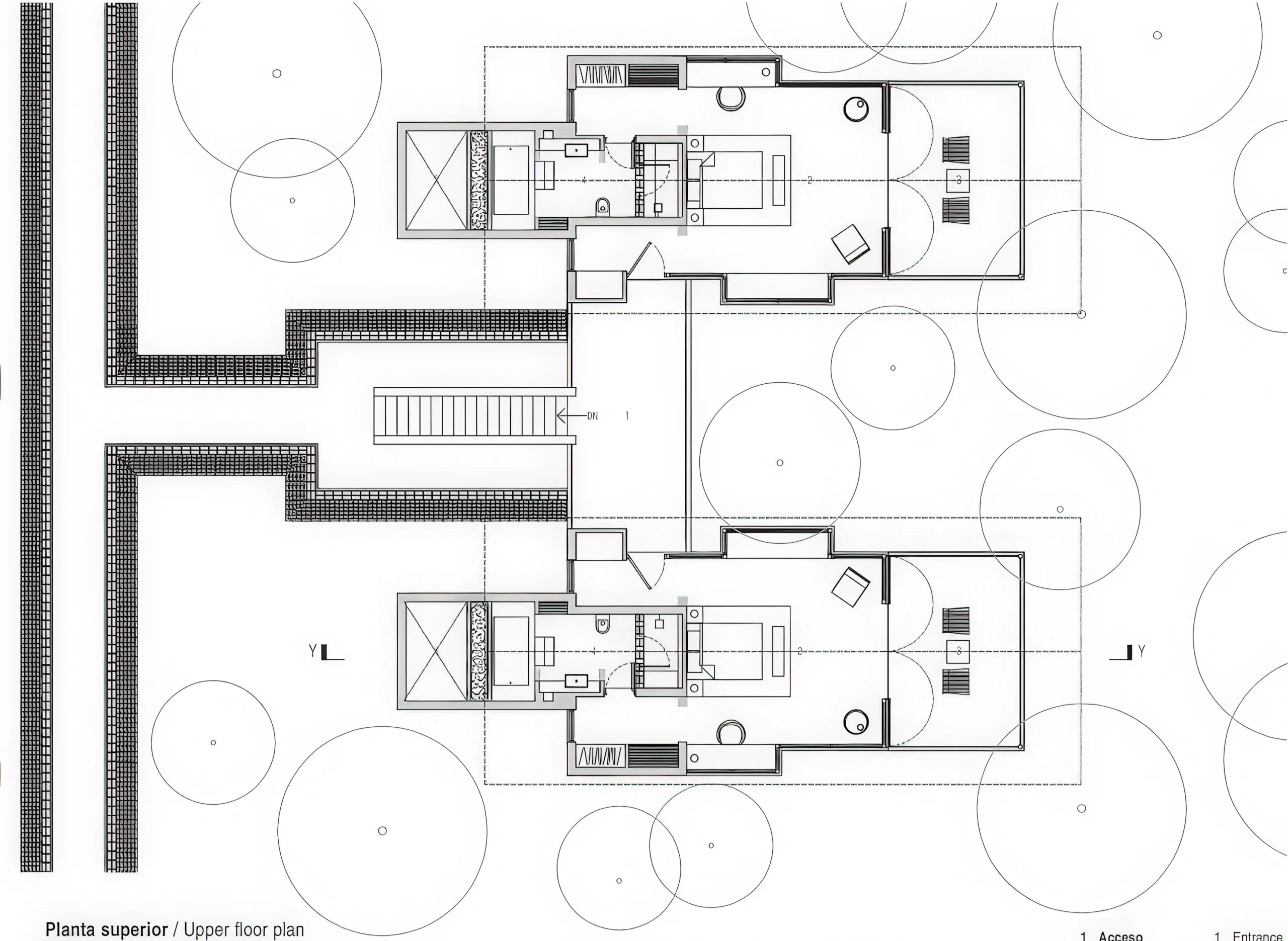
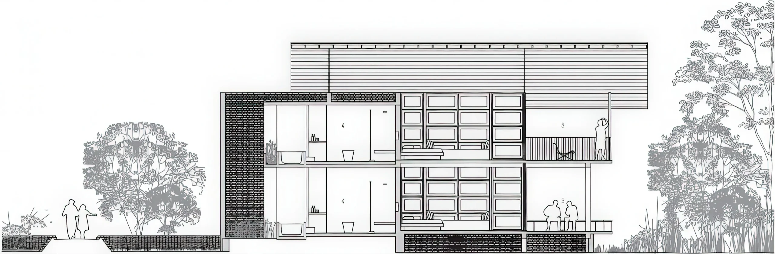
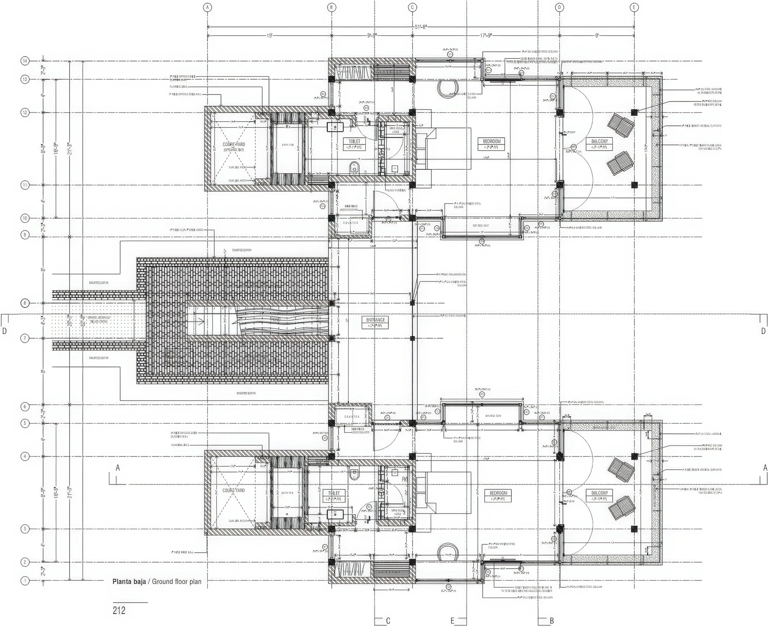
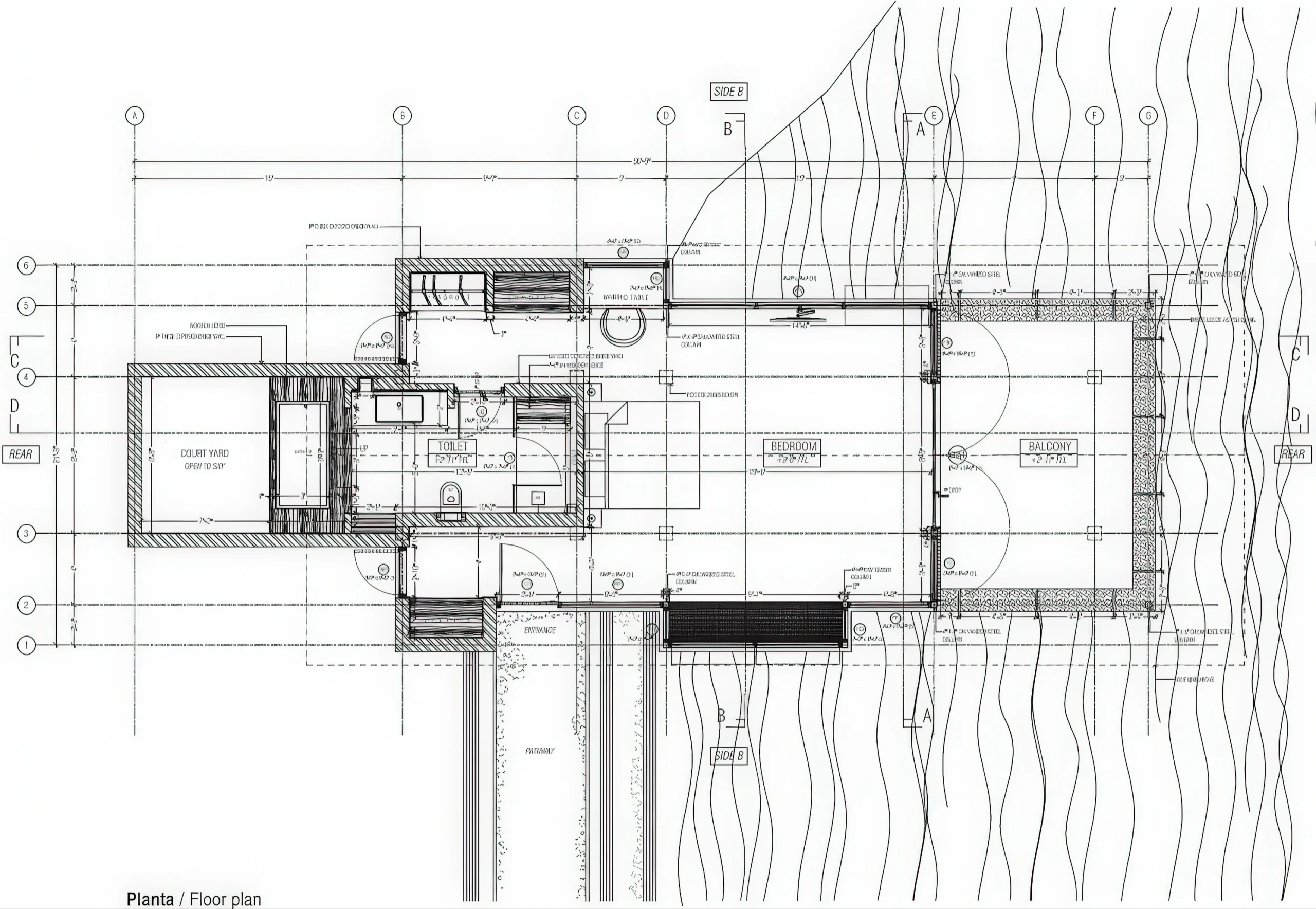
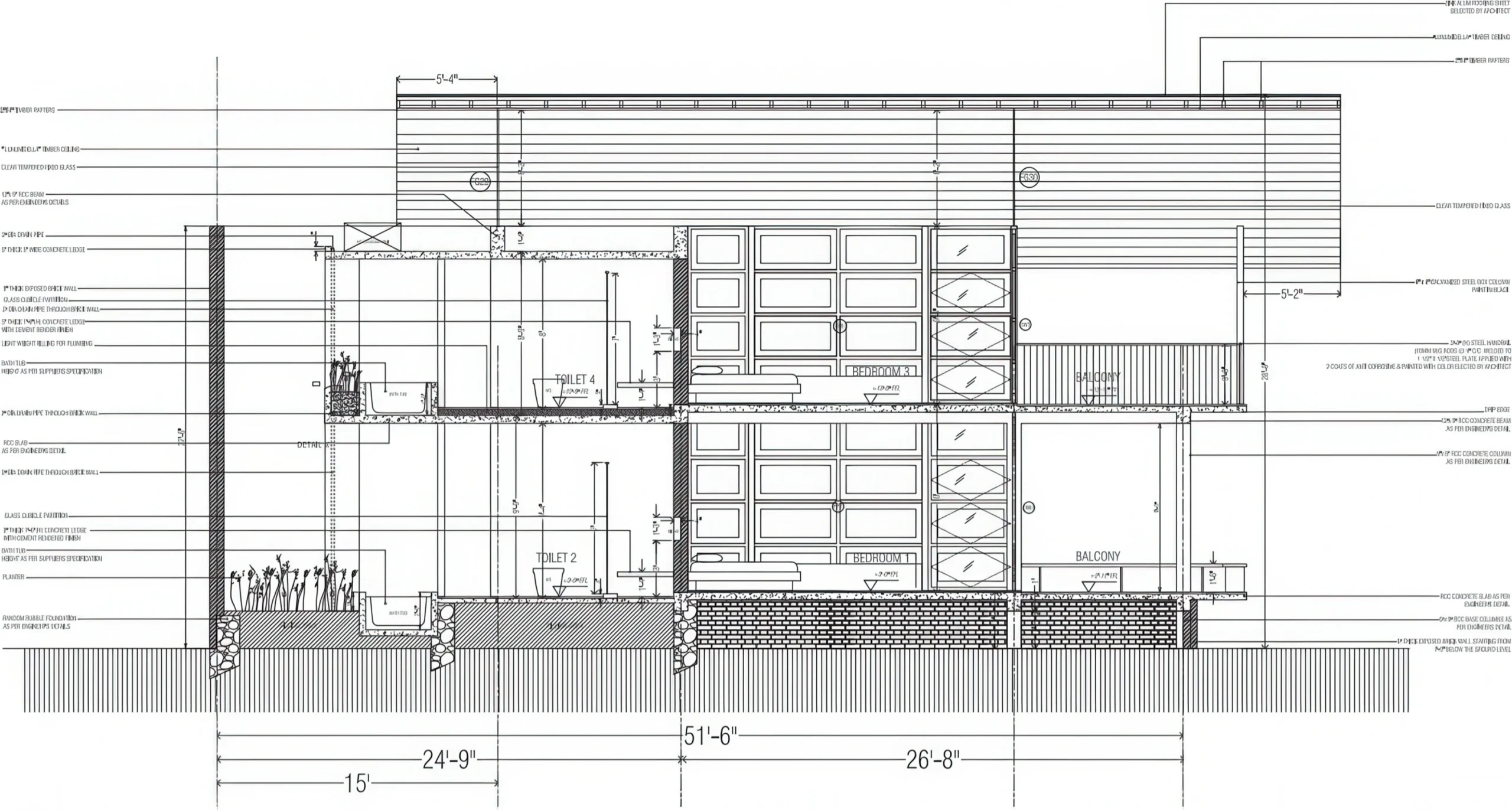
健康疗养在哈巴纳 / Wellness Retreat in Habarana | 帕琳达·坎南加拉|Palinda Kannangara 帕琳达·坎南加拉|Palinda Kannangara • 2026-04-09 上午9:57 • 商业与综合建筑, 酒店建筑设计 健康疗养在哈巴纳由帕琳达·坎南加拉设计,位于斯里兰卡哈巴纳地区,是一个集精品酒店、水疗中心和冥想空间于一体的健康疗养建筑群。设计灵感源自当地寺院景观的宁静美感,通过抬高的冥想步道连接各功能空间,营造身心修复的沉浸式体验。 设计: 帕琳达·坎南加拉|Palinda Kannangara 类型: 酒店建筑设计 功能: 酒店 风格: 可持续建筑 材料: 尺度: 中型建筑 地点:哈巴纳 时间: 2020年 项目概述 健康疗养在哈巴纳项目位于斯里兰卡哈巴纳地区,毗邻锡吉里耶古城和哈巴纳湖,占地18000平方米。该项目包含八间精品酒店客房和两栋独立别墅,设计于2017年,2020年建成,是一个专注于身心健康修复的疗养建筑群。 设计理念 帕琳达·坎南加拉的设计灵感源自当地寺院景观的宁静美感,旨在创造一个与自然和谐共生的疗愈空间。设计团队通过抬高的冥想步道作为项目脊柱,巧妙回应了场地频繁洪水的自然条件,同时保留了原有植被,体现了对场地文脉的尊重。 空间与功能 健康疗养在哈巴纳的空间组织以中央冥想步道为核心,串联接待区、高级餐厅和水疗中心,最终抵达树冠下的圆形冥想空间。公共建筑采用被动通风的亭阁形式,客房和别墅围绕人工湿地布置,营造私密而宁静的居住体验。 材料与技术 项目采用当地可获取的材料,包括手工砖饰面,呼应了地区废墟的建筑语言。所有家具均为定制设计。雨水收集结构和季风水池不仅解决洪水问题,还成为景观体验的一部分,体现了可持续设计策略。 项目特色与启发 健康疗养在哈巴纳展示了建筑如何在不破坏自然环境的前提下创造沉浸式疗愈体验。帕琳达·坎南加拉的设计为生态敏感地区的旅游建筑提供了重要参考,展现了建筑与自然共生的可能性。 设计团队 帕琳达·坎南加拉是斯里兰卡知名建筑师,以其对场地文脉的深刻理解和简约现代的设计语言著称。团队擅长将传统建筑智慧与现代技术结合,在健康疗养在哈巴纳项目中展现了卓越的环境适应性和空间塑造能力。 项目概述 健康疗养在哈巴纳项目位于斯里兰卡哈巴纳地区,毗邻锡吉里耶古城和哈巴纳湖,占地18000平方米。该项目包含八间精品酒店客房和两栋独立别墅,设计于2017年,2020年建成,是一个专注于身心健康修复的疗养建筑群。 设计理念 帕琳达·坎南加拉的设计灵感源自当地寺院景观的宁静美感,旨在创造一个与自然和谐共生的疗愈空间。设计团队通过抬高的冥想步道作为项目脊柱,巧妙回应了场地频繁洪水的自然条件,同时保留了原有植被,体现了对场地文脉的尊重。 空间与功能 健康疗养在哈巴纳的空间组织以中央冥想步道为核心,串联接待区、高级餐厅和水疗中心,最终抵达树冠下的圆形冥想空间。公共建筑采用被动通风的亭阁形式,客房和别墅围绕人工湿地布置,营造私密而宁静的居住体验。 材料与技术 项目采用当地可获取的材料,包括手工砖饰面,呼应了地区废墟的建筑语言。所有家具均为定制设计。雨水收集结构和季风水池不仅解决洪水问题,还成为景观体验的一部分,体现了可持续设计策略。 项目特色与启发 健康疗养在哈巴纳展示了建筑如何在不破坏自然环境的前提下创造沉浸式疗愈体验。帕琳达·坎南加拉的设计为生态敏感地区的旅游建筑提供了重要参考,展现了建筑与自然共生的可能性。 设计团队 帕琳达·坎南加拉是斯里兰卡知名建筑师,以其对场地文脉的深刻理解和简约现代的设计语言著称。团队擅长将传统建筑智慧与现代技术结合,在健康疗养在哈巴纳项目中展现了卓越的环境适应性和空间塑造能力。 本文来自 © 帕琳达·坎南加拉|Palinda Kannangara, 发布于 © 建筑学院官方网站。 未经授权,禁止转载或摘编。 编辑版本版权归 © 建筑学院官方网站 所有, 设计、图纸及照片版权归设计方 © 帕琳达·坎南加拉|Palinda Kannangara ↗ 所有。 查看作者在建筑学院发布的更多作品: 帕琳达·坎南加拉|Palinda Kannangara @ 建筑学院官方网站 Wellness Retreat in Habarana可持续建筑哈巴纳建筑帕琳达·坎南加拉疗养建筑设计 帕琳达·坎南加拉|Palinda Kannangara事务所 & 设计师 下载原图 收藏 0 关于作者 帕琳达·坎南加拉|Palinda Kannangara事务所 & 设计师 关注私信 21 文章 0 评论 0 粉丝 帕琳达·坎南加拉(Palinda Kannangara)是斯里兰卡最具影响力的当代建筑师之一,以其创新的热带现代主义设计而闻名。他的作品深刻诠释了建筑与自然、光线的对话,擅长运用本地材料与现代工艺,创造出既具私密性又开放于景观的空间。其官方网站 www.palindakannangara.com 全面展示了他的住宅、酒店与文化项目,是了解其设计哲学、完整作品集及所获国际奖项的重要窗口。 花园餐厅 / Restaurant in a Garden | Estúdio Gustavo Utrabo 上一篇 2026-03-31 上午10:17 健康疗养在哈巴纳 / Wellness Retreat in Habarana | 帕琳达·坎南加拉|Palinda Kannangara 下一篇 2026-04-12 下午6:35 猜你喜欢 艺术家避暑所 帕特鲁加纳拉 / Artists’ Retreat in Pittugala | 帕琳达·坎南加拉|Palinda Kannangara 2025-12-25 住宅建筑设计 CASA ESPINAL / Spinal House | 帕琳达·坎南加拉|Palinda Kannangara 2026-04-12 住宅建筑设计 假日小木屋 葡萄花娜那 / Holiday Bungalow in Ginigathhena | 帕琳达·坎南加拉|Palinda Kannangara 2026-04-09 住宅建筑设计 假日小木屋 葡萄花娜那 / Holiday Bungalow in Ginigathhena | 帕琳达·坎南加拉|Palinda Kannangara 2025-12-23 住宅建筑设计 帕劳Solità岛Plegamans的住宅 / House in Palau Solità i Plegamans | HArquitectes 2026-02-12 住宅建筑设计 朱法纳风力发电站工作人员居住楼 / Staff Quarters for Wind Power Plant in Jaffna | 帕琳达·坎南加拉|Palinda Kannangara 2026-04-08 住宅建筑设计 发表回复 请登录后评论...登录后才能评论 提交