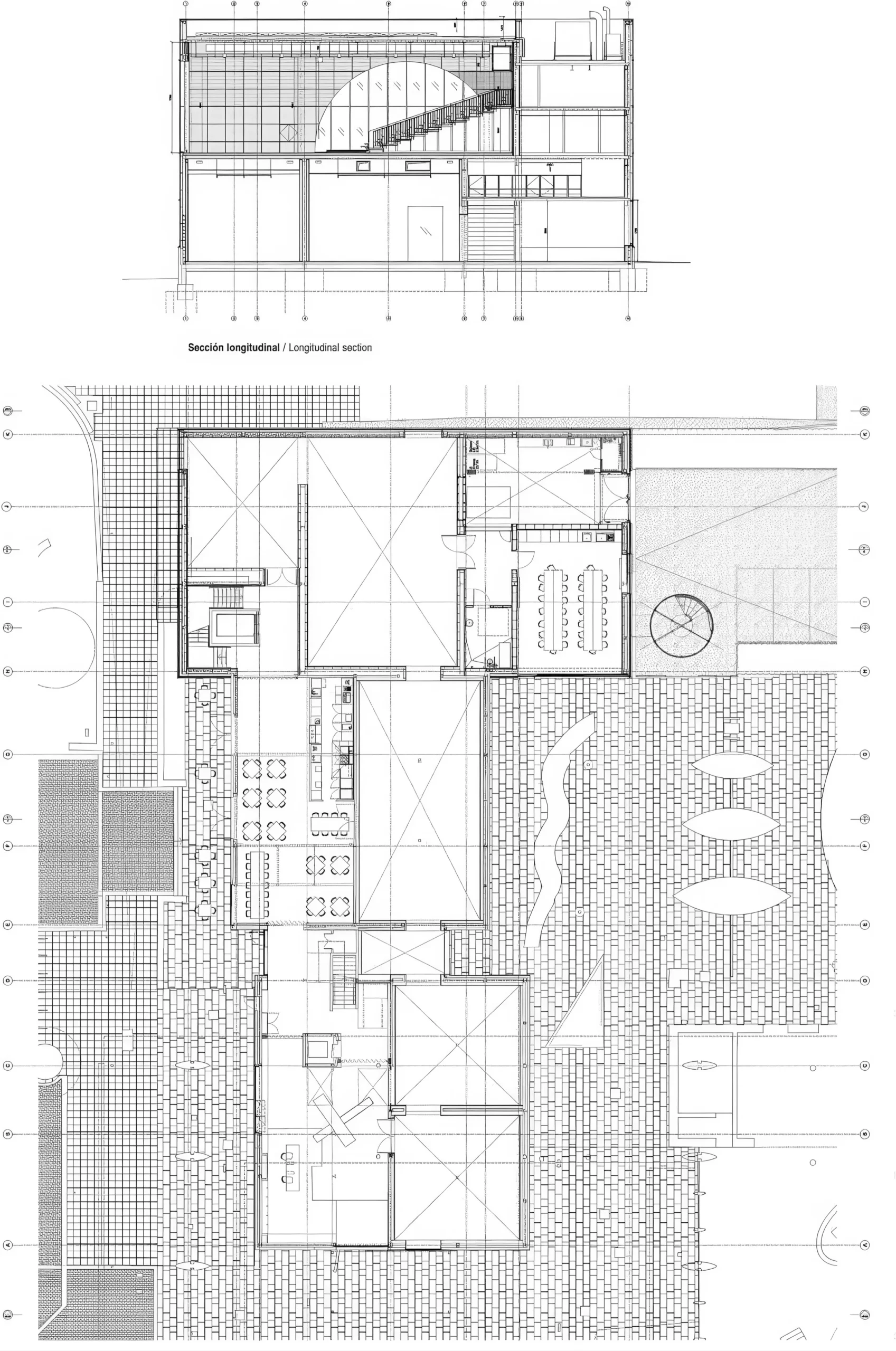
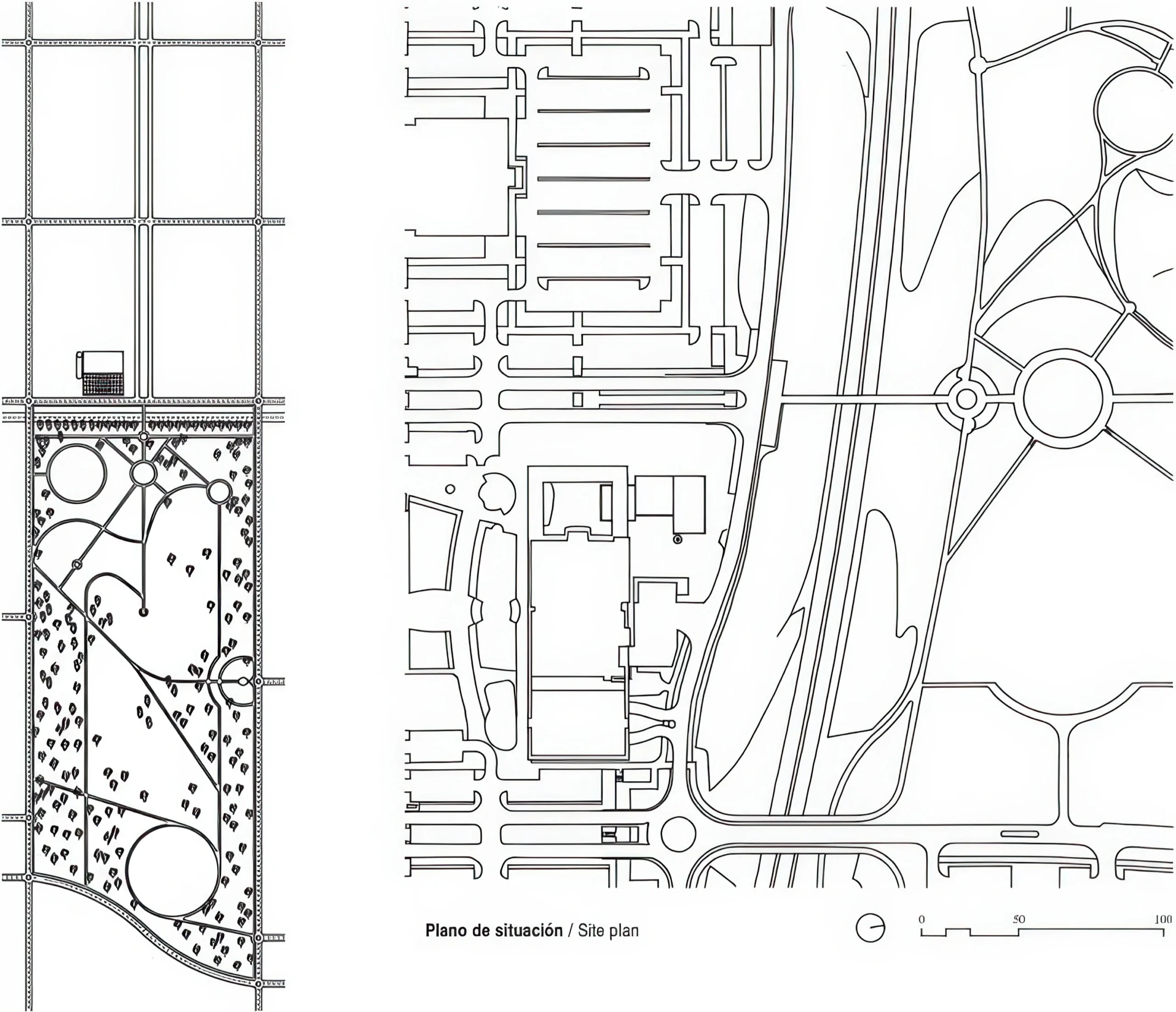
MK美术馆 / MK Gallery | 6a 建筑事务所 6a 建筑事务所|6a architects • 2026-04-18 下午10:00 • 公共建筑设计, 建筑设计, 文化建筑设计 MK美术馆位于英国米尔顿凯恩斯市,由6a建筑事务所设计,是一座当代文化建筑。该项目通过扩建新翼与城市网格呼应,以不锈钢波纹板立面与圆形观景窗重新定义艺术空间与城市景观的关系。 设计: 6a 建筑事务所|6a architects 类型: 文化建筑设计 功能: 文化中心 风格: 当代建筑 材料: 钢材 玻璃 尺度: 中型建筑 地点:米尔顿凯恩斯 时间: 1970年 项目概述 MK美术馆位于英国米尔顿凯恩斯市,是一座当代文化建筑。项目坐落于Midsummer Boulevard顶端,毗邻坎贝尔公园,构成了新兴艺术区的核心。扩建部分包含展览空间与教育工作室,延续了城市网格布局的传统。 设计理念 6a建筑事务所的设计理念源于米尔顿凯恩斯的城市规划历史,将洛杉矶网格与花园城市模式融合。新建筑以简洁的矩形体量包裹不锈钢波纹板,呼应城市严谨的网格结构,同时通过圆形观景窗建立建筑与景观的视觉联系。 空间与功能 MK美术馆的空间组织采用轴线布局,两端对齐的窗户呼应城市构图。新建翼楼包含展览空间、教育工作室及上方的礼堂,形成简洁的功能组合。画廊的轴向排列延续了城市布局逻辑,营造流畅的参观体验。 材料与技术 建筑采用不锈钢波纹板作为主要立面材料,其抛光表面在反射与不透明之间产生微妙变化。结构体系遵循现代建筑技术,通过严谨的几何形态实现空间的高效组织,展现当代建筑的材料表现力。 项目特色与启发 MK美术馆项目展示了如何通过建筑语言回应城市历史文脉,6a建筑事务所的设计为当代文化建筑提供了新范式。该项目对建筑师在历史语境中创造现代空间具有重要参考价值。 项目概述 MK美术馆位于英国米尔顿凯恩斯市,是一座当代文化建筑。项目坐落于Midsummer Boulevard顶端,毗邻坎贝尔公园,构成了新兴艺术区的核心。扩建部分包含展览空间与教育工作室,延续了城市网格布局的传统。 设计理念 6a建筑事务所的设计理念源于米尔顿凯恩斯的城市规划历史,将洛杉矶网格与花园城市模式融合。新建筑以简洁的矩形体量包裹不锈钢波纹板,呼应城市严谨的网格结构,同时通过圆形观景窗建立建筑与景观的视觉联系。 空间与功能 MK美术馆的空间组织采用轴线布局,两端对齐的窗户呼应城市构图。新建翼楼包含展览空间、教育工作室及上方的礼堂,形成简洁的功能组合。画廊的轴向排列延续了城市布局逻辑,营造流畅的参观体验。 材料与技术 建筑采用不锈钢波纹板作为主要立面材料,其抛光表面在反射与不透明之间产生微妙变化。结构体系遵循现代建筑技术,通过严谨的几何形态实现空间的高效组织,展现当代建筑的材料表现力。 项目特色与启发 MK美术馆项目展示了如何通过建筑语言回应城市历史文脉,6a建筑事务所的设计为当代文化建筑提供了新范式。该项目对建筑师在历史语境中创造现代空间具有重要参考价值。 本文来自 © 6a 建筑事务所|6a architects, 发布于 © 建筑学院官方网站。 未经授权,禁止转载或摘编。 编辑版本版权归 © 建筑学院官方网站 所有, 设计、图纸及照片版权归设计方 © 6a 建筑事务所|6a architects ↗ 所有。 查看作者在建筑学院发布的更多作品: 6a 建筑事务所|6a architects @ 建筑学院官方网站 6a architectsMK Gallery当代建筑米尔顿凯恩斯文化建筑美术馆设计 6a 建筑事务所|6a architects事务所 & 设计师 下载原图 收藏 0 关于作者 6a 建筑事务所|6a architects事务所 & 设计师 关注私信 35 文章 1 评论 0 粉丝 6a architects(6a建筑事务所)是英国知名的建筑设计团队,以其对文化、艺术及教育类建筑的深刻理解而闻名。他们的作品擅长运用精巧的材料与细致的构造,在历史与现代的对话中创造宁静而富有感染力的空间。其代表作包括South London Gallery、MK Gallery改造及剑桥大学校园建筑等。 ICTA-ICP研究中心 / Research Centre ICTA-ICP | +Harquitectes 建筑师事务所 上一篇 2026-04-18 下午9:53 黑石大厦 / Black Stone Building | 6a 建筑事务所|6a architects 下一篇 2026-04-19 下午8:12 猜你喜欢 上海美术馆 / Fine Arts Museum, Chur | 巴罗齐与维加建筑事务所|Barozzi Veiga 2026-04-17 公共建筑设计 新高知県体育馆 / New Kagawa Prefectural Gymnasium | SANAA 2026-02-22 体育建筑 堪培拉 Pavilion / Pavilion in Canberra | Pezo Von Ellrichshausen 2026-04-02 公共建筑设计 阿斯彭住宅与塔楼 / House and Pavilions in Aspen | Pezo Von Ellrichshausen 2026-04-02 住宅建筑设计 济宁艺术博物馆 / Jining Art Museum | SANAA 2026-03-21 公共建筑设计 Pavilion and Restaurant in Gyeonggi-Do / 京畿道展馆与餐厅 | Pezo Von Ellrichshausen 2026-04-05 景观小品 发表回复 请登录后评论...登录后才能评论 提交