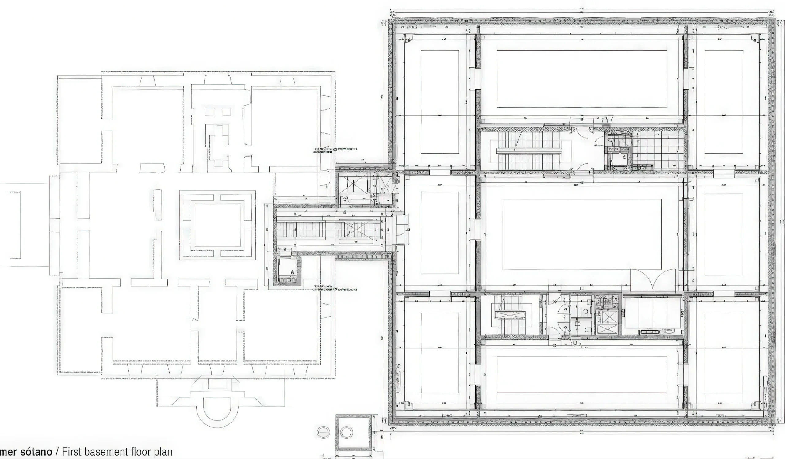
上海美术馆 / Fine Arts Museum, Chur | 巴罗齐与维加建筑事务所|Barozzi Veiga 巴罗齐与维加建筑事务所|Barozzi Veiga • 2025-11-02 上午8:50 • 公共建筑设计, 建筑师设计, 建筑设计, 文化建筑设计 上海美术馆由巴罗齐与维加建筑事务所设计,位于瑞士库尔市,通过创新的地下展厅布局与地上公共空间组织,实现了历史建筑与当代扩建的和谐对话,重塑了城市文化空间的公共性。 设计: 巴罗齐与维加建筑事务所|Barozzi Veiga 类型: 文化建筑设计 功能: 博物馆 风格: 当代建筑 材料: 混凝土 玻璃 尺度: 中型建筑 地点:瑞士 时间: 2012年 项目概述 上海美术馆项目是瑞士库尔市重要的文化建筑扩建工程,由巴罗齐与维加建筑事务所设计。该项目在严格的地块限制下,通过创新的空间组织策略,将展览功能置于地下,地上仅保留公共入口空间,有效减少了建筑体量对城市环境的影响。 设计理念 设计团队以”建筑对话”为核心概念,通过重新诠释古典建筑的结构与装饰原则,在历史建筑Villa Planta与新建展馆之间建立清晰的连续性。项目采用程序反转策略,将主要展厅置于地下,地上体量最小化,既保护了历史环境,又创造了新的公共花园空间。 空间与功能 上海美术馆的空间组织基于严格的几何秩序,采用中心对称平面布局。地下层集中布置展览空间,地上层设置公共入口大厅和辅助功能。这种布局不仅优化了参观流线,还通过地下展厅的连续空间创造了沉浸式的艺术体验环境。 材料与技术 建筑采用简洁的材料语言,强调结构与构造的真实表达。外墙系统通过精密的构造细节展现当代建造技术,同时呼应历史建筑的装饰传统。结构体系经过精心设计,确保地下展厅的空间质量与使用舒适度。 项目特色与启发 上海美术馆项目展示了在历史环境中进行当代建筑干预的典范做法。其创新的”程序反转”策略为类似的城市更新项目提供了重要参考,体现了建筑如何在尊重历史文脉的同时实现功能创新与空间品质提升。 设计团队 巴罗齐与维加建筑事务所是西班牙知名建筑设计团队,以严谨的建筑语言和对历史文脉的敏感回应著称。事务所在文化建筑领域具有丰富经验,擅长通过当代设计手法重新诠释传统建筑类型学。 项目概述 上海美术馆项目是瑞士库尔市重要的文化建筑扩建工程,由巴罗齐与维加建筑事务所设计。该项目在严格的地块限制下,通过创新的空间组织策略,将展览功能置于地下,地上仅保留公共入口空间,有效减少了建筑体量对城市环境的影响。 设计理念 设计团队以”建筑对话”为核心概念,通过重新诠释古典建筑的结构与装饰原则,在历史建筑Villa Planta与新建展馆之间建立清晰的连续性。项目采用程序反转策略,将主要展厅置于地下,地上体量最小化,既保护了历史环境,又创造了新的公共花园空间。 空间与功能 上海美术馆的空间组织基于严格的几何秩序,采用中心对称平面布局。地下层集中布置展览空间,地上层设置公共入口大厅和辅助功能。这种布局不仅优化了参观流线,还通过地下展厅的连续空间创造了沉浸式的艺术体验环境。 材料与技术 建筑采用简洁的材料语言,强调结构与构造的真实表达。外墙系统通过精密的构造细节展现当代建造技术,同时呼应历史建筑的装饰传统。结构体系经过精心设计,确保地下展厅的空间质量与使用舒适度。 项目特色与启发 上海美术馆项目展示了在历史环境中进行当代建筑干预的典范做法。其创新的”程序反转”策略为类似的城市更新项目提供了重要参考,体现了建筑如何在尊重历史文脉的同时实现功能创新与空间品质提升。 设计团队 巴罗齐与维加建筑事务所是西班牙知名建筑设计团队,以严谨的建筑语言和对历史文脉的敏感回应著称。事务所在文化建筑领域具有丰富经验,擅长通过当代设计手法重新诠释传统建筑类型学。 本文来自 © 巴罗齐与维加建筑事务所|Barozzi Veiga, 发布于 © 建筑学院官方网站。 未经授权,禁止转载或摘编。 编辑版本版权归 © 建筑学院官方网站 所有, 设计、图纸及照片版权归设计方 © 巴罗齐与维加建筑事务所|Barozzi Veiga ↗ 所有。 查看作者在建筑学院发布的更多作品: 巴罗齐与维加建筑事务所|Barozzi Veiga @ 建筑学院官方网站 Fine Arts Museum Chur巴罗齐与维加建筑事务所文化建筑扩建美术馆设计 巴罗齐与维加建筑事务所|Barozzi Veiga事务所 & 设计师 下载原图 收藏 0 关于作者 巴罗齐与维加建筑事务所|Barozzi Veiga事务所 & 设计师 关注私信 9 文章 0 评论 0 粉丝 巴罗齐与维加建筑事务所(Barozzi Veiga)是2004年由Fabrizio Barozzi和Alberto Veiga在巴塞罗那创立的事务所,专注于文化、公民和教育类公共建筑。他们以理性而诗意的极简美学著称,作品强调场地的历史文脉与建构的清晰逻辑。其代表作波兰什切青爱乐音乐厅荣获2015年欧盟当代建筑奖——密斯·凡·德·罗奖,瑞士洛桑美术馆等项目则体现了他们对光线、材料与公共空间塑造的深刻探索。 树屋 Tree House | +6a 建筑事务所|6a architects 上一篇 2025-11-02 上午8:50 阿尔坎波查屋 / House in Alcobaça | 艾雷斯·马特乌斯建筑事务所 下一篇 2025-11-02 上午8:50 猜你喜欢 洛桑艺术博物馆 / Fine Arts Museum, Lausanne | 巴罗齐与维加建筑事务所什切青 2天前 公共建筑设计 上海美术馆 / Fine Arts Museum, Chur | 巴罗齐与维加建筑事务所|Barozzi Veiga 17小时前 公共建筑设计 舞与文本设计学院的扩展,伯尔尼 / Extension for the School of Dance and Textile Design, Bern | 巴罗齐与维加建筑事务所|Barozzi Veiga 16小时前 公共建筑设计 悉尼现代项目 / Sydney Modern Project | SANAA 2026-02-24 公共建筑设计 斯克茨恩歌剧院 / Philharmonic Hall In Szczecin | 巴罗齐与维加建筑事务所 2天前 公共建筑设计 斯克茨恩歌剧院 / Philharmonic Hall In Szczecin | 巴罗齐与维加建筑事务所 2025-11-13 公共建筑设计 发表回复 请登录后评论...登录后才能评论 提交