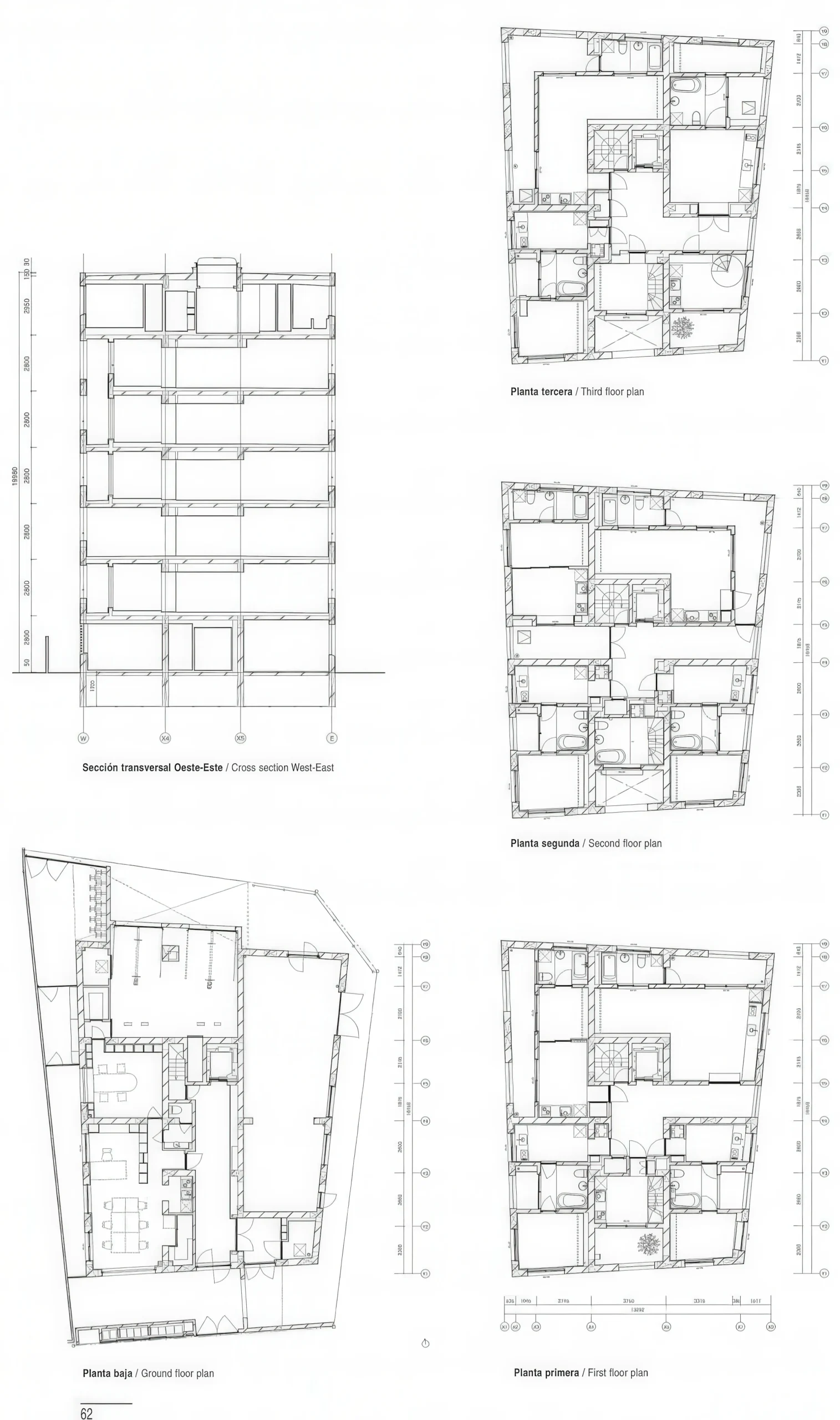
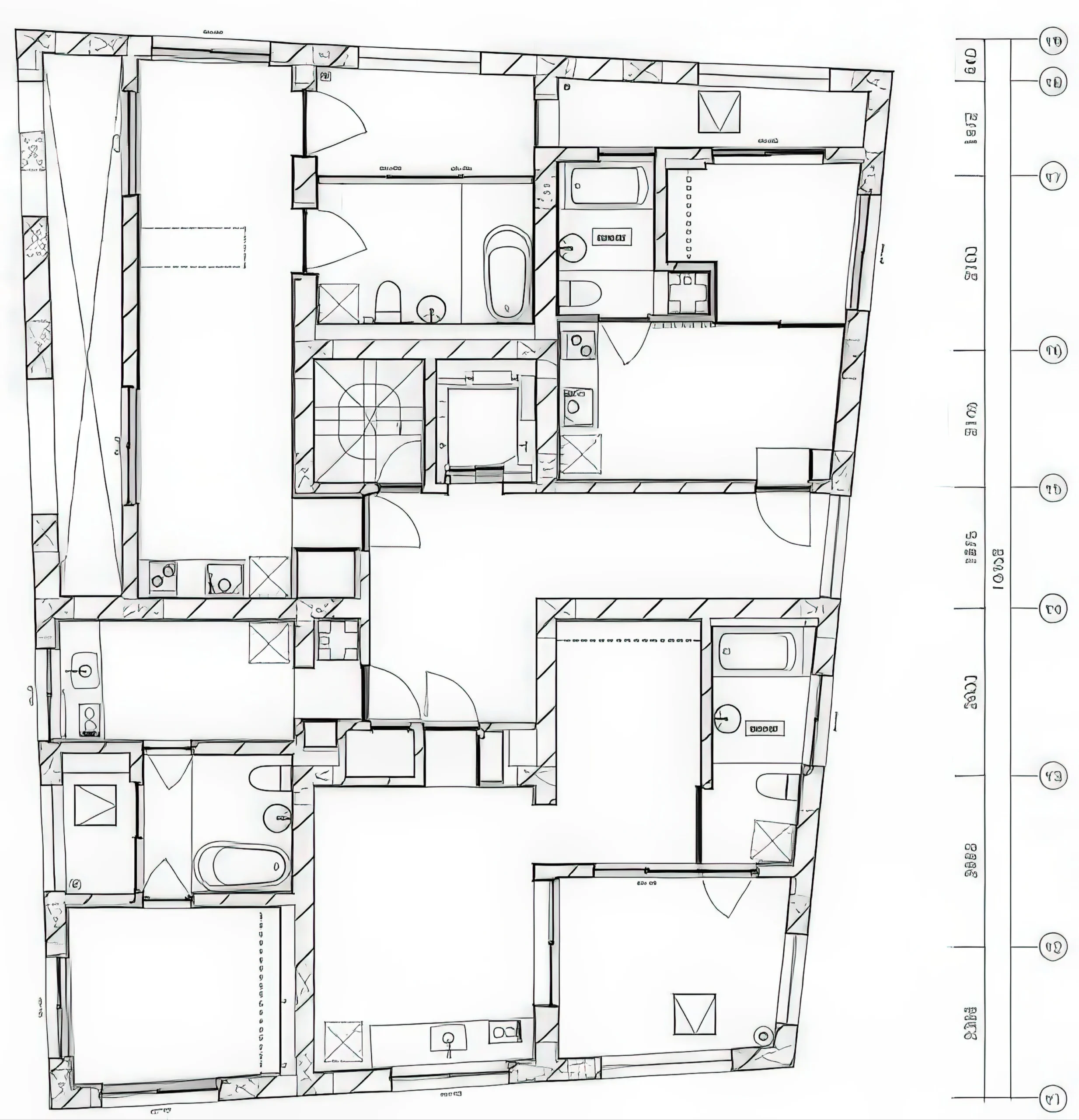
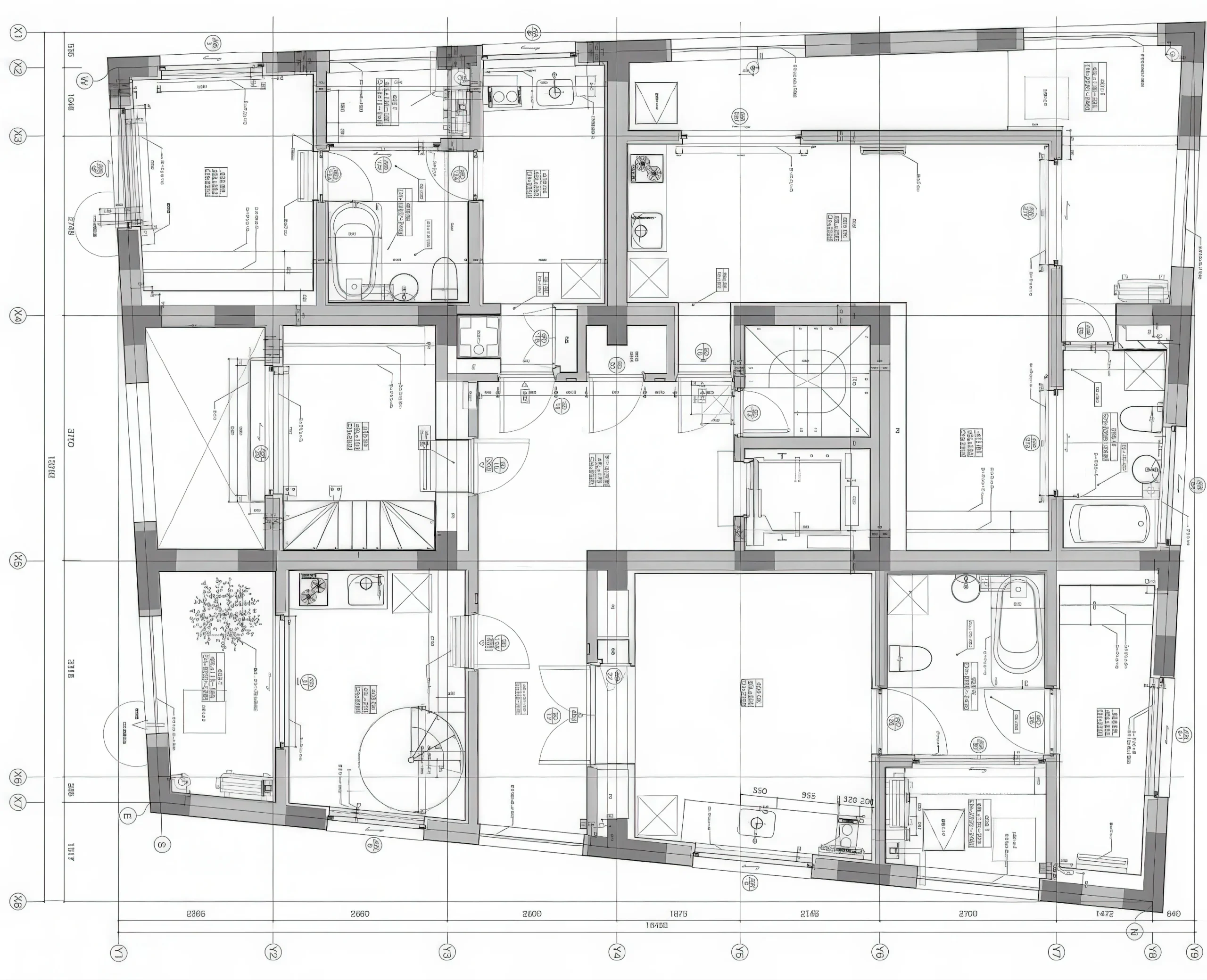
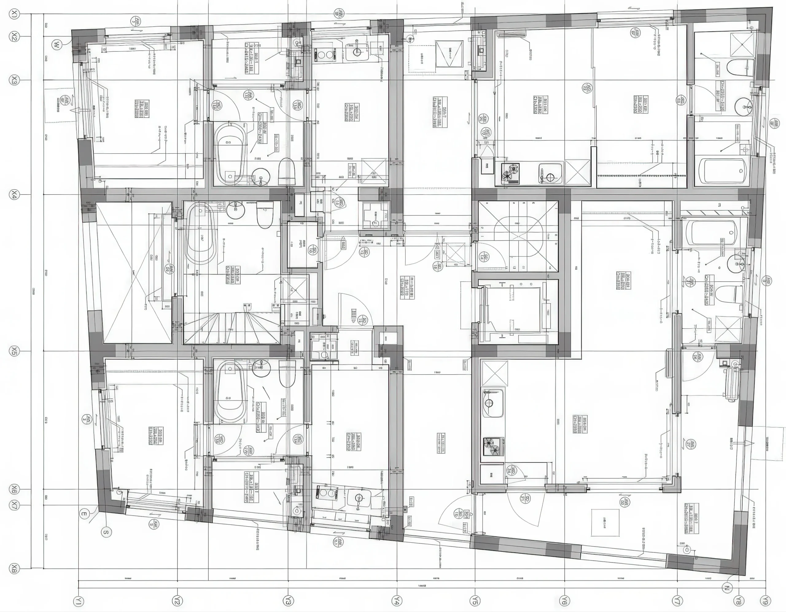
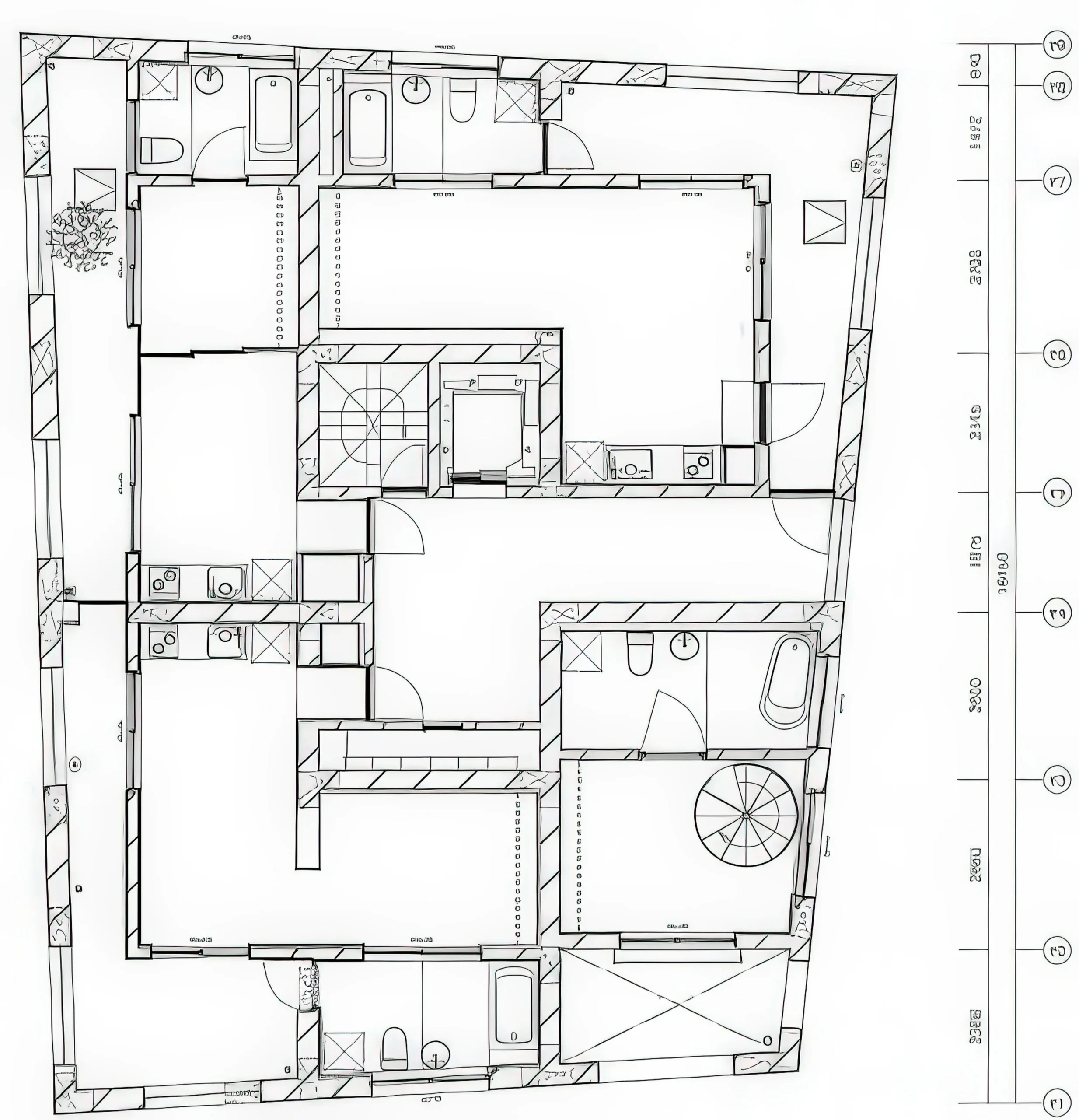
公寓在 Nerima / Apartments in Nerima | 长谷川豪建筑事务所|Go Hasegawa 长谷川豪建筑事务所|Go Hasegawa • 2025-11-25 上午8:50 • 公共建筑设计, 建筑师, 建筑设计, 文化建筑设计 公寓在 Nerima 由长谷川豪建筑事务所设计,位于东京练马区,是一座租赁公寓建筑。项目通过多样化的露台设计为不同住户提供个性化居住体验,巧妙连接城市肌理与居住空间。 设计: 长谷川豪建筑事务所|Go Hasegawa 类型: 文化建筑设计 功能: 公寓住宅 风格: 现代主义 材料: 混凝土 钢材 玻璃 尺度: 中型建筑 地点:东京 时间: 2017年 项目概述 公寓在 Nerima 位于东京都市圈练马区,地处公寓楼区与独栋住宅区的交界地带。这座租赁公寓建筑邻近火车站、办公区和大学,设计包含多种户型以满足不同居住需求。 设计理念 长谷川豪建筑事务所通过独特的露台设计策略,将每个居住单元的空间品质个性化。设计摒弃传统阳台附加方式,而是通过露台形状、尺度和光线塑造差异化的生活方式,让建筑内外产生视觉与生活的互动。 空间与功能 项目包含多种户型布局,角部单元采用L形露台对应相同形状的室内空间,侧边单元配备狭长露台与线性室内布局,复式和三式公寓则拥有紧凑的多层露台。每个单元的露台面积接近室内封闭空间,如同独栋住宅的花园。 材料与技术 建筑采用简洁的现代构造手法,立面处理注重虚实对比,通过露台的错落布置形成丰富的建筑表情。材料选择强调耐久性与维护便利性,符合租赁住宅的功能需求。 项目特色与启发 公寓在 Nerima 展示了如何在密集城市环境中通过空间差异化提升居住品质。长谷川豪建筑事务所的设计为都市租赁住宅提供了创新范式,通过露台作为中介空间,平衡私密性与社区感。 设计团队 长谷川豪建筑事务所由建筑师长谷川豪创立,以细腻的空间处理和创新的居住体验设计著称。事务所在住宅建筑领域具有丰富经验,擅长通过精准的空间策略回应复杂的城市环境。 项目概述 公寓在 Nerima 位于东京都市圈练马区,地处公寓楼区与独栋住宅区的交界地带。这座租赁公寓建筑邻近火车站、办公区和大学,设计包含多种户型以满足不同居住需求。 设计理念 长谷川豪建筑事务所通过独特的露台设计策略,将每个居住单元的空间品质个性化。设计摒弃传统阳台附加方式,而是通过露台形状、尺度和光线塑造差异化的生活方式,让建筑内外产生视觉与生活的互动。 空间与功能 项目包含多种户型布局,角部单元采用L形露台对应相同形状的室内空间,侧边单元配备狭长露台与线性室内布局,复式和三式公寓则拥有紧凑的多层露台。每个单元的露台面积接近室内封闭空间,如同独栋住宅的花园。 材料与技术 建筑采用简洁的现代构造手法,立面处理注重虚实对比,通过露台的错落布置形成丰富的建筑表情。材料选择强调耐久性与维护便利性,符合租赁住宅的功能需求。 项目特色与启发 公寓在 Nerima 展示了如何在密集城市环境中通过空间差异化提升居住品质。长谷川豪建筑事务所的设计为都市租赁住宅提供了创新范式,通过露台作为中介空间,平衡私密性与社区感。 设计团队 长谷川豪建筑事务所由建筑师长谷川豪创立,以细腻的空间处理和创新的居住体验设计著称。事务所在住宅建筑领域具有丰富经验,擅长通过精准的空间策略回应复杂的城市环境。 本文来自 © 长谷川豪建筑事务所|Go Hasegawa, 发布于 © 建筑学院官方网站。 未经授权,禁止转载或摘编。 编辑版本版权归 © 建筑学院官方网站 所有, 设计、图纸及照片版权归设计方 © 长谷川豪建筑事务所|Go Hasegawa ↗ 所有。 查看作者在建筑学院发布的更多作品: 长谷川豪建筑事务所|Go Hasegawa @ 建筑学院官方网站 Apartments in Nerima东京住宅建筑租赁公寓设计长谷川豪建筑事务所 长谷川豪建筑事务所|Go Hasegawa事务所 & 设计师 下载原图 收藏 0 关于作者 长谷川豪建筑事务所|Go Hasegawa事务所 & 设计师 关注私信 16 文章 0 评论 0 粉丝 长谷川豪建筑事务所(Go Hasegawa)由日本建筑师长谷川豪于2005年创立,以其对空间尺度的独特探索和建筑与自然、城市环境的巧妙融合而闻名。其代表作"樱台之家"以一张巨大桌子重新定义住宅核心,"林中飞屋"则通过架空结构实现与树冠平齐的居住体验。事务所作品强调打破建筑内外界限,营造既亲密又开放的动态空间。 Bötzow啤酒厂的改造 Conversion of Bötzow Brewery | 大卫·奇珀菲尔德建筑事务所|David Chipperfield 上一篇 2025-11-25 上午12:50 圣路易斯艺术博物馆,东楼 Saint Louis Art Museum,East Building | 大卫·奇珀菲尔德建筑事务所|David 下一篇 2025-11-25 上午8:50 猜你喜欢 京都的房子 / House in Kyodo | 长谷川豪建筑事务所 2025-11-01 公共建筑设计 Gotanda的房子 / House in Gotanda | 长谷川豪建筑事务所 2025-11-25 公共建筑设计 昭谷口之家 / House in Shakujiikouen | 长谷川豪建筑事务所 2025-11-16 公共建筑设计 Okachimachi公寓 / Apartments in Okachimachi | 长谷川豪建筑事务所 2025-11-24 公共建筑设计 川崎住宅 / House in Kawasaki | 长谷川豪建筑事务所 2025-11-22 公共建筑设计 Ageo的排房 / Row House in Ageo | 长谷川豪建筑事务所|Go Hasegawa 2025-11-12 公共建筑设计 发表回复 请登录后评论...登录后才能评论 提交