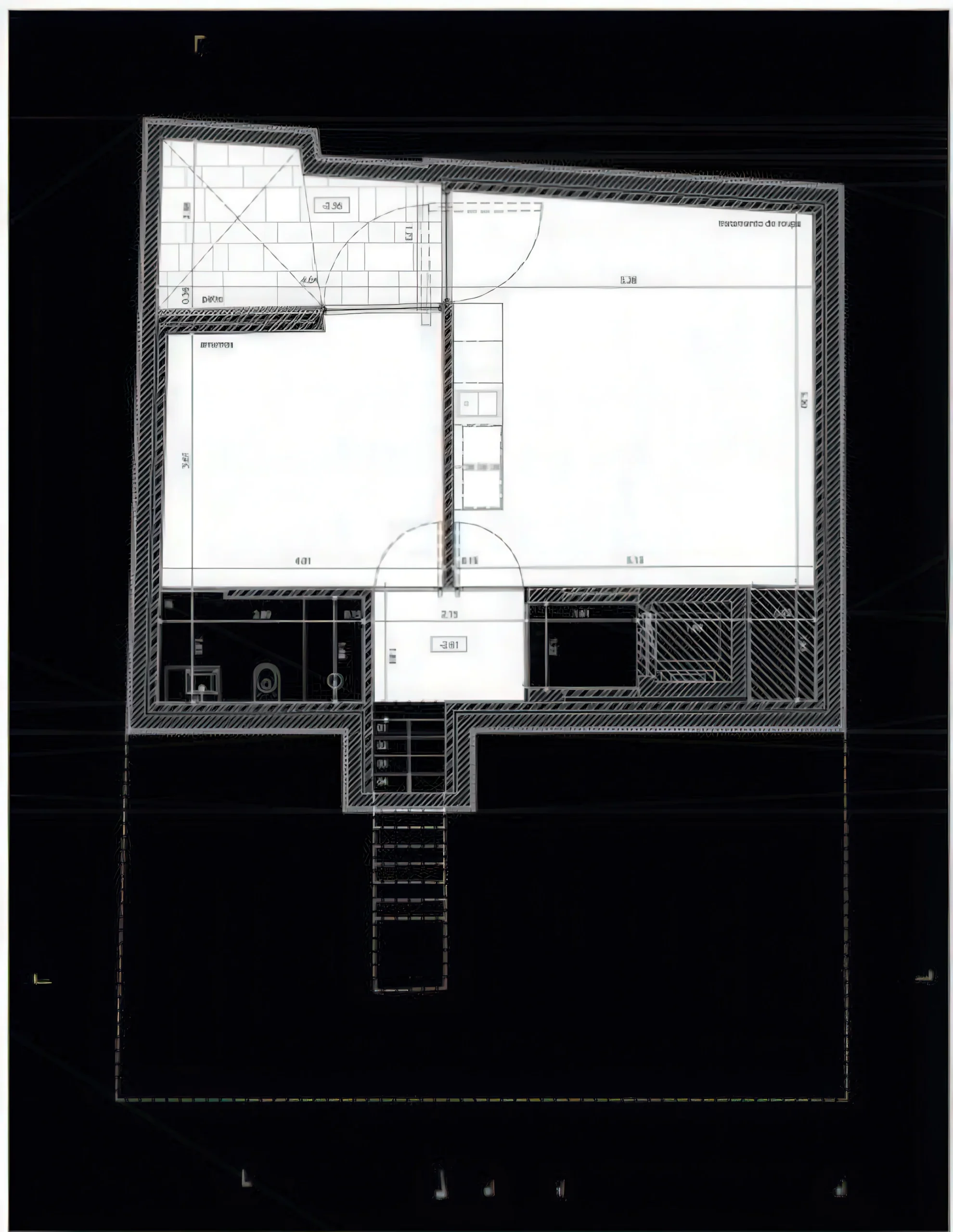
阿加多夫之家 / House in Ajuda | 艾雷斯·马特乌斯建筑事务所 艾雷斯·马特乌斯建筑事务所|Aires Mateus • 2025-11-09 上午8:50 • 公共建筑设计, 建筑师设计, 建筑设计, 文化建筑设计 阿加多夫之家由艾雷斯·马特乌斯建筑事务所设计,位于葡萄牙里斯本阿加多夫区,是一座垂直住宅建筑。项目通过金字塔形采光井串联多层空间,创造丰富的空间体验与视觉连接,展现当代住宅设计的创新理念。 设计: 艾雷斯·马特乌斯建筑事务所|Aires Mateus 类型: 文化建筑设计 功能: 独立住宅 风格: 现代主义 材料: 混凝土 钢材 木材 玻璃 石材 尺度: 小型建筑 地点:里斯本 时间: 2014年 项目概述 阿加多夫之家位于葡萄牙里斯本阿加多夫区,是一座垂直住宅建筑,设计于2009年,2014年建成。项目通过创新的垂直空间组织,为家庭生活提供多层次共享空间。 设计理念 艾雷斯·马特乌斯建筑事务所将住宅定义为垂直生活空间,核心设计概念是通过金字塔形采光井统一建筑整体高度,创造连续的空间体验。设计回应了里斯本城市肌理与场地特征,将传统住宅垂直发展理念与现代空间需求相结合。 空间与功能 阿加多夫之家采用垂直空间组织,入口位于金字塔形空间底部,向上延伸至天窗。音乐厅采用双层挑高设计,与上层楼梯平台形成视觉连接。图书馆俯瞰入口金字塔空间,上层起居室享有双向景观:南向河流与记忆教堂,北向阿加多夫大皇宫。各层功能明确分布,通过主楼梯实现垂直连通。 材料与技术 项目采用钢筋混凝土结构,外墙为200毫米厚钢筋混凝土。主要材料包括白色抹灰墙面、实木地板、白色Estremoz大理石和钢制门窗。采光天窗采用8.8/4层压玻璃,配备通风系统。建筑注重热工性能,使用挤塑聚苯板保温层和蒸汽屏障系统。 项目特色与启发 阿加多夫之家展示了垂直住宅设计的创新可能,通过金字塔形空间组织创造了独特的空间体验。项目为高密度城市环境中的住宅设计提供了新思路,对当代住宅建筑的空间组织与采光设计具有重要参考价值。 设计团队 艾雷斯·马特乌斯建筑事务所由曼努埃尔·艾雷斯·马特乌斯和弗朗西斯科·艾雷斯·马特乌斯兄弟创立,以极简主义建筑语言和空间纯净性著称。事务所在住宅、文化建筑领域具有国际声誉,擅长通过简洁形式创造丰富的空间体验。 项目概述 阿加多夫之家位于葡萄牙里斯本阿加多夫区,是一座垂直住宅建筑,设计于2009年,2014年建成。项目通过创新的垂直空间组织,为家庭生活提供多层次共享空间。 设计理念 艾雷斯·马特乌斯建筑事务所将住宅定义为垂直生活空间,核心设计概念是通过金字塔形采光井统一建筑整体高度,创造连续的空间体验。设计回应了里斯本城市肌理与场地特征,将传统住宅垂直发展理念与现代空间需求相结合。 空间与功能 阿加多夫之家采用垂直空间组织,入口位于金字塔形空间底部,向上延伸至天窗。音乐厅采用双层挑高设计,与上层楼梯平台形成视觉连接。图书馆俯瞰入口金字塔空间,上层起居室享有双向景观:南向河流与记忆教堂,北向阿加多夫大皇宫。各层功能明确分布,通过主楼梯实现垂直连通。 材料与技术 项目采用钢筋混凝土结构,外墙为200毫米厚钢筋混凝土。主要材料包括白色抹灰墙面、实木地板、白色Estremoz大理石和钢制门窗。采光天窗采用8.8/4层压玻璃,配备通风系统。建筑注重热工性能,使用挤塑聚苯板保温层和蒸汽屏障系统。 项目特色与启发 阿加多夫之家展示了垂直住宅设计的创新可能,通过金字塔形空间组织创造了独特的空间体验。项目为高密度城市环境中的住宅设计提供了新思路,对当代住宅建筑的空间组织与采光设计具有重要参考价值。 设计团队 艾雷斯·马特乌斯建筑事务所由曼努埃尔·艾雷斯·马特乌斯和弗朗西斯科·艾雷斯·马特乌斯兄弟创立,以极简主义建筑语言和空间纯净性著称。事务所在住宅、文化建筑领域具有国际声誉,擅长通过简洁形式创造丰富的空间体验。 本文来自 © 艾雷斯·马特乌斯建筑事务所|Aires Mateus, 发布于 © 建筑学院官方网站。 未经授权,禁止转载或摘编。 编辑版本版权归 © 建筑学院官方网站 所有, 设计、图纸及照片版权归设计方 © 艾雷斯·马特乌斯建筑事务所|Aires Mateus ↗ 所有。 查看作者在建筑学院发布的更多作品: 艾雷斯·马特乌斯建筑事务所|Aires Mateus @ 建筑学院官方网站 House in Ajuda垂直住宅设计艾雷斯·马特乌斯里斯本住宅 艾雷斯·马特乌斯建筑事务所|Aires Mateus事务所 & 设计师 下载原图 收藏 0 关于作者 艾雷斯·马特乌斯建筑事务所|Aires Mateus事务所 & 设计师 关注私信 14 文章 0 评论 0 粉丝 艾雷斯·马特乌斯建筑事务所(Aires Mateus)由葡萄牙建筑师Manuel Aires Mateus和Francisco Aires Mateus兄弟于1988年在里斯本创立。该事务所以极简主义风格著称,强调建筑的精神表达和永恒品质,作品关注物质与文化世界的关系,追求抽象形式和空间平衡。其项目涵盖住宅、度假屋等,在全球获奖无数,并在哈佛大学等多所高校任教,塑造了葡萄牙当代建筑的深刻影响力。 维多利亚与阿尔伯特会员室 Victoria & Albert Members’ Room | 卡莫迪·格罗克建筑事务所|Carmody Groarke 上一篇 2025-11-08 上午8:50 低碳住宅 Low Carbon House | 布鲁瑟建筑事务所|Bruther 下一篇 2025-11-09 下午12:50 猜你喜欢 梅尔迪斯的房子 II / House in Melides II | 艾雷斯·马特乌斯建筑事务所 2025-11-11 公共建筑设计 阿尔泰罗尼海岸上的房子 / House on the Alentejo Coast | 艾雷斯·马特乌斯建筑事务所 2025-11-09 公共建筑设计 特鲁尼建筑学院 / Architecture Faculty in Tournai | 艾雷斯·马特乌斯建筑事务所 2025-11-14 公共建筑设计 河边小屋 Huts on the River | 艾雷斯·马特乌斯建筑事务所 Aires Mateus 2025-10-29 公共建筑设计 CASA EN ESTRELA / HOUSE IN ESTRELA | 艾雷斯·马特乌斯建筑事务所|Aires Mateus 2025-11-11 公共建筑设计 若昂二十一世纪大道公寓楼 / Avenida João XXI Apartment Building | 德·莫拉建筑事务所 2026-03-14 住宅建筑设计 发表回复 请登录后评论...登录后才能评论 提交