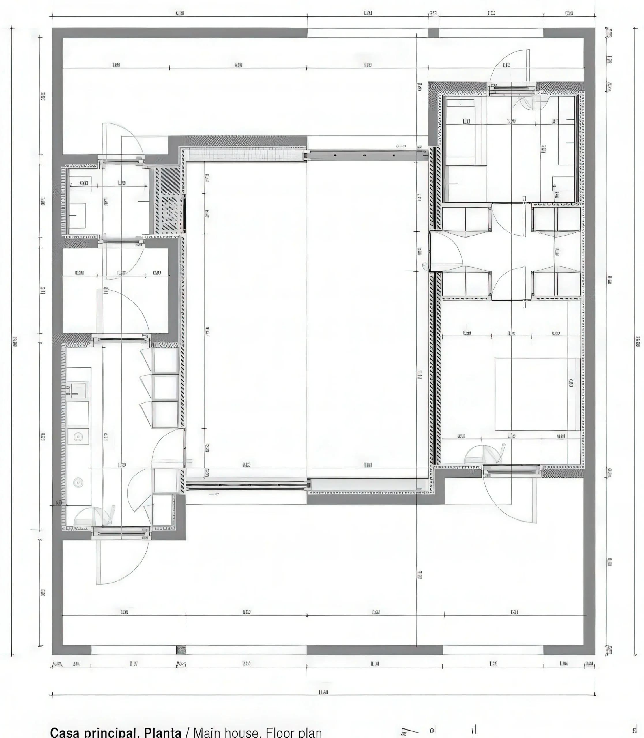
梅尔迪斯的房子 II / House in Melides II | 艾雷斯·马特乌斯建筑事务所 艾雷斯·马特乌斯建筑事务所|Aires Mateus • 2025-11-11 上午10:30 • 公共建筑设计, 建筑师设计, 建筑设计, 文化建筑设计 梅尔迪斯的房子 II 由艾雷斯·马特乌斯建筑事务所设计,位于葡萄牙阿连特茹地区。这座独立住宅通过分散的建筑体量创造私密空间,主屋与三个小屋单元围绕庭院布局,巧妙利用地形与景观视野,展现当代建筑与自然环境的和谐对话。 设计: 艾雷斯·马特乌斯建筑事务所|Aires Mateus 类型: 文化建筑设计 功能: 独立住宅 风格: 当代建筑 材料: 混凝土 钢材 木材 尺度: 微型建筑与装置 地点:阿连特茹 时间: 2015年 项目概述 梅尔迪斯的房子 II 位于葡萄牙阿连特茹地区,是一座独立住宅项目。建筑由主屋和三个小型客房组成,设计于2012年,建成于2015年。项目通过分散的体量布局与庭院空间,营造出与自然环境紧密相连的居住体验。 设计理念 艾雷斯·马特乌斯建筑事务所以”破碎化程序”为核心设计理念,将居住功能分解为多个独立单元,创造层次丰富的私密空间。设计回应了场地原有的树木、视野和远处海平线,通过建筑体量与庭院的组合,建立起独特的景观关系。 空间与功能 梅尔迪斯的房子 II 的空间组织清晰明确:主屋包含厨房、客厅和主卧室三个功能区域,三个小型客房则设计为独立的套房小屋。每个建筑单元都配有庭院,这些庭院不仅扩展了室内空间,更成为框景视线的窗口。流线设计注重隐私与景观体验的平衡。 材料与技术 建筑采用混凝土、钢材和木材等基础材料,构造细节精致。屋顶系统采用矿物棉保温层和石膏板内墙,地面设置地暖系统。游泳池利用地形高差,通过挡土墙定义形状,创造了与景观的特殊互动关系。 项目特色与启发 梅尔迪斯的房子 II 展现了当代住宅设计中空间分散策略的潜力,为建筑师提供了如何在自然环境中创造私密性与开放性平衡的参考范例。项目对地形与视野的精准回应,体现了建筑与场地对话的设计智慧。 设计团队 艾雷斯·马特乌斯建筑事务所由曼努埃尔·艾雷斯·马特乌斯和弗朗西斯科·艾雷斯·马特乌斯兄弟创立,以极简主义建筑语言和空间纯净性著称。事务所在住宅和文化建筑领域有着丰富经验,擅长通过几何纯净的形式创造深刻的空间体验。 项目概述 梅尔迪斯的房子 II 位于葡萄牙阿连特茹地区,是一座独立住宅项目。建筑由主屋和三个小型客房组成,设计于2012年,建成于2015年。项目通过分散的体量布局与庭院空间,营造出与自然环境紧密相连的居住体验。 设计理念 艾雷斯·马特乌斯建筑事务所以”破碎化程序”为核心设计理念,将居住功能分解为多个独立单元,创造层次丰富的私密空间。设计回应了场地原有的树木、视野和远处海平线,通过建筑体量与庭院的组合,建立起独特的景观关系。 空间与功能 梅尔迪斯的房子 II 的空间组织清晰明确:主屋包含厨房、客厅和主卧室三个功能区域,三个小型客房则设计为独立的套房小屋。每个建筑单元都配有庭院,这些庭院不仅扩展了室内空间,更成为框景视线的窗口。流线设计注重隐私与景观体验的平衡。 材料与技术 建筑采用混凝土、钢材和木材等基础材料,构造细节精致。屋顶系统采用矿物棉保温层和石膏板内墙,地面设置地暖系统。游泳池利用地形高差,通过挡土墙定义形状,创造了与景观的特殊互动关系。 项目特色与启发 梅尔迪斯的房子 II 展现了当代住宅设计中空间分散策略的潜力,为建筑师提供了如何在自然环境中创造私密性与开放性平衡的参考范例。项目对地形与视野的精准回应,体现了建筑与场地对话的设计智慧。 设计团队 艾雷斯·马特乌斯建筑事务所由曼努埃尔·艾雷斯·马特乌斯和弗朗西斯科·艾雷斯·马特乌斯兄弟创立,以极简主义建筑语言和空间纯净性著称。事务所在住宅和文化建筑领域有着丰富经验,擅长通过几何纯净的形式创造深刻的空间体验。 本文来自 © 艾雷斯·马特乌斯建筑事务所|Aires Mateus, 发布于 © 建筑学院官方网站。 未经授权,禁止转载或摘编。 编辑版本版权归 © 建筑学院官方网站 所有, 设计、图纸及照片版权归设计方 © 艾雷斯·马特乌斯建筑事务所|Aires Mateus ↗ 所有。 查看作者在建筑学院发布的更多作品: 艾雷斯·马特乌斯建筑事务所|Aires Mateus @ 建筑学院官方网站 House in Melides II独立住宅设计艾雷斯·马特乌斯葡萄牙住宅 艾雷斯·马特乌斯建筑事务所|Aires Mateus事务所 & 设计师 下载原图 收藏 0 关于作者 艾雷斯·马特乌斯建筑事务所|Aires Mateus事务所 & 设计师 关注私信 14 文章 0 评论 0 粉丝 艾雷斯·马特乌斯建筑事务所(Aires Mateus)由葡萄牙建筑师Manuel Aires Mateus和Francisco Aires Mateus兄弟于1988年在里斯本创立。该事务所以极简主义风格著称,强调建筑的精神表达和永恒品质,作品关注物质与文化世界的关系,追求抽象形式和空间平衡。其项目涵盖住宅、度假屋等,在全球获奖无数,并在哈佛大学等多所高校任教,塑造了葡萄牙当代建筑的深刻影响力。 圣埃斯特拉山的温泉 / Thermal Baths in Serra da Estrela | 艾雷斯·马特乌斯建筑事务所 上一篇 2025-11-11 上午8:50 “景镇融合”魔鬼城-西部乌镇2025首届艺术装置设计大赛 | 竞赛 下一篇 2025-11-11 下午12:00 猜你喜欢 卡马之家和艾瓦哈之家 / Kama House and Alwah House | RCR 建筑事务所 2025-11-13 公共建筑设计 山上的房子 House on a Hill | 谭姆与维德高德建筑事务所|Tham & Videgård 2025-11-07 公共建筑设计 弗斯特纳布尔克的库伯尔之家 / Kübler House in Fürstenaubruck | 吉翁·A·卡米纳达|Gion A. Caminada 2026-03-25 住宅建筑设计 House at the Bäumle / Vertical Living | 贝尔纳多·巴德尔|Bernardo Bader 2026-01-18 住宅建筑设计 奥利维尔多杜罗之家 House in Oliveira do Douro | 德莫拉建筑事务所|De Mora 2025-11-05 公共建筑设计 Casa de Navidad / House in Navidad | Pezo Von Ellrichshausen 2026-02-05 住宅建筑设计 发表回复 请登录后评论...登录后才能评论 提交