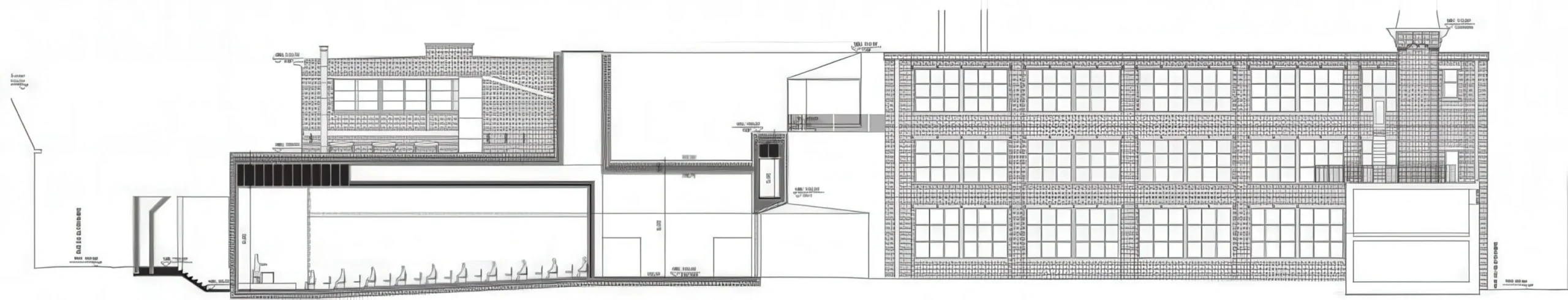
特鲁尼建筑学院 / Architecture Faculty in Tournai | 艾雷斯·马特乌斯建筑事务所 艾雷斯·马特乌斯建筑事务所|Aires Mateus • 2025-11-14 下午12:50 • 公共建筑设计, 建筑师设计, 建筑设计, 文化建筑设计 特鲁尼建筑学院由艾雷斯·马特乌斯建筑事务所设计,位于比利时图尔奈历史城区,通过新建连接体整合既有工业厂房与修道院,以垂直与水平流线串联教学空间,塑造兼具通行与聚会功能的公共核心。 设计: 艾雷斯·马特乌斯建筑事务所|Aires Mateus 类型: 文化建筑设计 功能: 学校 风格: 现代主义 材料: 混凝土 钢材 玻璃 尺度: 中型建筑 地点:图尔奈 时间: 2014年 项目概述 特鲁尼建筑学院项目位于比利时图尔奈历史城区,是一座教育建筑改造与扩建工程。该项目在2014年设计竞赛中获得一等奖,通过新建连接体整合两座工业厂房与一座原修道院建筑,形成完整的建筑学院功能体系。 设计理念 艾雷斯·马特乌斯建筑事务所的设计理念聚焦于历史城区的文脉整合,通过新建建筑体量连接不同时期、不同身份的既有建筑,在尊重历史肌理的同时创造清晰的现代空间逻辑。设计将新建部分作为城市街区内部的连接器,既解决功能需求又强化场所的整体认同。 空间与功能 特鲁尼建筑学院的空间组织以新建连接体为核心,垂直与水平方向串联所有现有建筑。内部容纳门厅、报告厅等主要公共功能,既作为通行通道又成为师生交流的聚集场所。空间布局强调流动性与开放性,通过精心设计的视线关系与动线组织营造适宜学习与创作的环境。 材料与技术 项目采用钢筋混凝土结构体系,外墙运用连续混凝土涂层工艺,内部采用金属结构与双层石膏板吊顶系统。材料选择注重耐久性与施工效率,同时通过保温层、防水层与排水系统确保建筑的环境性能。细部设计展现对混凝土材质表现力的深度探索。 项目特色与启发 特鲁尼建筑学院项目展示了历史城区教育建筑更新的创新路径,其连接体策略为类似的城市织补项目提供参考。艾雷斯·马特乌斯建筑事务所在本项目中对空间整合与材料表达的精准把控,为建筑师在处理复杂历史语境下的新建项目提供了重要借鉴。 设计团队 艾雷斯·马特乌斯建筑事务所由兄弟档建筑师曼努埃尔·艾雷斯·马特乌斯与弗朗西斯科·艾雷斯·马特乌斯创立,以极简建筑语言与对光、空间关系的敏锐把握著称。事务所在教育建筑、文化设施与住宅领域拥有丰富经验,其作品常通过简洁形式创造深刻的空间体验。 项目概述 特鲁尼建筑学院项目位于比利时图尔奈历史城区,是一座教育建筑改造与扩建工程。该项目在2014年设计竞赛中获得一等奖,通过新建连接体整合两座工业厂房与一座原修道院建筑,形成完整的建筑学院功能体系。 设计理念 艾雷斯·马特乌斯建筑事务所的设计理念聚焦于历史城区的文脉整合,通过新建建筑体量连接不同时期、不同身份的既有建筑,在尊重历史肌理的同时创造清晰的现代空间逻辑。设计将新建部分作为城市街区内部的连接器,既解决功能需求又强化场所的整体认同。 空间与功能 特鲁尼建筑学院的空间组织以新建连接体为核心,垂直与水平方向串联所有现有建筑。内部容纳门厅、报告厅等主要公共功能,既作为通行通道又成为师生交流的聚集场所。空间布局强调流动性与开放性,通过精心设计的视线关系与动线组织营造适宜学习与创作的环境。 材料与技术 项目采用钢筋混凝土结构体系,外墙运用连续混凝土涂层工艺,内部采用金属结构与双层石膏板吊顶系统。材料选择注重耐久性与施工效率,同时通过保温层、防水层与排水系统确保建筑的环境性能。细部设计展现对混凝土材质表现力的深度探索。 项目特色与启发 特鲁尼建筑学院项目展示了历史城区教育建筑更新的创新路径,其连接体策略为类似的城市织补项目提供参考。艾雷斯·马特乌斯建筑事务所在本项目中对空间整合与材料表达的精准把控,为建筑师在处理复杂历史语境下的新建项目提供了重要借鉴。 设计团队 艾雷斯·马特乌斯建筑事务所由兄弟档建筑师曼努埃尔·艾雷斯·马特乌斯与弗朗西斯科·艾雷斯·马特乌斯创立,以极简建筑语言与对光、空间关系的敏锐把握著称。事务所在教育建筑、文化设施与住宅领域拥有丰富经验,其作品常通过简洁形式创造深刻的空间体验。 本文来自 © 艾雷斯·马特乌斯建筑事务所|Aires Mateus, 发布于 © 建筑学院官方网站。 未经授权,禁止转载或摘编。 编辑版本版权归 © 建筑学院官方网站 所有, 设计、图纸及照片版权归设计方 © 艾雷斯·马特乌斯建筑事务所|Aires Mateus ↗ 所有。 查看作者在建筑学院发布的更多作品: 艾雷斯·马特乌斯建筑事务所|Aires Mateus @ 建筑学院官方网站 Architecture Faculty in Tournai图尔奈建筑教育建筑设计艾雷斯·马特乌斯 艾雷斯·马特乌斯建筑事务所|Aires Mateus事务所 & 设计师 下载原图 收藏 0 关于作者 艾雷斯·马特乌斯建筑事务所|Aires Mateus事务所 & 设计师 关注私信 14 文章 0 评论 0 粉丝 艾雷斯·马特乌斯建筑事务所(Aires Mateus)由葡萄牙建筑师Manuel Aires Mateus和Francisco Aires Mateus兄弟于1988年在里斯本创立。该事务所以极简主义风格著称,强调建筑的精神表达和永恒品质,作品关注物质与文化世界的关系,追求抽象形式和空间平衡。其项目涵盖住宅、度假屋等,在全球获奖无数,并在哈佛大学等多所高校任教,塑造了葡萄牙当代建筑的深刻影响力。 艺术历史学家工作室图书馆 / Art Historian’s Studio Library | +MOS 建筑事务所 上一篇 2025-11-14 上午8:50 克罗洛克图书馆 / De Krook Library | RCR 建筑事务所|RCR Arquitectes 下一篇 2025-11-15 上午8:50 猜你喜欢 阿尔泰罗尼海岸上的房子 / House on the Alentejo Coast | 艾雷斯·马特乌斯建筑事务所 2025-11-09 公共建筑设计 河边小屋 Huts on the River | 艾雷斯·马特乌斯建筑事务所 Aires Mateus 2025-10-29 公共建筑设计 弗拉门卡尔海滩中学 / ‘Playa Flamenca’ Secondary School | 阿尔弗雷多·帕亚|Alfredo Payá 2025-12-05 公共建筑设计 Vila Nova da Barquinha学校 / School in Vila Nova da Barquinha | 艾雷斯·马特乌斯建筑事务所|Aires Mateus 2025-11-16 公共建筑设计 克拉多伊村屋 House in Campolide | 艾雷斯·马特乌斯建筑事务所|Aires Mateus 2025-10-30 公共建筑设计 CASA EN FONTINHA / House in Fontinha | 艾雷斯·马特乌斯建筑事务所|Aires Mateus 2025-11-14 公共建筑设计 发表回复 请登录后评论...登录后才能评论 提交