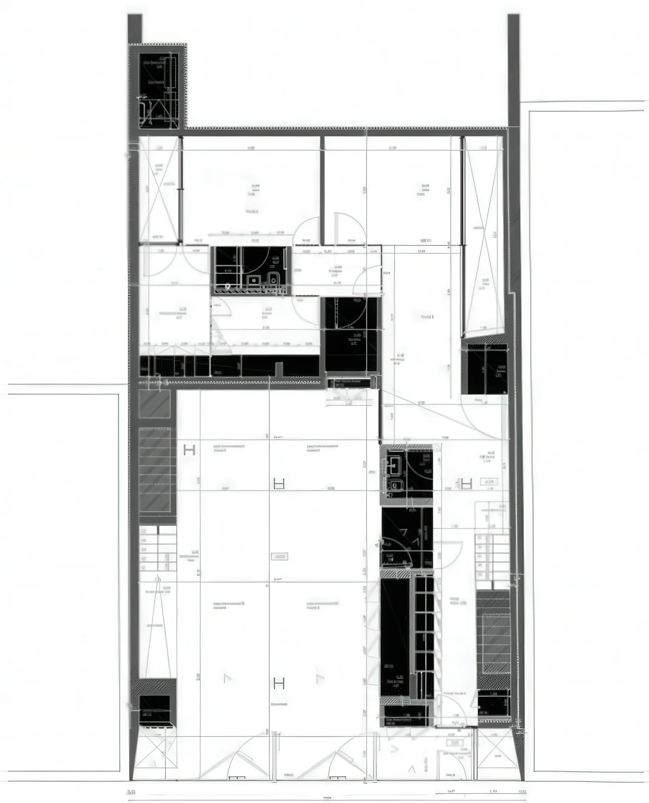
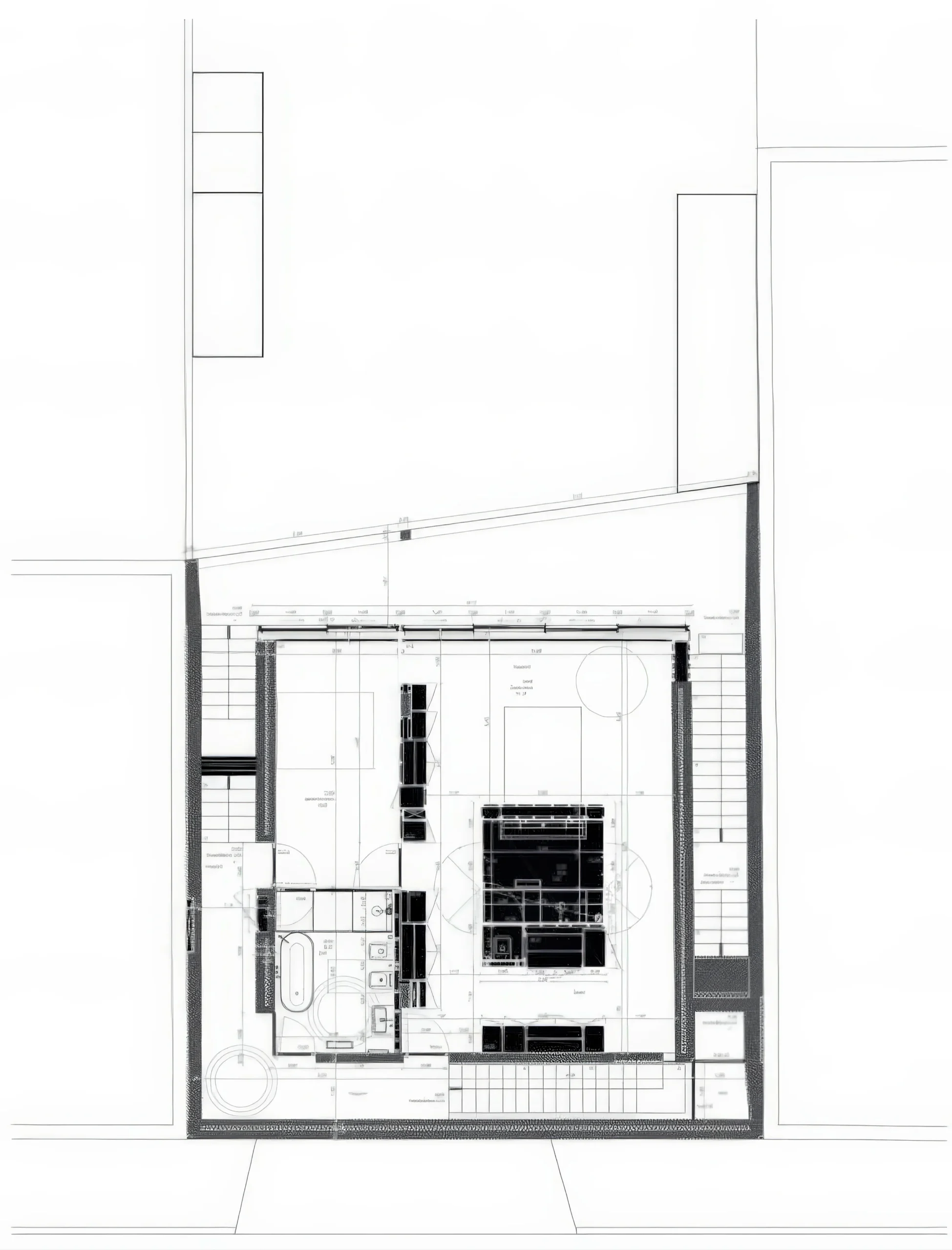
CASA EN ESTRELA / HOUSE IN ESTRELA | 艾雷斯·马特乌斯建筑事务所|Aires Mateus 艾雷斯·马特乌斯建筑事务所|Aires Mateus • 2025-11-11 上午8:50 • 公共建筑设计, 建筑师设计, 建筑设计, 文化建筑设计 CASA EN ESTRELA 住宅项目位于葡萄牙里斯本,由艾雷斯·马特乌斯建筑事务所设计。这座现代主义住宅通过内外双动线组织空间,采用清水混凝土材料,重新诠释传统街屋形式,巧妙回应场地与家庭生活需求。 设计: 艾雷斯·马特乌斯建筑事务所|Aires Mateus 类型: 文化建筑设计 功能: 独立住宅 风格: 现代主义 材料: 混凝土 钢材 木材 玻璃 尺度: 微型建筑与装置 地点:里斯本 时间: 2012年 项目概述 CASA EN ESTRELA 住宅项目位于葡萄牙里斯本,毗邻Estrela大教堂,俯瞰里斯本河口。这座现代主义住宅建筑由艾雷斯·马特乌斯建筑事务所设计,项目始于2012年,通过创新的空间组织重新定义当代居住体验。 设计理念 艾雷斯·马特乌斯建筑事务所以现代手法复兴传统街屋形式,通过内外双动线系统实现父母与子女生活空间的独立性。设计巧妙利用场地高差,建立建筑与城市、水景的视觉联系,展现对里斯本城市文脉的深刻理解。 空间与功能 CASA EN ESTRELA 住宅采用分层布局:首层客厅实现花园与街道的水平通透连接;主卧室面向双层高庭院空间;子女卧室层设置走廊与阳台;顶层客厅转化为露台,通过屋顶圆柱体开口框定双向景观。碗形泳池压缩客厅屋顶,强化空间组织逻辑。 材料与技术 建筑内外均采用清水混凝土构造,配合实木模板纹理。技术细节包括微水泥连续地面、辐射采暖系统、高强度保温隔热层及完善的排水系统,体现艾雷斯·马特乌斯建筑事务所在材料表达与构造精度上的专业追求。 项目特色与启发 CASA EN ESTRELA 住宅项目展示了如何通过严谨的几何操作与材料语言,在现代住宅设计中平衡功能需求与空间品质。艾雷斯·马特乌斯建筑事务所的设计为当代住宅建筑提供了关于空间组织、材料表达与场地回应的宝贵参考。 设计团队 艾雷斯·马特乌斯建筑事务所由兄弟曼努埃尔·艾雷斯·马特乌斯和弗朗西斯科·艾雷斯·马特乌斯创立,以极简主义建筑语言和精湛的空间操作闻名。事务所在住宅、文化建筑领域具有重要影响力,CASA EN ESTRELA 项目体现了其一贯的设计哲学。 项目概述 CASA EN ESTRELA 住宅项目位于葡萄牙里斯本,毗邻Estrela大教堂,俯瞰里斯本河口。这座现代主义住宅建筑由艾雷斯·马特乌斯建筑事务所设计,项目始于2012年,通过创新的空间组织重新定义当代居住体验。 设计理念 艾雷斯·马特乌斯建筑事务所以现代手法复兴传统街屋形式,通过内外双动线系统实现父母与子女生活空间的独立性。设计巧妙利用场地高差,建立建筑与城市、水景的视觉联系,展现对里斯本城市文脉的深刻理解。 空间与功能 CASA EN ESTRELA 住宅采用分层布局:首层客厅实现花园与街道的水平通透连接;主卧室面向双层高庭院空间;子女卧室层设置走廊与阳台;顶层客厅转化为露台,通过屋顶圆柱体开口框定双向景观。碗形泳池压缩客厅屋顶,强化空间组织逻辑。 材料与技术 建筑内外均采用清水混凝土构造,配合实木模板纹理。技术细节包括微水泥连续地面、辐射采暖系统、高强度保温隔热层及完善的排水系统,体现艾雷斯·马特乌斯建筑事务所在材料表达与构造精度上的专业追求。 项目特色与启发 CASA EN ESTRELA 住宅项目展示了如何通过严谨的几何操作与材料语言,在现代住宅设计中平衡功能需求与空间品质。艾雷斯·马特乌斯建筑事务所的设计为当代住宅建筑提供了关于空间组织、材料表达与场地回应的宝贵参考。 设计团队 艾雷斯·马特乌斯建筑事务所由兄弟曼努埃尔·艾雷斯·马特乌斯和弗朗西斯科·艾雷斯·马特乌斯创立,以极简主义建筑语言和精湛的空间操作闻名。事务所在住宅、文化建筑领域具有重要影响力,CASA EN ESTRELA 项目体现了其一贯的设计哲学。 本文来自 © 艾雷斯·马特乌斯建筑事务所|Aires Mateus, 发布于 © 建筑学院官方网站。 未经授权,禁止转载或摘编。 编辑版本版权归 © 建筑学院官方网站 所有, 设计、图纸及照片版权归设计方 © 艾雷斯·马特乌斯建筑事务所|Aires Mateus ↗ 所有。 查看作者在建筑学院发布的更多作品: 艾雷斯·马特乌斯建筑事务所|Aires Mateus @ 建筑学院官方网站 Aires MateusHouse in Estrela住宅设计里斯本住宅 艾雷斯·马特乌斯建筑事务所|Aires Mateus事务所 & 设计师 下载原图 收藏 0 关于作者 艾雷斯·马特乌斯建筑事务所|Aires Mateus事务所 & 设计师 关注私信 14 文章 0 评论 0 粉丝 艾雷斯·马特乌斯建筑事务所(Aires Mateus)由葡萄牙建筑师Manuel Aires Mateus和Francisco Aires Mateus兄弟于1988年在里斯本创立。该事务所以极简主义风格著称,强调建筑的精神表达和永恒品质,作品关注物质与文化世界的关系,追求抽象形式和空间平衡。其项目涵盖住宅、度假屋等,在全球获奖无数,并在哈佛大学等多所高校任教,塑造了葡萄牙当代建筑的深刻影响力。 胡夫金字塔 | 经典建筑 上一篇 2025-11-10 下午2:45 EDP集团总部大楼 / EDP Group Head Office | 艾雷斯·马特乌斯建筑事务所|Aires Mateus 下一篇 2025-11-11 上午10:30 猜你喜欢 青岛文化艺术中心 / Qingdao Culture and Art Center | 霍尔 Steven Holl 2025-11-11 公共建筑设计 Concepción住宅 / House in Concepción | Pezo Von Ellrichshausen 2026-04-05 住宅建筑设计 塔卢姆六座房屋 / Six Houses in Tulum | Taller Héctor Barroso 2026-02-19 住宅建筑设计 EDP集团总部大楼 / EDP Group Head Office | 艾雷斯·马特乌斯建筑事务所|Aires Mateus 2025-11-11 公共建筑设计 Tulum的六座房屋 / Six Houses in Tulum | Taller Héctor Barroso 2026-02-20 住宅建筑设计 上野屋 / Townhouse in Asakusa | 长谷川豪建筑事务所 2025-11-12 公共建筑设计 发表回复 请登录后评论...登录后才能评论 提交