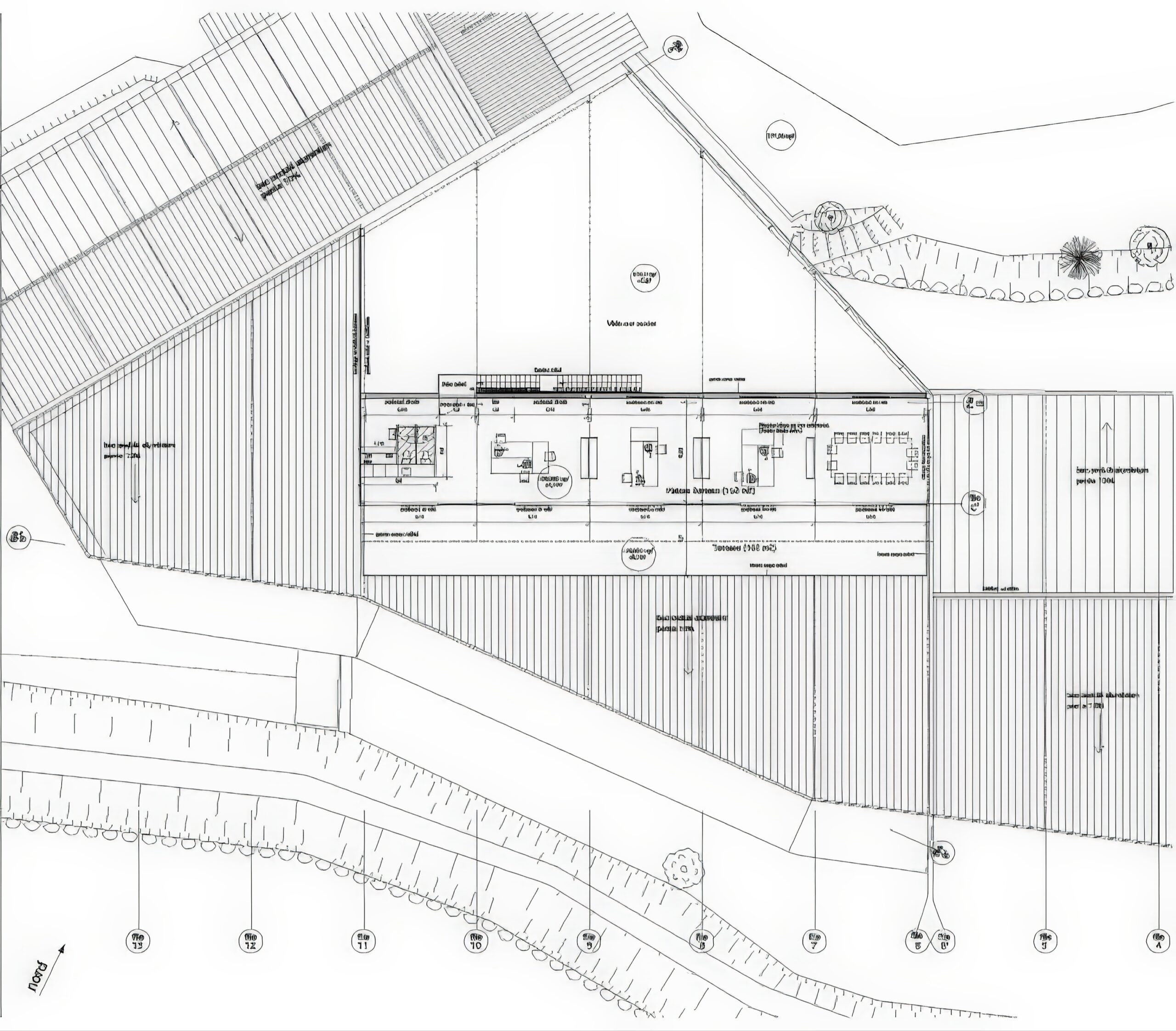
Embres-et-Castelmaure 的酒窖 Wine Cellar in Embres et Castelmaure | 拉卡东与瓦萨尔建筑师事务所|Lacaton & Vassal 拉卡东与瓦萨尔建筑师事务所|Lacaton & Vassal • 2025-11-13 下午12:50 • 公共建筑设计, 建筑师设计, 建筑设计, 文化建筑设计 拉卡东与瓦萨尔建筑师事务所在法国Embres et Castelmaure设计的酒窖扩建项目,位于科比尔山脉东侧葡萄酒产区。该项目通过阶梯式布局顺应地形,采用铝制金属表皮反射太阳辐射,结合农业建筑冷却系统,实现了与村庄环境和葡萄园景观的和谐共生。 设计: 拉卡东与瓦萨尔建筑师事务所|Lacaton & Vassal 类型: 文化建筑设计 功能: 独立住宅 风格: 可持续建筑 材料: 玻璃 金属板 尺度: 小型建筑 地点:法国 时间: 2000年 项目简介 Embres-et-Castelmaure酒窖扩建项目位于法国科比尔山脉东侧葡萄酒产区,是一座农业酿酒建筑。项目顺应地形采用阶梯式布局,设计于2000年代初期建成。 设计理念 拉卡东与瓦萨尔建筑师事务所采用”保护考古遗址”的设计理念,通过金属表皮覆盖地面,重新建立村庄与葡萄园的联系。设计强调与环境的对话,以最小干预实现功能扩展。 空间与功能 空间组织遵循地形坡度,下层设置酒窖和储藏区,上层布置办公室和观景露台。功能分区清晰,发酵室、压榨区、储藏空间和办公区域有机结合,形成高效的工作流线。 材料与技术 采用铝制金属表皮反射太阳辐射,结合农业建筑冷却系统:空气通过纸板过滤器加湿,再由对面墙面的风扇排出。这种被动式冷却技术显著降低了制冷能耗。 设计团队 拉卡东与瓦萨尔建筑师事务所由安妮·拉卡东和让-菲利普·瓦萨尔创立,以经济实用、环境友好的设计理念著称,擅长通过简单材料和创新技术创造高品质空间。 项目简介 Embres-et-Castelmaure酒窖扩建项目位于法国科比尔山脉东侧葡萄酒产区,是一座农业酿酒建筑。项目顺应地形采用阶梯式布局,设计于2000年代初期建成。 设计理念 拉卡东与瓦萨尔建筑师事务所采用”保护考古遗址”的设计理念,通过金属表皮覆盖地面,重新建立村庄与葡萄园的联系。设计强调与环境的对话,以最小干预实现功能扩展。 空间与功能 空间组织遵循地形坡度,下层设置酒窖和储藏区,上层布置办公室和观景露台。功能分区清晰,发酵室、压榨区、储藏空间和办公区域有机结合,形成高效的工作流线。 材料与技术 采用铝制金属表皮反射太阳辐射,结合农业建筑冷却系统:空气通过纸板过滤器加湿,再由对面墙面的风扇排出。这种被动式冷却技术显著降低了制冷能耗。 设计团队 拉卡东与瓦萨尔建筑师事务所由安妮·拉卡东和让-菲利普·瓦萨尔创立,以经济实用、环境友好的设计理念著称,擅长通过简单材料和创新技术创造高品质空间。 本文来自 © 拉卡东与瓦萨尔建筑师事务所|Lacaton & Vassal, 发布于 © 建筑学院官方网站。 未经授权,禁止转载或摘编。 编辑版本版权归 © 建筑学院官方网站 所有, 设计、图纸及照片版权归设计方 © 拉卡东与瓦萨尔建筑师事务所|Lacaton & Vassal ↗ 所有。 查看作者在建筑学院发布的更多作品: 拉卡东与瓦萨尔建筑师事务所|Lacaton & Vassal @ 建筑学院官方网站 Embres-et-Castelmaure酒窖拉卡东与瓦萨尔法国科比尔葡萄酒建筑铝制表皮 拉卡东与瓦萨尔建筑师事务所|Lacaton & Vassal事务所 & 设计师 下载原图 收藏 0 关于作者 拉卡东与瓦萨尔建筑师事务所|Lacaton & Vassal事务所 & 设计师 关注私信 7 文章 0 评论 0 粉丝 拉卡东与瓦萨尔建筑师事务所由安妮·拉卡东与让-菲利普·瓦萨尔于1987年在巴黎创立,是2021年普利兹克建筑奖获得者。他们以“永不拆毁”为核心原则,擅长通过改造与增建,赋予旧建筑(尤其是社会住宅)新生,并以其低成本、可持续的策略,运用经济生态材料(如温室技术的聚碳酸酯面板)为空间引入充裕的光线与自由使用的可能性。其代表作包括波尔多大公园区住宅改造(获2019年密斯·凡·德罗奖)及巴黎东京宫改造。 斯克茨恩歌剧院 / Philharmonic Hall In Szczecin | 巴罗齐与维加建筑事务所 上一篇 2025-11-13 上午8:50 Casa Demont / Casa Demont | MARKLEE 建筑事务所 下一篇 2025-11-14 上午8:50 猜你喜欢 东京宫,巴黎 Palais de Tokyo, Paris | 拉卡东与瓦萨尔建筑师事务所|Lacaton & Vassal 2025-11-09 公共建筑设计 在犯罪率最高的动荡城市,重建起这座鲜黄的高中校舍 2018-06-08 教育建筑设计 广州博物馆 Guangzhou Museum | 拉卡东与瓦萨尔建筑师事务所|Lacaton & Vassal 2025-11-09 公共建筑设计 诺曼底办公室大楼 Office Building, Nantes | 拉卡东与瓦萨尔建筑师事务所|Lacaton & Vassal 2025-11-10 公共建筑设计 多元剧场大南部,里尔 Polyvalent Theater ‘Le Grand Sud’, Lille | 拉卡东与瓦萨尔建筑师事务所|Lacaton & Vassal 2025-11-12 公共建筑设计 穆拉赫宣言城市 Cité Manifeste, Mulhouse | 拉卡东与瓦萨尔建筑师事务所|Lacaton & Vassal 2025-11-09 公共建筑设计 发表回复 请登录后评论...登录后才能评论 提交