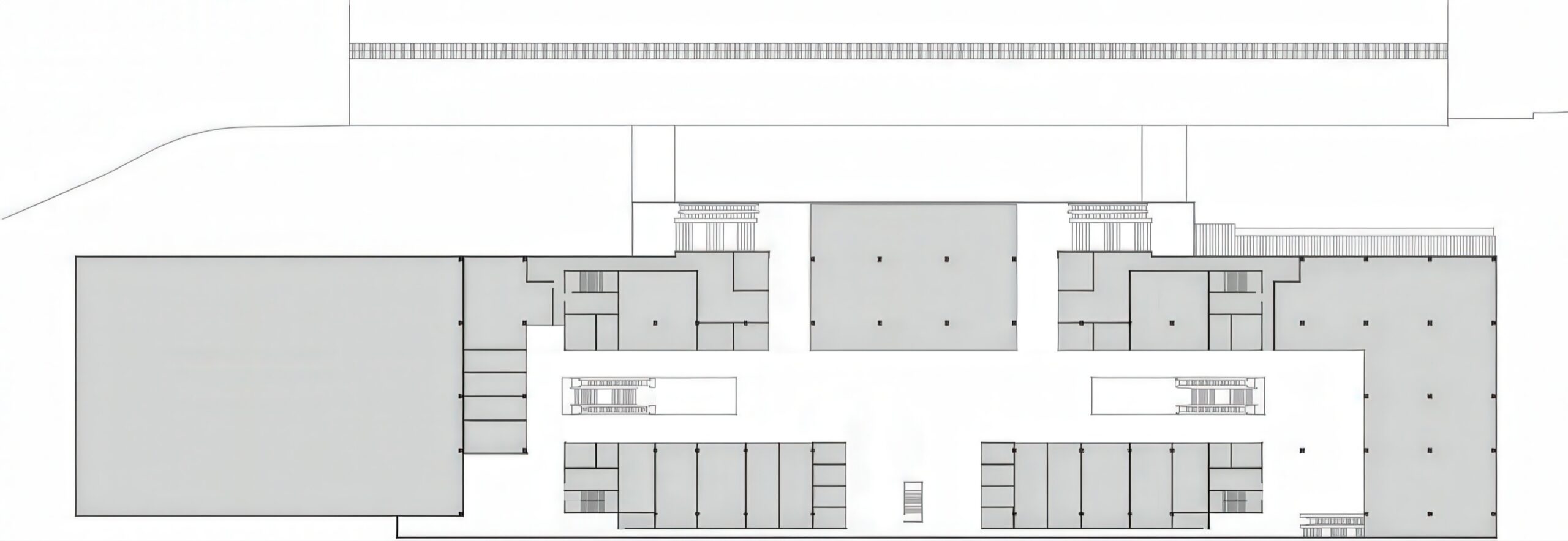
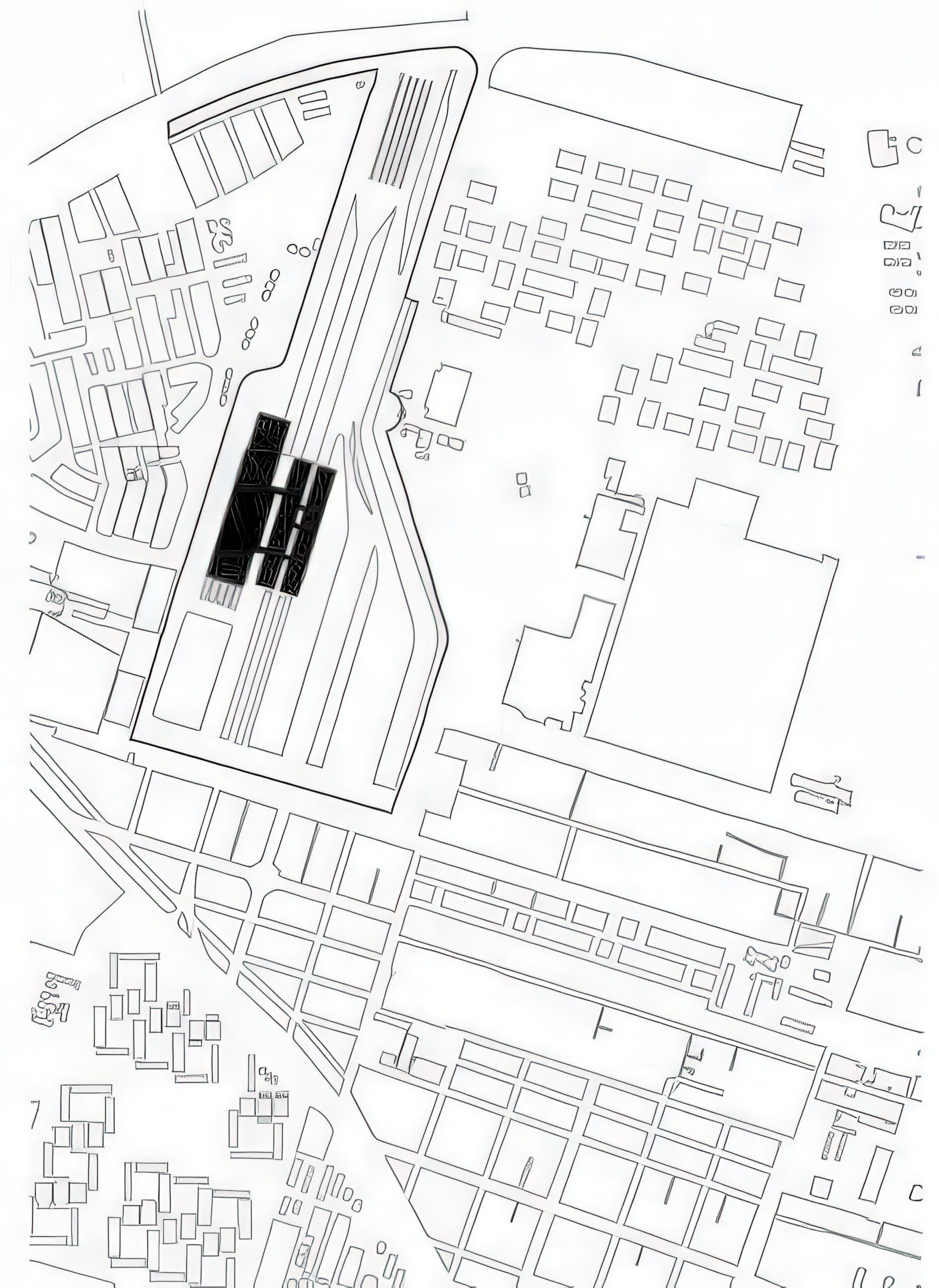
玫瑰渡口运输交换点 El Rosario Transport Interchange | 曼努埃尔·塞万提斯|Manuel Cervantes 曼努埃尔·塞万提斯|Manuel Cervantes • 2025-12-10 上午8:50 • 公共建筑设计, 建筑师, 建筑设计, 文化建筑设计 玫瑰渡口运输交换点是曼努埃尔·塞万提斯事务所在墨西哥城设计的交通建筑综合体。项目通过五个公交站台与地铁站垂直连接,形成高效人流运输系统。设计将交通枢纽提升为城市副中心,提供安全清洁的公共空间和商业服务设施,改善数千家庭的日常出行体验。 设计: 曼努埃尔·塞万提斯|Manuel Cervantes 类型: 文化建筑设计 功能: 城市综合体 风格: 当代建筑 材料: 混凝土 钢材 玻璃 金属板 尺度: 中型建筑 地点:墨西哥 时间: 2016年 项目简介 玫瑰渡口运输交换点位于墨西哥城,是一座交通建筑综合体,建筑面积未明确,设计建成于当代,旨在优化城市交通流线。 设计理念 设计团队以城市更新为愿景,将交通枢纽打造为高效人流机器和城市副中心,通过公私合作实现社区服务与乘客便利的双重目标。 空间与功能 地面层设五个公交与卡车站台,通过垂直流线连接地铁站,首层设休息区,二层规划商业设施,形成多层次公共空间。 材料与技术 采用混凝土滚动层、黑色钢材支柱、铝制卷帘、抛光大理石及钢化玻璃栏杆,结构强调耐用性与现代工业美学。 设计团队 曼努埃尔·塞万提斯事务所专注于墨西哥当代建筑与城市项目,以可持续设计和社区导向方案著称。 项目简介 玫瑰渡口运输交换点位于墨西哥城,是一座交通建筑综合体,建筑面积未明确,设计建成于当代,旨在优化城市交通流线。 设计理念 设计团队以城市更新为愿景,将交通枢纽打造为高效人流机器和城市副中心,通过公私合作实现社区服务与乘客便利的双重目标。 空间与功能 地面层设五个公交与卡车站台,通过垂直流线连接地铁站,首层设休息区,二层规划商业设施,形成多层次公共空间。 材料与技术 采用混凝土滚动层、黑色钢材支柱、铝制卷帘、抛光大理石及钢化玻璃栏杆,结构强调耐用性与现代工业美学。 设计团队 曼努埃尔·塞万提斯事务所专注于墨西哥当代建筑与城市项目,以可持续设计和社区导向方案著称。 本文来自 © 曼努埃尔·塞万提斯|Manuel Cervantes, 发布于 © 建筑学院官方网站。 未经授权,禁止转载或摘编。 编辑版本版权归 © 建筑学院官方网站 所有, 设计、图纸及照片版权归设计方 © 曼努埃尔·塞万提斯|Manuel Cervantes ↗ 所有。 查看作者在建筑学院发布的更多作品: 曼努埃尔·塞万提斯|Manuel Cervantes @ 建筑学院官方网站 交通建筑墨西哥城曼努埃尔·塞万提斯混凝土钢材玻璃玫瑰渡口运输交换点 曼努埃尔·塞万提斯|Manuel Cervantes事务所 & 设计师 下载原图 收藏 0 关于作者 曼努埃尔·塞万提斯|Manuel Cervantes事务所 & 设计师 关注私信 19 文章 0 评论 0 粉丝 曼努埃尔·塞万提斯是墨西哥极具影响力的新生代建筑师。他的事务所以对材料、光线与构造的深刻理解和娴熟运用而闻名,尤其擅长运用夯土、木材和混凝土等本土材料,创造出与场地和环境紧密相连的现代建筑。其作品涵盖住宅、文化及商业项目,展现了简洁、宁静而富有 tactile 质感的设计美学。 诺华展览馆 Novartis Exhibition Pavilion | 斯米里扬·拉迪奇|Smiljan Radić 上一篇 2025-12-09 上午8:50 罗马尼工作室 / Romney’s Studio | +6a 建筑事务所|6a architects 下一篇 2025-12-11 上午8:50 猜你喜欢 港珠澳大桥香港口岸旅检大楼荣获2019年Architizer A+ 大奖交通基建项目特别荣誉奖 2019-07-12 月见桥 / HWCA Huai-Wen Chang Architect 2022-05-16 交通建筑设计 三个农村住房原型 Three Rural Housing Prototypes | 曼努埃尔·塞万提斯|Manuel Cervantes 2025-12-12 住宅室内设计 双座屋及工作室,阿玛特帕克 Two Houses and Studio, Amatepec | 曼努埃尔·塞万提斯|Manuel Cervantes 2025-12-08 住宅室内设计 巴西贝萨雷斯保护区两座房子 | 曼努埃尔·塞万提斯|Manuel Cervantes 2025-12-07 公共建筑设计 圆拱下的微光——上海虹桥飞机库改造 / 那宅工作室 2017-08-30 交通建筑设计 发表回复 请登录后评论...登录后才能评论 提交