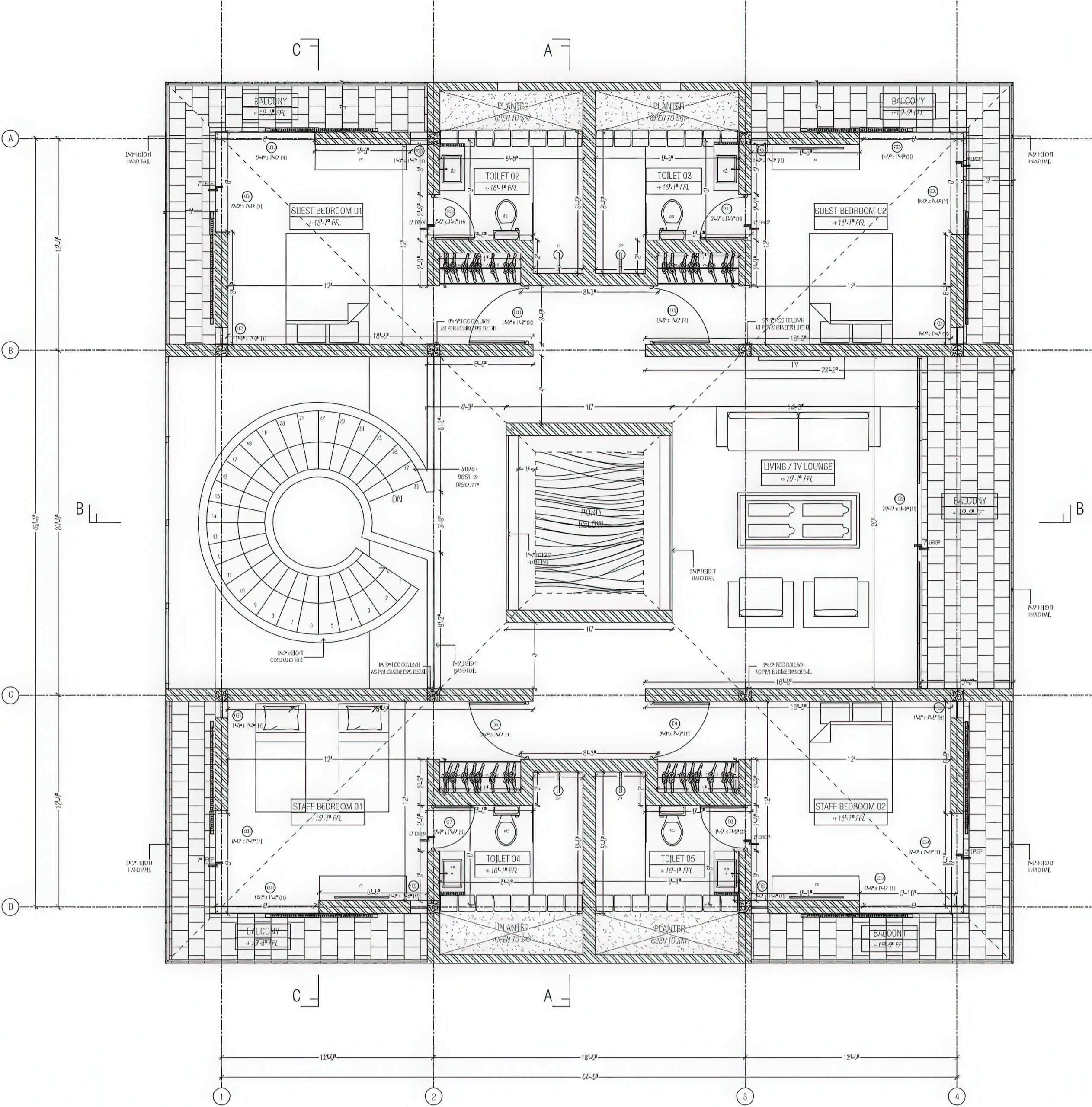
朱法纳风力发电站工作人员居住楼 / Staff Quarters for Wind Power Plant in Jaffna | 帕琳达·坎南加拉|Palinda Kannangara 帕琳达·坎南加拉|Palinda Kannangara • 2025-12-28 下午8:08 • 住宅建筑设计, 建筑师, 建筑设计, 独立住宅, 独立住宅设计 朱法纳风力发电站工作人员居住楼由帕琳达·坎南加拉设计,位于斯里兰卡季节性泻湖景观中,是一座为风电场工程师和高级员工提供的客舍建筑。设计巧妙回应独特的生态环境,通过开放式布局、浅水池和螺旋楼梯创造与自然景观的紧密联系。 设计: 帕琳达·坎南加拉|Palinda Kannangara 类型: 独立住宅设计 功能: 独立住宅 风格: 地域主义 材料: 混凝土 钢材 木材 石材 尺度: 小型建筑 地点: 斯里兰卡 时间: 2015年 项目概述 朱法纳风力发电站工作人员居住楼位于斯里兰卡季节性泻湖景观中,是一座为风电场工程师和高级员工提供住宿的客舍建筑。项目于2013年设计,2015年建成,采用当地材料建造,与独特的湿地生态系统和谐共存。 设计理念 帕琳达·坎南加拉的设计灵感来源于场地独特的季节性洪水特征和丰富的鸟类生态系统。建筑以”眼睛”为概念,通过中央浅水池捕捉风车的倒影,四个切角形成曼荼罗般的几何构图,创造与自然环境深度对话的建筑语言。 空间与功能 建筑底层设有开放式起居区、餐厅、厨房和看守人宿舍,4米多高的空间配合螺旋楼梯增强空间体验。上层包含起居区、两间员工卧室和两间客房,每个卧室都配有独立卫生间和开放式庭院,确保充足的自然采光与通风。 材料与技术 建筑大量使用当地材料,包括回收的杰克木制作细框窗户、抛光水泥地面、当地石材墙面和哑光水泥饰面。上层阳台采用特制水泥铺路石,与室内木地板尺度协调,钢柱支撑的屋顶营造出漂浮感。 项目特色与启发 朱法纳风力发电站工作人员居住楼展示了在敏感生态环境中建筑设计的创新方法,通过被动式设计策略实现自然通风和采光,为热带地区的可持续建筑设计提供了重要参考。 设计团队 帕琳达·坎南加拉是斯里兰卡知名建筑师,以其对场地敏感的设计和对当地材料的创新运用而闻名。他的作品常常探索建筑与自然环境的和谐关系,在朱法纳风力发电站工作人员居住楼项目中充分体现了这一设计理念。 项目概述 朱法纳风力发电站工作人员居住楼位于斯里兰卡季节性泻湖景观中,是一座为风电场工程师和高级员工提供住宿的客舍建筑。项目于2013年设计,2015年建成,采用当地材料建造,与独特的湿地生态系统和谐共存。 设计理念 帕琳达·坎南加拉的设计灵感来源于场地独特的季节性洪水特征和丰富的鸟类生态系统。建筑以”眼睛”为概念,通过中央浅水池捕捉风车的倒影,四个切角形成曼荼罗般的几何构图,创造与自然环境深度对话的建筑语言。 空间与功能 建筑底层设有开放式起居区、餐厅、厨房和看守人宿舍,4米多高的空间配合螺旋楼梯增强空间体验。上层包含起居区、两间员工卧室和两间客房,每个卧室都配有独立卫生间和开放式庭院,确保充足的自然采光与通风。 材料与技术 建筑大量使用当地材料,包括回收的杰克木制作细框窗户、抛光水泥地面、当地石材墙面和哑光水泥饰面。上层阳台采用特制水泥铺路石,与室内木地板尺度协调,钢柱支撑的屋顶营造出漂浮感。 项目特色与启发 朱法纳风力发电站工作人员居住楼展示了在敏感生态环境中建筑设计的创新方法,通过被动式设计策略实现自然通风和采光,为热带地区的可持续建筑设计提供了重要参考。 设计团队 帕琳达·坎南加拉是斯里兰卡知名建筑师,以其对场地敏感的设计和对当地材料的创新运用而闻名。他的作品常常探索建筑与自然环境的和谐关系,在朱法纳风力发电站工作人员居住楼项目中充分体现了这一设计理念。 本文来自 © 帕琳达·坎南加拉|Palinda Kannangara, 发布于 © 建筑学院官方网站。 未经授权,禁止转载或摘编。 编辑版本版权归 © 建筑学院官方网站 所有, 设计、图纸及照片版权归设计方 © 帕琳达·坎南加拉|Palinda Kannangara ↗ 所有。 查看作者在建筑学院发布的更多作品: 帕琳达·坎南加拉|Palinda Kannangara @ 建筑学院官方网站 Staff Quarters for Wind Power Plant in Jaffna客舍设计帕琳达·坎南加拉斯里兰卡建筑 帕琳达·坎南加拉|Palinda Kannangara事务所 & 设计师 下载原图 收藏 0 关于作者 帕琳达·坎南加拉|Palinda Kannangara事务所 & 设计师 关注私信 19 文章 0 评论 0 粉丝 帕琳达·坎南加拉(Palinda Kannangara)是斯里兰卡最具影响力的当代建筑师之一,以其创新的热带现代主义设计而闻名。他的作品深刻诠释了建筑与自然、光线的对话,擅长运用本地材料与现代工艺,创造出既具私密性又开放于景观的空间。其官方网站 www.palindakannangara.com 全面展示了他的住宅、酒店与文化项目,是了解其设计哲学、完整作品集及所获国际奖项的重要窗口。 弗斯特纳布尔克的库伯尔之家 / Kübler House in Fürstenaubruck | 吉翁·A·卡米纳达|Gion A. Caminada 上一篇 2025-12-28 下午7:56 办公园区转型研究 / Study for the Transformation of an Office Park | Dogma 下一篇 2025-12-30 下午1:06 猜你喜欢 城市切片住宅 / Urban Slice House | 帕琳达·坎南加拉|Palinda Kannangara 6天前 住宅建筑设计 断层式住宅 / Striated House | 帕琳达·坎南加拉|Palinda Kannangara 6天前 住宅建筑设计 朱法纳风力发电站工作人员居住楼 / Staff Quarters for Wind Power Plant in Jaffna | 帕琳达·坎南加拉|Palinda Kannangara 2天前 住宅建筑设计 假日别墅,阿维什瓦拉 / Holiday Bungalow in Avissawella | 帕琳达·坎南加拉|Palinda Kannangara 2天前 住宅建筑设计 The Frame – 假日度假屋 / The Frame – Holiday Retreat in Imaduwa | 帕琳达·坎南加拉|Palinda Kannangara 2025-12-20 住宅建筑设计 健康疗养在哈巴纳 / Wellness Retreat in Habarana | 帕琳达·坎南加拉|Palinda Kannangara 2025-12-26 商业与综合建筑 发表回复 请登录后评论...登录后才能评论 提交