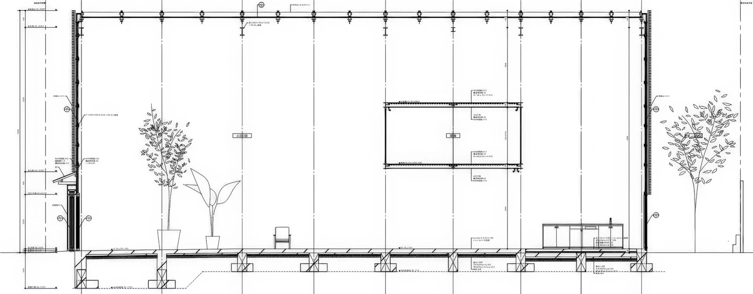
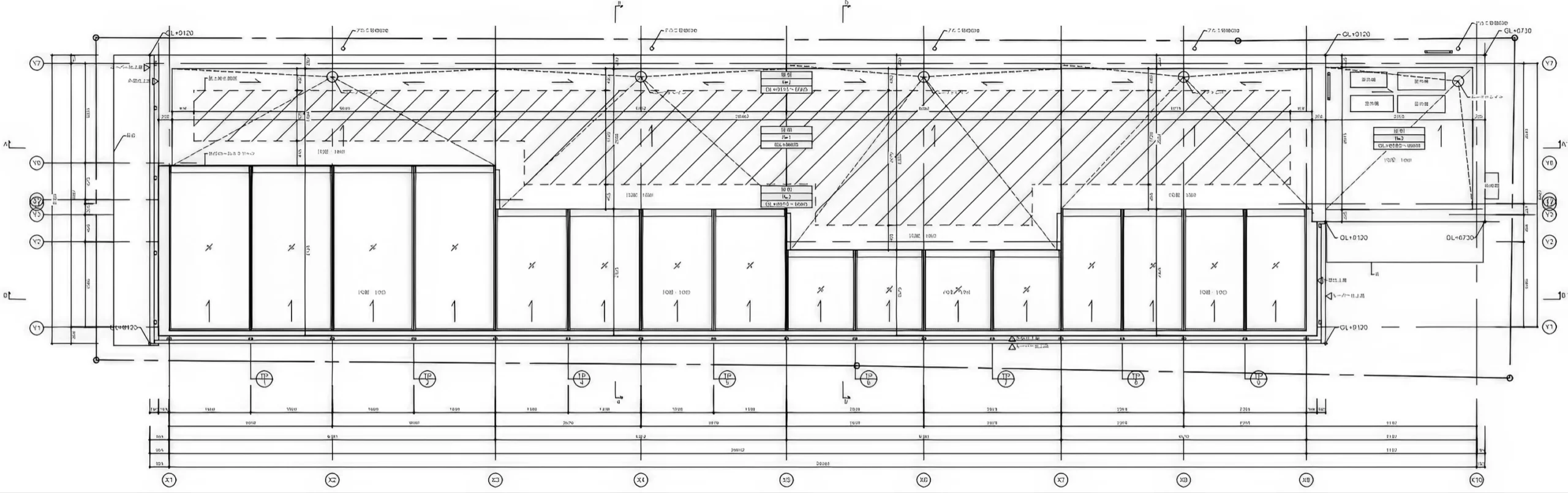
上海石库沟住宅 / Shochikucho House | SANAA SANAA • 2026-02-23 下午3:22 • 住宅建筑设计, 建筑设计, 独立住宅设计 上海石库沟住宅由SANAA建筑事务所设计,位于日本京都中心区,是一座为年轻家庭打造的独立住宅。项目通过重新诠释传统町屋建筑语言,在狭长地块中创造连续的城市界面,以现代手法实现内外空间的流动对话。 设计: SANAA 类型: 独立住宅设计 功能: 独立住宅 风格: 现代主义 材料: 混凝土 木材 玻璃 尺度: 小型建筑 地点:京都 时间: 2021年 项目概述 上海石库沟住宅是SANAA建筑事务所在日本京都设计的一座独立住宅,项目位于高密度城区中的狭长地块,建筑面积约200平方米,设计于2020年完成,2021年建成。 设计理念 SANAA的设计灵感源自京都传统町屋建筑,通过现代建筑语言重新诠释”间庭院”空间概念。设计强调建筑与城市的连续性,创造既私密又开放的生活环境,回应京都特有的城市肌理与文化脉络。 空间与功能 上海石库沟住宅采用纵向分割的空间策略,南侧设置通庭院作为半室外过渡空间,北侧为抬高的起居区域。9米高的天花板营造开阔感,滑动门系统实现空间的灵活转换,满足家庭聚会、儿童游戏等多样化使用需求。 材料与技术 项目主要采用木材饰面营造温暖氛围,结合混凝土结构与玻璃材质。高侧窗引入自然采光,利用热压通风原理实现夏季自然通风,体现了SANAA对传统建筑智慧的现代转译与环境适应性设计。 项目特色与启发 上海石库沟住宅展示了SANAA在都市高密度环境下创造高品质居住空间的创新思维,为当代住宅设计提供了传统与现代融合的典范,对城市更新中的住宅设计具有重要参考价值。 设计团队 SANAA是由妹岛和世与西泽立卫创立的国际知名建筑事务所,以轻盈透明的建筑语言和细腻的空间处理著称,曾获普利兹克建筑奖,在文化建筑与住宅设计领域均有卓越成就。 项目概述 上海石库沟住宅是SANAA建筑事务所在日本京都设计的一座独立住宅,项目位于高密度城区中的狭长地块,建筑面积约200平方米,设计于2020年完成,2021年建成。 设计理念 SANAA的设计灵感源自京都传统町屋建筑,通过现代建筑语言重新诠释”间庭院”空间概念。设计强调建筑与城市的连续性,创造既私密又开放的生活环境,回应京都特有的城市肌理与文化脉络。 空间与功能 上海石库沟住宅采用纵向分割的空间策略,南侧设置通庭院作为半室外过渡空间,北侧为抬高的起居区域。9米高的天花板营造开阔感,滑动门系统实现空间的灵活转换,满足家庭聚会、儿童游戏等多样化使用需求。 材料与技术 项目主要采用木材饰面营造温暖氛围,结合混凝土结构与玻璃材质。高侧窗引入自然采光,利用热压通风原理实现夏季自然通风,体现了SANAA对传统建筑智慧的现代转译与环境适应性设计。 项目特色与启发 上海石库沟住宅展示了SANAA在都市高密度环境下创造高品质居住空间的创新思维,为当代住宅设计提供了传统与现代融合的典范,对城市更新中的住宅设计具有重要参考价值。 设计团队 SANAA是由妹岛和世与西泽立卫创立的国际知名建筑事务所,以轻盈透明的建筑语言和细腻的空间处理著称,曾获普利兹克建筑奖,在文化建筑与住宅设计领域均有卓越成就。 本文来自 © SANAA, 发布于 © 建筑学院官方网站。 未经授权,禁止转载或摘编。 编辑版本版权归 © 建筑学院官方网站 所有, 设计、图纸及照片版权归设计方 © SANAA ↗ 所有。 查看作者在建筑学院发布的更多作品: SANAA @ 建筑学院官方网站 SANAAShochikucho House京都住宅独立住宅设计现代主义住宅 SANAA事务所 & 设计师 下载原图 收藏 0 关于作者 SANAA事务所 & 设计师 关注私信 52 文章 0 评论 0 粉丝 上海新国际博览中心 A.F.A Shanghai / A.F.A. SHANGHAI | SANAA 上一篇 2026-02-23 下午3:21 悉尼现代项目 / Sydney Modern Project | SANAA 下一篇 2026-02-24 下午3:11 猜你喜欢 巴黎圣母院大教堂 Grand Magasin La Samaritaine / Grand Magasin La Samaritaine | SANAA 2026-02-08 商业建筑 阿尔梅勒湖上剧院与文化中心 | SANAA 妹岛和世 & ⻘木淳 建筑设计 2025-08-17 公共建筑设计 沃尔彭之家 / Walpen House | 吉翁·A·卡米纳达|Gion A. Caminada 2025-12-20 住宅建筑设计 新高速列车 Laview / New Express Train Laview | SANAA 2026-02-22 交通建筑设计 奥伊雷斯的房子 / House in Oeiras | 德·莫拉建筑事务所 2025-12-24 住宅建筑设计 Bredören 住宅 / House in Bredören | Arrhov Frick 建筑事务所 2026-01-20 住宅建筑设计 发表回复 请登录后评论...登录后才能评论 提交