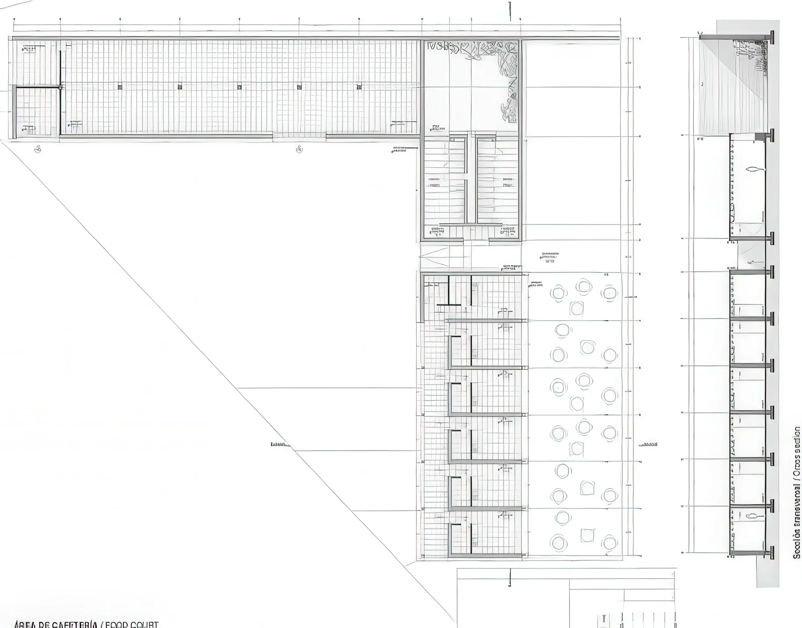
卡波体育复合体 / CABO SPORTS COMPLEX | Taller Héctor Barroso tallerhectorbarroso • 2026-02-17 下午4:33 • 体育建筑, 特殊建筑 卡波体育复合体由Taller Héctor Barroso设计,位于墨西哥南下加利福尼亚州的洛斯卡沃斯地区,是一个集网球比赛与训练功能于一体的体育建筑群。项目通过顺应地形的平台布局和夯土墙体的运用,巧妙回应沙漠环境,创造出与自然景观和谐共生的建筑空间。 设计: tallerhectorbarroso 类型: 特殊建筑 功能: 体育馆 风格: 地域主义 材料: 混凝土 夯土 尺度: 中型建筑 地点:洛斯卡沃斯 时间: 2021年 项目概述 卡波体育复合体是墨西哥网球公开赛的新场地,位于墨西哥南下加利福尼亚州洛斯卡沃斯地区,毗邻卡波圣卢卡斯-圣何塞德尔卡波高速公路。该项目为一期建设工程,设计始于2019年,于2021年建成,是一个专业的网球体育设施。 设计理念 Taller Héctor Barroso的设计理念源于对场地景观的深刻理解,通过两条相互垂直的隐形轴线组织空间,在建筑与海洋视野之间建立直接联系。设计追求建筑在自然环境中的消隐,让建筑成为观赏壮丽自然景观的静谧背景。 空间与功能 项目通过一系列嵌入地形的平台容纳必须南北朝向的网球场,在平台间隙中设置夯土墙体围合出功能空间。这些空间在北侧完全开放,既创造了适宜的微气候环境,又最大化地利用了周边景观视野,形成独特的空间体验。 材料与技术 项目主要采用夯土墙体作为围护结构,这种传统材料与现代施工技术结合,既回应了当地的建筑传统,又提供了良好的热工性能。结构体系与地形紧密结合,展现出对场地特征的精准回应。 项目特色与启发 卡波体育复合体展示了体育建筑与自然环境融合的新可能,其低调的设计态度和精准的空间处理为类似环境下的建筑设计提供了重要参考,体现了Taller Héctor Barroso对地域建筑语言的现代表达。 设计团队 Taller Héctor Barroso是墨西哥知名建筑事务所,以其对地域环境与建筑关系的深入研究而著称。事务所在住宅、文化及体育建筑领域有着丰富经验,擅长通过简洁的建筑语言创造与自然和谐共生的空间体验。 项目概述 卡波体育复合体是墨西哥网球公开赛的新场地,位于墨西哥南下加利福尼亚州洛斯卡沃斯地区,毗邻卡波圣卢卡斯-圣何塞德尔卡波高速公路。该项目为一期建设工程,设计始于2019年,于2021年建成,是一个专业的网球体育设施。 设计理念 Taller Héctor Barroso的设计理念源于对场地景观的深刻理解,通过两条相互垂直的隐形轴线组织空间,在建筑与海洋视野之间建立直接联系。设计追求建筑在自然环境中的消隐,让建筑成为观赏壮丽自然景观的静谧背景。 空间与功能 项目通过一系列嵌入地形的平台容纳必须南北朝向的网球场,在平台间隙中设置夯土墙体围合出功能空间。这些空间在北侧完全开放,既创造了适宜的微气候环境,又最大化地利用了周边景观视野,形成独特的空间体验。 材料与技术 项目主要采用夯土墙体作为围护结构,这种传统材料与现代施工技术结合,既回应了当地的建筑传统,又提供了良好的热工性能。结构体系与地形紧密结合,展现出对场地特征的精准回应。 项目特色与启发 卡波体育复合体展示了体育建筑与自然环境融合的新可能,其低调的设计态度和精准的空间处理为类似环境下的建筑设计提供了重要参考,体现了Taller Héctor Barroso对地域建筑语言的现代表达。 设计团队 Taller Héctor Barroso是墨西哥知名建筑事务所,以其对地域环境与建筑关系的深入研究而著称。事务所在住宅、文化及体育建筑领域有着丰富经验,擅长通过简洁的建筑语言创造与自然和谐共生的空间体验。 本文来自 © tallerhectorbarroso, 发布于 © 建筑学院官方网站。 未经授权,禁止转载或摘编。 编辑版本版权归 © 建筑学院官方网站 所有, 设计、图纸及照片版权归设计方 © tallerhectorbarroso ↗ 所有。 查看作者在建筑学院发布的更多作品: tallerhectorbarroso @ 建筑学院官方网站 Cabo Sports ComplexTaller Héctor Barroso体育建筑设计地域主义建筑洛斯卡沃斯体育建筑 tallerhectorbarroso事务所 & 设计师 下载原图 收藏 0 关于作者 tallerhectorbarroso事务所 & 设计师 关注私信 14 文章 0 评论 0 粉丝 Taller Héctor Barroso是墨西哥知名建筑事务所,由Héctor Barroso Riba于2008年创立。工作室以"林中静谧"的设计哲学著称,擅长利用当地自然资源如植被、土壤和地理特征,创造与自然环境深度融合的建筑方案。其作品曾荣获加拿大AZ奖最佳住宅建筑奖、墨西哥双年展青年建筑师金牌等多项国际荣誉。Taller Héctor Barroso通过尊重场地文脉和采用本土材料,实现建筑与自然的和谐共生,在住宅和度假项目领域具有独特影响力。 Mas Geli 酒庄 / Mas Geli Winery | HArquitectes 上一篇 2026-02-12 上午9:24 新高知県体育馆 / New Kagawa Prefectural Gymnasium | SANAA 下一篇 2026-02-22 下午9:49 猜你喜欢 帕拉尔大街工作室和公寓 / Studio and Apartment on Calle Parral | Taller Héctor Barroso 2026-02-20 住宅建筑设计 阿尔盖河划馆 Rowing Pavilion in Alange | 何塞·玛丽亚·桑切斯·加西亚|José María Sánchez García 2025-11-30 公共建筑设计 公交站位于维林 / Bus Stop in Vrin | 吉翁·A·卡米纳达|Gion A. Caminada 3天前 交通建筑设计 安东尼奥·麦卡伊公寓楼 8 / ANTONIO MACEO APARTMENT BUILDING 8 | Taller Héctor Barroso 2026-02-18 住宅建筑设计 Reichshof Stadium 舒特纳奥克 / Reichshof Stadium, Lustenau | 贝尔纳多·巴德尔 Bernardo Bader 2025-11-19 公共建筑设计 里索河三角洲上的瞭望塔 / Lookout Tower on the Reuss Delta | 吉翁·A·卡米纳达|Gion A. Caminada 1天前 景观小品 发表回复 请登录后评论...登录后才能评论 提交