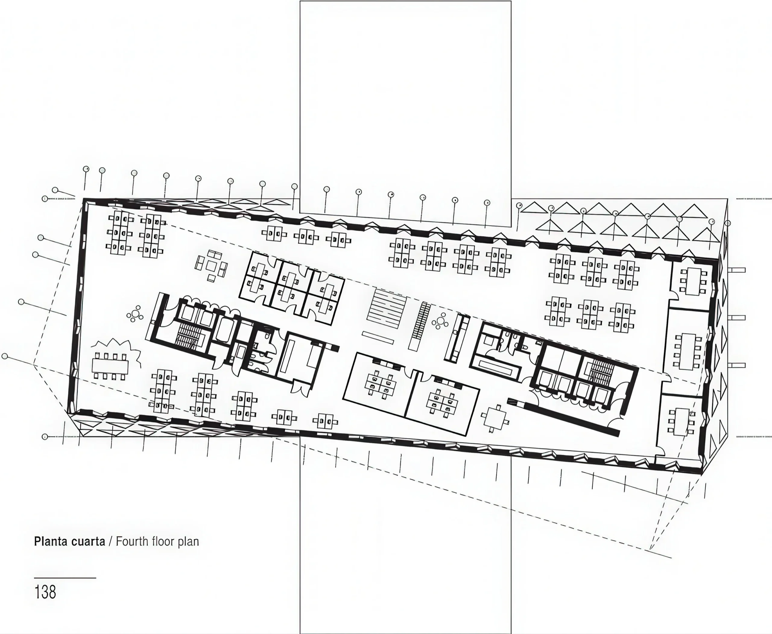
安特卫普省府大楼 / Province Headquarters, Antwerp | Xaveer de Geyter XaveerdeGeyter • 2026-02-25 下午1:40 • 公共建筑设计, 办公建筑设计, 建筑设计 安特卫普省府大楼由Xaveer de Geyter设计,位于比利时安特卫普市中心,是一座政府办公建筑。项目通过紧凑体量与玻璃展馆的垂直交叉,巧妙解决城市绿地整合与功能需求的矛盾,展现了当代公共建筑的创新设计策略。 设计: XaveerdeGeyter 类型: 建筑设计 功能: 政府机构 风格: 当代建筑 材料: 混凝土 钢材 玻璃 尺度: 大型建筑 地点:安特卫普 时间: 1970年 项目概述 安特卫普省府大楼位于比利时安特卫普市中心,是一座政府办公建筑,设计于2011年,建成于2019年。该项目取代了原有的现代主义建筑群,通过紧凑体量与透明展馆的创新组合,重新定义了公共建筑与城市绿地的关系。 设计理念 设计团队Xaveer de Geyter以”桥梁结构”为核心概念,将建筑体量垂直跨越原有展馆,打破场地原有的正面性。这一策略不仅解决了城市中心绿地碎片化的问题,还创造了前后花园的空间序列,实现了公共性与功能性的平衡。 空间与功能 安特卫普省府大楼的空间组织采用紧凑布局,底层设置会议厅和展览空间,上部楼层为办公区域。建筑通过旋转上升的平面设计,形成雕塑般的体量,既尊重周边环境,又创造了丰富的室内外空间体验和视线联系。 材料与技术 建筑采用钢桁架结构体系,混凝土侧墙整合了结构桁架,其三角形网格定义了窗户形态。立面使用白色釉面玻璃马赛克覆盖不透明部分,而会议展馆则采用全透明玻璃盒子,形成材料上的鲜明对比。 项目特色与启发 安特卫普省府大楼的创新之处在于其桥梁式的结构策略和可持续设计方法,为城市更新项目提供了新的范式。该项目展示了如何在密集城市环境中整合公共绿地,对当代公共建筑设计具有重要参考价值。 设计团队 Xaveer de Geyter Architects是一家比利时建筑事务所,以其在城市设计和公共建筑领域的创新作品闻名。事务所在处理复杂城市语境和功能需求方面具有丰富经验,致力于创造具有社会价值的建筑解决方案。 项目概述 安特卫普省府大楼位于比利时安特卫普市中心,是一座政府办公建筑,设计于2011年,建成于2019年。该项目取代了原有的现代主义建筑群,通过紧凑体量与透明展馆的创新组合,重新定义了公共建筑与城市绿地的关系。 设计理念 设计团队Xaveer de Geyter以”桥梁结构”为核心概念,将建筑体量垂直跨越原有展馆,打破场地原有的正面性。这一策略不仅解决了城市中心绿地碎片化的问题,还创造了前后花园的空间序列,实现了公共性与功能性的平衡。 空间与功能 安特卫普省府大楼的空间组织采用紧凑布局,底层设置会议厅和展览空间,上部楼层为办公区域。建筑通过旋转上升的平面设计,形成雕塑般的体量,既尊重周边环境,又创造了丰富的室内外空间体验和视线联系。 材料与技术 建筑采用钢桁架结构体系,混凝土侧墙整合了结构桁架,其三角形网格定义了窗户形态。立面使用白色釉面玻璃马赛克覆盖不透明部分,而会议展馆则采用全透明玻璃盒子,形成材料上的鲜明对比。 项目特色与启发 安特卫普省府大楼的创新之处在于其桥梁式的结构策略和可持续设计方法,为城市更新项目提供了新的范式。该项目展示了如何在密集城市环境中整合公共绿地,对当代公共建筑设计具有重要参考价值。 设计团队 Xaveer de Geyter Architects是一家比利时建筑事务所,以其在城市设计和公共建筑领域的创新作品闻名。事务所在处理复杂城市语境和功能需求方面具有丰富经验,致力于创造具有社会价值的建筑解决方案。 本文来自 © XaveerdeGeyter, 发布于 © 建筑学院官方网站。 未经授权,禁止转载或摘编。 编辑版本版权归 © 建筑学院官方网站 所有, 设计、图纸及照片版权归设计方 © XaveerdeGeyter ↗ 所有。 查看作者在建筑学院发布的更多作品: XaveerdeGeyter @ 建筑学院官方网站 province-headquarters-antwerpXaveer de Geyter安特卫普公共建筑当代建筑政府办公建筑 XaveerdeGeyter事务所 & 设计师 下载原图 收藏 0 关于作者 XaveerdeGeyter事务所 & 设计师 关注私信 13 文章 0 评论 0 粉丝 XDGA(Xaveer De Geyter Architects)是1988年由Xaveer De Geyter在布鲁塞尔和巴黎创立的建筑、城市与景观设计事务所。事务所以其激进的设计方法、多元的专业团队和国际化的作品著称,曾获密斯·凡·德罗奖、Bigmat奖等多项重要奖项。XDGA主张建筑不是固定功能或解决问题,而是开启场地的潜在可能,处理不确定性,容纳多样且未预见的生活场景。其作品涵盖文化、教育、居住、商业等多种类型,遍布欧洲及全球。 日照大剧院和博物馆 / Rizhao Amphitheatre and Museum | SANAA 上一篇 2026-02-24 下午3:11 厨房塔 / Kitchen Tower | Xaveer de Geyter 下一篇 2026-02-25 下午1:46 猜你喜欢 墨田北斋博物馆 / Sumida Hokusai Museum | SANAA 2026-03-15 公共建筑设计 日照大剧院和博物馆 / Rizhao Amphitheatre and Museum | SANAA 2026-02-24 公共建筑设计 赫赫斯特大学经济学院 / Faculty of Economics, Ghent University | Xaveer de Geyter 2026-02-27 公共建筑设计 科尔姆奥文化中心 / Cultural Centre in Coliumo | Pezo Von Ellrichshausen 2026-03-27 公共建筑设计 Pavilion and Restaurant in Gyeonggi-Do / 京畿道展馆与餐厅 | Pezo Von Ellrichshausen 2026-04-05 景观小品 新日铁市厅 / The New Hitachi City Hall | SANAA 2026-02-15 公共建筑设计 发表回复 请登录后评论...登录后才能评论 提交