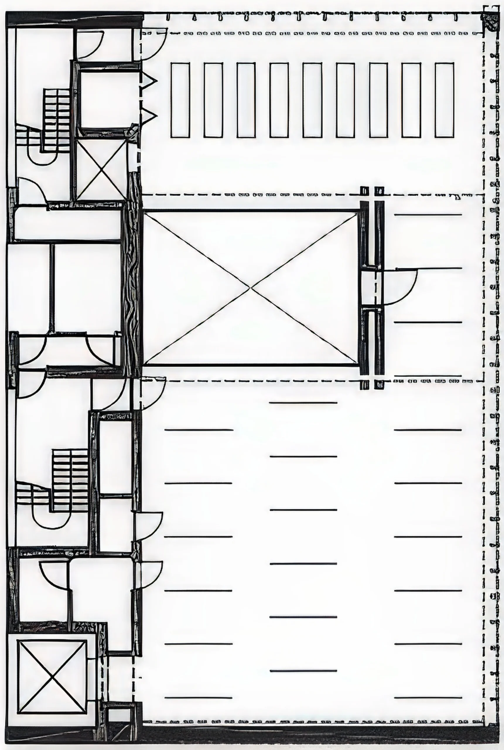
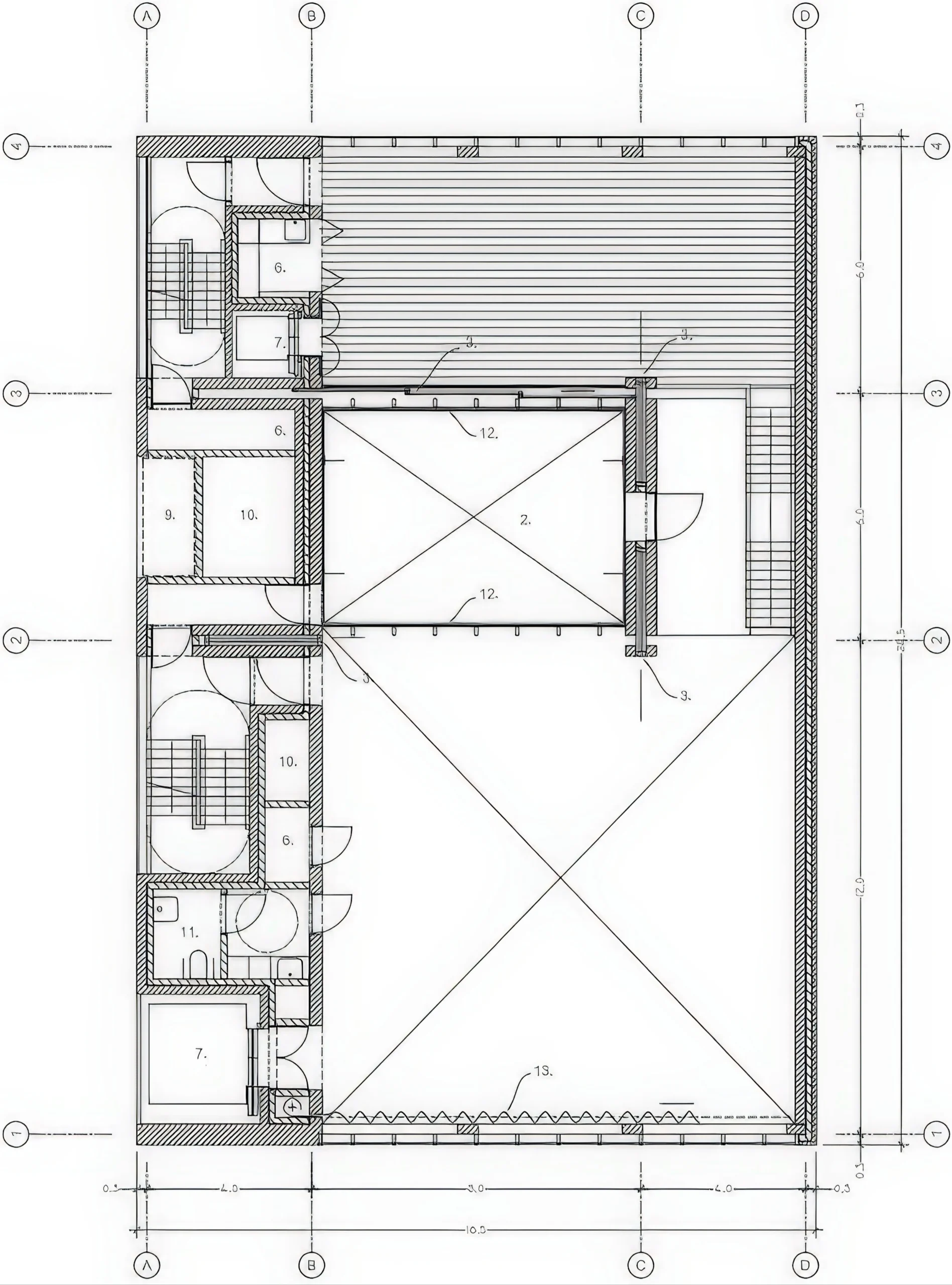
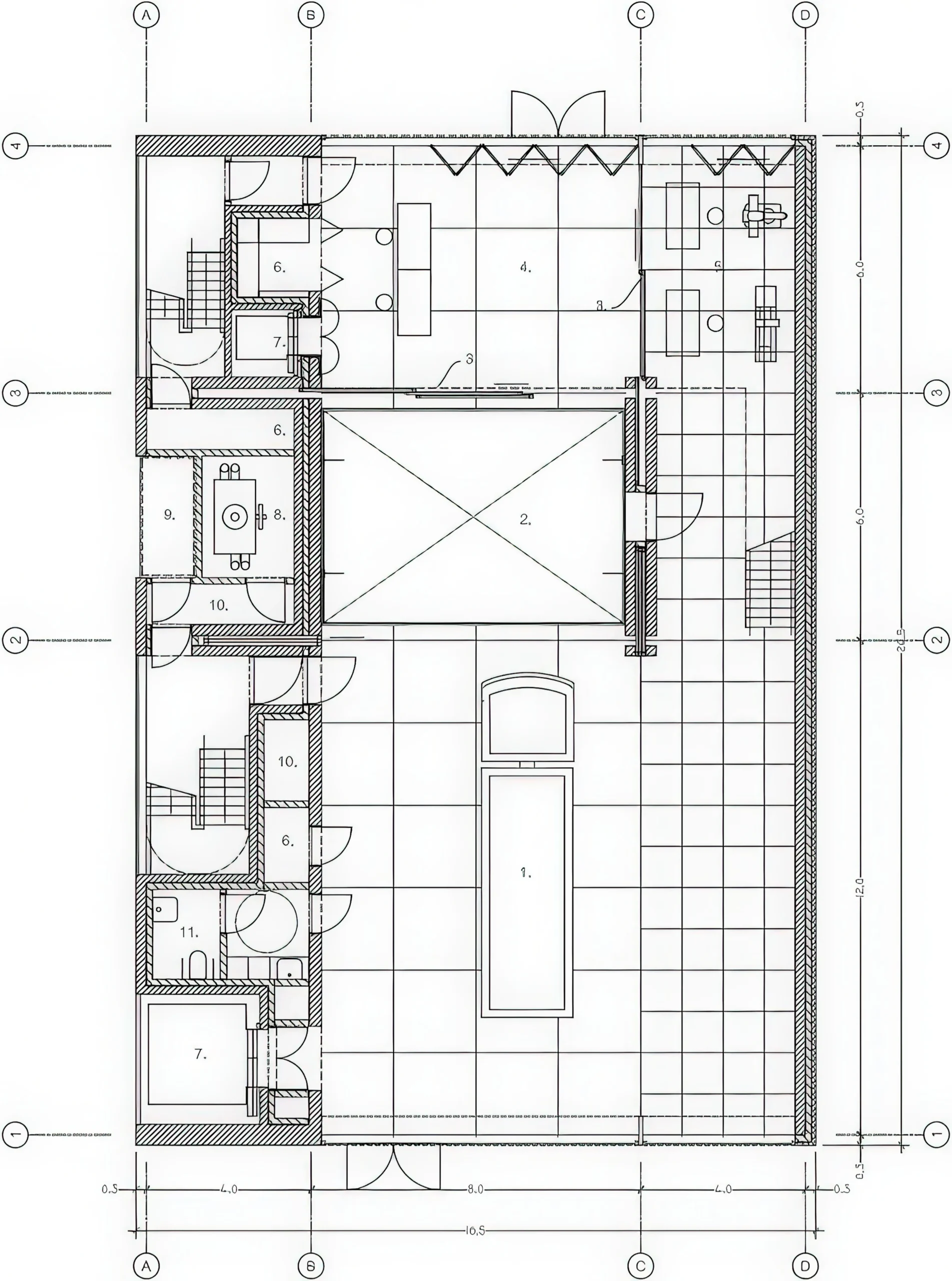
赫斯塔特的 Z33 博物馆 / Z33 Museum, Hasselt | Xaveer de Geyter XaveerdeGeyter • 2026-02-27 下午1:42 • 公共建筑设计, 建筑设计, 文化建筑设计 赫斯塔特的 Z33 博物馆由 Xaveer de Geyter 设计,位于比利时哈瑟尔特市中心,是一座艺术与设计中心。该项目通过插入新建筑扩展原有修道院建筑群,创造灵活多变的展览空间,模糊研究、制作与展示之间的界限。 设计: XaveerdeGeyter 类型: 文化建筑设计 功能: 博物馆 风格: 当代建筑 材料: 混凝土 玻璃 金属板 尺度: 中型建筑 地点:哈瑟尔特 时间: 2012年 项目概述 赫斯塔特的 Z33 博物馆位于比利时哈瑟尔特市中心,是一座艺术与设计中心,项目通过对原有修道院建筑群的改造与扩建,于2012年完成设计。这座文化建筑保留了历史建筑特色,同时注入当代设计语言。 设计理念 Xaveer de Geyter 将新建筑构想为艺术中心工作方法的建筑翻译,设计旨在消除研究、制作、展览与保存之间的界限,创造完整的艺术项目实现环境。建筑回应了场地历史文脉与当代艺术需求的双重语境。 空间与功能 Z33 博物馆采用不同高度的楼层堆叠结构,通过大型移动平台实现空间互联。空间使用不固定,可根据正在制作的作品性质灵活调整。垂直交通区域与多样化的叠加空间增强了建筑的功能适应性。 材料与技术 建筑采用系列立面元素创造不同的室内气候品质和自然光氛围。移动平台、可移动隔断和活动屋顶等技术创新使空间能够根据展览需求进行重组,体现了建筑的高度灵活性。 项目特色与启发 赫斯塔特的 Z33 博物馆展示了文化建筑如何通过灵活的空间策略回应当代艺术实践需求,为类似文化机构改造项目提供了创新思路,特别是在历史环境中融入当代功能的平衡处理方面。 设计团队 Xaveer de Geyter 建筑事务所以其对城市环境和建筑类型的深入研究而闻名,在文化建筑和城市设计领域有着丰富经验,擅长通过精确的建筑语言创造富有表现力的空间体验。 项目概述 赫斯塔特的 Z33 博物馆位于比利时哈瑟尔特市中心,是一座艺术与设计中心,项目通过对原有修道院建筑群的改造与扩建,于2012年完成设计。这座文化建筑保留了历史建筑特色,同时注入当代设计语言。 设计理念 Xaveer de Geyter 将新建筑构想为艺术中心工作方法的建筑翻译,设计旨在消除研究、制作、展览与保存之间的界限,创造完整的艺术项目实现环境。建筑回应了场地历史文脉与当代艺术需求的双重语境。 空间与功能 Z33 博物馆采用不同高度的楼层堆叠结构,通过大型移动平台实现空间互联。空间使用不固定,可根据正在制作的作品性质灵活调整。垂直交通区域与多样化的叠加空间增强了建筑的功能适应性。 材料与技术 建筑采用系列立面元素创造不同的室内气候品质和自然光氛围。移动平台、可移动隔断和活动屋顶等技术创新使空间能够根据展览需求进行重组,体现了建筑的高度灵活性。 项目特色与启发 赫斯塔特的 Z33 博物馆展示了文化建筑如何通过灵活的空间策略回应当代艺术实践需求,为类似文化机构改造项目提供了创新思路,特别是在历史环境中融入当代功能的平衡处理方面。 设计团队 Xaveer de Geyter 建筑事务所以其对城市环境和建筑类型的深入研究而闻名,在文化建筑和城市设计领域有着丰富经验,擅长通过精确的建筑语言创造富有表现力的空间体验。 本文来自 © XaveerdeGeyter, 发布于 © 建筑学院官方网站。 未经授权,禁止转载或摘编。 编辑版本版权归 © 建筑学院官方网站 所有, 设计、图纸及照片版权归设计方 © XaveerdeGeyter ↗ 所有。 查看作者在建筑学院发布的更多作品: XaveerdeGeyter @ 建筑学院官方网站 Xaveer de GeyterZ33 Museum Hasselt文化建筑改造比利时博物馆艺术设计中心 XaveerdeGeyter事务所 & 设计师 下载原图 收藏 0 关于作者 XaveerdeGeyter事务所 & 设计师 关注私信 13 文章 0 评论 0 粉丝 XDGA(Xaveer De Geyter Architects)是1988年由Xaveer De Geyter在布鲁塞尔和巴黎创立的建筑、城市与景观设计事务所。事务所以其激进的设计方法、多元的专业团队和国际化的作品著称,曾获密斯·凡·德罗奖、Bigmat奖等多项重要奖项。XDGA主张建筑不是固定功能或解决问题,而是开启场地的潜在可能,处理不确定性,容纳多样且未预见的生活场景。其作品涵盖文化、教育、居住、商业等多种类型,遍布欧洲及全球。 赫赫斯特大学经济学院 / Faculty of Economics, Ghent University | Xaveer de Geyter 上一篇 2026-02-27 下午1:36 凯瑞尔全球总部 / Cargill Headquarters | Xaveer de Geyter 下一篇 2026-02-27 下午1:52 猜你喜欢 赫赫斯特大学经济学院 / Faculty of Economics, Ghent University | Xaveer de Geyter 2026-02-27 公共建筑设计 荷兰私人住宅,霍伊莱特 / Private house, Hoeilaart | Xaveer de Geyter 2026-02-26 住宅建筑设计 罗杰广场,布鲁塞尔 / Place Rogier, Brussels | Xaveer de Geyter 2026-02-28 公共空间设计 多功能建筑 Mobilis Multipurpose Building | Xaveer de Geyter Architects 2026-02-25 商业与综合建筑 Art Collection Siedle / COLECCION DE ARTE SIEDLE | 布兰德胡伯建筑事务所|Brandlhuber 2025-11-08 公共建筑设计 斯特拉斯堡经济学院 / Faculty of Economics, Strasbourg | Xaveer de Geyter 2026-02-28 公共建筑设计 发表回复 请登录后评论...登录后才能评论 提交