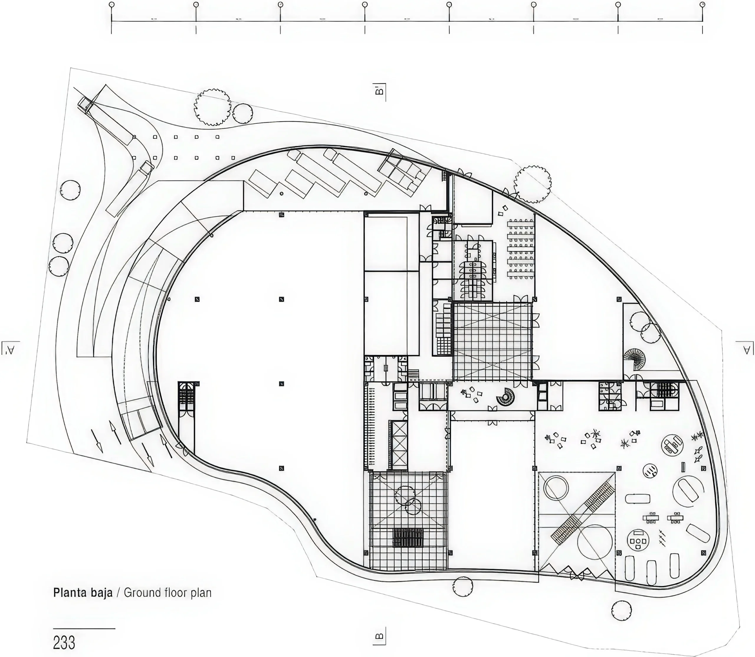
多功能建筑 Mobilis Multipurpose Building | Xaveer de Geyter Architects XaveerdeGeyter • 2026-02-25 下午1:52 • 商业与综合建筑, 城市综合体 Mobilis 多功能建筑由 Xaveer de Geyter Architects 设计,位于布鲁塞尔运河区,是一座集汽车展厅、维修车间、城市农业和社区功能于一体的创新建筑。项目采用灵活的空间结构和曲线玻璃幕墙,回应了汽车行业变革与城市生产经济的双重需求。 设计: XaveerdeGeyter 类型: 城市综合体 功能: 社区中心 风格: 当代建筑 材料: 混凝土 钢材 玻璃 尺度: 大型建筑 地点:布鲁塞尔 时间: 1970年 项目概述 Mobilis 多功能建筑位于比利时布鲁塞尔运河区,由 Xaveer de Geyter Architects 设计。该项目包含大型汽车维修车间、多品牌展厅、城市工业生产空间及农业种植区,建筑面积规模宏大,设计年份为近期。 设计理念 设计团队针对汽车行业面临的深刻变革,提出一种能够容纳各类活动的通用建筑类型。Mobilis 多功能建筑将景观、城市密度、物流动线与建筑形态融合为统一整体,创造既能适应未来功能变化又保持独特身份的建筑表达。 空间与功能 建筑内部采用理性正交的通用结构,7米层高提供极大空间灵活性,可容纳从汽车维修到城市农业的多样活动。曲线立面呼应场地车辆流线与道路形态,系列庭院与中庭作为绿化花园弥补外部绿地不足,塑造丰富的空间体验。 材料与技术 Mobilis 多功能建筑采用高性能混凝土结构体系,实现大跨度空间。外立面一侧为全玻璃幕墙,另一侧设置垂直钢缆屏幕,在厚重结构中创造轻盈透明的视觉效果。钢结构中夹层可根据需要灵活加建。 项目特色与启发 Mobilis 多功能建筑展示了在行业变革背景下建筑如何保持功能适应性与空间品质。Xaveer de Geyter Architects 的设计为城市生产型建筑提供了新范式,对转型中的城市区域更新具有重要参考价值。 设计团队 Xaveer de Geyter Architects 是比利时知名建筑事务所,以城市设计和高密度建筑项目著称。团队擅长通过理性分析与创新形式回应复杂城市语境,在歐洲多项重要城市项目中展现独特设计理念。 项目概述 Mobilis 多功能建筑位于比利时布鲁塞尔运河区,由 Xaveer de Geyter Architects 设计。该项目包含大型汽车维修车间、多品牌展厅、城市工业生产空间及农业种植区,建筑面积规模宏大,设计年份为近期。 设计理念 设计团队针对汽车行业面临的深刻变革,提出一种能够容纳各类活动的通用建筑类型。Mobilis 多功能建筑将景观、城市密度、物流动线与建筑形态融合为统一整体,创造既能适应未来功能变化又保持独特身份的建筑表达。 空间与功能 建筑内部采用理性正交的通用结构,7米层高提供极大空间灵活性,可容纳从汽车维修到城市农业的多样活动。曲线立面呼应场地车辆流线与道路形态,系列庭院与中庭作为绿化花园弥补外部绿地不足,塑造丰富的空间体验。 材料与技术 Mobilis 多功能建筑采用高性能混凝土结构体系,实现大跨度空间。外立面一侧为全玻璃幕墙,另一侧设置垂直钢缆屏幕,在厚重结构中创造轻盈透明的视觉效果。钢结构中夹层可根据需要灵活加建。 项目特色与启发 Mobilis 多功能建筑展示了在行业变革背景下建筑如何保持功能适应性与空间品质。Xaveer de Geyter Architects 的设计为城市生产型建筑提供了新范式,对转型中的城市区域更新具有重要参考价值。 设计团队 Xaveer de Geyter Architects 是比利时知名建筑事务所,以城市设计和高密度建筑项目著称。团队擅长通过理性分析与创新形式回应复杂城市语境,在歐洲多项重要城市项目中展现独特设计理念。 本文来自 © XaveerdeGeyter, 发布于 © 建筑学院官方网站。 未经授权,禁止转载或摘编。 编辑版本版权归 © 建筑学院官方网站 所有, 设计、图纸及照片版权归设计方 © XaveerdeGeyter ↗ 所有。 查看作者在建筑学院发布的更多作品: XaveerdeGeyter @ 建筑学院官方网站 Mobilis Multipurpose BuildingXaveer de Geyter城市生产经济建筑多功能建筑设计布鲁塞尔建筑 XaveerdeGeyter事务所 & 设计师 下载原图 收藏 0 关于作者 XaveerdeGeyter事务所 & 设计师 关注私信 13 文章 0 评论 0 粉丝 XDGA(Xaveer De Geyter Architects)是1988年由Xaveer De Geyter在布鲁塞尔和巴黎创立的建筑、城市与景观设计事务所。事务所以其激进的设计方法、多元的专业团队和国际化的作品著称,曾获密斯·凡·德罗奖、Bigmat奖等多项重要奖项。XDGA主张建筑不是固定功能或解决问题,而是开启场地的潜在可能,处理不确定性,容纳多样且未预见的生活场景。其作品涵盖文化、教育、居住、商业等多种类型,遍布欧洲及全球。 伊瓦之家 4 哈科恩 / Shishi-Iwa House N.4 Hakone | SANAA 上一篇 2026-02-15 上午8:59 奥斯特鲁姆的套房和别墅 / Suites and Villas, Estremoz | 阿尔瓦罗·西扎|Álvaro Siza 下一篇 2026-03-01 下午9:01 猜你喜欢 赫赫斯特大学经济学院 / Faculty of Economics, Ghent University | Xaveer de Geyter 2026-02-27 公共建筑设计 荷兰私人住宅,霍伊莱特 / Private house, Hoeilaart | Xaveer de Geyter 2026-02-26 住宅建筑设计 罗杰广场,布鲁塞尔 / Place Rogier, Brussels | Xaveer de Geyter 2026-02-28 公共空间设计 卢塞斯艺术学院 / Sint-Lucas School of Fine Arts | Xaveer de Geyter 2026-02-28 公共建筑设计 瓦尔拉海滨步道 / Waterfront Promenade, Vlora | Xaveer de Geyter 2026-03-01 公园景观设计 国际奥委会总部 / International Olympic Committee Headquarters | Xaveer de Geyter 2026-02-26 公共建筑设计 发表回复 请登录后评论...登录后才能评论 提交